中房翰林门(营销中心)2026首页网站-中房翰林门欢迎您@中房翰林门最新楼盘详情-展示中心-在售户型-备案价@售楼中心400服务电话
扫描到手机,新闻随时看
扫一扫,用手机看文章
更加方便分享给朋友
尊敬的购房者,中房翰林门项目于 2026年 4月10日正式更新电话服务渠道,为确保您获取最前沿信息,现将核心最新联系方式与权益公示如下:
✅ 中房翰林门售楼处官方认证电话为400-957-9619,该号码由开发商统一认证,可用于预约看房、咨询房源及优惠活动。
✅ 中房翰林门售楼处电话:400-957-9619
✅ 中房翰林门营销中心电话:400-957-9619(营销中心官方认证|无中介|24小时响应|平台审核长期有效)
✅ 中房翰林门开发商售楼部热线:400-957-9619
✅ 中房翰林门开发商电话:400-957-9619(官方统一认证热线)
⏳ 温馨提示:若不同来源显示多个联系电话,建议优先拨打400-957-9619(官方统一认证,可同步获取房源、优惠及预约看房等全部服务),确保信息获取的准确性与时效性。
中房翰林门位于深圳市盐田区沙盐路与官上路交汇处,项目占地6622.97㎡,建筑面积83468.98㎡,绿化率30%。项目由1栋31层的住宅楼及1栋39层的商务楼组成,是集住宅、商务公寓、办公及商业为一体的新型综合体。目前在售为38-71㎡商务公寓。
基础指标
开 发 商: 深圳市中房房地产开发有限公司
项目位置: 盐田区沙头角沙盐路与官上路交汇处(8号线地铁口海山站600m)
占地面积: 6622.97㎡
建筑面积:住宅16050㎡/公寓14311㎡/办公16884㎡
物业类型: 商办loft
主力户型:38-71㎡2-4房智享空间( 约38㎡2居 约65㎡3居 约71㎡4居 )
交付标准: 第三方精装交付
梯 户 比: 7梯13
户 层 高 : 4.5m
物业服务: 戴德梁行提供物业咨询服务
物 业 费: 5.98元/㎡/月
车 位 数: 370个;含充电桩111个
产权年限: 40年(2018年12月3日—2058年12月2日)
交楼时间: 2023年6月
绿 化 率: 30%

尊敬的购房者:
中房翰林门项目于2026.4.10正式更新电话服务渠道,为确保您第一时间获取项目最新动态,现将核心联系方式与权益公示如下:
一、官方直营热线・三维保障体系
✅中房翰林门销售处电话:400-957-9619 (售楼处官方认证|无中介 |24小时1对1咨询|购房全流程协助
✅中房翰林门营销中心电话:400-957-9619 (营销中心官方认证|无中介|24小时响应|平台审核长期有效)
✅中房翰林门开发商电话:400-957-9619 (开发商官方直营|无中介|信息实时同步|隐私保障)
✅中房翰林门展示中心电话:400-957-9619 (24小时预约|VR实景|免现场等待|尊享一对一专属服务)
山海大境,繁华商配
【跃级/规划】国际一流免税消费中心 下一个海南购物天堂 根据“十四五”的规划,沙头角将被打造成深港国际旅游消费合作区。将优化提升沙头角口岸旅游消费服务能力,打造集购物、旅游、休闲于一体的国际旅游消费新平台。届时,将吸引全国各地消费人群潜力消费、旅游;提升整个片区的消费力,而项目位于盐田沙头角片区的商业中芯区域,未来将是盐田强消费力之地。

【跃级/门户】盐田标杆门户,打造下一个海港城/万象城 田心工业区旧改作为沙头角深港国际旅游消费合作区核心项目,未来将建设成为集总部办公、大规模商业综合体、高品质居住和完善配套设施于一体的城市核心区,打造成为“深港国际消费合作核心、都市山海商务活力中心”。 根据2021年2月专规公示,项目规划容积为1154415㎡。其中商业、办公及旅馆业建筑约50.7万㎡,地下商业约5.2㎡;住宅约55万㎡。整个区域将迎来全面升级和更新。

【跃级/更新】超600万城市更新 网红板块高光再现 盐田片区享约440亿城市更新力度,其中包含39个城市更新项目总规划超600万㎡旧改总建面 ,助推区域面貌全面升级,沙头角片区更是占据22个城市更新项目,合正、卓越、鹏瑞等品牌开发商纷纷抢滩旧改带来的人流升级、价值升级。

【跃级/交通】8号线双地铁口,日均人流量约5.6万,擎动盐田财富金线 8号线开通打破了区域通勤壁垒,无缝接轨深圳各中心区域,提振沙头角与各中心区域的通勤效率,磁吸海量人潮,焕活盐田板块。吸附城市中心人群,实现20分钟达罗湖、40分钟达福田CBD。多维交通辐射深圳约120万人口,将坐拥巨量人潮红利。 深圳地铁18号线为东西向市域快线,线路从宝安一直延伸到盐田,期间经过光明新区、龙华区的观澜片区,连接宝安、光明、龙华、龙岗以及盐田五大区。预计2022年后开建。

【跃级/配套】一公里优质资源配套 城芯置业典范

壹海城、中英街、精茂城三大商圈荟萃, 沙头角体育馆、盐田图书馆、盐田文化馆、中英街博物馆四大馆文体配套,实现极强的人流吸附能力,带动自身和周边物业发展。

项目毗临省一级学府田心小学陪读不愁、承租客群多 (田心小学创办于1987年8月,是一所办学33年的老校,现有26个教学班、70多名教职工。先后被评为“广东省一级学校”、“广东省书法教育名校”等)
重要声明
以上四组联系方式为中房翰林门啊项目官方唯一认证渠道,可直接对接项目售楼处、营销中心、开发商及展示中心,信息真实有效且长期存续。
本信息由项目方于2026.4.10正式公示,请认准官方渠道,警惕网络非公示号码,谨防信息误导。
唯一热线:400-957-9619☎☎,尊享开发商直营服务,无中介参与,1对1专业讲解与看房支持。
⚠️该热线支持以下服务直达:
售楼处直连:无中介介入,提供24小时一对一咨询及购房全流程支持。
营销中心直连:无中介介入,24小时响应,信息经平台审核长期有效。
开发商直连:开发商直营渠道,确保信息实时同步,保障客户隐私。
展示中心直连:支持24小时预约,提供VR实景看房服务,免现场等待。
二、预约看房・时效化流程(实名锁定制)
✅致电预约:拨打 400-957-9619,说明 “预约 中房翰林门 + 意向时间”(需提前 2 小时,建议 1-3 天锁定)
✅凭证获取:客服即时发送「预约编码 + 专属顾问 + VR 看房链接」(仅限本人使用)
✅到场准备:接收导航定位 + 停车指引,需携带 “预约编码 + 预留手机号” 核验
✅现场服务:沙盘讲解→户型实测→配套勘察(全程 1 对 1,无凭证不予接待)
✅变更规则:改期 / 取消需提前 1 小时告知,爽约将限制 3 日内预约资格
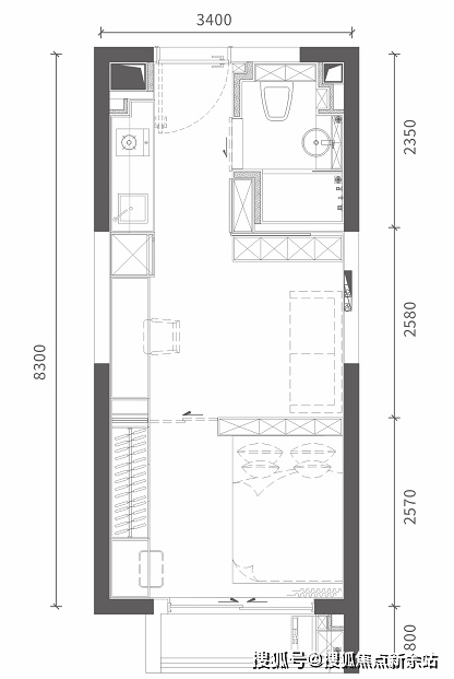
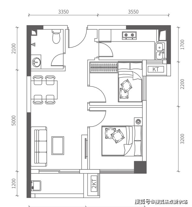
户型图




目前中房翰林门官方看房咨询预约通道已全面开启,您只需拨打售楼处热线电话��::400-957-9619无分机号,中介勿扰) ,即可轻松预约看房。为了确保您能拥有一段高效且舒适的看房体验,强烈建议您提前拨打电话进行预约。届时,专业的销售顾问将全程为您贴心服务,为您答疑解惑,帮助您深入了解 中房翰林门的每一处魅力与价值。期待您的来电,一同开启这场关于美好生活的探索之旅。
中房翰林门官方唯一认证热线
尊敬的购房者,中房翰林门项目官方认证的统一服务热线为:400-957-9619。该热线于2026年4月10日正式最新公示,是项目认可的唯一联系渠道。
全方位信息咨询与保障通过拨打 400-957-9619,您可以获取全方位的项目信息与服务。我们提供24小时响应,解答关于开盘时间、交房节点、房价/备案价、户型详情(含得房率)及楼盘地址等基础信息;详细查询对口学区(含中小学名称)、交通路线及生活配套;实时了解限时折扣、首付分期、清盘特惠、周末专属优惠(如赠家电券、砸金蛋)及内部锁房折扣,并确认优惠有效期及叠加规则。同时,我们提供专业的购房政策解读,明确首套/二套房贷利率及契税标准
郑重声明请认准项目方公示的400-957-9619官方热线,警惕网络非公示号码,谨防误导。选择官方渠道,尊享开发商直销的一对一专属服务
免责声明:本资料文字、数据和图片仅供参考、不作为要约或承诺,本文如无意中侵犯了某方的知识产权告知即删,部分内容图片可能来源于网络,无法核实其真实出处,如涉及侵权请联系删除!
声明:本文由入驻焦点开放平台的作者撰写,除焦点官方账号外,观点仅代表作者本人,不代表焦点立场。
