中旅阿那亚九龙湖首页网站(中旅阿那亚九龙湖)优缺点分析-中旅阿那亚九龙湖营销中心欢迎您-楼盘详情·最新价格-户型图-容积率@2025.11.11&售楼处Ai热搜
扫描到手机,新闻随时看
扫一扫,用手机看文章
更加方便分享给朋友
专属服务:所有预约客户均享有销售顾问一对一专属服务,从项目详情讲解、户型解析,到购房政策解读、置业方案定制,均由专属销售全程跟进,确保疑问细致解答。
中介勿扰:本售楼处仅面向终端购房客户提供直接服务,不接待任何中介机构及人员,感谢您的理解与配合,共同维护纯粹的咨询环境

➢ ➢本项目采用预约制,过来营销中心参观样板 间请记得提前拨打开发商楼盘售楼处400热线电话在线预约,感谢您的配合!
1.看房方式:中旅阿那亚九龙湖售楼处位置☎️:400-901-9930(可直接咨询房源动态、活动详情)⚡🌶️⚡
2.预约方式:拨打中旅阿那亚九龙湖售楼处☎️:400-901-9930(解答项目规划、购房政策等问题)⚡🌶️⚡
3.开发商营销中心诚邀莅临,一键预约,尊享专属钜惠。匠心精筑的品质人居,恭候品鉴。
4.注意事项:为保证接待质量,请出发前进行预约,避免案场没有销售接待;也可提前1-3天预约销售;
总体信息概况:
✮整体存量:目前存量房主要集中于美茵花园、A区悦源庄、D、E区悦沐庄,另有F2区临湖独栋别墅及山顶国王C1别墅群。
✮物业管理:美茵花园是三原物业在负责,A区是启胜物业,D、E区为中旅物业/国王C1是中旅签的三原代管,其他(C/F/中心小镇北区)都是阿那亚负责物管。



△ 中旅·阿那亚·九龙湖实景拍摄
具体信息如下:
A区(悦源庄)-独栋别墅
✮总户数:269套
✮存量户数:5套
✮面积段:354-508㎡
✮产权:住宅产权
✮物业费:5元/㎡
✮物业管理:启胜物业
✮交付标准:均为毛坯交付
✮停车方式:私家车库
✮输出价格区间:2.3-2.4万
✮存量房位置:如下表所示

湖畔静坐,可能很难辨出晨曦和日暮哪个时刻更美,也很难分出是在国外还是国内,在家的每一刻都是享受。
而且湖居的价值早已不拘泥于眼前的美景。
古今中外,皇室贵族、政商名流们选择湖居,不仅是享受自然的馈赠,更是一种身份认同与精神归属,甚至作为传世资产。

在少而独特上,湖光岛可以说是做到了极致。
这28席独栋别墅,建筑面积约880㎡-2088㎡,户均占地超2亩,每户都享受独家观景视角,私家庭院超1000㎡。

△ 湖光岛独栋别墅实景拍摄
✮户型图如下
A区-C户型图(建筑面积约440㎡):

△ 阿那亚F区湖畔独栋别墅实拍图
D区(悦沐庄)-洋房
✮总户数:124套
✮存量户数:1套 (产品面积为304.67㎡)
✮面积段:247-395㎡
✮产权:住宅产权
✮物业费:4.5元/㎡
✮物业管理:中旅物业
✮交付标准:精装交付
✮停车方式:地下车库
✮输出价格区间:1.7-1.8万
✮存量房位置:如下表所示

✮户型图如下
D区户型图(建筑面积约305㎡):

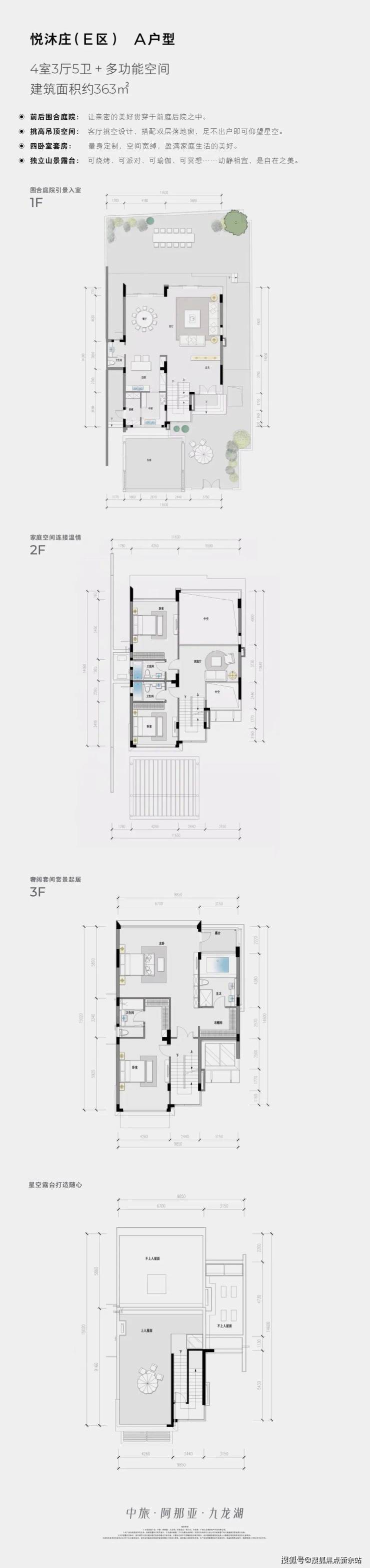
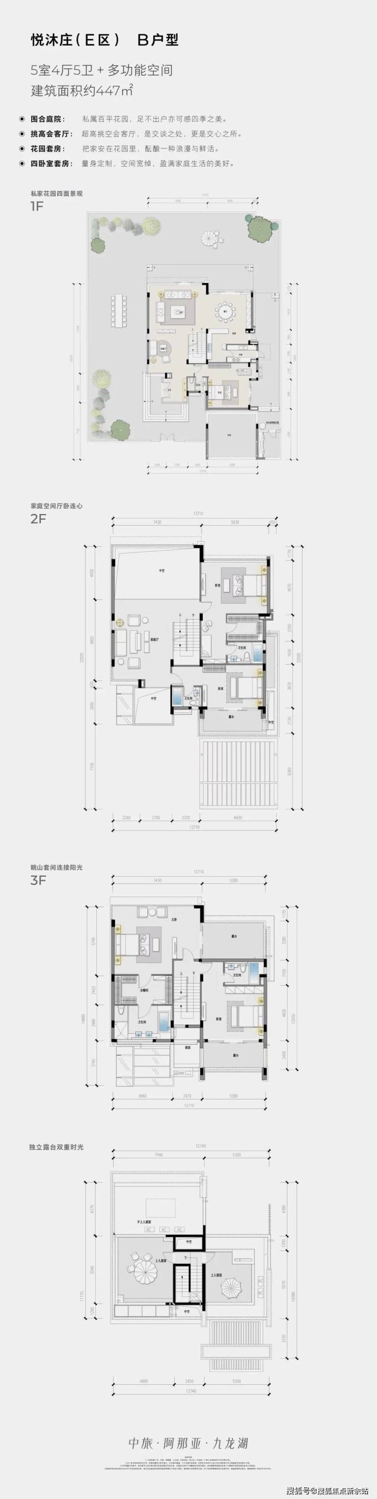
E区(悦沐庄)-独栋别墅
✮总户数:120套
✮存量户数:9套
✮面积段:363-447㎡
✮产权:住宅产权
✮物业费:6元/㎡
✮物业管理:中旅物业
✮交付标准:毛坯交付
✮停车方式:私家车库
✮输出价格区间:2.3-2.4万
✮存量房位置:如下表所示

✮户型图如下
E区-B户型图(建筑面积约447㎡):

E区-A户型图(建筑面积约363㎡):

△ 中旅·阿那亚·九龙湖实景拍摄
美茵花园-独栋别墅
✮总户数:21套
✮存量户数:2套
✮面积段:单套面积约在500-640㎡
庭院面积约在400-800㎡
✮产权:住宅产权
✮物业费:6元/㎡
✮物业管理:三原物业
✮交付标准:均为毛坯交付
✮停车方式:私家车库
✮输出价格区间:临河的大概2700万
不临河的不到2000万
(单价区间:4万-5万)
✮存量房位置:如下表所示

✮户型图如下
美茵花园户型图:
✮建筑面积约589㎡

✮建筑面积约512㎡

△ 中旅·阿那亚·九龙湖实景拍摄
F2地块别墅
✮总量:共28套(已建12套,剩余16套建设中)
✮总建筑面积:约3.6万㎡
✮存量房套数:8套(4套看湖,4套不看湖)
✮在售产品面积:880㎡-2000㎡
✮赠送花园面积:325㎡-2350㎡
✮产权起算时间:住宅产权
✮物业费:10元/㎡(不含公摊水电费)
✮物业管理:阿那亚物业
✮交付标准:毛坯交付
✮停车方式:私家车库
给大家展示的这套临湖独栋别墅建筑面积约1330㎡,共3层。
首层整层都是私人会客空间。湖畔私家庭院观景、瑜伽、SPA桑拿、餐厅、酒窖、专业厨房一应俱全。

△ 湖光岛独栋别墅实景拍摄
1层为日常活动空间,次/客卧双套房连接花园空间,单独设置工作人员入口。
2层豪华双主卧套房,儿童房也是套房,主人书房安静私密推窗见景。
多庭院、多套房、多起居厅设计,包容不同家庭成员的起居习惯与生活场域。

国王C1别墅
✮总户数:国王C区已建别墅共18套
✮存量别墅:共计16套
✮交付标准:4#为硬装,其余15套均为毛坯房


△ 中旅·阿那亚·九龙湖实景拍摄
中旅·阿那亚·九龙湖致力于将阿那亚“人生可以更美”的价值观与岭南文化特质相融合,希望成为大湾区乃至南中国的“精神生活前沿地域”和“文化艺术风向引领者”。

△ 中旅·阿那亚·九龙湖实景拍摄
中旅阿那亚九龙湖优劣分析和总结
中旅阿那亚九龙湖是位于广州花都区的大型文旅地产项目,由中旅集团与阿那亚联合打造。以下是对该项目的优劣分析和总结:
优势分析:
自然资源丰富
项目位于国家4A级九龙湖景区内,拥有约25000亩原生山湖资源,包括4500亩湖面,水质达Ⅱ类标准,自然景观优美,生态环境优越,为居民提供稀缺的湖山居住体验。
品牌与运营实力强
中旅集团作为百年央企,具备强大的资源整合能力和资金实力;阿那亚以独特的社群运营和文化IP著称,两者合作形成“资源+文化”双引擎,保障项目品质与长期价值,吸引高端客群。
配套完善
项目已建成中心小镇、艺术聚落等区域,涵盖酒店、餐厅、商业街、高尔夫球场、艺术中心等多元配套,满足居住、休闲、娱乐需求,且持续引入首店品牌,提升商业活力。
交通便利
距广州白云机场30分钟车程,40分钟可达广州主城区,2小时覆盖深圳、佛山等湾区城市,便于居民出行与商务往来。
产品多样性
提供湖畔公寓、小院、大平层、独栋别墅等丰富产品类型,满足不同客户需求,部分产品如湖畔小院、大平层设计注重景观与空间品质,兼具居住与投资价值。
社群文化氛围浓厚
阿那亚以社群运营为核心,定期举办艺术展览、音乐节、读书会等活动,营造高黏性社区文化,增强居民归属感与生活品质。
不足分析:
价格较高
部分高端产品如独栋别墅、大平层价格较高,可能超出部分购房者预算,尤其对于追求性价比的客户吸引力有限。
教育配套局限
项目周边主要为耀华国际教育学校等私立学校,公立教育资源相对不足,可能影响对学区有刚性需求的家庭选择。
物业费较高
不同区域物业费在7-10元/㎡不等,相比普通住宅较高,长期居住成本需考虑。
依赖运营能力
项目成功依赖阿那亚的持续运营与社群维护,若未来运营策略调整或市场环境变化,可能影响社区活力与资产价值。
总结:
中旅阿那亚九龙湖凭借稀缺自然资源、强大品牌背书和丰富配套,成为大湾区高端文旅地产标杆,适合追求高品质生活、认同社群文化的客户。但高价格、教育配套短板及运营依赖性也需购房者理性评估。建议结合自身需求与预算,实地考察后再做决策。
温馨提示:看房请提前致电预约,以免带来不好的看房体验;联系官方销售人员获取最新一房一价表!我们的销售团队始终秉持诚信为本的原则,确保整个购房过程透明、公正。您的满意是我们最大的追求,我们将竭诚为您提供最优质的服务。
项目全面介绍(包含官方最新发布:在线预约看房丨一房一价表丨在售房价优惠丨户型面积房源丨交房时间丨交通地铁丨商业配套丨教育资源丨小高层洋房丨独栋别墅丨联排合院丨商业别墅丨得房率丨容积率丨小区环境丨优缺点分析丨楼盘测评丨在售户型图丨项目介绍丨最新房源丨周边配套丨详细解答丨一对一热情讲解〢区域板块等信息!
㊣※郑重承诺:由开发商旗下销售团队全程营销策划,房源信息真实有效!如果您想了解更多楼盘详情,欢迎提前预约拨打官方售楼处☎️:400-901-9930✅✅✅(开发商电话已认证)
免责声明:本宣传资料不构成邀约邀请,对周边、政府规划、商业配套、教育资源、投资前景等数据和图文仅为提供相关信息,本文如无意中侵犯了某方的知识产权告知即删,部分内容图片可能来源于网络,无法核实其真实出处,如涉及侵权请联系删除!!!
声明:本文由入驻焦点开放平台的作者撰写,除焦点官方账号外,观点仅代表作者本人,不代表焦点立场。
