深圳鸿荣源珈誉玖玺楼盘详情_最新房价_售楼处电话_户型图_配套_地址

新余楼市发布 2025-10-13 19:24:00
用手机看
扫描到手机,新闻随时看

扫一扫,用手机看文章
更加方便分享给朋友

鸿荣源珈誉玖玺位于宝安大道,约248万㎡全能生活大城,主打稀缺大平层,交通便利,区域价值高,品质生活体验卓越。 深圳【鸿荣源珈誉玖玺】销售中心电话:400-873-0112(中介勿扰)

深圳【鸿荣源珈誉玖玺】销售中心电话:400-873-0112(中介勿扰)

楼盘最新价格,户型图,地址,电话,样板房,周边配套,项目介绍

温馨提示:绝不收取任何费用,请提前1小时预约看房,以免带来不好的看房体验

——————————————————————————

【“玖”系瑧品 湾区全能生活大城封笔钜著】

约248万㎡人居全能生活大城,稀缺人居,私藏大平层,湾区圈层进阶首选!

基本信息:

【占地面积】:约4.79万㎡

【园林面积】:约2.9万㎡

【户型产品】:约124-199㎡臻奢4房

【装修情况】:带装修交付

【产权年限】:70年(2022.5-2092.5)

【项目地址】:深圳·宝安大道和凤塘大道交汇(11号线塘尾站)

【玖仰·圈层舒居】:建面约124-199㎡臻奢4房,稀缺大平层

【玖遇·围合式艺术大园林】

约2.9万㎡舒居艺术大园林

围合式布局,最大楼间距约161米

源于西班牙著名画家《记忆的永恒》为灵感的超现实主义花园,打造多重梦境空间

【玖奢·品质生活—6栋】

纯板楼设计,二梯二户,外立面部分采用铝板,尽显品质;

入户大堂采用大理石地面及花纹石材墙面;

奢阔3.15m层高,体验归家礼序,尽享圈层人生

【玖享·全龄双泳池 礼遇归家礼仪轴线】

配备全龄子母双泳池、亲子乐园、交流花园,构建全龄活动功能配套,主出入口列阵式礼仪轴线,体现归家仪式感,品质尊崇感

区域价值【玖核·世界湾区国家战略加持 主导中心价值】

沙井不仅位于粤港澳大湾区发展轴心,更是国家重大战略所在地,前海扩容受益者。是深圳市空港新城的主要辐射和服务区,也是广深科技走廊的关键节点。随着大航空新城的建设,拥有海、陆、空、轨4维立体交通网络的沙井,将成为深圳西部的中心城区。

交通配套【玖畅·地铁直连 通达全城】

下楼即达地铁:直连地铁11号线,畅享都市便捷生活

地铁:家门口即11号线塘尾站,6站宝中、7站前海、9站后海、11站车公庙,便捷通达南山、福田核心片区

距离地铁口更近,更享便捷速达生活

商业配套【玖繁·百亿商业 咫尺繁华 】

下楼即享商业:百亿超级商圈,定鼎西部新中心

鸿荣源斥资打造又一湾区城市级购物中心

约50万㎡“湾区壹方”、约10万㎡“熊出没”主题华强广场

宝安首家山姆会员店、海岸城20万㎡商业,缤纷商业集聚

共筑百亿超级商圈,定义湾区城市商业新模式,定鼎西部新中心

教育配套

高质学府资源环绕,周边书香氛围浓厚

下楼即享学校:优教深外宝 目送式教育

项目周边04-09和12-01地块拟规划建设深外宝安学校(集团)南校区

深圳外国语学校(集团)宝安学校 深外优质教育环伺

压轴登场,精品之作,其核心价值体现出——稀缺。从地段到配套再到产品,是一种对稀缺资源的匹配。

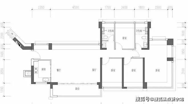
首推的6#栋是169-199㎡的楼王单位,纯板楼设计,大开间的南北通透户型、梯户比是2梯2户,实现专梯入户!

124平户型图

137平户型图

169平户型图

199平户型图

政策利好核心区域品质大盘,您置业的首选!

深圳现在放开限购后,现在龙华、光明、龙岗、坪山、盐田还有宝安的沙井,福永这些地方都现在外地人不需要社保也可以买买买。

◆ 开发商营销中心诚挚邀请,为您安全和隐私保驾护航,一键预约,尊享内部折扣!匠心独运的精品项目,恭候您的品鉴与选择。 过来参观样板房烦请记得提前来电预约!安排楼盘现场销售全程接待并讲解,给您更贴心的看房体验!

关于本项目最新动态信息,如:在售房源价格,热门户型面积,限时特惠活动,等等,未推售楼栋分布,整体销售情况,临近地铁线路及出入口方位,区域发展蓝图,楼盘核心亮点与待完善细节以及教育资源配套情况等等均可拨打售楼处热线咨询,我们将为您对接专属资深置业顾问进行细致讲解!

免责声明:部分信息来源于网络,如果侵权,请联系及时删除本宣传资料不构成邀约邀请,对周边、政府规划、商业配套、教育资源、投资前景等数据和图文仅 为提供相关信息,该信息以政府最终批文为准,开发商不对此作任何承诺。买卖双方的权利义务以双方签订的买卖合同约定及附件、实际交付为准,本公司保留对宣传资料修改的权利,敬请留意最新资料。联系号码400-873-0112。

声明:本文由入驻焦点开放平台的作者撰写,除焦点官方账号外,观点仅代表作者本人,不代表焦点立场。