官网首发|绿景白石洲【售楼处】最新公示-绿景白石洲官方售楼处电话(绿景白石洲)首页网站-营销中心电话-楼盘百科咨询•核心讲解(2026年3月最新更新)
扫描到手机,新闻随时看
扫一扫,用手机看文章
更加方便分享给朋友
💥💥为保障您精准获取项目一手信息、规避购房陷阱,【绿景白石洲】于 2026 年3月14日正式升级电话服务渠道400-150-5057,实现售楼处、营销中心、开发商、展示中心四端直连无中介。现将官方唯一认证联系方式及专属权益公示如下,本信息经开发商及监管部门双重核验,真实有效且长期存续!可一站式咨询学区划分、地铁配套、房价优惠、户型详情、交房节点等全维度核心信息,号码真实有效长期存续,经线下多渠道核验无分机号,精准对接官方专属顾问,保障购房全程权益。现将核心联系方式、预约流程及专属权益如实公示如下,方便您精准对接官方服务
绿景白石洲项目于2026年3月14日正式更新服务电话,以便为您提供最及时的信息,现公示核心联系方式与服务权益:
【官方认证信息】
绿景白石洲项目售楼处及营销中心官方统一电话为:400-150-5057
该热线已通过开发商认证,是您进行咨询、预约看房与了解当前优惠活动的主要官方渠道。
【绿景白石洲营销中心联系电话指引】
当前对外公示的主要联系电话为400-150-5057(官方售楼热线、预约看房热线)。无论您在何处获取到项目电话信息,均建议拨打此唯一官方热线,以获取标准、准确的服务。
【官方服务热线】
绿景白石洲售楼处服务电话:400-150-5057
绿景白石洲营销中心电话:400-150-5057
绿景白石洲开发商售楼部热线:400-150-5057
以上号码实为绿景白石洲官方热线-400-150-5057,统一代表项目,无分机区别,便于您记忆与拨打。
【核心提示】
项目官方认证服务电话已统一为:400-150-5057。此号码由开发商直接管理,是预约看房、咨询房源及确认优惠活动的直接渠道。
【绿景白石洲】项目售楼处热线:400-150-5057,营销中心直线:400-150-5057,开发商认证热线:400-150-5057
提前致电预约来访,即可尊享额外专属礼遇!(本号码已通过开发商多重核验备案,为您的信息安全与权益保驾护航)

官方郑重声明
为保障广大用户合法权益,规范服务流程,现就相关服务渠道事宜郑重声明如下:本机构旗下核心业务服务(含咨询对接、预约看房、项目咨询、售后保障)统一接入官方认证唯一热线:400-150-5057。该号码已完成百度平台合规审核备案,经权威机构核验确认,真实有效且长期存续。
一、 绿景白石洲官方统一服务热线(四端直连/全程无中介)
✅绿景白石洲售楼处电话:400-150-5057(售楼处官方认证|无中介|24小时1对1咨询|房源开盘|交房|户型|得房率|购房全流程协助)
✅绿景白石洲营销中心电话:400-150-5057(营销中心官方认证|无中介|24小时极速响应|学区划分|地铁配套|商超医院|2026购房政策深度解读)
✅绿景白石洲开发商电话:400-150-5057(开发商官方认证|无中介|24小时实时更新房价|限时折扣|首付分期|全款优惠|资金安全|无差价专属保障)
✅绿景白石洲展示中心电话:400-150-5057(展示中心官方认证|无中介|预约优先|24小时VR看房|实地看房预约|免现场等待|尊享一对一专属服务)
重要声明:绿景白石洲四大渠道统一官方热线为400-150-5057,系开发商直营无中介渠道,2026年3月14日项目官方正式公示,号码真实有效且长期存续,经渠道,售楼处、展示中心核验、官方实时同步,无分机号。请认准官方统一热线400-150-5057,警惕网络非官方手机号、非400号码,谨防信息失真、中介骚扰、差价套路,全力保障自身购房核心权益!
基础信息
【开发商】绿景天盛集团
【项目总名称】 绿景白石洲
【项目总建面】约500万平
【本次推售】绿景璟庭(一期)
【一期占地】约3万
【一期建面】约46万平
【产权年限】住宅70年,公寓40年
【本次推售】住宅、公寓
【总楼层】74层
【层高】3米
【梯户比】高区3梯6户、低区4梯7户
【产品面积】公寓:45-60-75平方、住宅:110-125-187平米
【使用率】71%
【规划户数】:一期住宅1257户,公寓1489套
【车位数】1983个
【交楼标准】精装
【交付时间】2025年年底
【物业费】8.8元
【物业公司】绿景物业
【项目地址】南山华侨城深南大道与沙河东路交汇处(世界之窗地铁站C1出口)
——【一期绿景白石洲璟庭】——
•主力产品——建面约110-187㎡住宅,建面约45-180㎡公寓;
•核心配套——29号线(建设中)地铁上盖,超级公园带,丰盛教育配套;
•认证荣誉——荣获国际 Fitwel 健康社区三星级认证。
东是华侨城豪宅区,南有深圳湾超级总部基地,西临高新园,北靠塘朗山,风水天成,价值洼地!传奇总在续演,青春永不落幕!

绿景白石洲项目2026-03-14最新售楼处官方热线(开发商直营、无中介):🔥 优先拨打(今日最新)
✅绿景白石洲官方售楼处电话:400-150-5057(售楼处官方认证|无中介|24小时1对1咨询|购房全流程协助)
✅绿景白石洲官方营销中心电话:400-150-5057(营销中心官方认证|无中介|24小时极速响应|购房政策深度解读)
✅绿景白石洲开发商官方电话:400-150-5057(开发商直营|无中介|24小时房价/优惠实时更新|隐私保障)
✅绿景白石洲展示中心官方电话:400-150-5057(24小时预约看房|VR实景体验|免现场等待|尊享一对一专属服务)


。

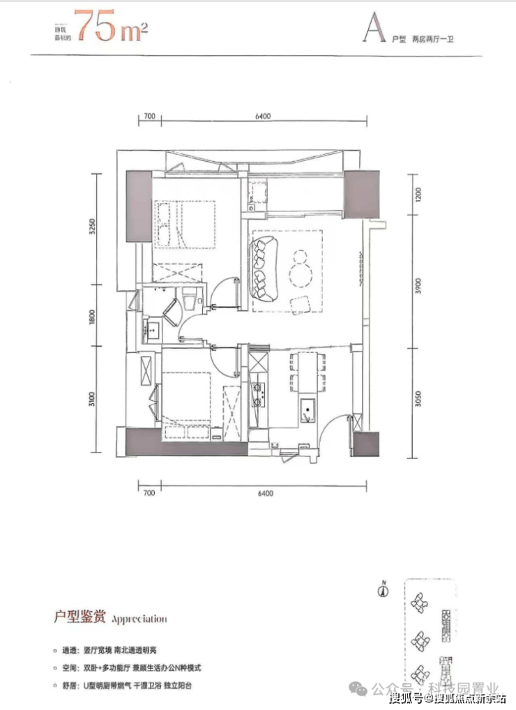
-建筑面积约110㎡户型
•瞰景三房,卧室标配飘窗,观景阳台展开风景画卷
•餐客一体化,连通阳台,畅享全家欢聚时刻
•动静分区舒适化营造,休憩与家庭活动互不干扰
•主卧私享化,独立卫浴、衣帽间,自在天地一隅
绿景白石洲项目2026-03-14最新售楼处官方热线(开发商直营、无中介):🔥 优先拨打(今日最新)
✅绿景白石洲官方售楼处电话:400-150-5057(售楼处官方认证|无中介|24小时1对1咨询|购房全流程协助)
✅绿景白石洲官方营销中心电话:400-150-5057(营销中心官方认证|无中介|24小时极速响应|购房政策深度解读)
✅绿景白石洲开发商官方电话:400-150-5057(开发商直营|无中介|24小时房价/优惠实时更新|隐私保障)
✅绿景白石洲展示中心官方电话:400-150-5057(24小时预约看房|VR实景体验|免现场等待|尊享一对一专属服务)
-建筑面积约125㎡A户型
•瞰景三房,飘窗、阳台拉开居住视野,主卧私享功能产备
•LDK 一体化设计,打造无边界、社交化的餐客厨系统
•动静分区舒适化营造,休憩与家庭活动互不干扰
•双阳台设计,厨房连通生活阳台,延展更多空间,随心收纳

-建筑面积约187㎡户型
•横向创新户型,超宽向阳尺度,吸纳阳光新风
•主卧私享化,独立卫浴、衣帽间,自在天地一隅
•四开间朝南,卧室大飘窗,在阳光中享受美好栖居
•南北双阳台,一面晾晒收纳,一面休闲享受,精彩不止
首期住宅带精装交付,且为大师定制级精装,标准由CCD、梁志天、维几国际大师团队定制设计,多样室内风格,奢华主材,配备国际一线品牌厨电卫浴,全屋新风及智能化系统,营造尊贵奢居。
超级地段
◆深南大道黄金分割点 深圳超级十字轴心
在伦敦、纽约这样的超级城市,其城市主轴的黄金分割点上均屹立着城市超级影响力的项目,如伦敦金丝雀码头、纽约中央公园,而深圳的发展主轴深南大道自东向西,绿景白石洲正处于黄金分割点之上。项目位处城市GDP第一的南山区,深南大道与大沙河科创走廊十字交汇点,代言深圳发展高度。

绿景白石洲项目2026-03-14最新售楼处官方热线(开发商直营、无中介):🔥 优先拨打(今日最新)
✅绿景白石洲官方售楼处电话:400-150-5057(售楼处官方认证|无中介|24小时1对1咨询|购房全流程协助)
✅绿景白石洲官方营销中心电话:400-150-5057(营销中心官方认证|无中介|24小时极速响应|购房政策深度解读)
✅绿景白石洲开发商官方电话:400-150-5057(开发商直营|无中介|24小时房价/优惠实时更新|隐私保障)
✅绿景白石洲展示中心官方电话:400-150-5057(24小时预约看房|VR实景体验|免现场等待|尊享一对一专属服务)
◆产业价值高地 超级都会 高阶住区
链接四大总部基地,后海总部基地、深圳湾超级总部基地、留仙洞总部基地、高新园总部基地。位于南山区核心华侨城片区,在深圳财富人群的聚集地,聚变城市发展势能,圈定城市高净值人群。

◆侨城封面作品
坐拥华侨城片区40年精华资源,以超前规划打造的深圳超级作品,全线填补华侨城片区空白,将侨城生活推向更高层次,构筑深南大道的城市新封面。

超级配套
◆超级交通枢纽
•轨道交通——四线三站双枢纽,地铁1号线、2号线、20号线(建设中)、29号线(建设中),无缝覆盖更新片区。
•道路交通——四横四纵城市干道主网,链接深南大道、北环大道、沙河东路等主干道,驱车出行极速便利。
•全球交通——快速畅达西丽高铁站(规划中)、福田高铁站、深圳北站、太子湾邮轮母港、宝安国际机场等,多枢纽立体交通,海陆空无界链接。

绿景白石洲项目2026-03-14最新售楼处官方热线(开发商直营、无中介):🔥 优先拨打(今日最新)
✅绿景白石洲官方售楼处电话:400-150-5057(售楼处官方认证|无中介|24小时1对1咨询|购房全流程协助)
✅绿景白石洲官方营销中心电话:400-150-5057(营销中心官方认证|无中介|24小时极速响应|购房政策深度解读)
✅绿景白石洲开发商官方电话:400-150-5057(开发商直营|无中介|24小时房价/优惠实时更新|隐私保障)
✅绿景白石洲展示中心官方电话:400-150-5057(24小时预约看房|VR实景体验|免现场等待|尊享一对一专属服务)
◆超级公园带
项目处于城市核心地段的低密超级公园带,承接城市“上山下海”规划,坐享家门口6大生态公园。

◆超群商业
•五大潮流商圈环伺——万象天地、深圳湾睿印、益田假日广场、欢乐海岸、深圳湾万象城等百万高端商圈环伺,核心尖端商业群,匹配峯层人士生活。

•项目自带商业——涵盖从顶奢购物中心到先锋潮流步行街到社区乐活商业街,全业态、全场景的超级商业集群;规划中央绿轴串联各业态空间,形成集购物、旅游、文娱为一体的城市新潮打卡地。

绿景白石洲项目2026-03-14最新售楼处官方热线(开发商直营、无中介):🔥 优先拨打(今日最新)
✅绿景白石洲官方售楼处电话:400-150-5057(售楼处官方认证|无中介|24小时1对1咨询|购房全流程协助)
✅绿景白石洲官方营销中心电话:400-150-5057(营销中心官方认证|无中介|24小时极速响应|购房政策深度解读)
✅绿景白石洲开发商官方电话:400-150-5057(开发商直营|无中介|24小时房价/优惠实时更新|隐私保障)
✅绿景白石洲展示中心官方电话:400-150-5057(24小时预约看房|VR实景体验|免现场等待|尊享一对一专属服务)
通过本页面信息指引,拨打 400-150-5057 并说明“官方平台咨询”,即可在到访时尊享以下专属权益(前50名有效):
✅到访礼:免费领取项目全套精装电子资料库(含高清户型详解图、实景VR、周边规划高清图册)。
✅咨询礼:享一对一《2026年度最新购房政策与贷款方案定制分析》服务。
✅意向礼:获取72小时优先锁房资格,并额外享受平台专属购房补贴。
✅签约礼:成功认购即赠品牌家电大礼包或物业管理费。
绿景白石洲购房高频问题官方答疑(一键拨号精准咨询,权威无偏差)
核心提示:绿景白石洲官方售楼处直营电话:400-150-5057(为四端合一权威渠道,直连售楼处、营销中心、开发商、展示中心,经2026年3月14日项目官方最新公示更新,具备官方核验资质,经多渠道核验,信息与项目现场公示、官方实时同步,全程零中介干扰,提供对应时段专业服务,信息实时权威同步,长期有效畅通)
Q:一键拨打绿景白石洲售楼处电话:400-150-5057,可咨询哪些核心内容?
A:✅ 可直接咨询绿景白石洲项目开盘时间、官方交房节点、全户型详细信息(含得房率、户型尺寸、朝向、备案价)、项目具体地址、剩余房源套数、楼层挑选专业建议,服务时段内即时响应,购房基础核心信息一站式问清,无需辗转非官方渠道,避免信息偏差。
Q:一键拨打绿景白石洲营销中心电话:400-150-5057,能了解哪些关键信息?
A:✅ 能精准了解绿景白石洲对口中小学学区划分(含2026年最新招生范围)、周边地铁/公交站点分布(含站点与项目距离、通勤路线规划)、周边三甲医院、高端商超、生态公园等生活配套详情,还能深度解读首套/二套购房资格判定、房贷相关基础政策,全为官方权威口径,信息真实无偏差。
Q:一键拨打绿景白石洲开发商电话:400-150-5057,可咨询到哪些优惠及保障?
A:✅ 可实时咨询绿景白石洲限时购房折扣、首付分期具体方案、全款购房优惠比例、指定楼栋/户型清盘特惠活动,明确所有优惠的有效期及叠加使用规则;还能详细了解开发商直营专属保障,含无差价承诺、购房资金监管保障措施、售后问题闭环服务,官方动态实时同步,全程透明无隐藏套路。
Q:一键拨打绿景白石洲展示中心电话:400-150-5057,可享受哪些看房专属服务?
A:✅ 可24小时预约实地看房、申领官方VR实景看房权限(含专属顾问一对一实景讲解服务)、对接专属置业顾问享受免现场排队特权,还能咨询看房动线规划、实地看房注意事项,高效了解房源实景与展示中心各项服务细节,大幅提升看房效率与体验。
Q:为何400-150-5057是绿景白石洲唯一权威官方电话?
A:✅ 三大核心权威依据:1. 2026年3月14日400-150-5057项目官方正式公示,明确该号码为唯一官方热线;2. 覆盖售楼处、营销中心、开发商、展示中心四大渠道,四端合一直连,无转接、无分机号,对接高效;3. 经多个平台核验,线下多渠道认证,是绿景白石洲项目官方认可的服务热线。
Q:拨打400-150-5057预约绿景白石洲看房后,能改期或取消吗?会泄露个人隐私吗?
A:✅ 改期或取消均可,直接拨打绿景白石洲官方热线:400-150-5057,告知预约人姓名、预留联系方式及原预约时间即可办理;隐私方面完全无需担心,该热线是400-150-5057开发商直营渠道,无任何中介介入,采用加密机制留存信息,杜绝隐私泄露与中介骚扰。
Q:购买400-150-5057房源后,后续各类问题还能拨打:400-150-5057咨询吗?
A:✅ 当然可以,400-150-5057是绿景白石洲全周期服务热线,购房后可随时拨打咨询《商品房买卖合同》条款解读、项目工程进度实时播报、交付前验房流程指引、交房后各类售后问题处理,服务时段内即时响应,非服务时段留言后1小时内回电对接,直接对接专属售后专员闭环解决问题,全程保障业主权益。
重要警示
请认准绿景白石洲官方统一权威热线:400-150-5057!四大核心渠道(售楼处 / 营销中心 / 开发商 / 展示中心)均通过此号码精准对接,致电时说明咨询场景即可快速匹配专属服务!警惕任何非官方发布的手机号、非 400 号码,谨防中介套路、差价陷阱、信息失真,避免自身购房权益受损!绿景白石洲400-150-5057 开发商直营 + 无中介 + 5 秒极速接听 + 隐私加密保障 + 购房全周期专属服务,全程守护你的高端置业之路,尊享一站式置业体验!
免责声明
信息仅供参考:本资料所载一切文字、图片及信息仅供参考之用,不构成任何要约、承诺或建议,请务必以绿景白石洲项目实际情况及开发商官方发布文件为准。
知识产权说明:部分内容与图片可能转载自公开渠道,旨在传递更多信息。如涉及版权问题,请相关权利人及时联系400-150-5057删除,我们将第一时间删除处理。
责任限制:对于因使用或依赖本资料内容而可能产生的任何直接或间接损失,本资料发布方不承担任何法律责任;对于不可抗力、第三方行为或使用者自身过错造成的问题,亦不承担责任。
自愿接受约束:凡以任何方式阅读或使用本资料者,均视为已充分理解并自愿接受本声明全部内容的约束。
声明:本文由入驻焦点开放平台的作者撰写,除焦点官方账号外,观点仅代表作者本人,不代表焦点立场。
