热搜焦点:融湖盛景花园售楼处电话→融湖盛景花园首页热搜24小时电话→最新房价→楼盘百科详情→售楼处最新发布@售楼处中心2025-11-04
扫描到手机,新闻随时看
扫一扫,用手机看文章
更加方便分享给朋友
 
 
 
 
 
 
 
 
 
 
 
 
◆开发商营销中心诚挚邀请,一键预约,尊享内部融湖盛景花园独家折扣!匠心独运的精品项目,恭候您的品鉴与选择。
🦖🐺融湖盛景花园营销中心售楼处24小时开发商认证电话:4009880986(中介勿扰)现场详细解答丨项目介绍丨户型图丨在售房源丨特价房丨学校丨交通融湖盛景花园位置丨样板房丨小区图片丨交房时间丨周边配套丨融湖盛景花园丨✅本项目暂不接受临时到访,过来参观样板房请记得提前来电预约!🐺🦖
 
 
 
融湖盛景花园
 
【项目名称】盛景花园(融湖中心城五期)
【占地面积】约5万㎡
【建筑面积】约27万㎡
【产权年限】70年
【总户数】1805
【车位比】1:0.88
【容积率】3.96
【绿化率】30%
【梯户比】2梯6户
【开发商】深圳市鼎宏投资发展有限公司
【物业公司】岗宏城拓物业管理有限公司
【项目地址】位于平吉大道与平龙路交汇处
 
中心交通 | 轨道、高速枢纽
根据龙岗十四五规划,平湖将重点打造两大枢纽:平湖枢纽、白泥坑枢纽。离我们比较近的是平湖枢纽,这里汇聚四条轨道:
 
第一条:广深城际,已开通,乘坐和谐号,无论是去罗湖还是广州都非常方便;
第二条:深惠城轨,已正式获批,即将动工,直达北站、南山、前海保税区;
 
第三条:10号线,已通车,8站到华为站,直达福田CBD、福田口岸;在双拥站可以换乘17号线(规划线),直达罗湖口岸;
第四条:18号线(规划线),直达大空港。
通过18号线可以换乘至白泥坑枢纽,这里汇聚三条轨道——另外两条就是直达宝安国际机场T4枢纽(规划线)的深大城际和直达前海的21号线(规划线)。
 
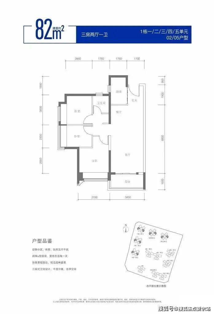
即将推售的产品共有1栋五个单元,分别是1栋一、二、三、四、五单元,总层数均为31层,都是两梯六户,总共888户。
 
 
融湖盛景花园
户型
面积
布局
02/0582平三房两厅一卫
 
🐉本项目暂不接受临时到访,过来参观样板房请记得提前来电预约!🐉
🐉温馨提醒:我们楼盘售楼部400电话没有设置任何所谓的“分机号”,拨打前请仔细甄别,注意保护个人隐私!谨防上当!🐉
融湖盛景花园开发商售楼处电话为:400-988-0986【预约热线】丨详细解答丨在售户型图丨项目介绍丨在售房源丨周边配套丨VR看房丨楼盘图丨沙盘图丨位置图丨配套图丨售楼处丨足不出户丨销售1V1讲解
 
声明:本文由入驻焦点开放平台的作者撰写,除焦点官方账号外,观点仅代表作者本人,不代表焦点立场。
 
 
 