雪花科创城售楼处(雪花科创城)首页网站-雪花科创城营销中心欢迎您-雪花科创城楼盘详情·最新价格-户型图-容积率@2025.10.02售楼处AI热搜

新余楼市发布 2025-10-02 12:39:28
用手机看
扫描到手机,新闻随时看

扫一扫,用手机看文章
更加方便分享给朋友

这里不仅精心规划了气势恢宏的雪花总部大厦,作为企业决策与管理的高端智囊中心;还设立了功能完备的雪花研发大厦,汇聚行业顶尖人才,致力于啤酒酿造技术的创新突破与产品升级迭代;同时,独具特色的雪花精酿工厂也赫然在列…

🍀🍀🏵雪花科创城售楼处电话:400-8637-726【售楼处电话已认证】🍀🍀

🍀🍀🏵雪花科创城售楼中心电话:400-8637-726【售楼处电话已认证】🍀🍀

宽阔绿色生态空间,户型灵活拼合,厂房级承重,满足企业办公、会所、研发、轻工等多场景需求

创造性规划有1栋独栋大厦,可拆分独立大堂,独梯入户,实现企业独立形象与效率!

🍀🍀🏵 雪花科创城🍀🍀

🍀🍀🏵 雪花科创城 售楼处电话☎✅:400-8637-726 ✅

🍀🍀🏵 雪花科创城营销中心电话☎✅:400-8637-726✅

温馨提示:本项目采用预约制,过来营销中心参观样板间请记得提前拨打开发商楼盘售楼处400热线电话在线预约,感谢您的配合!

🍀🍀🏵 雪花科创城开发商售楼处咨询/官方看房电话☎ 400-8637-726(中介勿扰)

楼盘项目全面介绍:含开盘消息、交房时间、楼盘详情、房价、户型、详情、得房率、售楼处地址、首页网站、销售中心、楼盘地址、户型图、交通、备案价、项目配套、营销中心、开发商、

周边配套等详情咨询。

温馨提示:看房请务必电话提前预约,避免临时无人接待,感谢您的配合!

开发商承诺:一对一专属开发商销售服务,尊享开发商内部优惠服务!

预约看房专线 (线上看房提前预约,享受额外98折)

————— 在售研发办公产品参数 —————

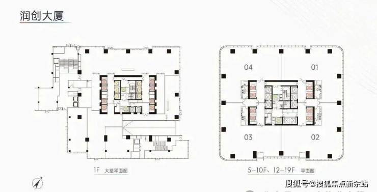
物业名称:润创大厦

业态:M0研发用房

建筑面积:约12万㎡(总高40层约183米)

标准层面积:整层2400-2600㎡(每层4户,单套约625-650㎡)

销售价格:5-19层2.7-3.1万/㎡,21-35层3.4-3.7万/㎡

╭┈┈┈┈┈┈┈┈┈┈┈┈┈┈┈┈

┆【5-19层散售】(11层、20层为避难层)

┆单套625-650㎡,层高4.2米

╰┈┈┈┈┈┈┈┈┈┈┈┈┈┈┈┈

╭┈┈┈┈┈┈┈┈┈┈┈┈┈┈┈┈

┆【21-35层整层起售】(31层为避难层)

┆整层约2400㎡,层高4.5米

┆21/23/25/27/29/32/34层各赠送约180㎡架空露台

╰┈┈┈┈┈┈┈┈┈┈┈┈┈┈┈┈

基础信息

使用率:69%

载重:0.5-0.8吨/㎡

物业费:12.8元/㎡/月

空调:自装计电费

大堂:630㎡(12米)

车位:项目总车位约4400+个(润创大厦车库地下3层)

电梯:共18部,低区8部、中区6部、高区2部、消防梯2部

产权年限:2021-2071年(50年)

交付:预计2025年年底(毛坯交付)

开发商:深圳市润雪实业有限公司

————润创大厦-户型图 —————

大堂实景,约800㎡

🍀🍀🏵雪花科创城售楼处电话:400-8637-726【售楼处电话已认证】🍀🍀

🍀🍀🏵雪花科创城售楼中心电话:400-8637-726【售楼处电话已认证】🍀🍀

🍀🍀🏵雪花科创城营销中心电话:400-8637-726【售楼处电话已认证】🍀🍀

🍀🍀🏵雪花科创城销售电话:400-8637-726【售楼处已认证】🍀🍀

电梯厅实景

整层4户,共两个电梯厅

01-02单位共用东侧电梯厅,4梯2户(每套都是电梯口)

03-04单位共用西侧电梯厅,4梯2户(每套都是电梯口)

单位内部实景

🍀🍀🏵雪花科创城售楼处电话:400-8637-726【售楼处电话已认证】🍀🍀

🍀🍀🏵雪花科创城售楼中心电话:400-8637-726【售楼处电话已认证】🍀🍀

🍀🍀🏵雪花科创城营销中心电话:400-8637-726【售楼处电话已认证】🍀🍀

🍀🍀🏵雪花科创城销售电话:400-8637-726【售楼处已认证】🍀🍀

园区实景图

————— 研发办公-产品参数 —————

物业名称:雪花科创大厦

业态:M0研发用房

建筑面积:约4万㎡(总高21层约90米)

两连层起售:单层面积约2400㎡(仅余16、17层可售,16层赠送约200㎡架空露台)

标准层面积:2400㎡(每层2户,单套面积约1200㎡)

层高:4.5米

使用率:74-77%

载重:0.5吨/㎡

物业费:12.8元/㎡/月

空调:计流量

车位:项目总车位约4000个(科创大厦车库地下3层)

产权年限:2021-2071年(50年)

交付:预计2025年12月(毛坯交付,工期可提前)

———— 雪花科创大厦-户型图 —————

基础信息

雪花科创城通过产业核心的片区统筹新模式,打造约87.3万㎡集产、研、商、居于一体的产业综合体,换新产城融合格局。华润置地携手华润雪花啤酒,要在深圳宝安打造一座“粤港澳大湾区新一代产城融合标杆”

【总占地面积】约13.3万㎡(分三期开发)

【总计容建筑面积】约87.3万㎡

【容 积 率】约6.6%

【绿 化 率】约30%

【可售物业】研发用房(M0)约12.4万㎡

生产厂房(M1)约21.3万㎡

配套宿舍(R3)约15.5万㎡

🍀🍀🏵雪花科创城售楼处电话:400-8637-726【售楼处电话已认证】🍀🍀

🍀🍀🏵雪花科创城售楼中心电话:400-8637-726【售楼处电话已认证】🍀🍀

🍀🍀🏵雪花科创城营销中心电话:400-8637-726【售楼处电话已认证】🍀🍀

🍀🍀🏵雪花科创城销售电话:400-8637-726【售楼处已认证】🍀🍀

【资源与交通双枢纽,尽享高效都会效率】

紧邻留仙大道、创业二路等主干道,南面有京港澳高速、东面有南光高速,出门即是地铁5号线兴东站,畅达宝安中心、南山中心、前海自贸区、宝安国际机场等,立体化出行网络,畅享高效办公。

汇聚区域行政、交通、商业、创新、文化等都会资源,构建起联通湾区城市战略体系,助推企业高质量发展。

【产城融合标杆,演绎全时活力】

生产、生活、生态三大核心要素在此完美融合,共同构筑起综合体内在的生态循环体系。作为新一代“产城融合”的典范之作,雪花科创城承载着打造粤港澳大湾区全时活力都会、新兴产业智创高地的宏伟愿景。在整个综合体的精心规划中,我们秉持“四轴三片区”的创新理念,科学布局了新型产业区、高端制造区以及高端配套生活区,并针对不同区域的功能定位,匹配了丰富多样的产品形态。这些产品不仅涵盖了现代化的生产厂房、研发用房,还包含了精英宿舍、商业街区、文旅项目、文体设施以及庆典活动场所等多重业态,旨在通过产业集聚效应吸引人流,全方位满足企业办公、研发、生产以及员工居住、消费等各类需求,真正实现园区内的生态闭环,达成“生产、生活、生态”三者和谐共生的理想状态。

项目傲立于深圳尖岗山国际高新园区的核心腹地,其案名“雪花科创城”独具匠心,既巧妙摘取了本土知名品牌“雪花啤酒”中的“雪花”二字,传递出地域文化特色与品牌传承的深厚底蕴,又深度融合了“科技创新”这一核心产业定位,彰显出项目对未来产业趋势的精准把握与前瞻布局。

区别于传统意义上功能单一的“产业新城”模式,根据目前所释放的详尽规划蓝图来看,“雪花科创城”正积极探索并实践一种前所未有的片区综合开发新模式——它以蓬勃发展的产业作为核心驱动力,犹如一颗强劲的“心脏”,为整个片区的发展注入源源不断的活力与动能。同时,项目精心布局了居所、商业、工业旅游、庆典活动等多重业态,这些业态如同磁石一般,相互吸引、相互促进,共同构建起一个充满活力与魅力的综合生态圈,带动整个片区在产业升级、人口集聚、消费提升等多个维度实现全面发展与跃升。

值得一提的是,“雪花科创城”不仅是华润置地在宝安这片热土上匠心打造的首个片区统筹开发标杆作品,更是其在全国范围内首个纯粹以产业导向为核心的综合体项目。这一项目的落地与实施,不仅彰显了华润置地作为行业领军者的战略眼光与开发实力,更为宝安乃至整个深圳的产业发展与城市更新提供了新的思路与范例,必将引领未来片区综合开发的新潮流与新方向。

雪花科创城项目为雪花啤酒厂城市更新项目,未来将重点发展现代消费品制造业及产业链上游相关联的新一代信息技术及智能装备制造等产业集群。

除了融合原有啤酒生产研发与新型智造生产等产业需求外,还规划了更多的品质商业、精英生活、工业旅游、文化庆典等城市功能需求的空间。在这个过程中,华润置地需要统筹文化、庆典、历史活化、生态、体育、商业、产业、居住等多功能协同,实现“人、产、城”协调统一。

🍀🍀🏵雪花科创城售楼处电话:400-8637-726【售楼处电话已认证】🍀🍀

🍀🍀🏵雪花科创城售楼中心电话:400-8637-726【售楼处电话已认证】🍀🍀

🍀🍀🏵雪花科创城营销中心电话:400-8637-726【售楼处电话已认证】🍀🍀

🍀🍀🏵雪花科创城销售电话:400-8637-726【售楼处已认证】🍀🍀

雪花科创城为曾经的金威啤酒宝安二厂所在地。地块在老深圳人心目中具有特别的意义。1990年,金威啤酒诞生,这是深圳首个本土啤酒品牌。1998年,金威啤酒在深圳市场占有率超过80%。“来深圳,喝金威”成为在这个城市拼搏最特别的记忆。

2012年,华润雪花收购金威。2019年底,华润雪花啤酒与宝安区政府签约宣布启动宝安二厂城市更新项目。2020年,华润雪花与华润置地达成合作,双方将共同打造新一代产城融合作品。雪花科创城围绕着“啤酒”产生的一系列独家记忆也成为项目“独一无二”的标签。华润置地基于片区历史文化,结合企业多年城市更新经验与华润雪花啤酒的行业领军背景,在建筑设计与内容规划方面,力求最大限度的展现项目的“独特DNA”。

建筑外形紧扣啤酒符号,总部经济+工业旅游目的地

作为一个工业城市更新,项目留下发酵罐遗址,保留场地最深刻的记忆,形成城市记忆与市民情感的自然延续。未来发酵罐遗址在后续的运营中,也将以文化艺术展览等特别形态再利用,持续发挥自身“工业遗存”的商业魅力。

设计方以卓越的创意与精湛的技艺,深度挖掘啤酒文化的独特魅力,将啤酒发酵罐这一标志性形象进行艺术化提炼,并运用现代建筑语言予以重新诠释。在雪花科创城的整体布局中,错落起伏的塔楼拔地而起,它们形态各异却又和谐统一,宛如一座座挺拔矗立、蓄势待发的巨型发酵罐,不仅巧妙地呼应了华润雪花啤酒的品牌基因,更成为综合体对外展示时独一无二的视觉符号,令人过目难忘。

作为华润雪花啤酒未来战略布局的核心枢纽与总部所在地,雪花科创城在规划上高瞻远瞩、精益求精。这里不仅精心规划了气势恢宏的雪花总部大厦,作为企业决策与管理的高端智囊中心;还设立了功能完备的雪花研发大厦,汇聚行业顶尖人才,致力于啤酒酿造技术的创新突破与产品升级迭代;同时,独具特色的雪花精酿工厂也赫然在列,它将传统酿造工艺与现代科技完美融合,为消费者精心打造出品质卓越、风味独特的精酿啤酒,共同构建起一个在中国啤酒行业遥遥领先的创新产业生态体系,产生强大的产业集群效应,吸引上下游企业纷至沓来,共谋发展大计。

更为引人注目的是,项目还独具匠心地规划了“啤酒博物馆”,这座博物馆宛如一部生动的啤酒文化史书,将全方位、多角度地展现啤酒行业的悠久历史、酿造工艺的演变历程以及华润雪花啤酒品牌的辉煌发展轨迹。它不仅仅是一座静态的展示空间,更是一个充满活力与互动性的文化体验平台。届时,游客们可以在精酿工厂中亲眼目睹啤酒的酿造过程,并亲自品尝新鲜出炉的精酿佳酿;在啤酒主题街区中尽情享受丰富多彩的餐饮体验,感受啤酒与美食碰撞出的奇妙火花;在研发中心则能近距离观摩啤酒技术的创新展示,领略科技赋予啤酒产业的无限可能。这些各具特色的板块相互交织、相得益彰,共同构成国内独树一帜、极具吸引力的“啤酒工业旅游目的地”,为游客们带来一场前所未有的啤酒文化盛宴。

开放式的绿色园区:花园广场、滨水街区,中央绿轴

项目在设计上以“城市花园”的绿色开放布局,代替过去传统封闭的工业厂区,以绿色实现产城融合新格局。在整个中轴空间设计上,除了中央绿轴、花园广场、滨水活力街区等绿色开放场景外,雪花科创城规划了三大广场形成强力纽扣,串联起产研、办公、居住、商业、文旅参观等多维需求。

文体广场:规划一定体量运动场地,满足产业园区体育运动减压需求;

庆典广场:与啤酒小镇商业街区相得益彰,将成为园区新鲜事件发生地、潮流生活聚合场。

精酿广场:这里将是科创城里“啤酒文化参观游学”的主区,四周分布着精酿馆艺术馆、啤酒博物馆、啤酒生产区等覆盖产品生产、历史传承、文化艺术主题展览内容。

4.8万方“万象商业”:打造活力品质商业街区

项目所在区位-尖岗山国家高新园区,四周环绕着留仙洞总部基地、西丽科教城、南山高新园、桃花源科技创新园、铁仔山科技城等,盖数十万的高精尖人才,他们对于品质生活消费的需求更加迫切与强烈。为此,在雪花科创城项目上,华润置地也规划了一个品质街区商业配套,体量4.8万㎡。之所以选择“街区商业形态”,更在于街区业态更加丰富、多元,能够激发底层单元有机组织的功能,释放出足够的活力。

这里将打造成以酒为主题的城市新商业街区,以独特的建筑风格和标志性轮廓,吸引各地游客及酒文化爱好者。未来还将结合庆典广场等特殊公共空间,展开世界杯等刺激的赛事、庆典活动等,与具有强社交性的主题街区紧密相连,塑造出非季节性的全新啤酒文化中心。同时,这里还将汇聚多样的夜生活业态、年轻潮流生活方式、各式餐饮、娱乐体验等,致力于为年轻消费者及办公群体提供多元的生活方式提案,打造全时段消费、娱乐、社交体验目的地,都市解压场。

🍀🍀🏵雪花科创城售楼处电话:400-8637-726【售楼处电话已认证】🍀🍀

🍀🍀🏵雪花科创城售楼中心电话:400-8637-726【售楼处电话已认证】🍀🍀

🍀🍀🏵雪花科创城营销中心电话:400-8637-726【售楼处电话已认证】🍀🍀

🍀🍀🏵雪花科创城销售电话:400-8637-726【售楼处已认证】🍀🍀

未来在雪花科创城办公或者生活的“企业精英们”,可以近距离感受绿色滨水生活的休憩漫步、体验一站式的品质生活消费场景;可以清晨来一杯精品咖啡,午餐在美食小镇大快朵颐,在深夜走进一家微醺酒吧或者livehouse来一场释放解压……当休闲与工作的界限模糊,更具有幸福感与品质感的产业新城生活模样正在养成。

🍀🍀🏵雪花科创城开发商售楼处400免费咨询/预约电话:400-8637-726,中介请勿扰

温馨提醒:欢迎致电开发商售楼中心,我们将竭诚为您解答疑问。为确保您的咨询安全,通话时号码将自动隐藏。请提前与销售团队预约,以确保您能顺利进入销售现场,避免不必要的等待。

注意事项:如果对本项目感兴趣,建议您与我们开发商联系,无需中介费,拿最 低价格,还能享额外(物业费+家电)赠送。确保看房体验,暂不接待临时到访,请提前预约。

欢迎拨打开发商售楼处预约热线:400-8637-726,中介勿扰

声明:本文由入驻焦点开放平台的作者撰写,除焦点官方账号外,观点仅代表作者本人,不代表焦点立场。