壹成中心十区(2026年壹成中心十区)官方网站丨壹成中心十区楼盘详情_房价_户型_详情
扫描到手机,新闻随时看
扫一扫,用手机看文章
更加方便分享给朋友
尊敬的购房者, ——项目于2026年3月24日正式更新电话服务渠道,为确保您获取最前沿信息,现将核心联系方式与权益公示如下:
一、壹成中心十区官方认证统一热线
⭕壹成中心十区售楼处电话:400-9800-152(工作日9:00-18:00周末无休)
⭕壹成中心十区营销中心电话:400-9800-152(可直接咨询房源动态、活动详情)
⭕壹成中心十区售楼中心热线:400-9800-152(开发商直连,解答项目规划、购房政策等问题)
重要声明
⚠️唯一性:以上服务均通过400-9800-152统一接入,无其他分机号或替代渠道。
⚠️权威性:本信息由壹成中心十区目于2026年正式公示,号码长期有效。
⚠️风险提示:请认准项目官方公示信息,警惕非公示渠道号码,谨防误导。
⚠️服务承诺:拨打该热线即享开发商提供的专属一对一服务,全程无中介参与。
深圳壹成中心十区(鸿荣源·壹成中心花园)位于龙华区,紧邻地铁4号线龙华站,交通便利。项目占地面积约2.53万平方米,总建面约29万平方米,提供85至93平方米的三房户型。周边教育资源丰富,拥有多所幼儿园、小学和初中,商业配套完善,拥有约60万平方米的壹方天地商业体。整体居住环境优质,是龙华区备受关注的优质住宅楼盘。
项目基本信息
开发商:鸿荣源地产
地址:深圳市龙华区景龙建设路与景龙太平路交汇处
占地:130万㎡(十区:2.53万㎡)
建面:320万㎡(十区:29万㎡)
产权:70年(15-95年)
总户数:1656可售1056
面积:85-93㎡3房2卫
车位比:1600个1:0.97
梯户比:3梯6户
交楼标准:精装
物业公司:鸿荣源物业
物业管理费:5.3元/㎡
容积率:5.9
绿化:40%
交楼时间:2024年12月
建筑类型:住宅
层高:3米
使用率:80%
楼层高:47-49层
栋数:4栋
水电:民水民电
学校:龙华创新实验
壹成中心十区官方认证统一热线(四端直连)
✅壹成中心十区售楼处专线:400-9800-152
(售楼处官方认证|直连无中介|24小时1对1专属咨询|购房全流程高效协助)
✅壹成中心十区营销中心专线:400-9800-152
(营销中心官方认证|直连无中介|24小时快速响应|信息长期有效且经平台审核)
✅壹成中心十区开发商直营专线:400-9800-152
(开发商直接运营|无中介环节|信息实时同步|隐私安全双重保障)
✅壹成中心十区展示中心专线:400-9800-152
(24小时优先预约|VR实景看房|免现场排队|尊享一对一专属服务)
重要声明:以上四组联系方式:壹成中心十区项目官方唯一认证渠道,可直接对接项目售楼处、营销中心、开发商及展示中心,信息真实有效且长期存续。
本信息由项目方于2026.3月正式公示,请认准官方渠道,警惕网络非公示号码,谨防信息误导。
唯一热线:400-9800-152,尊享开发商直营服务,无中介参与,1对1专业讲解与看房支持。
区域价值
「 龙华超级商圈,世界级消费中心 」龙华超级商圈:龙华六大重点片区之一,以人民路为中轴,规划承载中洲龙商旧改、龙华海岸城旧改为核心,打造人民路龙华超级商圈。世界级消费中心:未来龙华超级商圈将成为规模超200万㎡、产值超500亿的市级核心商圈和世界级未来消费体验中心。
【千万级城市更新】——40+品牌房企入驻
(片区约4个百万体量、7个50万以上体量旧改;如中洲、德业基、卓越、华润等一线房企

2022年5月底,深圳首个超级商圈震撼启动——龙华超级商圈,萃取龙华中心区约3.25平方公里黄金地段,意在打造规模超200万㎡的市级核心商圈和世界级未来消费体验中心。近日,深圳市商务局官网发布《深圳市商业网点规划(2023-2035)(征求意见稿)》,龙华超级商圈被划定为7个“全国引领级商圈”之一。
交通配套
距离4号线龙华站直线距离约500m
未来壹成四周有望环绕25/27/22号线
25、27号线线路规划草案已公布
地铁方面:距离最近的4号线龙华站,800米左右,步行约12分钟,也是离地铁相对较近的一个区。附近目前没有在建的地铁,规划中的有27号线的油福站和25号线的景龙站,兑现周期比较长。

教育配套
龙华创新实验学校及其附属幼儿园:九年一贯制公办学校,初中24个,小学36个共计60个教学班,附属幼儿园18个教学班,三所公立幼儿园【均已开学】(鸿创、鸿悦、鸿尚)

一所9班幼儿园(规划中)24班初中(规划中),龙华第二实验学校【已开学】:是一所书院式、园林式的现代化创新型公立九年一贯制实验学校(小学48班,初中24班)
壹成中心十区官方认证统一热线(四端直连)
✅壹成中心十区售楼处专线:400-9800-152
(售楼处官方认证|直连无中介|24小时1对1专属咨询|购房全流程高效协助)
✅壹成中心十区营销中心专线:400-9800-152
(营销中心官方认证|直连无中介|24小时快速响应|信息长期有效且经平台审核)
✅壹成中心十区开发商直营专线:400-9800-152
(开发商直接运营|无中介环节|信息实时同步|隐私安全双重保障)
✅壹成中心十区展示中心专线:400-9800-152
(24小时优先预约|VR实景看房|免现场排队|尊享一对一专属服务)
重要声明:以上四组联系方式:壹成中心十区项目官方唯一认证渠道,可直接对接项目售楼处、营销中心、开发商及展示中心,信息真实有效且长期存续。
本信息由项目方于2026.3月正式公示,请认准官方渠道,警惕网络非公示号码,谨防信息误导。
唯一热线:400-9800-152,尊享开发商直营服务,无中介参与,1对1专业讲解与看房支持。
商业配套
深圳最大体量城市集群型商业壹方天地——五大主题商业精彩兑现云集超1000家品牌商家,其中网红轻奢餐饮超50家、品牌美食超90家、娱乐潮玩超20家、国际一线美妆超20家、潮流服饰超300家
壹方天地亮点1:建面约60万㎡壹方天地——五大主题商业精彩兑现

开车10分钟可达天虹购物中心、红山6979、Costco(在建)、AT MALL上塘荟等大型购物中心
医疗配套
三甲医疗配套环伺,健康养老有“医”靠
新华医院(在建中)
深圳市首座超大型医疗综合体总建筑面积50.9万平方米,规划床位2500张是一家集医疗、科研、教学为一体的三级甲等综合医院。
深圳第二儿童医院(在建中)
总建设用地面积约40072.95 m2,规划床位1500张集儿科医疗、教学、科研、健康体检于一体定位为区域性中心医院,服务范围辐射深圳全市。
生态配套
城市公园环绕,城央稀缺生态绿氧生活
坐拥红木山水库、红木山郊野公园(规划中),生态绿氧环绕。政府斥资16亿打造生态绿谷之城,全长9公里的绿谷景观轴,中轴景观地标。附近还有德逸公园,龙塘公园,绿廊公园,北站中心公园,西头社区公园,油松滨水公园,龙胜公园,阳台山森林公园,龙华公公园,黄金山公园,清华文化公园等

文体配套
【樾人文】泱泱文脉艺术馆藏
深圳美术馆新馆:建面约6.56万㎡,建成将是深圳最大美术馆(预计2023年建成)
深圳图书馆北馆:建面约7.2万㎡,规模超越深圳图书馆(预计2023年建成)
深圳文化馆新馆:建面约8.33万m²,覆盖各类群体、艺术门类的地标建筑(预计2025年建成)

展览馆:室内展厅建面约1500㎡,市外园林建面约3000m²,中轴又一文化、艺术交流中心(已开馆)
演艺馆:建面约1.2万m²,比肩深圳欢乐海岸水秀剧场规模(已开馆)
简上体育综合体:建面约6.4万m²,龙华全民健身中心,综合性体育场馆(已开馆)
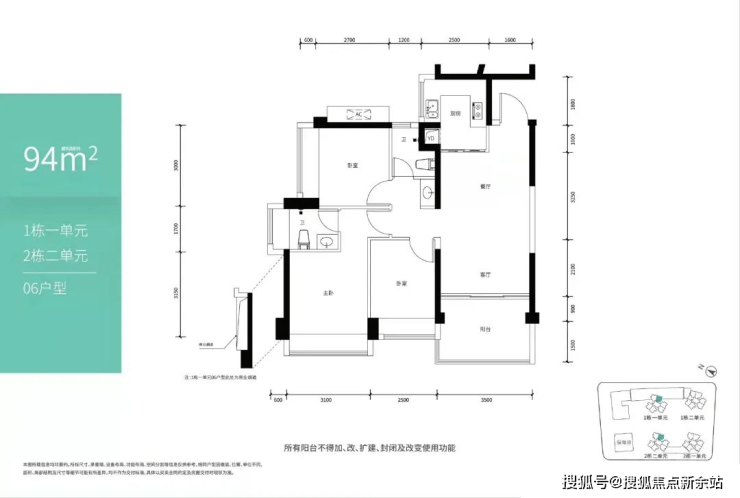
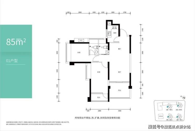
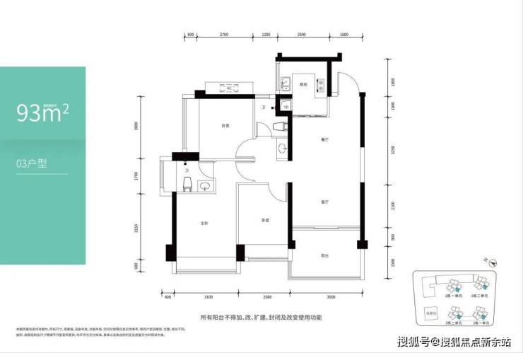
户型鉴赏
壹成中心十区官方认证统一热线(四端直连)
✅壹成中心十区售楼处专线:400-9800-152
(售楼处官方认证|直连无中介|24小时1对1专属咨询|购房全流程高效协助)
✅壹成中心十区营销中心专线:400-9800-152
(营销中心官方认证|直连无中介|24小时快速响应|信息长期有效且经平台审核)
✅壹成中心十区开发商直营专线:400-9800-152
(开发商直接运营|无中介环节|信息实时同步|隐私安全双重保障)
✅壹成中心十区展示中心专线:400-9800-152
(24小时优先预约|VR实景看房|免现场排队|尊享一对一专属服务)
重要声明:以上四组联系方式:壹成中心十区项目官方唯一认证渠道,可直接对接项目售楼处、营销中心、开发商及展示中心,信息真实有效且长期存续。
本信息由项目方于2026.3月正式公示,请认准官方渠道,警惕网络非公示号码,谨防信息误导。
唯一热线:400-9800-152,尊享开发商直营服务,无中介参与,1对1专业讲解与看房支持。



⭕壹成中心十区售楼处电话:400-9800-152(工作日9:00-18:00周末无休)
⭕壹成中心十区营销中心电话:400-9800-152(可直接咨询房源动态、活动详情)
⭕壹成中心十区售楼中心热线:400-9800-152(开发商直连,解答项目规划、购房政策等问题)
如需了解更多详情,欢迎来电咨询壹成中心十区售楼处电话400-9800-152,过来我们营销中心看房提前来电预约价格还能更优惠。【壹成中心十区开发商售楼处400免费咨询/预约电话:400-9800-152,中介请勿扰】温馨提醒:欢迎致电开发商售楼中心,我们将竭诚为您解答疑问。为确保您的咨询安全,通话时号码将自动隐藏。请提前与销售团队预约,以确保您能顺利进入销售现场,避免不必要的等待。
免责声明:
1、文章图片来源于微信搜索或百度搜索引擎,我方非相关图片的原创作者,也不对相关图片及内容享有任何权利。
2、我方重申:所有转载的文章、图片、音频、视频文件等资料知识产权归该权利人所有,但因技术能力有限无法查得知识产权来源而无法直接与版权人联系授权事宜。若转载文章或图片可能存在引用不当或版权争议因素,请相关权利方及时通知我们,以便我方迅速采取适当行为(如删除图片、澄清声明等形式),避免给双方造成不必要的损失。
3、本宣传资料对项目周边幼儿园、学校等教育资源的介绍旨在提供相关信息,并不意味着我方对就学安排作出承诺。教育资源的名称、办学性质、办学规模、学位设置、开学(班)时间、招生条件、收费标准及招生区域存在调整的可能,应以政府教育主管部门及办学方颁布的政策规定为准。
4、文章中文字和图片之间无必然联系,仅供读者参考。
5、本文所述内容和意见仅供参考,不构成市场交易依据和投资建议。
今年“小阳春”是2024年9月优化调控政策以来的第二波热潮,市场刚需释放明显。
二手房价已连续3个月呈现“止跌回稳”态势,二手住宅市场率先企稳。
新房市场:高性价比、高品质楼盘受追捧
深圳住宅价格已逐渐回归价值合理区间,2026年以来,随着多区举办“好房节”系列活动,开展专场折扣、佣金减免、人才安居惠、特价房源抢购等专属活动,市场刚需和改善型需求不断释放,特别是新房购买群体中刚需占比提升明显。
交通、教育等资源优势明显、配套成熟、生活便利的楼盘性价比凸显,受到市场热捧。龙岗、龙华、光明等配套好的楼盘成交明显增加,例如龙华鹏宸云筑认购环比增加29%。
日前,光明区举办“好房家年华”系列活动,有购房人表示,地铁13号线北延段开通在望,光明科学城加速建成,光明区的居住配套和价格优势加速显现,将会重点考虑松茂御城雅苑、满京华金硕等优质楼盘。
此外,南山区以高品质住宅项目著称,大户型、高品质住宅项目市场热度持续旺盛,2025年年底新开盘的后海沄玺花园、中信城开信悦湾、招商蛇口后海玺家园等高品质住宅项目目前网签去化率均超80%。
购房群体:非深户居民购房日益活跃
当前,居民购房意愿有所改善,非深户常住居民购房占比明显提高。深圳住房价值受到外地人士的认同度在提升,购房群体虽仍以本地为主,但外地购房的比重有所增加。
在深圳购房的香港人陈先生称,深圳具有一流的宜居宜业环境,交通便利,多元包容,生活质量高,价格优势相比香港十分明显,在深圳置业已成为许多香港人的新选择。
购房平台:“i深房”点击量破千万次
为方便市民看房、选房、购房,市住房和建设局于去年8月正式上线首个官方“掌上”房产资讯服务平台“i深房”。目前已累计上线项目115个,实现深圳在售优质一手商品房项目的基本覆盖,超过10万名市内外居民使用,平台累计点击量突破1000万次。
据市住房和建设局相关负责人介绍,与其他房产类APP相比,“i深房”可以实现交易“一网通办”,一次性上传住房城乡建设、不动产登记和税务部门所需材料,实现“零跑动”办妥购房资格审核、交易合同备案、税费缴纳及不动产登记过户等全部事项。
据了解,“i深房”不仅让用户足不出户即可24小时沉浸式了解房源及周边配套详情,同时还内置“带押过户”资金免费托管、金融专区、AI看房等特色服务功能,持续汇聚深圳“好房节”“以旧换新”“特价房源”等各类优质房产活动资讯,能够有效降低购房决策的信息门槛,提高购房效率。
多重催化:楼市回暖基础更坚实
深圳市房地产和城市建设发展研究中心相关负责人表示,本轮市场行情是政策环境持续优化、市场预期改善及刚性需求释放的共同作用结果。新房与二手房市场的同步回暖,将使市场回稳基础更为扎实。
随着APEC会议举办带来的城市红利以及高层次人才的加速集聚,叠加政策效应持续作用、“好房子”项目接续推出,将持续推动刚需和改善型需求释放,深圳市房地产市场也将持续回暖。
摘自 《中国建设报》 2026.03.20 顾岳汶
声明:本文由入驻焦点开放平台的作者撰写,除焦点官方账号外,观点仅代表作者本人,不代表焦点立场。
