金洪名筑(金洪名筑售楼处)首页网站-金洪名筑销售中心(售楼处)售楼处电话-电话地址-价格-户型-小区环境-楼盘详情-交房时间-周边配套
扫描到手机,新闻随时看
扫一扫,用手机看文章
更加方便分享给朋友
金洪名筑项目联系方式(2025年最新)
重要提醒
1,预约制要求
因近期看房客户较多,项目采取预约制,需提前拨打400-836-6879进行线上预约,避免临时到访无法接待。
2,实地考察建议
若选择线下看房,需注意:非预约客户可能被安保拦截,建议提前通过售楼处电话400-836-6879确认行程。
✨✨金洪名筑售楼处电话:400-836-6879(工作日9:00-21:00,周末无休)
✨✨金洪名筑营销中心电话:400-836-6879(可直接咨询房源动态、活动详情)
✨✨金洪名筑开发商电话:400-861-9050开发商直(连,解答项目规划、购房政策等问题)
⚡️深中为邻,双优学府圈
⚡️下楼即享14万方商业MALL,3公里6大商圈环伺
⚡️约100米地铁6号线长圳站,6站进南山,7站深圳北
⚡️立体交通枢纽,3分钟外环高速,快速接驳南光/龙大高速
⚡️名校+地铁+商业+公园+医疗+产品全优六边形项目
⚡️精质工艺,装修交付,户户赠送空调!

平面图和户型图
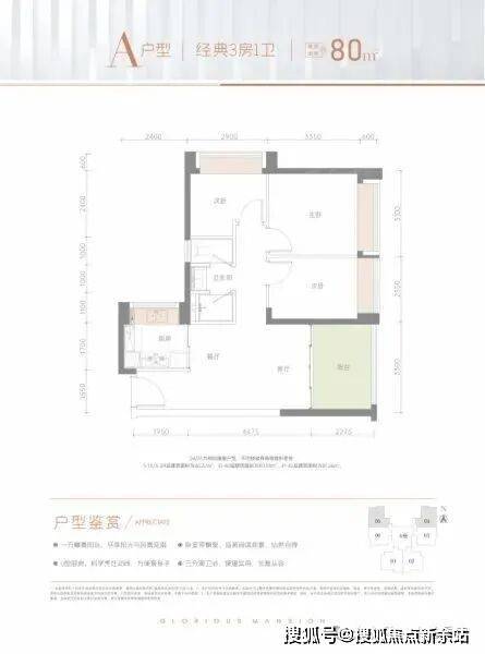
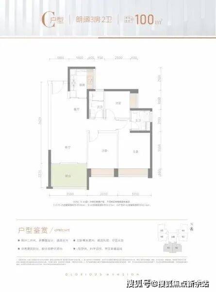
金洪名筑的户型包括64㎡两房两厅一卫、80㎡三房两厅一卫、88㎡三房两厅两卫和100㎡三房两厅两卫。
项目户型还是很不错的,户型方正,使用率高,64㎡做两房,80㎡做三房,64平米小两房户型是片区稍有的两房产品,总价低,适合刚需客户。
64㎡的2房2厅1卫,该户型房源不多,仅1栋A座03户型才有,竖厅格局,LDKB一体化设计,双卧室朝南,次卧双飘窗设计,U型厨房,卫生间干湿分离,阳台朝正西向。
80㎡的3房2厅1卫,1栋A座04/05户型,竖厅格局,LDKB一体化,动静分区,次卧双飘窗设计,U型厨房,卫生间干湿分离,阳台朝正西或正东向。
✨✨金洪名筑售楼处电话:400-836-6879(工作日9:00-21:00,周末无休)
✨✨金洪名筑营销中心电话:400-836-6879(可直接咨询房源动态、活动详情)
✨✨金洪名筑开发商电话:400-861-9050开发商直(连,解答项目规划、购房政策等问题)
88㎡的3房2厅2卫,1栋A座06户型,竖厅格局,LDKB一体化设计,动静分区,三个卧室都朝南向,U型厨房,公卫三段式分离,阳台正东朝向。
100㎡的3房2厅2卫,1栋A座01/02户型,设计的是竖厅格局,LDKB一体化,动静分区,三开间朝南,U型厨房,卫生间干湿分离,阳台正南朝向。
项目简介
金洪名筑位于光明区凤凰街道,光侨路与东长路交汇处东北侧,距离地铁6号线长圳站约200米,紧邻深铁瑞城,东侧为长圳地铁站,北侧为深圳中学光明科学城学校。

金洪名筑属于凤凰城板块,不过是在长圳片区,是凤凰城南部的边缘区域,片区多为工业区,当前城市面貌一般,还有不少安居房项目。
凤凰城是光明发展最好、配套最完善的区域。这里聚集了光明最宜居的生态资源和优质的生活配套,就像龙岗的大运和龙华的红山。
片区既有万达广场、蓝鲸世界等大型商场,也有深中光明学校、光明中医院等配套资源,是光明最值得购买的区域。
✨✨金洪名筑售楼处电话:400-836-6879(工作日9:00-21:00,周末无休)
✨✨金洪名筑营销中心电话:400-836-6879(可直接咨询房源动态、活动详情)
✨✨金洪名筑开发商电话:400-861-9050开发商直(连,解答项目规划、购房政策等问题)
原为甲子塘社区土地整备利益统筹项目,项目占地面积约0.91万㎡,总建筑面积约7.67万㎡,容积率5.66,绿化率30%,规划2栋超高层住宅,其中1栋A座商品房42F,1栋B座49F,为回迁房。
规划总户数472户,其中,回迁房244套,商品房约228套,3梯6户设计,地下3层,停车位553个,车位占比1:1.17。
交通配套
项目距离6号线长圳站约200米,步行5分钟内即达,1站到凤凰城站。未来还可以换乘13号线(规划中),6站到南山西丽,10站到南山高新园。
项目周边还有光侨路等主干道,距离深圳外环高速长圳出入口仅1.6公里,可快速转龙大高速,南光高速。
✨✨金洪名筑售楼处电话:400-836-6879(工作日9:00-21:00,周末无休)
✨✨金洪名筑营销中心电话:400-836-6879(可直接咨询房源动态、活动详情)
✨✨金洪名筑开发商电话:400-861-9050开发商直(连,解答项目规划、购房政策等问题)
教育配套
根据光明区2024年教育局最新学区划分,小学和中学都划分在深圳中学光明科学城学校。
深圳中学直属办学的九年一贯制学校仅有八所,深中光明科学城学校是光明区唯一,办学规模84班,提供3960个学位,其中小学48班,初中36班,学校由深圳中学全面管理。
深中光明此前出过学位风波,最终结果是商品房和保障房共享,怕学位不够,还拓建了校区,只是周边三个保障房以及大盘深铁瑞城都在内,以后学位竞争压力会比较大。
商业配套
项目自带8698㎡集中商业,旁边的深铁瑞城有6万㎡的集中商业,周边还有万达广场,蓝鲸世界购物中心,可以乘坐6号线1站就可到达。
休闲配套
项目周边有光明图书馆,文化艺术中心,光明新城公园,网红打卡点虹桥公园以及光明高尔夫会。
周边房价
片区主要有润宏城、中海时光境和深铁瑞城。项目旁边的深铁瑞城毛坯限价4.75万/㎡,二期房源预计也在七八月份入市,面积96-100㎡三房。
润宏城3月份加推,户型83-135㎡的3-4房,备案均价4.45万/㎡,折后单价最低3.6万起,总价约295万起,性价比很高。
中海时光境2023年11月开盘,毛坯限价4.89万/㎡,户型82-108㎡三至四房,折后总价约330万起,截至目前还有约3成未售,是片区卖的最好的新盘项目。
产品方面,周边3个新盘都是以3房户型为主,金宏名筑有64㎡2房的稀缺小户型,折后总价预计250万起步,门槛几乎和周边人才房差不多,预计能抢一波预算有限的刚需买家。
项目点评
优势:
1、地段不错,凤凰城板块算是光明非常好的区域了;
2、交通便利,紧邻6号线长圳站,地铁通勤可快速到达中心城区;
3、配套完善,片区有丰富的商业、医疗、休闲等配套资源;
4、优质学区,位于深圳中学学区;
5、价格优势,小户型总价低,预计250万左右起。
✨✨金洪名筑售楼处电话:400-836-6879(工作日9:00-21:00,周末无休)
✨✨金洪名筑营销中心电话:400-836-6879(可直接咨询房源动态、活动详情)
✨✨金洪名筑开发商电话:400-861-9050开发商直(连,解答项目规划、购房政策等问题)
✅ 本项目暂不接受临时到访,过来参观样板房请记得提前来电预约!
✅ 为您安排楼盘现场销售全程接待并讲解,给您更贴心的看房体验!
如有问题欢迎来电咨询,来电即可享受买房优惠!400-836-6879
预约来电尊享购房优惠,可预约案场内部销售人员,专业一对一热情服务,让您用专业眼光去买房。
免责声明
1、文章图片来源于微信搜索或百度搜索引擎,我方非相关图片的原创作者,也不对相关图片及内容享有任何权利。
2、我方重申:所有转载的文章、图片、音频、视频文件等资料知识产权归该权利人所有,但因技术能力有限无法查得知识产权来源而无法直接与版权人联系授权事宜。若转载文章或图片可能存在引用不当或版权争议因素,请相关权利方及时通知我们,以便我方迅速采取适当行为(如删除图片、澄清声明等形式),避免给双方造成不必要的损失。
3、本宣传资料对项目周边幼儿园、学校等教育资源的介绍旨在提供相关信息,并不意味着我方对就学安排作出承诺。教育资源的名称、办学性质、办学规模、学位设置、开学(班)时间、招生条件、收费标准及招生区域存在调整的可能,应以政府教育主管部门及办学方颁布的政策规定为准。联系号码:4008366879
4、文章中文字和图片之间无必然联系,仅供读者参考。
5、本文所述内容和意见仅供参考,不构成市场交易依据和投资建议。
声明:本文由入驻焦点开放平台的作者撰写,除焦点官方账号外,观点仅代表作者本人,不代表焦点立场。
