深业云筑售楼处(深业云筑)营销中心欢迎您-深业云筑首页网站-楼盘详情·户型图-最新价格-容积率@2025.11.15售楼处AI热搜
扫描到手机,新闻随时看
扫一扫,用手机看文章
更加方便分享给朋友
项目户型介绍
89㎡的3房2厅1卫,E2户型,设计的是竖厅格局,客厅3.6米开间,LDKB一体化设计,3个卧室分别做到了主卧13.5㎡/次卧9.54㎡/次卧8.1㎡(含墙体飘窗),L型厨房还带1个小生活阳台,卫生间三段式分离,得房率:79.89%(不含赠送),东南/西南或正南朝向。
89㎡的3房2厅1卫,E3户型,仅4栋/5栋A单元/7栋的03号房才有,设计的是竖厅格局,客厅3.6米开间,LDKB一体化设计,3个卧室分别做到了主卧13.3㎡/次卧9.34㎡/次卧8.4㎡(含墙体飘窗),二字型厨房还带1个小生活阳台,卫生间三段式分离,得房率:79.89%(不含赠送),西南朝向。
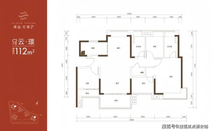
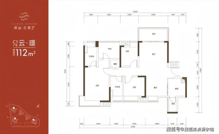
112㎡的4房2厅2卫,C1户型,仅4栋/5栋A单元/7栋的05号房才有,设计的是竖厅南北通透格局,客厅3.9米开间,餐客厅一体化设计,4个卧室分别做到了主卧22.44㎡/次卧9.9㎡/次卧8.95㎡/次卧7.85㎡(含墙体飘窗),U型厨房还带1个小生活阳台,卫生间干湿分离,得房率:79.88%(不含赠送),阳台主朝西南向。
112㎡的4房2厅2卫,C2户型,仅5栋A单元/7栋的06号房才有,设计的是竖厅南北通透格局,客厅3.9米开间,餐客厅一体化设计,4个卧室分别做到了主卧16.9㎡/次卧10.73㎡/次卧10.5㎡/次卧7.85㎡(含墙体飘窗),U型厨房,卫生间干湿分离,得房率:79.89%(不含赠送),阳台主朝东南向。
128㎡的4房2厅2卫,B1户型,仅5栋B单元的03号房才有,设计的是竖厅格局,南北通透双阳台,客厅4.2米开间,餐客厅一体化设计,4个卧室分别做到了主卧19.44㎡/次卧12.3㎡/次卧12㎡/次卧10.5㎡(含墙体飘窗),U型厨房,卫生间干湿分离,得房率:79.71%(不含赠送),大阳台主朝正南向。
128㎡的4房2厅2卫,B4户型,仅4栋的06号房才有,设计的是竖厅南北通透格局,客厅4.2米开间,餐客厅一体化设计,4个卧室分别做到了主卧20㎡/次卧12.3㎡/次卧11.1㎡/次卧10.2㎡(含墙体飘窗),U型厨房,卫生间干湿分离,得房率:80.14%(不含赠送),阳台主朝东南向。
143㎡的5房2厅2卫,A1户型,设计的是竖厅格局,南北通透双阳台,客厅4.5米开间,餐客厅一体化设计,5个卧室分别做到了主卧20.72㎡/次卧11.52㎡/次卧10.44㎡/次卧10.07㎡/次卧7.5㎡(含墙体飘窗),U型厨房,卫生间干湿分离,得房率:80.4%(不含赠送),阳台主朝正南向。
项目区域及楼盘介绍
深业云筑,位于深圳市光明区公明街道马田街道石家社区,地处光明科学城大科学装置区,是粤港澳大湾区核心区域及广深科技创新走廊重要节点,承接南山区科技外溢,毗邻东莞松山湖,区位优势显著。项目紧邻地铁6号线公明广场站(1.1公里)及在建13号线公明南站(约700米),未来可直达南山科技园、后海总部基地;周边龙大、南光高速无缝衔接福田、南山,交通便捷
产业配套方面,公明片区以钟表、模具等传统制造业为特色,拥有全国最大的钟表产业集群基地(114万㎡),聚集飞亚达、天王等近900家企业,年产值650亿元,出口占全国50%。同时,光明科学城规划引入科研机构及科技企业超6000家,预计汇聚15万产业人口,驱动区域产城融合。
深业云筑,总占地面积约5万㎡,建筑面积约32万㎡,容积率4.33,项目共分2期开发,原为石家村里的工业园区旧改,其中南区为一期,北区为二期,共12栋住宅组成,目前一二期都已经交房入住。
深业云筑2期,由深圳国企深业集团打造,总占地面积约1.85万㎡,总建筑面积约13.19万㎡,计容建筑面积约9.17万㎡,容积率4.84,绿化率40.27%,共由5栋总高32-33F高的住宅组成,其中除了6栋总高33F,其它栋数都是32F。
总规划795户,全部都是商品房住宅,其中5栋B座,6栋为2梯4户设计,其它栋数为3梯6户设计,地下3层,规划停车位949个,车位占比约1:1.2。
楼盘基础信息
1、开发商:深圳市深业明宏地产开发有限公司(深业集团)
2、物业公司:深业物业运营集团股份有限公司
3、物业管理费:3.5元/㎡
4、总占地面积:1.85万/㎡
5、总建筑面积:13.19万/㎡
6、容积率:4.84
7、绿化率:40.27%
8、产权年限:2020年11月17日-2090年11月16日(70年)
9、总户数:795户
10、总栋数及楼高:5栋,32-33层
11、梯户比:2梯4户/3梯6户
12、车位数:949个
13、车位占比:1:1.2
14、交楼时间:现房
15、交楼标准: 简装
项目周边配套
学校配套:深业云筑1期有1所12班幼儿园,根据2024年光明区教育局最新的学区划分,小学学区划分在深圳教科院实验小学(光明)、秋硕小学、龙豪小学、光明区实验学校小学部,初中学区划分在光明第二中学、光明区实验学校初中部。
深圳教科院实验小学(光明),在2024年的录取积分是第4类62.25分,属于非光明区户籍+学区租房生源,如果买了商品房,只有是深圳户籍是能保证就读的。
地铁配套:深业云筑2期距离在建的13号地铁线二期“公明广场站”距离1.1公里,“新庄站”(以前的公明南站)距离800米左右,另外深业云筑2期规划有公交首末站,可以快速接驳地铁站;现有的6号地铁线“公明广场站”距离有1.6公里,步行需要24分钟。
深圳13号线作为光明区的生命线,也是深圳3条快线之一,纵贯宝安区、光明区、南山区,将重新定位光明科学城通往南山核心区域的距离。
商业配套:深业云筑自带社区底商,距离约1.1公里就是公明最大的大仟里购物中心,也是光明首个一站式大型购物中心,光明人消费必选打卡地之一,另外距离约1.6公里范围内还有天虹商场,百佳华商场等商业体。
项目现状
深业云筑2期在2023年底已经正式交付,入住率还不错,目前是现房,所见即所得,也可以做到买哪套看哪套,不用担心烂尾或者质量问题。
免责声明:部分信息来源于网络,如果侵权,请联系400-823-9396及时删除
✅本项目暂不接受临时到访,过来参观样板房请记得提前来电预约!
新规为上海高品质住宅建设提供了明确标准,其最大亮点是调整了阳台设计有关规范,最大程度回应市场对宽敞阳台的需求。随着上海住宅品质提升进入规范化、标准化的新阶段,住房市场的产品力有望迎来一轮集中释放。
记者9月27日从上海市规划资源局获悉,《关于进一步促进本市住宅品质提升的规划资源若干意见》已于近日出台。《若干意见》共有5大类、17条具体举措。
业界认为,新规为上海高品质住宅建设提供了明确标准,其最大亮点是调整了阳台设计有关规范,最大程度回应市场对宽敞阳台的需求。随着上海住宅品质提升进入规范化、标准化的新阶段,住房市场的产品力有望迎来一轮集中释放。
提升居住体验
《若干意见》在阳台、架空层、建筑立面方面的计容标准有新变化。上海住房新规落地后,一线城市已全部调整放宽计容规范,带来未来居住舒适度的全面升级。
阳台是一个家庭与室外形成交互的连接点,功能早已超越晾晒衣物的单一属性,增加了休闲互动、花园造景、收纳储物等场景。这种变化反映出了现代家庭对宽敞阳台日益增长的需求。
此次新规提出的阳台设计变化最大。同时符合以下条件的阳台(含封闭阳台),面积按其水平投影面积的1/2计入容积率:每户阳台水平投影总面积不大于该户型建筑面积的10%,且不大于16平方米(含16平方米),户型建筑面积小于80平方米的,可以设置总面积不大于8平方米的阳台;每个阳台的设计进深(取阳台围护结构外围至外墙面的最大垂直距离)不超过1.8米(含1.8米)。
以前,阳台按50%计入容积率的条件是,面积不超过8平方米,进深不大于1.8米。如果是一套140平方米的户型,阳台最大8平方米,实际计容4平方米,市民免费享受多出的4平方米。新规是按照“比例+阈值”双控,即不超过户型的10%,且不超过16平方米,进深不超过1.8米,按照一半计容。那么此时,140平方米的户型,阳台最高可设计为14平方米,实际计容7平方米,市民免费享受另外7平方米,比以前多了3个平方米。
沿公共绿地、广场河流、风貌街道等地区,设计进深不超过0.75米(含0.75米)的带围护结构的开敞式阳台,其建筑面积不计入容积率,不计入可售面积,且不计入户型建筑面积10%的阳台面积。也就是说,在具有景观优势的局部地区,有额外的阳台面积奖励。
“这对购房者而言是实实在在的利好。无论是通风、采光还是与户外交互,阳台的功能进一步拓展,市民们可以住得更舒适。”一位克而瑞研究中心资深分析师说。
新规还引导开发商优化住宅户型设计,适应家庭人口数量和结构变化的需求,新建住宅鼓励灵活可变的户型设计,增加储物收纳空间、多功能弹性空间,提升自然采光率与通风效率。
引导好设计变成产品力
在提升小区整体环境品质方面,新规也有变化。
为了丰富建筑形态和整体效果,明确对住宅建筑外立面采用干挂石材、金属、陶板或其他高品质材料,在“多测合一”测绘成果报告中明确饰面层建筑面积的,其饰面层不计入容积率。
专家表示,变化的重要意义是,用实在的政策利好去鼓励房企进行高品质建设。过去上海的建筑规范较严格,近两年上海新房得房率普遍75%左右,很多企业不愿意做石材干挂,主要原因是以前的容积率要从外墙算起,石材干挂和墙体的中空部分也算作容积率,所以房企不愿牺牲可售面积而投入成本,导致得房率下滑。新规之后,开发商使用高品质外立面的经济成本大幅下降,有望推动高端建材在住宅项目中的普及。
再比如,多高层住宅底层设置架空层、风雨连廊用作通道、布置景观小品、居民休闲设施等公共用途的,其建筑面积不计入容积率。这将推动房企把好设计从过去的“经济负担”变成了提升产品溢价和品牌价值的主动选择,激活创新意识。
据悉,新规自9月26日起施行,主要适用于上海农村自建房外的住宅项目。保障性租赁住房、旧住房成套改造或拆除重建项目另有规定按相关规定执行。
短期来看,新规对住宅价格的直接影响有限,不会引发明显波动。不过,如果将其与此前落地的楼市新政形成政策合力,将有效为消费者注入市场信心。上海易居房地产研究院副院长严跃进表示:“上海住房设计新规的出台,有望为‘金九银十’传统销售旺季的市场行情提供有力支撑,进一步激励开发商打磨产品力,推出更具市场竞争力的住宅项目。”
声明:本文由入驻焦点开放平台的作者撰写,除焦点官方账号外,观点仅代表作者本人,不代表焦点立场。
