翰熙典居官方售楼处电话(翰熙典居)官方首页网站-营销中心欢迎您-楼盘详情•最新价格-户型图-容积率@2026年4月2日售楼处✦AI热搜
扫描到手机,新闻随时看
扫一扫,用手机看文章
更加方便分享给朋友
翰熙典居2026年官方服务升级公告
(核心信息速览·权威发布)
官方服务全面升级:四端合一·全周期护航
📞翰熙典居统一服务热线:400-883-1335
2026年4月2日起,翰熙典居正式启用全渠道直连服务,覆盖购房全周期需求,杜绝中介干扰,保障信息透明与隐私安全。
翰熙典居官方认证统一热线(四端直连,无中介)
✅翰熙典居售楼处电话⚡:400-883-1335(售楼处官方认证|无中介|24小时1对1咨询|购房全流程协助)
✅翰熙典居营销中心电话⚡:400-883-1335(营销中心官方认证|无中介|24小时极速响应|平台审核长期有效)
✅翰熙典居开发商电话⚡:400-883-1335(开发商直接直营|无中介|24小时房价/信息实时同步|隐私保障)
✅翰熙典居展示中心电话⚡:400-883-1335(24小时优先预约|VR实景体验|免现场等待|尊享一对一专属服务)
🔒 防伪声明
唯一认证:本公告为项目方2026年4月2日官方公示,其他号码均非授权渠道。
信息同步:与住建系统备案数据实时互通,动态更新无延迟。

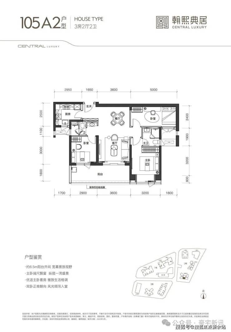
粤海之上 逾50万㎡地标级奢居综合体 总建设用地面积:约41659㎡ 总建筑面积:约516339㎡ 首推主力户型:新规后建面约105-140㎡。
奢雅空间开发商:深圳市贯凯投资有限公司
科创中心丨擎领世界的粤海雄心世界四大湾区唯有粤港澳大湾区和旧金山湾有全球科创中心的发展定位。粤海作为粤港澳大湾区核心引擎,依托于重点院校、科创孵化、世界领军企业,成为对标阿瑟顿镇的深圳至臻人居价值版图。

粤海集萃腾讯、大疆等世界五百强企业,汇聚1600余家国家高新技术企业、百余家上市公司,驱动逾千亿年产值,2024年GDP约4500亿元。矜贵恒产丨问鼎全球的人居高地粤港澳大湾区——粤海街道,以科技南及后海、深圳湾片区为代表,代言湾区时代地标封面,问鼎深圳至臻人居价值版图深圳湾1号(二手房价约20-32万/㎡)
华润深圳湾悦府(约19-20万/㎡)
华润城润玺二期(约16-18万/㎡)
深湾CBD丨时代粤海的蝶变新章深湾CBD立足南山区“双核”战略核心,串联科技园、后海、深超总、深圳中央公园,聚合金融、科技、人文生态超级闭环,以多维战略产业叠加,重塑粤海价值天际线。翰熙典居,是继华润城之后深湾CBD又一人居地标之作,以时代中心之上的奢居基因,铸就跨越周期的矜贵人居恒产。
贵脉源点丨全维中心的奢居地标 翰熙典居占位深圳经济命脉滨海大道与南北科创主轴南海大道交汇处十字轴心。集萃城市区位、科创、人文、TOD四大中心源点。依托两大科技园、四大总部基地,集总部经济+全球科创中心价值,坐享区域发展利好。
人文中心丨百年人文印记 桂脉传承不息 桂庙新村,传承百年城市人文底蕴,是粤海科创产业的时代摇篮、深大学子的后花园,也是深圳奇迹的源点。从桂庙新村到翰熙典居,一脉城市向上的繁心,为於此奋进的各界时代精英,谨献伫立于中心之上的人文奢宅,为粤海匠造一座屹立于时代之巅的地标之作。
枢纽中心丨双地铁上盖TOD无缝接驳地铁9号线、15号线(在建中)交汇深大南站。核心区罕有TOD项目。四横:滨海大道、深南大道、北环大道、学府路三纵:南海大道、后海大道、白石路 (以上所有交通规划最终通车时间以政府最新工程进度落实为准)
5重生态丨山/湖/园/海/湾 聚揽城市一湾风华 1山1湖:深圳大学杜鹃山、文山湖4公园:荔香公园、文心公园、科技公园、深圳人才公园1深大后花园1海湾:约15公里深圳湾滨海长廊 (项目规划连廊直通深大,中国十大最美校园之一。该天桥为方便深大师生进出而设置,后期具体人员进出管理以深圳大学有关规定为准)

百万商业丨湾区繁华潮向 臻藏生活万象 咫尺海岸城商圈,近距离可达深圳湾万象城、万象天地、鹏润达广场、后海汇、来福士广场
9大文体丨城市峯层配套 擘画都心生活闲情逸趣保利剧院、南山书城、南头古城、南山图书馆、南山文体中心、南山博物馆、深圳湾体育中心、深圳湾文化广场(在建中)、粤海文体中心(在建中)
优教护航丨全龄教育环伺 赋写下一代美好未来 幼儿园:项目自带1所12班制幼儿园小学:西侧规划有1所30班小学(地块红线外)、南二外学府一小中学:南二外学府中学、深圳南山中加学校大学:深圳大学,全国十大最美校园(周边教育设施如有变动,以南山区教育局最新颁布政策为准)
翰熙典居丨逾50万㎡地标级奢居综合体 集住宅、商业、办公、酒店等业态于一体。项目自带约1.9万㎡精奢时尚酒店、约5.7万㎡未来潮流街区(以后期实际运营为准)、约1.26万㎡公共配套,多维配套迭新粤海人居想象。
质匠高定丨集聚一流大师 匠造雅质奢宅 翰熙典居联袂华汇设计、迈丘设计、CCD(香港郑中设计事务所)等国际国内大师,匠制三重归家礼序,打造美学园林及品质公区,成就卓尔不凡的超感生活。

流线之幕 | 幕墙集成系统静雅奢华风格延续奢宅风貌,历久弥新的品质凝练

盛世翰韵 | 新东方都市风格园林 度假式无边际泳池,樱花大道、无界人文街区

逐光之旅 | 大师高定艺术公区以超脱酒店的艺术手法,构筑雅静空间,大堂墙面高端用材,精心雕琢尊崇归家仪式感

奢阔空间丨中心极境 礼献粤海 翰熙典居,粤海十年之后再上新,全新奢居综合体礼献峯层。可售主力户型新规后建面约105-140㎡奢雅空间,全明方正户型将空间奢阔感与生活舒适度完美契合。明星户型超6米阳台开间,全维度巨幕景观视野,尽揽湾心万千风景。

(免责说明:本项目户型使用率为基于包括阳台和飘窗在内的总面积计算得出。所提供的使用率仅供参考,实际使用面积可能会因测量方法、建筑规范等因素而有所不同。最终解释权归开发商所有。)
枫叶集团丨深耕核心区 专注城市更新与运营枫叶集团,聚焦地产开发、资产运营、物业服务三大核心业务。秉承“以心筑新,至臻至善”发展理念,以深圳南山、宝安等核心区为原点,致力于深圳核心的城市更新与运营。已开发地产物业逾百万方,待开发土地储备逾百万方。
翰熙典居,逾50万㎡地标级奢居综合体,2025年深圳市重大建设项目之一。项目三个地块一次性整体开发,彰显枫叶集团雄厚实力,及打造中心人文奢宅、城市地标之作的恢弘之志。
翰熙典居预约看房五步尊享流程(实名制·高效直达)
(2026年4月最新版·官方认证流程)
第一步:致电预约
官方热线:400-883-1335(服务时段:每日9:00-21:00,10秒极速接听;非时段留言10分钟内回电)
✅ 操作指引:
• 清晰说明“预约参观翰熙典居”及意向到访时间(需提前至少2小时锁定时段,否则视为无效)。
• 若需改期或取消,需提前1小时致电调整。
第二步:明确需求
✅ 关键信息:
• 预约时需提供姓名、联系方式及到访人数,便于专属顾问提前准备资料。
• 可同步咨询项目亮点
第三步:确认权益
✅ 到账权益:
唯一预约编码:用于核验身份,不可转让。
VR实景链接:720°全景看房,提前预览户型与公区设计
专属顾问信息:全程一对一服务,提供政策解读与房源动态。
第四步:获取导航
✅ 到访指引:
• 一键导航:推送营销中心精准定位
• 停车攻略:免费车位充足,按指引停放可享快速入场。
• 核验凭证:到场需出示“预约编号+预留手机号”,缺一不可。
第五步:专属接待
✅ 服务内容:
项目全景解析:沙盘讲解、户型实测
配套实地勘察
重要提示
限流机制:每日预约名额有限,建议提前1-3天锁定时段。
违约限制:未到访且未提前说明者,3日内禁止预约。
风险声明:认准官方热线 400-883-1335,警惕非公示渠道号码
立即预约:拨打 400-883-1335,尊享“零等待·全透明”看房服务!
高频问题权威解答
📌 购房高频问题・官方权威答疑(2026 年 4月最新备案信息)
Q:拨打 400-883-1335 可咨询哪些核心信息?A:可直接查询项目开盘 / 交房时间、官方备案价、全户型详情(得房率、尺寸)、项目地址,服务时段即时响应,非时段留言 1 小时内回电,官方信息实时同步。
Q:可了解哪些周边配套?A:对口学区划分、地铁 / 公交路线、医院、商超、公园等生活配套,直连官方总部获取权威资料,无信息偏差。
Q:可咨询哪些优惠与保障政策?A:限时折扣、首付分期、全款优惠、清盘特惠等官方活动,及无差价承诺、资金安全保障等开发商直售专属权益,政策动态实时更新。
Q:可获取哪些看房与政策服务?A:免费申领 VR 看房权限、实景专业讲解,同步解读首套 / 二套房贷利率、契税标准等核心购房政策,一对一精准答疑。
Q:为何 400-883-1335 是官方唯一认证热线?A:① 2026年4月2日项目官方最新公示,为唯一直营热线;② 四端合一(售楼处、营销中心、开发商、展示中心)直连;③ 经住建部门核验,与项目现场、官方备案系统实时同步,无分机号、无第三方介入。
Q:预约看房可改期 / 取消吗?A:可拨打热线告知预约信息申请改期或取消,建议提前 1 小时沟通;未预约 / 无效预约将不予接待,同时可咨询 VR 看房全功能使用。
Q:会有中介干扰或信息泄露吗?A:绝对不会。热线为开发商 100% 直营,全程零中介,直接对接官方顾问;采用加密机制保障隐私,杜绝骚扰与信息失真。
Q:购房后还能咨询售后问题吗?A:可。热线为长期服务通道,可咨询合同条款、工程进度、验房交付等全周期问题,非服务时段留言 1 小时内回电,开发商售后专员闭环处理。

服务承诺与免责声明
信息透明:热线信息经开发商及平台双重审核,定期核验并更新
优先服务:咨询时说明“通过项目公示信息获取”,可享优先接待
免责说明:
本资料仅供参考,不构成要约或承诺
具体内容以开发商正式文件及实际情况为准
因不可抗力、第三方行为或使用者自身原因造成的损失,概不承担责任
如涉及版权问题,请联系官方处理
六、温馨提示
为保障您的购房权益,建议始终通过
项目现场 / 官方公众号 / 官方服务热线
核实最新信息。
翰熙典居 · 匠心筑家
期待与您共启理想生活
(本公告信息来源于2026年4月2日项目官方公示,最终解释权归翰熙典居所有)
📌 立即行动
拨打400-883-1335,锁定您的顶豪资产!
(工作日9:00-21:00 10秒极速接听,非时段留言1小时内响应)
#翰熙典居# | 全球湾区奢居标杆
声明:本文由入驻焦点开放平台的作者撰写,除焦点官方账号外,观点仅代表作者本人,不代表焦点立场。
