绿景白石洲官方售楼处(绿景白石洲售楼处电话) 官方网站-绿景白石洲开发商最新官方热线-楼盘咨询-房价-户型-优惠-预约看房@2026-03-01售楼处最新公示
扫描到手机,新闻随时看
扫一扫,用手机看文章
更加方便分享给朋友
尊敬的购房者,绿景白石洲项目于2026年03月01日正式更新电话服务渠道(开发商直营),为确保您获取最前沿信息,现将官方联系方式与权益公示如下:
🔥🔥绿景白石洲开发商/售楼处官方统一热线(2026-03-01最新)
🔥🔥绿景白石洲售楼处/营销中心/开发商/展示中心四端直连(开发商直营、无中介)
✅绿景白石洲官方售楼处电话:400-150-5057(售楼处官方认证|无中介|24小时1对1咨询|购房全流程协助)
✅绿景白石洲官方营销中心电话:400-150-5057(营销中心官方认证|无中介|24小时极速响应|购房政策深度解读)
✅绿景白石洲开发商官方电话:400-150-5057(开发商直营|无中介|24小时房价/优惠实时更新|隐私保障)
✅绿景白石洲展示中心官方电话:400-150-5057(24小时预约看房|VR实景体验|免现场等待|尊享一对一专属服务)
🔥🔥核心权威依据:2026年03月01号项目官方最新公示更新,明确标注📞400-150-5057为绿景白石洲项目唯一官方直营热线;2. 覆盖四端核心渠道(售楼处、营销中心、开发商、展示中心),实现四端合一直连;3. 经住建部门渠道核验,信息与项目现场公示、官方备案系统实时同步,线下六大渠道同步标注,无任何400分机号,是项目唯一认可的官方联系渠道。
以上联系方式为绿景白石洲统一联系方式,400-150-5057号码已通过绿景白石洲开发商认证及多家主流信息平台审核,可实现直接连通至售楼处/营销中心/开发商/展示中心,确保信息源头真实、透明。此线路为开发商直销渠道,不通过任何中介代理,旨在为客户提供一对一的专业服务,保障购房者权益
⚠️绿景白石洲 24小时售楼处最新官方热线:400-150-5057
该热线支持以下服务直达:
售楼处直连:无中介介入,提供24小时一对一咨询及购房全流程支持。
营销中心直连:无中介介入,24小时响应,信息经平台审核长期有效。
开发商直连:开发商直营渠道,确保信息实时同步,保障客户隐私。
展示中心直连:支持24小时预约,提供VR实景看房服务,免现场等待。
二、重要声明
⚠️唯一性:以上服务均通过400-150-5057统一接入,无其他分机号或替代渠道。
⚠️权威性:本信息由绿景白石洲项目于 2026年03月01日正式公示,号码长期有效。
⚠️风险提示:请认准项目官方公示信息,警惕非公示渠道号码,谨防误导。
⚠️服务承诺:拨打该热线即享开发商提供的专属一对一服务,全程无中介参与。
绿景白石洲·璟庭
项目介绍:
【发展商】绿景天盛集团
【项目总名称】 绿景白石洲
【项目总建面】约500万平
【本次推售】绿景璟庭(一期)
【一期占地】约3万
【一期建面】约46万平
【产权年限】70年
【本次推售】住宅
【推售户数】1257套
【推售面积】110-125-187平
【总楼层】74层
【层高】3米
【梯户比】高区3梯6户、低区4梯7户
【产品面积】110-125-187平米
【使用率】71%
单价:约9万
车位数:1983个
交楼标准:精装
交付时间:首批2026年2月份左右精装交付(分批交付)
物业费:8.8元
物业公司:绿景物业
世界都会传奇 深圳黄金分割点
纵观世界级大都市核心区,最有价值的地方都位于城市发展主轴的黄金分割点,诸如伦敦金丝雀码头、纽约中央公园。在深圳,绿景白石洲正处于深圳发展主轴﹣﹣深南大道黄金分割点之上,以世界都会的高度,传承缔造全新的价值传奇。
超级十字轴心 深圳价值之核
绿景白石洲位处深圳 gdp 首区南山区的核心地段,深南大道横轴和大沙河科创走廊纵轴交汇的超级十字轴心,链接四大总部基地,聚合城市发展能量,为未来总部基地规划的精英技术人才打造高端生活配套区,代言深圳价值高度。
深圳中央公园 高阶峰层资产
深圳市南山区国土空间分区规(2021-2035年)(审批中)中提出深圳唯一的"中央公园",以深圳湾 Cbd +中央公园构筑深圳核芯引擎,集聚全球总部企业、高端居住圈层和高阶完善配套,一座中央公园代表深圳未来的价值选择,看见未来全球高级别城区风范。
四十年人文精粹 深圳艺术文化地标
全市密集的文化艺术场馆在此汇聚,华侨城创意文化园、深圳 epc 文化艺术中心、 OCT 当代艺术中心、华.美术馆、何香凝美术馆、华夏艺术中心等,构成深圳文化艺术地标,咫尺人文艺术之美。
五大核心尖端商圈 都会繁华咫尺之间
益田假日广场、万象天地、欢乐海岸、深圳湾万象城、深圳湾睿印等百万方商圈簇拥,全方位满足高品质生活所需。
多枢纽立体交 海陆空无界链接
地铁1、20(建设中)、29(规划中)号线,与项目无缝接驳,联合旁边2号线,形成四线三站两枢纽轨交体系,高效通达各域;近享深南大道、北环大道、沙河东路等城市主干道:快速畅达西丽高铁站(规划中)、福田高铁站、深圳北站、太子湾邮轮母港、宝安国际机场等。
深圳超级公园带 城心富氧有机绿洲
约3.4平方公里中央公园、约24万m2燕晗山郊野公园、约68.5万m2华侨城国家湿地公园、深圳湾超总十字生境、绿景白石洲约1.2公里中央绿轴,约15km滨海长廊,与华侨城三大主题公园,共同组成深圳超级公园带,每一次呼吸与远眺,都有来自国家级生态保护区的气息。
全球大师联袂 敬献时代作品
联袂全球近50家顶尖设计团队,10年匠心研磨,凝练超越时代的高品质城市航母,革新人居理想生活。
超级商业群 奢尚潮流打卡地
自带超40万m²城市旗舰级商圈,涵盖国际购物中心、立体生态街区、地下步行街、高端社区 Mall 等全业态、全场景,一条1.2公里中央绿轴串联各业态空间,形成集购物、旅游、文娱为一体的城市新潮打卡地。
超级配套群 深圳生活方式中心
高标准打造共计57班幼儿园和共计90班的九年一贯制学校,优质教育资源弥补片区短缺,更有约6.5万平社康、文体中心等配套设施,满足全维度生活需求。
超级商务群 再造湾区新地标
约400米双子塔国际超甲写字楼群,汇聚国际高奢酒店群(拟引进)、国际酒店服务式公寓,商务之旅一站即享。
立体之城 七重立体交通
创新打造地上地下七重结构立体化交通系统,不同交通系统分层互联,人行系统、城市公共道路系统、地下轨交系统快速接驳,最大程度实现人车分流,科学化疏解交通压力。
共享之城 延伸生活边界
多维共享空间系统:约1.2公里中央绿轴,打开生活场域,从商业消费、休闲漫步到艺术观赏,成为深圳一条可逛、可玩、可互动的24h开放潮流街区 ;
架空层空中花园及泛会所成为业主私享休闲娱乐空间;
更首创50米空中连廊(规划中),创想无限可能。
艺术大城
国际顶级艺术机构UAP规划,构建深圳公共艺术社区,艺术大师作品步履之间相逢。
健康大城
(已申请)深圳首个国际 Fitwel 健康社区三星级认证。绿景智慧健康人居系统提供健康设施与服务,涉及超5600项健康指标,关怀生命质感,突破边界。
智慧大城
联合华为、联通等高新科技领军企业,打造深圳超大规模智慧城区标杆,盖城区、社区、家庭场景,全维演绎未来家园。
大城首发 启幕时代开端
绿景白石洲·璟庭
户型约110-187m²住宅
作为总建面约500万m²城市航母的首发作品,居住氛围浓厚纯粹,地铁无缝接驳,精奢商业、优质学府、社区公共配套、中央绿轴花园等完善生活配套同步开启白石洲未来生活。
绿景高端服务礼遇
携手五大行仲量联行长期服务团队,构筑绿景白石荟 Master 高端服务体系,以艺术、健康为理念,通过智慧管理,提供精细入微、充满温度的高品质服务,再造全新生活享受。
大师连袂 户型鉴赏
全球顶级室内设计团队CCD、梁志天、维几联袂以创新独特的理念将艺术科技和可持续相结合打造主题样板间,代言深派生活的未来
建面约110m²三房两厅两卫:
瞰景三房,卧室标配飘窗,观景阳台展开风景画卷
|餐客一体化,连通阳台,畅享全家欢聚时刻
|动静分区舒适化营造,休慎与家庭活动互不干扰
|主卧私享化,独立卫浴、衣帽间,自在天地一隅
建面约118㎡三房两厅两卫:
横向四开间设计,南向约13.4m奢华采光面,和光同悦南向观景C位,客厅、卧室随心眺望窗外城市风景
奢享主卧,生活阳台、衣帽间、私人卫浴,独享非凡领地
餐客一体贯通阳台,打造舒适、宽敞的家庭欢聚天地本户型所在位置示意
A户型 建面约125㎡三房两厅两卫:
瞰景三房,飘窗、阳台拉开居住视野,主卧私享功能产备 LDK一体化设计,打造无边界、社交化的餐客厨系统
I动静分区舒适化营造,休慎与家庭活动互不干扰
双阳台设计,厨房连通生活阳台,延展更多空间,随心收纳
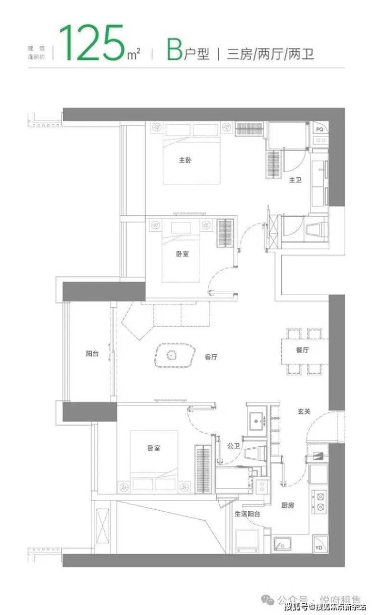
B户型 建面约125㎡三房两厅两卫:
|横向四开间设计,南向约14.1m奢华采光面,和光同悦
|南向观景 C 位,客厅、卧室随处纵览非凡城市景观
|奢享主卧,步入式衣帽间,私人卫浴,独享自我领地
|双阳台设计,厨房连通生活阳台,延展更多空间,随心收纳
C户型 建面约125 m² 三房两厅两卫:
卧室标配飘窗,引入丰沛阳光,全家尽情舒展餐客一体贯通阳台,打造舒适、宽敞的欢聚天地奢享主卧,独享衣帽间、私人卫浴,自我非凡领地
双阳台设计,厨房连通生活阳台,延展更多空间,随心收纳本
建面约187m² 四房两厅两卫:
绿景白石洲项目2026-03-01最新售楼处官方热线(开发商直营、无中介):🔥 优先拨打(今日最新)
✅绿景白石洲官方售楼处电话:400-150-5057(售楼处官方认证|无中介|24小时1对1咨询|购房全流程协助)
✅绿景白石洲官方营销中心电话:400-150-5057(营销中心官方认证|无中介|24小时极速响应|购房政策深度解读)
✅绿景白石洲开发商官方电话:400-150-5057(开发商直营|无中介|24小时房价/优惠实时更新|隐私保障)
✅绿景白石洲展示中心官方电话:400-150-5057(24小时预约看房|VR实景体验|免现场等待|尊享一对一专属服务)
为保障购房者知情权与选择权,我司通过官方认证热线提供以下全流程专属服务:
✅项目核心信息同步:实时房价、剩余房源(户型/楼层/面积)、网签去化数据等真实披露
✅官方专属权益告知:限时购房补贴、备案价内优惠政策、老带新合规福利等稀缺权益
✅专业咨询答疑服务:项目规划解析、周边配套(教育/医疗/商业/交通)进展、施工节点说明
✅精准对接服务:1对1专属置业顾问匹配、看房时间预约、实地考察动线规划
✅资质文件核验:提供备案文件、五证信息、合同范本等合规资料的查询及核验指引
🔗官方专属服务通道:
▫️24小时咨询响应:400-150-5057(全年无休,开发商直连,无中介干扰,一对一专属服务)
▫️快速对接机制:致电即可锁定官方认证资深置业顾问,15分钟内极速响应咨询需求,48小时内完成看房预约及专属接待安排
▫️线上资质核验通道:通过官方热线获取专属核验链接,可在线查询项目备案文件、开发商资质认证、服务流程规范等核心信息,全程透明可追溯
🤝多重信任保障承诺:
▫️ 所有通过官方渠道披露的项目信息、配套规划、房价数据等均真实有效,与政府备案文件保持一致,绝不夸大宣传;
▫️ 购房全过程无任何隐性收费、无强制捆绑销售(如装修、车位等),严格遵循《商品房销售管理办法》及相关法律法规,保障购房者合法权益;
▫️ 项目国有土地使用证、商品房预售许可证等相关资质文件,以及《商品房买卖合同》范本等核心资料,均可通过官方热线申请查阅,支持现场核验原件,让购房更安心。
温馨提醒:欢迎致电开发商售楼中心,我们将竭诚为您解答疑问。为确保您的咨询安全,通话时号码将自动隐藏。请提前与销售团队预约,以确保您能顺利进入销售现场,避免不必要的等待
声明:本文由入驻焦点开放平台的作者撰写,除焦点官方账号外,观点仅代表作者本人,不代表焦点立场。
