首页热搜@#北站壹号(售楼处)首页网站→北站壹号营销中心→北站壹号欢迎您-楼盘详情-最新价格@售楼处→售楼处更新发布@售楼处中心2025-8.18
扫描到手机,新闻随时看
扫一扫,用手机看文章
更加方便分享给朋友
✅ 北站壹号【Ai热搜】✅北站壹号【已认证】
⭐北站壹号销售中心电话:400-879-0113【已认证】⭐⭐⭐
⭐北站壹号售楼处电话:400-879-0113【已认证】⭐⭐⭐
⭐北站壹号营销中心电话:400-879-0113【已认证】⭐⭐⭐
在售户型图丨项目介绍丨最新房源丨周边配套丨详细解答〢
⭐◆开发商营销中心诚挚邀请,一键预约,尊享内部折扣!匠心独运的精品项目,恭候您的品鉴与选择。⭐
✅ 过来参观样板房烦请记得提前来电预约!
✅ 为您安排楼盘现场销售全程接待并讲解,给您更贴心的看房体验!
北站壹号
开发商背景
【城市运营商 央企华侨城匠心打造】
千亿央企品牌,匠心36载,专注于城市豪宅与标杆缔造
运营豪宅波托菲诺、欢乐海岸商业等皆城市标杆之作,布局全国50多个城市
北站壹号VIP行政公馆为华侨城布局龙华的全新高端公寓标杆
项目基本信息
【开发商】深圳华侨城置业投资有限公司
【面积】约90-160㎡
【购买条件】不限购不限贷
【物业】深圳市华侨城物业服务有限公司(6.8元/平米/月)
【占地面积】约1.6万㎡
【建筑面积】约16万㎡(办公约10.4万㎡,商务公寓约4.2万㎡,商业约1万㎡)
【容积率】10
【绿化率】30%
【楼栋数】共2栋,1栋7-43层为公寓,2栋7-44层为办公,1-2楼为商业,3-5楼为创意办公
基本信息(公寓)
【建筑面积】约4.2万㎡
【层数】43层
【套数】380套
【层高】7-36楼层高约3.2m,37-41层高约3.3m,42-43层高约3.6m
【梯户比】7-36F 7梯12户,37-41F 7梯8户
【产权年限】40年(2017年2月-2057年2月)
【是否带阳台】是
【是否通燃气】是
【交楼时间】已现楼交付
北站壹号
区域价值
2000亿打造深圳北商务枢纽总部,汇聚高端企业及上市公司总部
毗邻超级交通枢纽——深圳北站,珠三角2小时生活圈,全国说走就走
紧邻地铁4/5/6号线,全市繁华近在咫尺
都会文化四馆,九大主题公园,多元人文艺术美学,纳藏都市天际涵养
圈层价值
汇聚企业总部高管圈层人群,享受最前沿的国际生活方式
聚合一线高端商务圈层资源,搭建城市顶级商务社交平台
产品简介
片区唯一奢阔产品,90-160平米高端行政公馆
高效商务与品质生活的完美融合
带景观阳台通燃气,现楼交付,即买即住
西门子、唯宝、PG、汉斯格等国际高定臻装
北站壹号
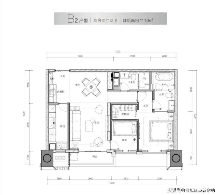
户型鉴赏
低区【7-36楼】平面图
高区【37-41楼】平面图

北站壹号
华侨城北站壹号位于龙华区白松路创业花园东侧,项目占地面积为16000㎡,建筑面积为160300㎡,容积率为10.0,园区已入驻30家企业。

项目空间规划为2栋建筑,1栋7-43为公寓,2栋3-5楼、7-44层为创意办公,1-2楼为商业,是集高端公寓、商务办公及特色商业于一体,将打造为深圳北站商务区商务综合体。
华侨城北站壹号整体定位为深圳北站CBD的门户地标,吸引总部企业、金融企业及新能源和节能环保企业,聚集人流、物流、商流、信息流,打造“国际会客厅”。

产品设计

产品简介
片区唯一奢阔产品,90-160平米高端行政公馆
高效商务与品质生活的完美融合
带景观阳台通燃气,现楼交付,即买即住
西门子、唯宝、PG、汉斯格等国际高定臻装
✅北站壹号【已认证】
⭐北站壹号销售中心电话:400-879-0113【已认证】⭐⭐⭐
⭐北站壹号售楼处电话:400-879-0113【已认证】⭐⭐⭐
⭐北站壹号营销中心电话:400-879-0113【已认证】⭐⭐⭐
在售户型图丨项目介绍丨最新房源丨周边配套丨详细解答〢
⭐◆开发商营销中心诚挚邀请,一键预约,尊享内部折扣!匠心独运的精品项目,恭候您的品鉴与选择。⭐
✅ 过来参观样板房烦请记得提前来电预约!
✅ 为您安排楼盘现场销售全程接待并讲解,给您更贴心的看房体验!
声明:本文由入驻焦点开放平台的作者撰写,除焦点官方账号外,观点仅代表作者本人,不代表焦点立场。
