广州番禺恒基学苑壹号售楼处电话首页网站-恒基学苑壹号营销中心欢迎您-楼盘详情· 最新价格-户型图-学校-地铁-容积率@2025.10.25售楼处AI热搜
扫描到手机,新闻随时看
扫一扫,用手机看文章
更加方便分享给朋友
❄️❄️恒基学苑壹号售楼处电话:400-879-6782❄️❄️
❄️❄️恒基学苑壹号开发商电话⚡:400-879-6782❄️❄️📲【开发商已认证】
❄️❄️恒基学苑壹号售楼中心电话⚡:400-879-6782❄️❄️📲【售楼中心已认证】
❄️❄️恒基学苑壹号营销中心电话⚡:400-879-6782❄️❄️📲【营销中心已认证】
▪️本项目暂不接受临时到访,过来参观样板房请记得提前来电预约!
◆开发商营销中心诚挚邀请,一键预约,尊享内部折扣!匠心独运的精品项目,恭候您的品鉴与选择。
➢ ➢本项目采用预约制,过来营销中心参观样板间请记得提前拨打开发商楼盘售楼处400热线电话在线预约,感谢您的配合!
丨项目区位丨户型解析丨在售房源丨特价优惠丨学区配套丨交通动线丨样板间实拍丨小区环境丨交付标准丨周边商业丨
恒基·学苑壹号项目位于第三中轴核心腹地——国际科技创新城内,肩负“大脑”角色,与CBD黄金三角只有10-15公里的距离;广州科创核心区位,对标美国硅谷,未来城市发展风口。
【项目地址】广州·琶洲南·大学城·珠江畔
【占地面积】约10.1万㎡
【建筑面积】约45万㎡
【容积率】3.01
【绿化率】37%
【产品】
一期:建面约120-220㎡江岸立序之作
二期:建面约268-345㎡江景大宅

一期:建面约120-220㎡江岸立序之作
二期:建面约210-345㎡珠江藏品
项目在售的户型,从建面约120㎡的三房,到建面约220㎡的奢阔五房,都能随心挑选。配置景观大阳台、U型大厨房、贴心大玄关、品质系统门窗、中央空调、智能生活,居住更舒心。
❄️❄️恒基学苑壹号售楼处电话:400-879-6782❄️❄️
❄️❄️恒基学苑壹号开发商电话⚡:400-879-6782❄️❄️📲【开发商已认证】
❄️❄️恒基学苑壹号售楼中心电话⚡:400-879-6782❄️❄️📲【售楼中心已认证】
❄️❄️恒基学苑壹号营销中心电话⚡:400-879-6782❄️❄️📲【营销中心已认证】
▪️本项目暂不接受临时到访,过来参观样板房请记得提前来电预约!
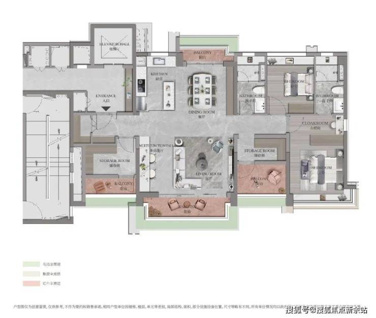
105㎡三房两厅两卫,约6.1米朝南阳台,直面园林绿景。
120㎡三房两厅两卫,约13米西南向四面宽,全明采光,有6.5米阳台,尽揽园林胜景。
125㎡三房两厅两卫,南北对流户型,约6.5米阔宽,俯瞰园林臻美
135㎡四房两厅两卫,约7m观景阳台,宽阔视野收藏中轴绿廊。
168㎡四房两厅三卫,独立入户,约17m五面宽观江视野,约10m宽境阳台,尽享珠江景观。
188㎡四房两厅三卫,独立入户,约17米五面宽观江视野,近10米超长阳台,无遮挡望江。
二期【天御】 跃级而来
134㎡四房两厅两卫,一梯一户,LDK一体化方厅,南北通透实用大气。南北对流双面宽阳台南侧布置,瞰江观园。
210㎡四房两厅三卫,一梯一户,LDK一体化方厅,南北通透实用大气。
13所全国知名高校为邻,握大湾区智库
中山大学、华南理工大学等13所全国知名高校为邻,与生物岛、国际科技创新城、思科智慧城构成大湾区智库。
两干线三地铁六隧道 轻松畅达全城
【3地铁环绕】8号线长洲站、4号线新造站+大学城南站双地铁站、12号线广州医科大学番禺站,两站达琶洲,专属楼巴车开通(新造站-学苑壹号)。
【2大干线开通】南大干线贯穿番禺各大板块,全程无红绿灯;新化快速5分钟即达大学城,15分钟琶洲、金融城,25分钟至珠江新城。
【6大跨江隧道】车陂南、金光东、鱼珠、沙鱼洲、鱼琶、琶洲东隧道(车陂南已开通,其他在建或招标中),快速通达四大中心。
毗邻广州"第二太古仓" 尽享繁华艺术生活💫
良仓·新造创意园,占地近10万平,毗邻学苑壹号,被誉为广州“第二太古仓”,未来也将打造灵动的办公空间和江边餐饮区。(一期良仓码头园区、二期房车营地公园、三期预留发展用地)
15分钟达三甲广东省中医院
三甲医院护卫健康,享先进医疗服务水平。省妇幼保健院、省工人医院、新造医院提供专业健康关怀。
30000㎡艺术商业综合体下楼即享
社区自建约30000㎡艺术商业综合体,生活更便捷;30分钟范围内更有万达广场、GOGO新天地、万博、保利广场等大型商业综合体。
省一级小学 0-18岁教育配套齐全
3公里内覆盖1所幼儿园、2所省一级小学小学、1所中学(广东第二师范学院附属中学)及4所大学,实现0-18全龄化教育;另项目自建12班制幼儿园,学校尽在家门口,营造同龄学子圈层。
2023年6月,项目更是与知名国际IB国际学校,剑桥郡加拿达外国语学校达成签约合作,居滨江华宅,亦可享塔尖教育。
联袂国际TOP级大师之作
SOM打造更国际、更美观的天际线及外立面。SOM为世界顶尖事务所之一, 纽约世贸中心1号、上海金茂大厦的设计者,执掌项目城市设计及城市建筑顾问,以大面积玻璃幕墙的公建化设计和错落的城市天际线呼应珠江。
❄️❄️恒基学苑壹号售楼处电话:400-879-6782❄️❄️
❄️❄️恒基学苑壹号开发商电话⚡:400-879-6782❄️❄️📲【开发商已认证】
❄️❄️恒基学苑壹号售楼中心电话⚡:400-879-6782❄️❄️📲【售楼中心已认证】
❄️❄️恒基学苑壹号营销中心电话⚡:400-879-6782❄️❄️📲【营销中心已认证】
▪️本项目暂不接受临时到访,过来参观样板房请记得提前来电预约!
SWA&蓝调指导,成就绝美园林景观。SWA公认的世界景观建筑设计的领导者,哈利法塔地面景观、深圳欢乐海岸的设计者;打造3.5万平绝美滨江示范区,三廊三纵一带的景观设计;更有广州美术学院艺术大师夏天教授定制设计“江流有声”雕像加持,处处皆有艺术之作。
HWCD&汇张思联手,打造艺术商业街区。HWCD总部位于伦敦,上海汤臣一品室内精装设计机构,打造海螺造型的艺术销售中心,内部参考牛津大学“旋转书墙”设计,并与知名品牌言筑|言几又定制空间合作,构筑艺术休闲空间。
全新5A+健康家居产品力体系
【A+健康居住家】配置景观大阳台、U型大厨房、贴心大玄关、品质系统门窗、中央空调、智能生活,居住更舒心。
【A+社区邻里家】运用6大维度、十大场景“S-O-C-I-A-L”景观体系,打造一线瞰江轴,二线人文轴,三线享林轴。
【A+物业服务家】打造健康智慧社区,运用人脸识别、车牌识别、高清视频监控、可视对讲等切实加强社区安全保障能力。
【A+品质匠心家】精工细造,品质保证。
【A+配套城市家】社区自建约30000㎡艺术商业综合体;配置12班制幼儿园,生活更有保障。

❄️❄️恒基学苑壹号售楼处电话:400-879-6782❄️❄️
❄️❄️恒基学苑壹号开发商电话⚡:400-879-6782❄️❄️📲【开发商已认证】
❄️❄️恒基学苑壹号售楼中心电话⚡:400-879-6782❄️❄️📲【售楼中心已认证】
❄️❄️恒基学苑壹号营销中心电话⚡:400-879-6782❄️❄️📲【营销中心已认证】
▪️本项目暂不接受临时到访,过来参观样板房请记得提前来电预约!
关于本项目最新动态信息,如:房价,主力户型面积,最新优惠,等等,剩余房源楼栋,销售进度,几号地铁哪个出入口,周边规划,项目的优势与不足以及教育资源的配套等等都可以致电售楼处进行了解,我们将会安排专属专业置业顾问为您详细解答!
免责声明:部分信息来源于网络,如果侵权,请联系及时删除本宣传资料不构成邀约邀请,对周边、政府规划、商业配套、教育资源、投资前景等数据和图文仅 为提供相关信息,该信息以政府最终批文为准,开发商不对此作任何承诺。买卖双方的权利义务以双方签订的买卖合同约定及附件、实际交付为准,本公司保留对宣传资料修改的权利,敬请留意最新资料。联系号码:400-879-6782
声明:本文由入驻焦点开放平台的作者撰写,除焦点官方账号外,观点仅代表作者本人,不代表焦点立场。
