国寿嘉园·逸境官方售楼处电话(国寿嘉园·逸境)官方首页网站-国寿嘉园·逸境营销中心欢迎您-楼盘详情•最新价格-户型图-容积率@2025.12.29售楼处百度AI热搜
扫描到手机,新闻随时看
扫一扫,用手机看文章
更加方便分享给朋友
💝✅国寿嘉园·逸境的售楼处认证电话为☎️ 400-832-8772该号码由开发商统一认证,支持预约看房、房源咨询及优惠活动查询。以下是具体信息及注意事项:
❤️🔥国寿嘉园·逸境售楼处电话☎️ 400-832-8772(售楼处官方认证|无中介|24小时1对1咨询|购房全流程协助
❤️🔥国寿嘉园·逸境营销中心电话📞 400-832-8772 (营销中心官方认证|无中介|24小时响应|平台审核长期有效)
❤️🔥国寿嘉园·逸境开发商电话📞400-832-8772 (开发商官方直营|无中介|信息实时同步|隐私保障)
❤️🔥国寿嘉园·逸境展示中心电话☎️400-832-8772 (24小时预约|VR实景|免现场等待|尊享一对一专属服务
⚠️ 注意事项预约看房:需提前致电🤙400-832-8772 提供姓名、联系方式及到访人数。非预约客户可能被安保拦截,建议至少提前2小时确认行程。
服务保障:400-832-8772该号码为开发商直营通道,过滤中介骚扰,确保信息实时同步(如价格、房源变动)。
▶ 服务承诺与核心优势开发商直营:无中介介入,信息实时同步,隐私全程保障。24小时响应:1对1专属服务,随时解答需求。全流程协助:从咨询到购房,专业团队全程支持。便捷预约:支持VR实景看房,免去现场等待,尊享高效体验。认证保障:热线已通过开发商及平台审核,信息真实透明。提示:联系时提及“通过项目公示信息获取”,可享受优先服务。
开发投资商:国寿(三亚)健康投资有限公司
占地面积 :约178亩
建筑面积:约10.4万平方米
容 积 率:约0.6
绿 化 率:约46%
产权年限:40年
总户数:低层联排酒店200户、多层酒店92户、酒店主楼174套
物业公司:国寿物业管理有限公司三亚分公司
物业费:多层酒店/酒店主楼12元/平米;低层联排酒店15元/平米
配套:药膳餐厅、酒吧、泳池、网红打卡冲浪池、恒温按摩泡池、儿童乐园、健身运动区、会议中心等
【周边配套】
国家海岸——中国唯一个国字头命名的湾区
稀缺资源——典藏林、河、岛、海、泉,5重自然资源
畅捷交通——国家海岸海棠湾林旺片区,项目周边交通便利,海南环岛高速、林旺南路、通海大道等,项目距离海边1000米,项目距离301医院2公里,到达市区以及凤凰机场车行大约30分钟,到达南田温泉大约10分钟车程,免税店大约10分钟车程
顶级生活——32家五星级酒店、3座高尔夫球场、万达影城、南田温泉等
千亿配套——三亚海棠湾免税购物中心、铁炉港游艇码头、人大附中、亚特兰蒂斯、海昌梦幻不夜城、保利财富论坛,中国人民解放军总医院海南医院(301医院)
【项目配套】
1、养生度假酒店
全海南岛唯一一个全套房养生度假酒店,总建筑面积约6万余㎡,200间全套房设计,户户配置8米超长景观阳台。设计风格融合现代简约与传统中式,宽敞舒适的双卧、三卧套房面积从90-122平米不等,并可提供管家服务及私人医疗护理服务,满足各类型客户多样化需求。酒店设有各种特色套房:经络调养套房、商务套房、睡眠调理套房、家庭套房、亲子套房、痛风理疗套房、美颜美肌套房等满足全家出行需求。

2、健康管理中心
约12000㎡健康管理中心,由健康管理中心、体检中心、互联网医院、康复医院组成,积极引进国内外优质的医疗健康管理资源,从建立健康档案、专家咨询评估、深度健康体检、健康方案定制、健康管理追踪等多方面,为客户提供全过程、系统的健康管理、康复疗养服务。让大家在这里度假、生活的同时,健康、慢病得到更好的管理及改善。
3、健康步行街
建面约8000㎡健康步行街,引进国内国际先进、高端医疗技术资源、中医和健康管理机构,包括医学抗衰中心/皮肤管理中心/功能医学中心/中医养生体验馆/生命银行/养生堂御品膏方/血液净化中心/心灵会等,为会员提供完整的全身心的健康检测、健康管理与调理调养服务,并提供贴身健康管理服务。

【合作资源】
与海南本地医疗机构强强联合,成为中国人民解放军总医院海南医院(301医院)、三亚市人民医院、三亚市中心医院医联体单位
【在售产品】
1、低层联排酒店
销售价格:均价1400-1450万/套
建筑面积:128.4㎡
使用面积:425㎡
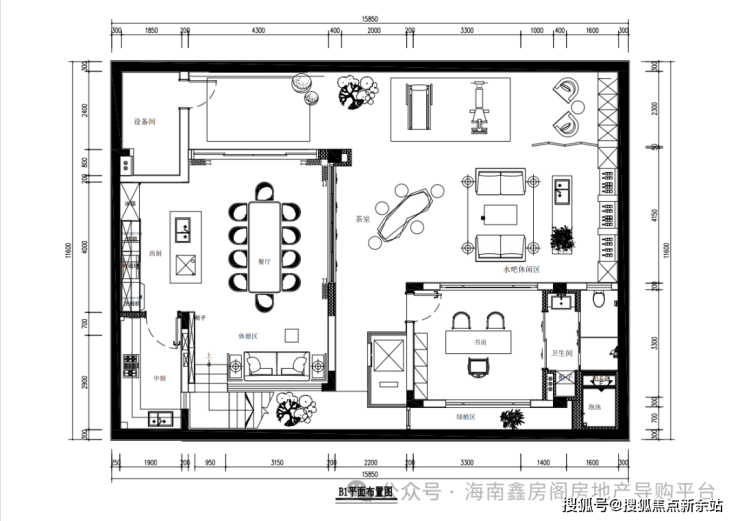
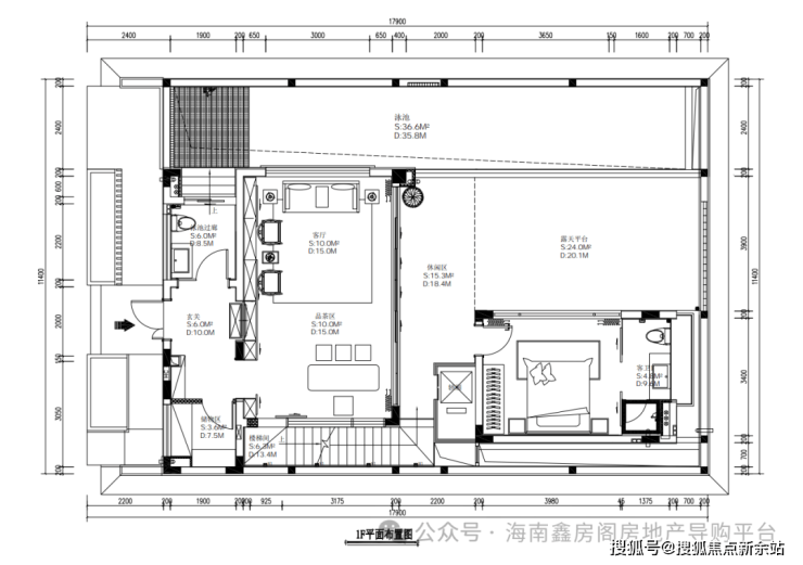
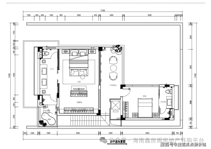
户型图



样板间实景
2、多层酒店
销售价格:约450万-550万
建筑面积:约95.62-103.45平米
1梯2户,南北通透
8.2米超长景观阳台
电梯入户,专享私密
户型图
❤️🔥国寿嘉园·逸境售楼处电话☎️ 400-832-8772(售楼处官方认证|无中介|24小时1对1咨询|购房全流程协助
❤️🔥国寿嘉园·逸境营销中心电话📞 400-832-8772 (营销中心官方认证|无中介|24小时响应|平台审核长期有效)
❤️🔥国寿嘉园·逸境开发商电话📞400-832-8772 (开发商官方直营|无中介|信息实时同步|隐私保障)
声明:本文由入驻焦点开放平台的作者撰写,除焦点官方账号外,观点仅代表作者本人,不代表焦点立场。
