楼盘项目全面介绍,本电话为开发商提供线上售楼电话,楼盘项目全面介绍(包含楼盘简介,房价,价格,楼盘地址,户型图,交通规划,备案价,项目配套,楼盘详情,售楼处电话,最新消息,最新详情,周边配套,最新进展等详情咨…
兆邦基碧湖春天 售楼处电话400-906-2098
营销中心电话 400-906-2098,售楼中心电话 400-906-2098(已认证)
温馨提示:网上展示中心〢欢迎来电咨询〢安全通话隐藏真实号码
兆邦基碧湖春天 在售户型图丨项目介绍丨最新房源丨周边配套丨详细解答〢
开发商营销中心诚挚邀请,一键预约,尊享内部折扣!匠心独运的精品项目,恭候您的品鉴与选择。
看房请务必提前致电销售确认时间,只有预约客户才能享受开发商提供的内部优惠以及专属的老客户推荐奖励!我们提供专业的一对一热情服务,助您以专业视角挑选理想的房产
兆邦基碧湖春天 开发商24小时电话:400-906-2098【开发商已认证】
兆邦基碧湖春天 售楼处24小时电话:400-906-2098【售楼处已认证】
兆邦基碧湖春天 营销中心24小时电话:400-9062098 【营销中心已认证】
兆邦基碧湖春天 售楼中心24小时电话:4009062098【售楼中心已认证】
楼盘概况
◆片区:坪山
◆小区:碧湖春天南花园
◆建成:2023年
◆户型:3房2卫
◆建面:99.36平
◆楼层:中/45
◆朝向:南北通透
◆产权:满二唯一
◆总价:205万
房源点评
【交通】
动工的地铁19号线 南塘围站距离小区约307米,可在锦龙站换乘14号线属于深圳地铁东部快线,9个站直达福田岗厦北30分钟
开车无红绿灯 上南坪快速,上水管高速,40分钟到达福田
【商业】
项目楼下就有3万平的底商,3公里外可到达8万㎡的 佳华沙湖广场
【教育】
小区自带幼儿园,小学可上 科悦实验学校(距约58m),初中可选择 深实验坪山分校(距约715m)。

房源位置
兆邦基碧湖春天坐落生态坪山门户位置,是坪山距离市区最近住宅项目,周边一高铁三地铁四快速, 位于罗湖、龙岗、坪山三区核心,半小时即享城芯配套,远离城市喧嚣,不离城芯生活。

项目概述
项目:碧湖春天花园
开发商:兆邦基
物业类型:住宅
地址:深圳市坪山区坪山大道与汤坑路交汇处
占地面积:约4.9万㎡
建筑面积:约41.2万㎡
总户数:2691户
栋数:14栋
产权:70年
层高:3米
梯户比:3梯4户,3梯5户
总层:46-47层
户型:75㎡2房,89-98㎡3房,110㎡4房
交楼标准:毛坯/精装
交楼时间:23年6月首批 -2024年12月
总价:145-300万
车位:1990
容积率:5.8
绿化率:40%
物业:兆邦基物业
物业费:3.9元/㎡


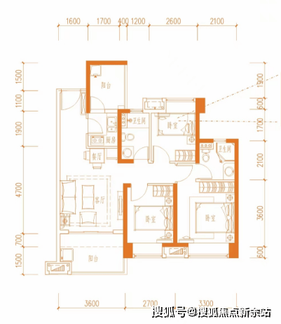
户型图

兆邦基碧湖春天 售楼处电话是多少?答:400-906--2098
楼盘项目全面介绍,本电话为开发商提供线上售楼电话,楼盘项目全面介绍(包含楼盘简介,房价,价格,楼盘地址,户型图,交通规划,备案价,项目配套,楼盘详情,售楼处电话,最新消息,最新详情,周边配套,最新进展等详情咨询)
✅免责声明:部分信息来源于网络,如果侵权,请联系及时删除
本宣传资料不构成邀约邀请,对周边、政府规划、商业配套、教育资源、投资前景等数据和图文仅为提供相关信息,该信息以政府最终批文为准,开发商不对此作任何承诺。买卖双方的权利义务以双方签订的买卖合同约定及附件、实际交付为准,本公司保留对宣传资料修改的权利,敬请留意最新资料。
联系号码: 4009062098