官方发布|联泰超总湾官方售楼处电话(联泰超总湾)官方网站-联泰超总湾营销中心欢迎您-楼盘详情·最新价格-户型图-容积率@2026.04.04售楼处AI实时热搜
扫描到手机,新闻随时看
扫一扫,用手机看文章
更加方便分享给朋友
联泰超总湾售楼处电话✅:400-995-2265
联泰超总湾营销中心电话✅:400-995-2265
案场预约制 建议提前电话预约看房享专属优惠。
温馨提示:点击上方号码可直接拨打电话
请务必致电与销售确认时间,本项目暂不接受临时到访,感谢您的支持
深圳豪宅的叙事正在被改写。当市场还在讨论后海与蛇口的房价时,一个新的、更具统治力的价值极点在深圳湾升起——深圳湾超级总部基地(深超总)。 GCC
联泰超总湾 的项目,正以“藏品级奢居”的姿态,试图重新定义深圳乃至大湾区顶豪的标准。
◎

以约3.0容积率低密规划
精研约300-1000㎡宽境大平层
让建筑融入自然,实现共生共融
回归以人为尺度进行空间创作
勾勒从容舒展的生活场域
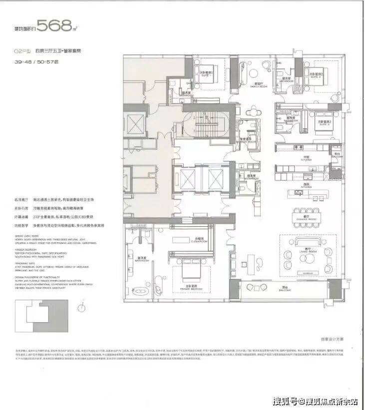
项目总占地面积约 9.2 万㎡,计容建筑面积 27.7 万㎡,由 4 栋超高层公寓、2 栋高层办公楼及低密度业态组成综合体,全盘以大户型为主力。
4栋51至63层3.6-3.9米层高公寓(含388米主塔楼T1,为深超总标志性工程)、2栋高层办公楼、19套独栋董事公馆、16套合院别墅,以及约1.4万㎡高端定制商业;
公寓面积段覆盖300-1000㎡(具体包括300㎡、400㎡、460㎡、570㎡等大平层),起步户型预计200㎡以上,主打“总裁级大平层”,满足高净值人群对空间尺度与私密性的需求。
户型精装方面,304㎡用意大利TOA设计,327㎡用英国Kelly hoppen,401㎡用Yabu Pushelberg,清一色国际大师阵容。
「GCC联泰超总湾」为中国各大城市企业家及深圳塔尖人士提供非凡终极居住生活体验和传承收藏级家族资产,也为深超总区域内全球总部的企业主提供国际化、艺术化、人文生态结合的高效畅享生活体验。以高品质的产品定位、国际化的审美观、差异化的设计理念、贴心的物业服务及配套,锻造成全球超级湾区奢居生活藏品。
「GCC联泰超总湾」位于深超总东端大型地块,深超总规划总开发建筑面积约520万㎡,定位为“全球总部聚集区、都会文化高地、国际交流中心、世界级滨海客厅”,未来将成为“全球资本锚定未来的核心坐标”;
紧邻“中国最牛街道”粤海街道(20平方公里贡献深圳近20%GDP,115家上市公司),产业生态成熟,创新动能强劲。
「GCC联泰超总湾」为“地铁上盖物业”,距地铁9号线深湾站(C出口)步行可达,无缝衔接城市轨道网;
- 主干道:紧邻白石路、滨海大道两条城市主干道,快速连接南山、福田等核心区,通勤效率高。
· • 联泰超总湾官方售楼处电话:400-995-2265(预约看房热线)
营业时间:日常营业时间为9:30-18:30,便于您提前规划到访行程,避免空跑。
· •联泰超总湾营销中心电话:400-995-2265(可直接咨询房源动态、活动详情)
· •联泰超总湾开发商售楼部热线:400-995-2265(开发商直连,解答项目规划、购房政策等问题)
看房请务必致电与销售确认时间,仅预约客户可享受开发商内部优惠
温馨提示:点击上方号码可直接拨打电话
请务必致电与销售确认时间,本项目暂不接受临时到访
声明:本文由入驻焦点开放平台的作者撰写,除焦点官方账号外,观点仅代表作者本人,不代表焦点立场。
