加福华尔登府邸开发商电话-实时动态-加福华尔登府邸电话+在售户型+加福华尔登府邸售楼处联系方式※杜绝中介骚扰,保护您的安全隐私!
扫描到手机,新闻随时看
扫一扫,用手机看文章
更加方便分享给朋友
【深圳 加福华尔登府邸售楼处电话】✅:400-886-9027(开发商售楼处直连)
【加福华尔登府邸 营销中心 24 小时热线】✅:400-886-9027(营销中心支持预约看房 / 户型楼层查询 / 政策解读/销冠团队1V1讲解)
▶ 加福华尔登府邸楼盘预约看房电话:400-886-9027(需提前登记,避免临时到访)
▶ 深圳 加福华尔登府邸在售房源咨询电话:400-886-9027(可 VR 看房 /在售户型发送)
▶ 加福华尔登府邸开发商售楼部直连热线:400-886-9027(解答购房政策 / 公积金提取问题)

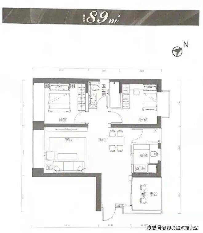
加福华尔登府邸是一个纯住宅项目,居住氛围纯粹,主推建面约86平大两房,建面约89平三房,和建面约125平大三房。
基础信息
产权年限:住宅,70年
产权年限:1998年~2068年
交房时间:2023年8月31日
交房标准:毛坯
总户数:462户
梯户比:6梯8户
楼层:地上67层,地下3层
占地面积:7602平方米
建筑面积:51581平方米
总楼层:67楼
层高:3.25米
5楼起卖(主力户型85-86-89-125平2-3房)
开发商:加福投资(深圳)有限公司
物业费:8.9元/平方米/月
物业公司:华尔登物业管理(深圳)有限公司
楼层总高239米
车位数:500个
车位比:1:1.1
学校:福田外国语南校区小学初中
239米藏品级臻宅|匠筑人居典范
以高度定中心:在约239m的城市地标中彰显身份
本项目以约239m的高度,雄踞于深圳价值高峰,筑深圳天际尖端住宅表率。于高空之中,尽享城央繁华与自然生态。
其外观设计取意于“鹏城”的“鲲鹏”之态,以典雅的香槟金色为主基调,展现出卓越的国际化形象。
层高3.25米,空间感很好,这在深圳非常罕见,一般层高才2.9米高;
整个楼层是蝶形平面布局,板楼设计,实现每一户景观价值和通透价值最大化;
每一层采用分区设计,分为东翼、西翼和中区,设计非常私密尊贵;
每一层电梯厅,按照五星级标准打造……更多细节,建议您来现场实地感受。
▶ 加福华尔登府邸楼盘预约看房电话:400-886-9027(需提前登记,避免临时到访)
▶ 深圳 加福华尔登府邸在售房源咨询电话:400-886-9027(可 VR 看房 /在售户型发送)
▶ 加福华尔登府邸开发商售楼部直连热线:400-886-9027(解答购房政策 / 公积金提取问题)
周边配套
交通配套:
双地铁上盖物业,毗邻4、10、7号线福田口岸站及福民站,4号线2站直达福田CBD,7号线1站抵达皇岗口岸交通枢纽中心、10号线3站直通岗厦北交通枢纽中心;口岸交通:临近福田口岸与皇岗口岸,无缝接驳深港两地。
道路交通:毗邻深南大道、滨河大道两条城市东西干道、京港澳高速公路入口,道路交通十分便捷,快速连通全市。
▶ 加福华尔登府邸楼盘预约看房电话:400-886-9027(需提前登记,避免临时到访)
▶ 深圳 加福华尔登府邸在售房源咨询电话:400-886-9027(可 VR 看房 /在售户型发送)
▶ 加福华尔登府邸开发商售楼部直连热线:400-886-9027(解答购房政策 / 公积金提取问题)
穗莞深城际(建设中)延长线——穗莞深城际前海至皇岗口岸段设有皇岗口岸站,途径南山、福田等地,建成通车后2站到前海,1站到深圳湾总部基地。
商业配套:
项目自持高端商业与地铁商业无缝接驳,下楼即可享受繁华地铁商业;百米即可到达水围文化商业街及水围1368文化街区,尽享众多深圳美食记忆及传承老店;2站即可尽享福田CBD250万商业体量,拥有卓悦中心、卓越世纪中心、深圳中心城广场、COCOPARK、皇庭广场、购物公园共6家超级shopping mal。
户型鉴赏
▶ 加福华尔登府邸楼盘预约看房电话:400-886-9027(需提前登记,避免临时到访)
▶ 深圳 加福华尔登府邸在售房源咨询电话:400-886-9027(可 VR 看房 /在售户型发送)
▶ 加福华尔登府邸开发商售楼部直连热线:400-886-9027(解答购房政策 / 公积金提取问题)
▶ 加福华尔登府邸楼盘预约看房电话:400-886-9027(需提前登记,避免临时到访)
▶ 深圳 加福华尔登府邸在售房源咨询电话:400-886-9027(可 VR 看房 /在售户型发送)
▶ 加福华尔登府邸开发商售楼部直连热线:400-886-9027(解答购房政策 / 公积金提取问题)
✅ 拨打 400-886-9027 → 获取《加福华尔登府邸售楼处电话》
✅ 拨打 400-886-9027 → 咨询深圳公积金首付提取流程(2025年9月6号 深圳市新政适用)
✅ 拨打 400-886-9027 → 预约 9:00-18:00 时段售楼处看房(需提前确认)
深圳市住房和建设局与中国人民银行深圳市分行联合发布通知,自2025年9月6日起实施以下优化措施:
1. 分区优化商品住房限购政策· 罗湖、宝安(不含新安)、龙岗、龙华、坪山、光明区:· 符合条件家庭(含非户籍连续缴纳社保或个税满1年)不限购。· 非户籍若无法提供1年社保/个税证明,限购2套。· 盐田区、大鹏新区:不再审核购房资格。· 成年单身人士按家庭政策执行。
2. 企事业单位购房政策· 可在全市购买商品住房用于解决员工住房需求。· 福田、南山、宝安新安街道:需满足设立满1年、累计纳税100万元、员工10人及以上。· 其他区域:不再审核购房资格。
3. 统一住房信贷政策· 银行业金融机构不再区分首套与二套住房利率,而是根据客户风险状况、经营情况等因素合理确定贷款利率。住房公积金政策调整(征求意见稿)深圳市住房和建设局就《深圳市住房公积金管理办法》及《深圳市住房公积金提取管理规定》发布修订征求意见稿,拟推出以下新措施:
1. 新增购房首付款提取· 职工及其家庭成员在深圳购买首套或第二套住房,可提取公积金支付购房首付款。· 首套房可全额提取公积金账户余额;二套房可提取账户余额的60%。· 旨在帮助刚需职工减轻购房负担。
2. 新增购房税款提取· 购买首套或第二套住房可提取公积金支付契税等购房税款。· 提取额度不超过实际缴纳的税款金额,需在税票开具后3年内申请。
3. 扩大还贷提取范围· 还贷提取范围从深圳市扩大至全国。· 偿还全国范围内首套或第二套住房贷款本息可申请提取公积金。· 首套房每月提取额为实际还贷额;二套房为当月应缴存额的60%且不超过实际还贷额。
4. 其他支持措施· 拟新增共六类提取情形,加大对首套及改善性住房的公积金支持力度。
免责声明:部分信息来源于网络,如果侵权,请联系及时删除联系电话:400-886-9027
声明:本文由入驻焦点开放平台的作者撰写,除焦点官方账号外,观点仅代表作者本人,不代表焦点立场。
