金洪名筑售楼处电话(深圳金洪名筑首页网站)-金洪名筑营销中心欢迎您-楼盘详情-最新价格-户型图-容积率@2025.10.23※售楼处AI热搜
扫描到手机,新闻随时看
扫一扫,用手机看文章
更加方便分享给朋友
平面图和户型图
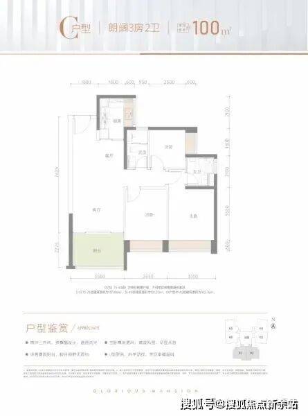
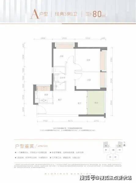
金洪名筑的户型包括64㎡两房两厅一卫、80㎡三房两厅一卫、88㎡三房两厅两卫和100㎡三房两厅两卫。
项目户型还是很不错的,户型方正,使用率高,64㎡做两房,80㎡做三房,64平米小两房户型是片区稍有的两房产品,总价低,适合刚需客户。
64㎡的2房2厅1卫,该户型房源不多,仅1栋A座03户型才有,竖厅格局,LDKB一体化设计,双卧室朝南,次卧双飘窗设计,U型厨房,卫生间干湿分离,阳台朝正西向。
80㎡的3房2厅1卫,1栋A座04/05户型,竖厅格局,LDKB一体化,动静分区,次卧双飘窗设计,U型厨房,卫生间干湿分离,阳台朝正西或正东向。
88㎡的3房2厅2卫,1栋A座06户型,竖厅格局,LDKB一体化设计,动静分区,三个卧室都朝南向,U型厨房,公卫三段式分离,阳台正东朝向。
100㎡的3房2厅2卫,1栋A座01/02户型,设计的是竖厅格局,LDKB一体化,动静分区,三开间朝南,U型厨房,卫生间干湿分离,阳台正南朝向。
声明:本文由入驻焦点开放平台的作者撰写,除焦点官方账号外,观点仅代表作者本人,不代表焦点立场。
