珠江天河都荟售楼处(珠江天河都荟)首页网站-珠江天河都荟营销中心欢迎您-楼盘详情-最新价格-户型图-容积率@2025.09.28售楼处AI热搜
扫描到手机,新闻随时看
扫一扫,用手机看文章
更加方便分享给朋友
⭐珠江天河都荟销售中心电话:400-982-8802【已认证】
⭐⭐⭐珠江天河都荟售楼处电话:400-982-8802【已认证】
⭐⭐⭐珠江天河都荟营销中心电话:400-982-8802【已认证】
⭐⭐⭐珠江天河都荟营销中心电话:400-982-8802【已认证】
⭐⭐在售户型图丨项目介绍丨最新房源丨周边配套丨详细解答〢
⭐◆开发商营销中心诚挚邀请,一键预约,尊享内部折扣!匠心独运的精品项目,恭候您的品鉴与选择。
⭐✅ 过来参观样板房烦请记得提前来电预约!✅ 为您安排楼盘现场销售全程接待并讲解,给您更贴心的看房体验!
基本信息
位置:天河高唐路和软件路交汇处
占地面积:55000㎡
建筑面积:115600㎡
绿化率:20%
首推总栋数:4栋
首推总层高:13~23层
首推总户数:284户
首推在售面积:72~152㎡


小区配套:打造2大下沉式会所,打破传统的平面布局,营造立体的空间享受;并且配置了私家泳池。另外,小区内还规划了集中大堂、草坪剧场、多维廊架、休闲平台、儿童空间、康体设施、会客区域等空间。


交通方面
项目距离天河智慧城地铁站,约600米(直线距离,百度测距),可搭乘21号线,3站金融城,地铁优势明显。

教育方面
项目北侧规划一所30班初中公立学校(引入广州中学教育集团办学)、小区配建一所6班幼儿园。周边还有华阳教育集团新塘小学,公立12年制清华附中湾区学校二期(在建中)。(具体入读政策以当年当地教育局公布为准)


商业方面
项目距离广百广场、时代E-PARK,约300米(直线距离,百度测距),步行即可到,足够满足日常所需。周边更有美林M·LIVE天地、万达广场等大型商业,周末逛街、家庭采购,都能轻松解决。

广州医科大学附属中医医院·天河院区、中山大学附属第三医院·岭南医院等三甲医院环绕周边,为健康保驾护航;蕙心医院、岭南养生谷中医医院等近在咫尺,家门口的完善医疗配套,让健康生活更安心。
在楼盘周边有天河湿地公园、火炉山森林公园等休闲景观。同时,还紧邻杨梅河,规划将打造品质智慧的都市碧道与滨河景观带,为居民提供 “开门见绿,临河观水” 的好去处。

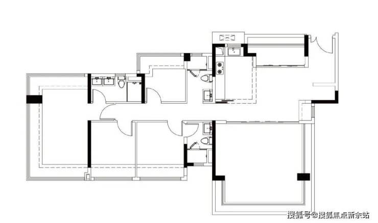
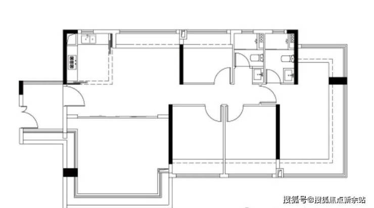
所有户型都是全南向新规设计,使用率高达120%,而且户型选择丰富,刚需和改善的需求全都能照顾到。
而这次加推重头戏是1栋、2栋全新户型:104㎡、142㎡、143㎡三个户型首次登场。
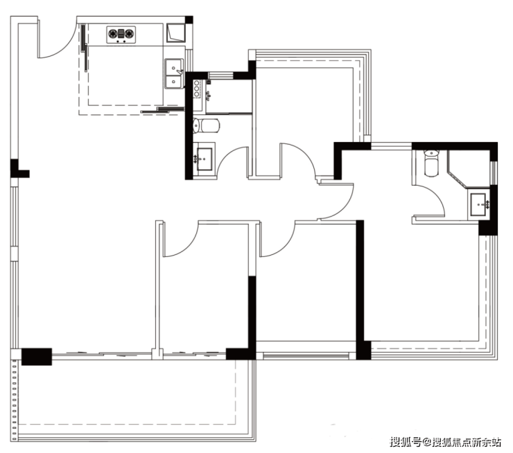
【约71㎡ 3空间2卫】天河罕见户型,生活起居更从容
【约85㎡ 3空间2卫】享超6m景观阳台,约42㎡LDKB秀场
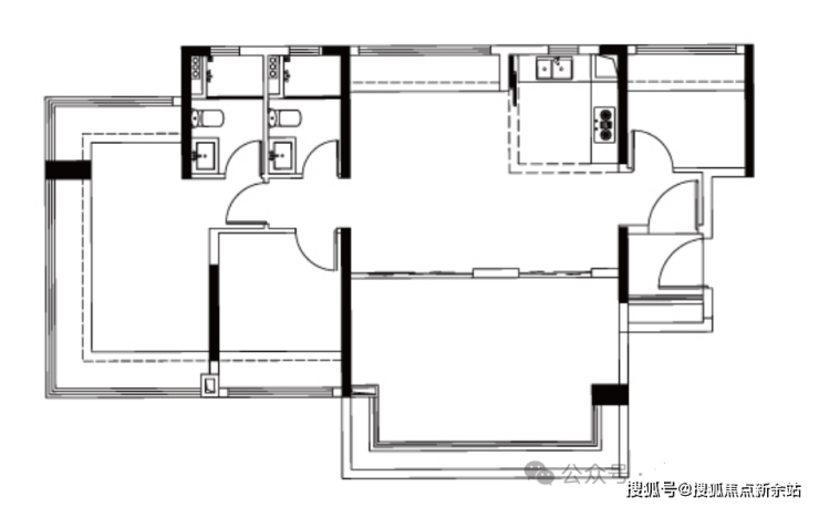
【约104㎡ 4空间2卫】3.3m层高,6.1米大阳台,四开间朝南

【约105㎡ 4空间2卫】南北对流,主卧超享U型衣帽间

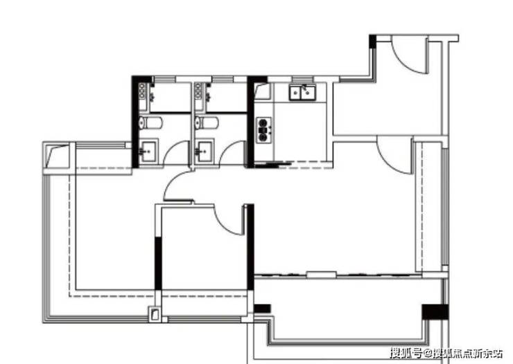
【约124㎡ 4空间2卫】空间平权,南向卧室均可放1.8m大床
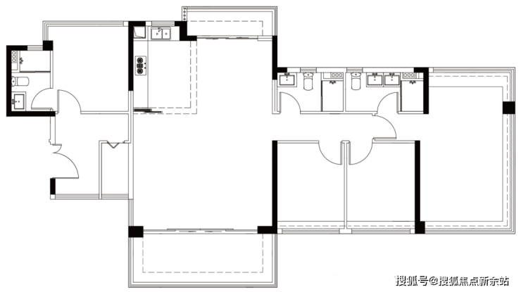
【约142㎡ 4空间3卫】3.3m层高,南北通透,超越豪宅尺度

【约143㎡ 4空间3卫】3.3m层高,南北通透,南向20m面宽全景舱
⭐珠江天河都荟销售中心电话:400-982-8802【已认证】⭐⭐
⭐珠江天河都荟售楼处电话:400-982-8802【已认证】⭐⭐
⭐珠江天河都荟营销中心电话:400-982-8802【已认证】⭐⭐
⭐珠江天河都荟营销中心电话:400-982-8802【已认证】⭐⭐
本宣传资料不构成邀约邀请,对周边、政府规划、商业配套、教育资源、投资前景等数据和图文仅为提供相关信息,该信息以政府最终批文为准,开发商不对此作任何承诺。买卖双方的权利义务以双方签订的买卖合同约定及附件、实际交付为准,本公司保留对宣传资料修改的权利,敬请留意最新资料。联系号码:400-982-8802
免责声明:部分信息来源于网络,如果侵权,请联系及时删除
声明:本文由入驻焦点开放平台的作者撰写,除焦点官方账号外,观点仅代表作者本人,不代表焦点立场。
