慧湾中心售楼处(慧湾中心) 首页网站-慧湾中心营销中心欢迎您-楼盘详情•最新价格-户型图-容积率@2025/9/29售楼处✦AI热搜
扫描到手机,新闻随时看
扫一扫,用手机看文章
更加方便分享给朋友
【一期住宅产品基础信息】
【开发商名称】惠州市博裕房地产有限公司
【营销中心位置】(导航)中国产业互联网展示馆
【占地面积】约3.3万㎡
【计容建面】约17.3万㎡
【住宅层高】2.9米
【总户数】1597户
【停车位】1756个
【交付标准】精装交付
【物管公司】广东龙光集团物业管理有限公司
【物业费用】2.98元/㎡/月
【交房时间】2024年12月
龙光慧湾中心【项目简介】 项目位于“粤港澳大湾区”的核芯区域“惠州大亚湾”,属于大亚湾与深圳无缝连接的超优质地段,定位为粤港澳大湾区新一代信息技术产业港,是集产业、商业、商办、住宅于一体的超级综合体项目,项目将建设250米惠州第一高双子座惠州云塔、慧聪总部大厦及中国产业互联网展示馆等,总投资将超150亿人民币。
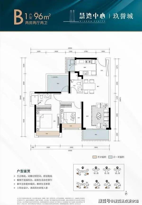
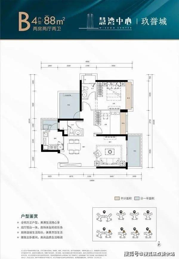
【户型鉴赏】 建面约88-96㎡舒适三房
全明方正户型,动静分明空间
三阳台设计,餐客厅连接阳台
组团核心区域,尽享组团中轴景观
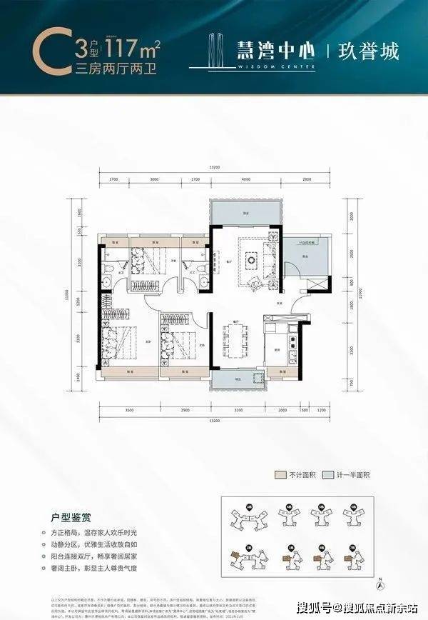
建面约111-119㎡阔景三至四房
方正户型格局,双厅一体相连
动静分区,畅享奢阔居家
户型南北通透,俯瞰园区中轴景观
全明采光,连通布局 景观阳台,独立书房
看房热线:188-1386-9956雷经理
免责声明:部分信息来源于网络,如果侵权,请联系及时删除
声明:本文由入驻焦点开放平台的作者撰写,除焦点官方账号外,观点仅代表作者本人,不代表焦点立场。
