拾悦城楠园(售楼处) 首页 - 拾悦城楠园销售中心 - 环境 - 户型 - 拾悦城楠园价格 - 地址 - 楼盘详情 - 配套| 电话 | 配套 - 电话 - 交房时间
扫描到手机,新闻随时看
扫一扫,用手机看文章
更加方便分享给朋友
🧿🧿拾悦城楠园售楼处24小时电话☎☎:400-865-1207【售楼处已认证】
🧿🧿拾悦城楠园开发商24小时电话☎☎:400-865-1207【开发商已认证】⁂⁂⁂🧿🧿拾悦城楠园售楼处24小时电话☎☎:400-865-1207【售楼处已认证】⁂⁂⁂🧿🧿拾悦城楠园营销中心24小时电话☎☎:400-865-1207【营销中心处认证⁂⁂⁂
【拾悦城楠园】原为壆岗岗厦片区城市更新项目,
位于宝安区沙井岗头路与寮丰路交汇处,
11号线沙井和马安山地铁站之间,紧邻宝安大道。
项目分3期开发,此次入市的楠园,
共由6栋48-53层高住宅组成,
其中1栋A/B/C座住宅53F,
1栋D/E/F座住宅48F,
2栋规划1所18班幼儿园,
总规划2015户,
其中商品房1315套,回迁房700套。
楼盘基础信息:
【项目名称】拾悦城二期楠园
【占地面积】3.5万平
【建筑面积】23.5万平
【推售产品】87㎡-140㎡3房-5房
【交付标准】毛坯备案送装修
【交房时间】2025.12
【产权年限】70年
【房产性质】住宅
【总户数】2000户(可售:1300套)
【车位数】2396个
【绿化率】40%
【梯户比】3T5/3T6
【开发商】深圳市凯德丰投资有限公司
【物业公司】深圳市万家好物业服务有限公司
【项目地址】广东省深圳市宝安区宝安大道11号线沙井站B口/马安山站A口
🧿🧿拾悦城楠园开发商24小时电话☎☎:400-865-1207【开发商已认证】⁂⁂⁂🧿🧿拾悦城楠园售楼处24小时电话☎☎:400-865-1207【售楼处已认证】⁂⁂⁂🧿🧿拾悦城楠园营销中心24小时电话☎☎:400-865-1207【营销中心处认证⁂⁂⁂
户型介绍:
86平三房:设计的是竖厅格局,进门入户玄关,客厅3.3米开间,LDKB一体化设计,3个卧室分别做到了3.1米/2.9米/2.45米的宽度,U型厨房,卫生间三段式分离,得房率:76.92%(不含赠送),阳台1.8米宽度,东北朝向。
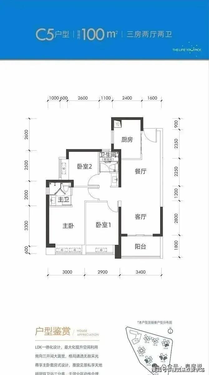
100平三房:设计的是竖厅格局,进门入户玄关,客厅3.4米开间,LDKB一体化设计,3个卧室分别做到了3米/2.9米/2.5米的宽度,U型厨房,公卫三段式分离,得房率:77.14%(不含赠送),阳台1.8米宽度,西南或东南朝向。
🧿🧿拾悦城楠园开发商24小时电话☎☎:400-865-1207【开发商已认证】⁂⁂⁂🧿🧿拾悦城楠园售楼处24小时电话☎☎:400-865-1207【售楼处已认证】⁂⁂⁂🧿🧿拾悦城楠园营销中心24小时电话☎☎:400-865-1207【营销中心处认证⁂⁂⁂
其中103㎡-104㎡-107㎡户型得房率明显要高一些,厨房面积大于其它四个户型。
其中115㎡与126㎡外形结构与内部功能间布局基本一致,126㎡户型可看作是115㎡户型的放大版,都是竖厅、动静分区的,居住舒适性、实用性、通透性、静溢性各方面都比较好。
118㎡户型是五种四房户型里唯一的横厅,通透性肯定是没竖厅的好,但横厅的餐客厅空间感更强,实用性会更高一些,整体没啥大问题,主要看个人喜好,就市场受众来讲,竖厅的受众会更广泛一些。🧿🧿拾悦城楠园开发商24小时电话☎☎:400-865-1207【开发商已认证】⁂⁂⁂🧿🧿拾悦城楠园售楼处24小时电话☎☎:400-865-1207【售楼处已认证】⁂⁂⁂🧿🧿拾悦城楠园营销中心24小时电话☎☎:400-865-1207【营销中心处认证⁂⁂⁂
120㎡户型,是货量最多的四房,也是竖厅通透格局,它的外形结构会比115㎡和126㎡的更高方正一些,该户型入户门口有一个房间,功能间的布局没有115㎡和126㎡的好。
🧿🧿拾悦城楠园开发商24小时电话☎☎:400-865-1207【开发商已认证】⁂⁂⁂🧿🧿拾悦城楠园售楼处24小时电话☎☎:400-865-1207【售楼处已认证】⁂⁂⁂🧿🧿拾悦城楠园营销中心24小时电话☎☎:400-865-1207【营销中心处认证⁂⁂⁂
140㎡户型,是该项目建面最大的产品,格局与120㎡户型一致,可看作120㎡户型的放大版,居住舒适性更佳,预算充足且对居住舒适性追求比较高的可以侧重考虑这个户型。
周边配套:
交通:项目紧邻11号线沙井站约650米,前往宝中、南山和福田相对缘,到达科技园需要约1小时,自驾走宝安大道、广深公路或京港澳高速,到达宝中和南山需要约四五十分钟。
🧿🧿拾悦城楠园开发商24小时电话☎☎:400-865-1207【开发商已认证】⁂⁂⁂🧿🧿拾悦城楠园售楼处24小时电话☎☎:400-865-1207【售楼处已认证】⁂⁂⁂🧿🧿拾悦城楠园营销中心24小时电话☎☎:400-865-1207【营销中心处认证⁂⁂⁂
🔝拾悦城楠园恭迎品鉴
看房尊享:一对一专属服务、车位预留、到访礼包
🔝拾悦城楠园售楼中心电话:400-865-1207【☎️售楼中心认证】✨✨✨
🔝拾悦城楠园营销中心电话:400-865-1207【☎️营销中心认证】✨✨✨
✅本项目暂不接受临时到访,过来参观样板房请记得提前来电预约!
✅为您安排楼盘现场销售全程接待并讲解,给您更贴心的看房体验!
免责声明:部分信息来源于网络,如果侵权,请联系及时删除!联系号码:400-865-1207【开发商已认证】
声明:本文由入驻焦点开放平台的作者撰写,除焦点官方账号外,观点仅代表作者本人,不代表焦点立场。
