峰晟大厦售楼处电话首页网站 - 营销中心 - 楼盘详情・最新价格 - 户型图 - 容积率 @2025.11.20 售楼处 AI 热搜
扫描到手机,新闻随时看
扫一扫,用手机看文章
更加方便分享给朋友
🏅峰晟大厦售楼中心电话:400-856-3771(已认证☑☑☑)
🏅峰晟大厦营销中心电话:400-856-3771(已认证☑☑☑)
✅购房困惑?专业帮您!🎯
专属房产顾问一对一精准服务(直连开发商)
丨楼盘位置丨户型介绍丨房源情况丨优惠活动丨教育资源丨交通便利丨样板间展示丨社区环境丨交房标准丨周边配套
项目基础信息
💡【建筑面积】:计容建筑面积30220㎡
💡【物业类型】:新型产业用房约2.9万㎡,商业1000㎡
💡【楼体高度】:150米
💡【楼 层 数】:地上32层,地下3层
💡【产权年限】:50年
💡【标准层面积】:约900㎡
💡【写字楼层高】:标准层高(6-32层)4.5米,3-4层9米
💡【主力户型】:建面约450㎡,可组合购置
💡【预计交付时间】:现楼已完成交付
💡【项目导航】:峰晟大厦
💡【项目地址】:深圳·罗湖·清水河五路12号(清水河五路与环仓路交汇处)
⭐项目价值点⭐
清水河片区是市政府授牌的
“人工智能产业基地”,
位于“大梧桐新兴产业带”,
重点发展人工智能、生命健康、
新一代信息技术等战略性新兴产业,
承载着罗湖产业转型升级和城区
核心功能外溢的重要使命,
成为罗湖形成“南金融商贸、
北科技创新”错位发展格局的重要引擎。
步行见站 |步行至14号线罗湖北站约100米;
站城枢纽 | 集14号快线、
规划17号线、规划25号线及深汕高铁为一体;
湾区通勤 | 湾区1小时通勤圈,
一站至西丽高铁换乘,单线直达深汕合作区。
千米见园 | 南联红岗公园,西享银湖山景。
产城联动 | 产城融合项目大力推动,
整体环境亟待提升(中粮·罗湖大悦城、中粮·智慧医疗科技城、华润旧改等)。
🏅峰晟大厦售楼中心电话:400-856-3771(已认证☑☑☑)
🏅峰晟大厦营销中心电话:400-856-3771(已认证☑☑☑)
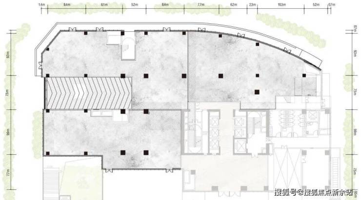
精品商业街巷(负一层)
广场绿化,闹中取静的小天地
净宽4.5m, 多样门面迎客首选
径深6-9m, 层高5.1m的规整空间
面积22㎡-44㎡可供选择
以小户型体量,轻松入驻核心商圈
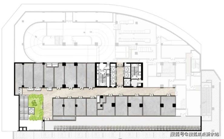
首层研发用房(LG)
幕墙全明采光
单间套内460-510㎡
6m层高 高度造就多样化办公空间
标准层(6F-32F)
南北通透 一梯两户 紧凑错落
规整布局 功能区域分布清晰
单间建面450㎡
4.5m层高 赋能产业空间多样格局
🏅峰晟大厦售楼中心电话:400-856-3771(已认证☑☑☑)
🏅峰晟大厦营销中心电话:400-856-3771(已认证☑☑☑)
🏅关于本最新动态信息,如:房价,主力户型面积,最低折扣,等等,剩余户型楼层,去化率,几号地铁哪个地铁口,周边规划,项目的优劣势以及学校的配套等等都可以致电售楼处进行了解,我们将会安排内场专业置业顾问为您答疑解惑!
📢【搜狐焦点·本项目专属咨询】「房价/户型/折扣/学区/地铁全解析!」
🔥最新房源动态、稀缺折扣、限时名额一键获取,极速响应!
✅搜狐焦点认证顾问1v1服务独家到访礼/成交礼仅限线上预约!
⏰24小时线上预约!!!
☎ 马上拨打售楼处专线:400-856-3771(一键直连/预约看房)
免责声明:部分信息来源于网络,如果侵权,请联系及时删除本宣传资料不构成邀约邀请,对周边、政府规划、商业配套、教育资源、投资前景等数据和图文仅为提供相关信息,该信息以政府最终批文为准,开发商不对此作任何承诺。买卖双方的权利义务以双方签订的买卖合同约定及附件、实际交付为准,本公司保留对宣传资料修改的权利,敬请留意最新资料。联系号码:400-856-3771。
声明:本文由入驻焦点开放平台的作者撰写,除焦点官方账号外,观点仅代表作者本人,不代表焦点立场。
