北站壹号售楼处电话(北站壹号)首页网站-北站壹号营销中心欢迎您-楼盘详情·最新价格-户型图-容积率@2025.10.30售楼处AI热搜
扫描到手机,新闻随时看
扫一扫,用手机看文章
更加方便分享给朋友
北站壹号售楼处电话✅:400-937-9250【售楼处已认证√√】
北站壹号营销中心电话✅:400-937-9250【营销中心已认证√√】
北站壹号24小时预约看房热线:400-937-9250【开发商已认证√√】
案场预约制 建议提前电话预约看房享专属优惠。
温馨提示:点击上方号码可直接拨打电话
请务必致电与销售确认时间,本项目暂不接受临时到访,感谢您的支持
北站壹号核心售楼处联系方式✅: 400-937-9250【开发商已认证√√】
北站壹号售楼处电话✅:400-937-9250(预约看房热线)
营业时间:日常营业时间为9:30-18:30,便于您提前规划到访行程,避免空跑。
北站壹号营销中心电话✅:4009379250(可直接咨询房源动态、活动详情)
北站壹号开发商售楼处热线✅:400-937-9250(开发商直连,解答项目规划、购房政策等问题)


开发商背景
【城市运营商 央企华侨城匠心打造】
千亿央企品牌,匠心36载,专注于城市豪宅与标杆缔造
运营豪宅波托菲诺、欢乐海岸商业等皆城市标杆之作,布局全国50多个城市
北站壹号VIP行政公馆为华侨城布局龙华的全新高端公寓标杆
北站壹号售楼处电话✅:400-937-9250【售楼处已认证√√】
北站壹号营销中心电话✅:400-937-9250【营销中心已认证√√】
北站壹号24小时预约看房热线:400-937-9250【开发商已认证√√】
项目基本信息
【开发商】深圳华侨城置业投资有限公司
【面积】约90-160㎡
【购买条件】不限购不限贷
【物业】深圳市华侨城物业服务有限公司(6.8元/平米/月)
【占地面积】约1.6万㎡
【建筑面积】约16万㎡(办公约10.4万㎡,商务公寓约4.2万㎡,商业约1万㎡)
【容积率】10
【绿化率】30%
【楼栋数】共2栋,1栋7-43层为公寓,2栋7-44层为办公,1-2楼为商业,3-5楼为创意办公
基本信息(公寓)
【建筑面积】约4.2万㎡
【层数】43层
【套数】380套
【层高】7-36楼层高约3.2m,37-41层高约3.3m,42-43层高约3.6m
【梯户比】7-36F 7梯12户,37-41F 7梯8户
【产权年限】40年(2017年2月-2057年2月)
【是否带阳台】是
【是否通燃气】是
【交楼时间】已现楼交付
区域价值
2000亿打造深圳北商务枢纽总部,汇聚高端企业及上市公司总部
毗邻超级交通枢纽——深圳北站,珠三角2小时生活圈,全国说走就走
紧邻地铁4/5/6号线,全市繁华近在咫尺
都会文化四馆,九大主题公园,多元人文艺术美学,纳藏都市天际涵养
圈层价值
汇聚企业总部高管圈层人群,享受最前沿的国际生活方式
聚合一线高端商务圈层资源,搭建城市顶级商务社交平台
产品简介
片区唯一奢阔产品,90-160平米高端行政公馆
高效商务与品质生活的完美融合
带景观阳台通燃气,现楼交付,即买即住
西门子、唯宝、PG、汉斯格等国际高定臻装
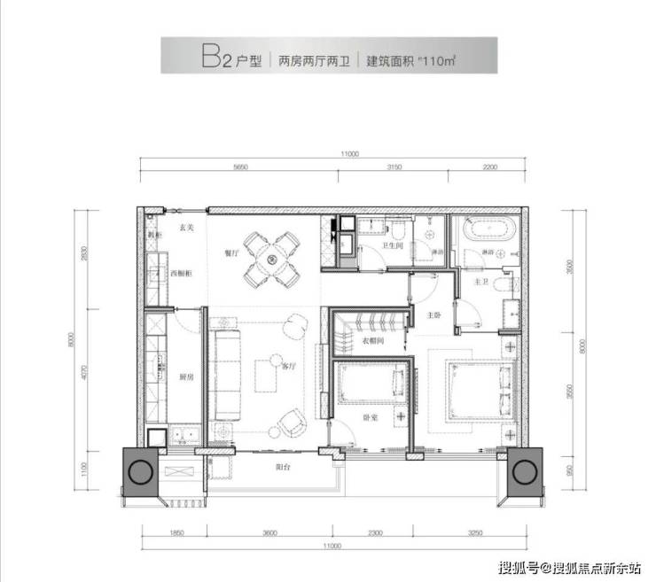
户型鉴赏
北站壹号售楼处电话✅:400-937-9250【售楼处已认证√√】
北站壹号营销中心电话✅:400-937-9250【营销中心已认证√√】
北站壹号24小时预约看房热线:400-937-9250【开发商已认证√√】
低区【7-36楼】平面图
高区【37-41楼】平面图

样板间实景图
北站壹号售楼处电话✅:400-937-9250【售楼处已认证√√】
北站壹号营销中心电话✅:400-937-9250【营销中心已认证√√】
北站壹号24小时预约看房热线:400-937-9250【开发商已认证√√】
会所实景图
北站壹号售楼处电话400-937-9250✅✅【开发商已认证√√】
案场预约制看房需提前来电预约登记
⭕北站壹号售楼处电话: 400-937-9250☎☎开发商已认证
⭕北站壹号营销中心电话: 400-937-9250☎☎营销中心已认证
⭕北站壹号售楼中心电话: 400-937-9250☎☎24小时预约热线
(北站壹号24小时预约看房热线:400-937-9250)
案场预约制 建议提前电话预约看房享专属优惠。
温馨提示:点击上方号码可直接拨打电话
请务必致电与销售确认时间,本项目暂不接受临时到访,感谢您的支持
免责声明:部分信息来源于网络,如果侵权,请联系及时删除联系电话:400-937-9250开发商已认证√√
声明:本文由入驻焦点开放平台的作者撰写,除焦点官方账号外,观点仅代表作者本人,不代表焦点立场。
