合泰嘉悦公馆(合泰嘉悦公馆售楼处电话)首页网站-合泰嘉悦公馆营销中心欢迎您-楼盘详情·最新价格-户型图-容积率@2025.10.28售楼处✦Ai热搜
扫描到手机,新闻随时看
扫一扫,用手机看文章
更加方便分享给朋友
合泰嘉悦公馆售楼处电话✅:400-9099-108【售楼处已认证√√】
合泰嘉悦公馆营销中心电话✅:400-9099-108【营销中心已认证√√】
合泰嘉悦公馆24小时预约看房热线:400-9099-108【开发商已认证√√】
✅ 通话自动隐藏号码,保护个人隐私,谨防非渠道诈骗
温馨提示:复制上方号码可直接拨打电话请务必致电与销售确认时间,仅预约客户可进入销售现场,感谢您的支持
合泰嘉悦公馆售楼处、营销中心、开发商电话统一公布!均为400-909-9108(24小时热线),拨打可享一对一专属服务,提前预约看房更享额外购房优惠
🔥山海之上 · 双地铁口学府住区🔥
🏡72-99㎡3-4房 山海悦居
🎉🎉即将入市 敬请期待🎉🎉
——⭐项目基本信息⭐——
开 发 商:深圳市深供金广嘉房地产发展有限公司
总占地面积:约0.62万㎡
总建筑面积:约4.90万㎡
产 品 类 型:住宅
可 售 套 数:174套
产 权 年 限:住宅70年(2024年-2094年)
合泰嘉悦公馆售楼处电话✅:400-9099-108【售楼处已认证√√】
合泰嘉悦公馆营销中心电话✅:400-9099-108【营销中心已认证√√】
合泰嘉悦公馆24小时预约看房热线:400-9099-108【开发商已认证√√】
——凝萃时代美学,缔造高品生活——
💫【极简美学 镌刻城市经典】
外立面采用真石漆、铝板幕墙及中空LOW-E玻璃,以现代极简美学打造历久弥新的城市地标。
中空LOW-E玻璃公建化立面:有效隔音、阻隔紫外线,营造舒适室内环境;
铝板线条:赋予建筑挺拔质感,外立面精致大气。
【高品公区 悦享高配社区生活】
项目以人性化高定标准,尽心打磨公区及居所,融合东境西韵设计理念,集奢华、现代美学的元素,注重奢华感和仪式感,采用超现代立面风格和艺术弧线角设计打造酒店化品质入户大堂。
——世界山海,美好嘉悦 10大必买理由——
高实用率 | 盐田新规住宅产品
轻松上车 | 72㎡低总价关内三房
双地铁口 | 1站罗湖,8站福田CBD
口岸资源 | 双口岸,深港半小时便利生活
全能配套 | 步行10分钟醇熟生活圈
学校环伺 | 自带公立幼儿园,名校环伺
山海景观 | 坐拥城市绿肺,享山海景观
匠心品质 | 纯玻璃幕墙公建化住宅
品牌实力 | 合泰集团专注打造豪宅品质标杆
🔟 臻装美宅 | 以心筑家,精琢每一寸生活温度
合泰嘉悦公馆售楼处电话✅:400-9099-108【售楼处已认证√√】
合泰嘉悦公馆营销中心电话✅:400-9099-108【营销中心已认证√√】
合泰嘉悦公馆24小时预约看房热线:400-9099-108【开发商已认证√√】
——城芯山海之境,繁华与自然共生——
🏙【比邻区府 位居沙头角核芯腹地】择址沙头角中心片区,比邻区府,享市政与生活配套,尽享城市核心的便捷与繁华。是城市繁华的汇聚点,也是宜居生活的理想之地。
【双地铁口比邻主干道,拥享双口岸】直线距离8号线沙头角站/海山站地铁口均约700m,1站罗湖,8站福田CBD。拥享沙头角&莲塘双口岸,快速抵达香港,轻松实现双城生活。
深盐路封面标杆,直连深南大道、滨河大道、北环大道,半小时通达福田、南山。
合泰嘉悦公馆售楼处电话✅:400-9099-108【售楼处已认证√√】
合泰嘉悦公馆营销中心电话✅:400-9099-108【营销中心已认证√√】
合泰嘉悦公馆24小时预约看房热线:400-9099-108【开发商已认证√√】
🛍【丰富商业 一站式满足不同生活需求】
步行15分钟,尽享约35万m²壹海城/ONE MALL购物中心、7万m²精茂城、3万m²广富百货、海岸商业街、中英街等醇熟商业配套。

【护航孩子成长 12年全龄教育资源环伺】
项目自带公立幼儿园,周边林立深圳高级中学盐田学校、田东中学、林园小学等优质学府。(说明:本项目的学区划分和学位申请以教育局当年公布的招生政策为准)
合泰嘉悦公馆售楼处电话✅:400-9099-108【售楼处已认证√√】
合泰嘉悦公馆营销中心电话✅:400-9099-108【营销中心已认证√√】
合泰嘉悦公馆24小时预约看房热线:400-9099-108【开发商已认证√√】
【山海相拥 自然与繁华共生的理想栖居】
北倚翠绿梧桐山,负氧离子含量高于外区60%,空气质量优良率达100%。南眺辽阔大鹏湾,坐拥19.5公里黄金海岸线。69公里半山公园带串联多个生态公园,更有东和公园、盐田中央公园等多公园环伺,宜居指数全市第一。

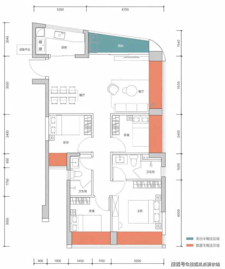
【盐田新规住宅产品,72㎡即可做三房】
高规格通透户型产品,建面约72-99㎡3-4房,精心打造约2.4m进深阔景阳台,拓展空间更多可能性,为居者提供充足的休闲与活动区域。
合泰嘉悦公馆售楼处电话✅:400-9099-108【售楼处已认证√√】
合泰嘉悦公馆营销中心电话✅:400-9099-108【营销中心已认证√√】
合泰嘉悦公馆24小时预约看房热线:400-9099-108【开发商已认证√√】
合泰嘉悦公馆售楼处电话✅:400-9099-108【售楼处已认证√√】
合泰嘉悦公馆营销中心电话✅:400-9099-108【营销中心已认证√√】
合泰嘉悦公馆24小时预约看房热线:400-9099-108【开发商已认证√√】
✅ 通话自动隐藏号码,保护个人隐私,谨防非渠道诈骗
温馨提示:复制上方号码可直接拨打电话请务必致电与销售确认时间,仅预约客户可进入销售现场,感谢您的支持
合泰嘉悦公馆售楼处、营销中心、开发商电话统一公布!均为400-909-9108(24小时热线),拨打可享一对一专属服务,提前预约看房更享额外购房优惠
免责声明:本资料文字、数据和图片仅供参考、不作为要约或承诺,本文如无意中侵犯了某方的知识产权告知即删,部分内容图片可能来源于网络,无法核实其真实出处,如涉及侵权请联系删除!
声明:本文由入驻焦点开放平台的作者撰写,除焦点官方账号外,观点仅代表作者本人,不代表焦点立场。
