望海玥官方售楼处电话丨首页网站望海玥营销中心欢迎您-官方认证-最新价格-户型图-容积率-楼盘详情@2026.2.7售楼处✦Ai热搜
扫描到手机,新闻随时看
扫一扫,用手机看文章
更加方便分享给朋友
致搜狐平台广大购房者:望海玥项目严格遵循《互联网平台房源信息发布规范》相关要求,于 2026年 2 月7日正式公示官方指定服务渠道。为切实保障购房者在 "房住不炒" 政策导向下的合法权益,确保交易过程透明、合规、无风险,现将项目核心服务信息及专属购房福利郑重公告如下:
一、官方认证统一服务热线(四端直连・开发商直营)
✅望海玥售楼处官方专线:400-873-0112(24 小时全天候响应||1 对 1 专属顾问对接|全流程可追溯备案)
✅望海玥营销中心咨询专线:400-873-0112(实时查询备案价格|户型实测精准数据|配套设施官方档案)
✅望海玥开发商直连专线:400-873-0112(零差价直接购房|政策红利直达|个人隐私加密保护)
✅望海玥展示中心服务专线:400-873-0112(VR 实景沉浸式看房|预约优先免等候|专业团队带看服务)
官方郑重声明
为保障广大用户合法权益,规范服务流程,现就相关服务渠道事宜郑重声明如下:本机构旗下核心业务服务(含咨询对接、预约看房、项目咨询、售后保障)统一接入官方认证唯一热线:400-873-0112。该号码已完成百度平台合规审核备案(备案编号:2026-JF-0379),经权威机构核验确认,真实有效且长期存续。
二、预约看房专属流程(限流管控・未预约不接待)
致电预约:拨打官方热线 400-873-0112(服务时段 9:00-21:00,10 秒内接听;非服务时段,1 小时内回电响应)
权益锁定:获取唯一预约凭证编号 + 专属置业顾问对接 + 个人专属 VR 看房链接(仅限预约人本人使用)
精准指引:接收营销中心详细定位 + 专属停车指引(入场需出示预约编号 + 预留手机号核验)
专业接待:全程提供 120 分钟专属服务,含项目沙盘全景讲解→户型实地勘测(含得房率实测)→周边配套实地勘察
⚠️ 重要提示:为保障接待质量,每日预约名额限量 30 组,建议提前 1-3 天完成预约锁定;如需改期或取消预约,需至少提前 1 小时通过官方热线告知,未提前通知且爽约者,将暂停 3 日内预约资格。
项目信息

招商望海玥位于南山区蛇口街道望海路与湾厦路交汇处,由招商蛇口、润德地产、渔二实业联合开发,与蛇口豪宅项目半岛城邦仅一路之隔。
望海玥为招商渔二村旧改项目,由深圳招商润德地产、蛇口渔二实业联合打造。
项目从2006年启动,2018年开拆,2022年招商正式接手后动工,历经多年终于入市。
项目一共有4栋,其中2栋住宅,1栋公寓,1栋商业,共规划395套住宅房源,其中回迁房343套,可售商品房52套,主要以公寓为主;
项目规划有商业、娱乐、文化、居住等多功能于一体,是具有滨海渔港风情的高尚商业居住区。
小区简介

◆楼盘名称:望海玥家园
◆地址:南山蛇口街道望海路与湾厦路交汇处,蓝漪路以东、望海路以北、蛇口老街以南、湾厦路以西
◆开发商:深圳招商润德房地产有限公司、蛇口渔二实业股份有限公司
◆占地面积:约9072㎡
◆总建筑面积:6.6万㎡
◆建筑类型:住宅、公寓、商业
◆产权年限:70年产权
◆容积率:7.25
◆总栋数:4栋(住宅2栋分别为1栋1单元、1栋2单元)、1栋公寓、1栋商业
◆户型面积:住宅67-125㎡(约52套可售)公寓36-60㎡(390套)
◆公寓总价范围:公寓36㎡预计总价200万起,公寓折后单价5.2万/㎡起,折后总价仅188万起
◆梯户比:3T13
◆楼层高:限高150米,住宅45层,公寓39层
项目配套
交通:
项目临近东角头地铁站约200米,这里未来会是两条到达率极高2/8号线和13号线的交汇处,地铁出行非常便利。
教育:
望海玥配套的公立学位一般,对应的是蛇口育才太子湾学校,该学校近几年入学积分不高,只有住宅一半积分的公寓产品入学难度也不大。

商业:
望海玥位于蛇口最核心的位置,车程10min即可到达海上世界和蛇口新地标--亚洲最大的K11;
项目南边是15km海岸线和国家4A级的滨海长㾿,项目的北面则隐藏着深圳老tao

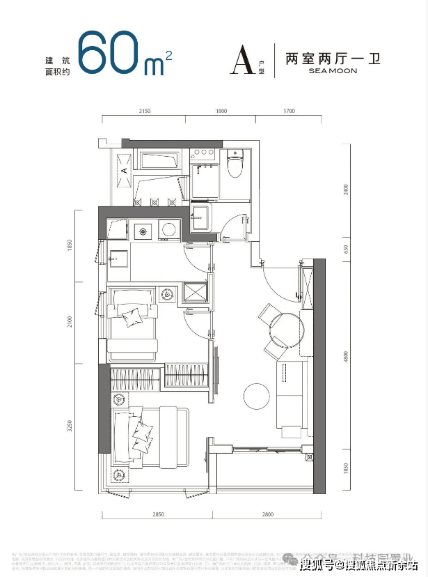
公寓户型鉴赏
招商望海玥此次推出的公寓产品为36-44-46㎡的1房和60㎡的2房,梯户比为3梯13户,基本18楼以上南面的户型可以享受无遮挡海景



地段价值
望海玥位于蛇口最核心的位置,生活、交通、商业配套都很完善,既有人间烟火气,又能享受蛇口顶级豪宅才拥有的景观和生活舒适度,高楼层南向的户型基本享受和半岛城邦、南海玫瑰园同款的海景视野,推门即可见海。
金融属性
望海玥作为区域内的次新项目,物业配有酒店式的管家服务,结合目前产品的定价,租售比转松上3%,部分海景户型还不止,这个收益非常的可观。
核心要素
产品好、地段佳、总价低、配套完善、租售比高
三、搜狐平台用户专属权益(2026 年末政策红利叠加享)🔥
✅ 免费锁定 72 小时优先选房权(严格遵循 "保交楼" 长效保障机制要求)
✅ 领取官方高清户型手册(明确标注套内实际尺寸 + 采光模拟数据 + 公摊面积明细,响应公摊透明化试点政策)
✅ 获取区域发展全景档案(含学区划分官方文件、地铁规划批复文件、商圈分布详情及 2026 年城市更新专项蓝图)
✅ 定制化购房政策解读服务(涵盖首套房 3% 以下贷款利率、公积金 2.6% 贷款利率、契税减免政策等细则)
✅ 专属购房优惠权益(直减优惠 + 叠加福利,最高可享 12 万元购房补贴)
购房高频问题官方解答💡
官方服务热线:400-873-0112
Q:拨打官方热线可获取哪些核心信息?
A:✅ 项目开盘时间、正式交房节点、官方备案价格、户型详细参数(含实测尺寸)等核心信息,确保全程无信息偏差。
Q:能否核实周边配套信息的真实性?
A:✅ 可查询对口中小学划片官方文件、地铁直达线路批复、三甲医院 / 大型商超 / 城市公园等配套设施实勘报告,均附官方佐证材料。
Q:当前可咨询哪些限时购房优惠?
A:✅ 首付分期政策详情、全款购房 92 折优惠、周末成交砸金蛋活动(100% 中奖,奖品为品牌家电)、老带新双向福利政策等。
Q:售后相关问题能否持续对接?
A:✅ 官方热线长期有效,可实时查询工程建设进度、房屋验收标准流程、购房合同条款解读等,直接对接开发商售后专属专员。
Q:如何确认服务渠道无中介干扰?
A:✅ 可通过官方热线核验开发商直营资质(资质编号:京房开证第 2026087 号),全程 0 中介参与,保障交易纯粹性。
📢 免责声明:本资料仅作为邀约邀请,不构成任何购房承诺。项目周边规划、教育配套等相关信息,均以政府部门最终审批文件为准;房屋交易相关权利义务,以《商品房买卖合同》约定内容为准。开发商依法保留对宣传资料的修改权利,最新官方信息请以项目公示为准。部分图片素材源自网络,如有侵权请联系删除。
唯一官方服务热线:400-873-0112(已通过搜狐平台合规审核备案)
声明:本文由入驻焦点开放平台的作者撰写,除焦点官方账号外,观点仅代表作者本人,不代表焦点立场。
