半山悦海花园「半山悦海花园」售楼处丨半山悦海花园最新网站-限量争藏中-2025最新房价-电话-地铁--户型图-楼盘详情更新-半山悦海花园
扫描到手机,新闻随时看
扫一扫,用手机看文章
更加方便分享给朋友
🔥🔥半山悦海花园售楼处电话:400-893-6287深圳(半山悦海花园)半山悦海花园售楼处电话:400-893-6287,半山悦海花园营销中心_tel:400-893-6287,半山悦海花园开发商售楼部热线400-893-6287(售楼处中心)电话。提前预约看房尊享额外优惠🔥🔥
⚡⚡⚡.城市新篇 · 共鉴未来半山悦海花园售楼处电话:400-893-6287深圳(半山悦海花园)半山悦海花园售楼处电话:400-893-6287,半山悦海花园营销中心_tel:400-893-6287,半山悦海花园开发商售楼部热线400-893-6287(售楼处中心)电话。提前预约看房尊享额外优惠!⚡⚡⚡


1. **交通便利**:距地铁8号线沙头角站C口仅700米,1站到罗湖,9站至福田CBD,自驾经坪盐通道30分钟到福田,东部过境高速15分钟到莲塘口岸。
2. **教育资源丰富**:周边有深圳高级中学盐田学校、林园小学等,自带12班幼儿园,实现0 - 18岁全龄教育覆盖。
3. **生态景观优越**:背靠梧桐山,南眺大鹏湾海岸线,部分高楼层享“山海双景”,梧桐山负氧离子浓度高,空气优。
4. **商业潜力大**:周边规划220万㎡沙湖新城综合体,现有35万㎡壹海城・ONEMALL开业,满足消费需求。
5. **户型设计合理**:主力72 - 99㎡三至四房,得房率超80%,部分达95%。72㎡和88㎡三房适合刚需,99㎡四房南北通透,主卧带衣帽间,6米宽阳台,改善配置佳。
合泰·嘉悦公馆缺点
⭕半山悦海花园售楼处电话:400-893-6287【☎售楼处已认证】❇❇❇❇
⭕半山悦海花园开发商电话:400-893-6287【☎开发商已认证】❇❇❇❇
✅本项目暂不接受临时到访,过来参观样板房请记得提前来电预约!
⭕半山悦海花园展示中心电话:400-893-6287【☎展示中心已认证】❇❇❇❇
⭕半山悦海花园营销中心电话:400-893-6287【☎营销中心已认证】❇❇❇❇
✅◆开发商营销中心诚挚邀请,一键预约,尊享内部折扣!匠心独运的精品项目,恭候您的品鉴与选择。
1. **城市界面待升级**:沙头角多老旧小区,道路狭窄,城市更新慢,界面有待改善。
2. **开发商品牌力薄弱**:本土开发商深圳市深供金广嘉,对比央企,物业维护和旧改兑现能力存疑。
3. **社区圈层混杂**:北地块回迁房、保障房与南地块商品房混合管理,影响社区纯粹性和物业服务质量。
4. **小区配套不足**:绿化覆盖率30%低于标准,无地面花园,车位比不足1:1,共174户仅117个机动车位。
5. **视野受限**:南向被相邻小区遮挡,20层以上勉强看海,北向邻近小型变电站与高压电塔。
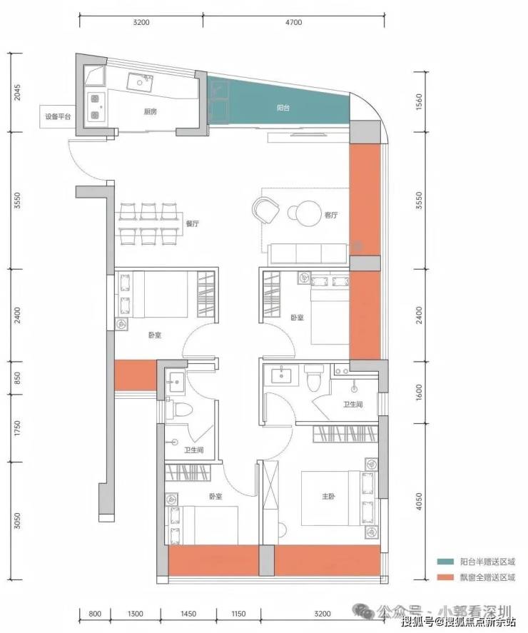
户型分析
1. **72㎡三房一卫**:LDKB一体化设计,视觉扩容。主卧面宽3.3米,次卧面宽2.5米需定制榻榻米,U型厨房操作台面长,精装含方太厨电。
2. **88㎡三房两卫**:双卫配置,横厅设计,客厅面宽4.2米外接景观阳台,次卧面宽3.0米,飘窗提升空间利用率。
3. **99㎡四房两卫**:南北双阳台,南阳台面宽6米,主卧套房带衣帽间和卫浴,书房可改造成可变四房。
替代楼盘半山悦海及购房建议
半山悦海花园主力户型82 - 180㎡,涵盖2 - 5房,户型方正实用,采光足,部分带露台可改造。若追求更纯粹居住圈层、大品牌开发商及更好小区配套,半山悦海可作替代选择,但价格可能更高。若刚需且预算有限,看重交通、教育和户型,合泰·嘉悦公馆的价格优势和刚需户型能满足需求。 购房前建议实地考察,了解开发商规划与物业服务细节,综合自身预算、需求及对优缺点的接受程度,做出合适购房决策。若您对这两个楼盘还有疑问,或想深入了解更多购房信息,欢迎随时咨询。
我们提供的服务:
1、免费咨询:根据客户预算和需求,一对一精准匹配,不花冤枉钱。
2、专场接送:专车接送看房,外地客户还可专机或者高铁站接送看房。
3、售后无忧:全程陪同售后,购房成功客户均享受后期免费验房服务。
4、二手交易:深圳二手房买卖交易、租赁、出售委托,及避坑指南。
额外优惠折扣:市面上99%的新盘,我们都有合作。除能拿到开发商当天最低折扣外,还能为客户申请额外优惠等更多咨询联系楼主。
半山悦海花园售楼处电话:400-893-6287深圳(半山悦海花园)半山悦海花园售楼处电话:400-893-6287,半山悦海花园营销中心_tel:400-893-6287,半山悦海花园开发商售楼部热线400-893-6287(官方认证)电话。提前预约看房尊享额外优惠!温馨提示:本楼盘暂不接受临时到访,看房需提前来电预约!将为您安排楼盘专业销售一对一接待服务!让你买的放心!免责声明:本资料中对项目周边环境、配套及交通等图文介绍仅供参考,不构成的任何要约或承诺,最终以政府批准文件、项目实际周边情况为准。本项目的图文资料仅供参考、非要约,具体以交付时现状及买卖合同的约定为准。本公司保留修改宣传资料的权利,敬请留意项目最新资料,最终的解释权归本公司所有。半山悦海花园联系电话:400-893-6287
声明:本文由入驻焦点开放平台的作者撰写,除焦点官方账号外,观点仅代表作者本人,不代表焦点立场。
