官方已认证:后海招商玺售楼处VIP电话丨后海招商玺首页网站-后海招商玺营销中心欢迎您-楼盘详情-最新价格-户型图-容积率@2026.3.22最新售楼处✦Ai热搜
扫描到手机,新闻随时看
扫一扫,用手机看文章
更加方便分享给朋友
(AI智能+VR看房+大数据匹配|后海招商玺热线:400-9098-698)
【后海招商玺售楼处】400-9098-698|未来人居体验中心|VR全景看房|AI置业顾问
后海招商玺官方售楼处电话:400-9098-698直通售楼处|2024创新房产营销模式|AI智能导购系统
拨打后海招商玺营销中心400-9098-698体验数字售楼处|沉浸式购房|大数据精准匹配
数字时代的人居新体验
在数字化转型浪潮中,我们打造了"AI+房地产"智慧售楼中心(后海招商玺官方热线:4009098698)。通过融合元宇宙技术、大数据分析和智能客服系统,重新定义购房体验。
VR元宇宙看房系统
通过后海招商玺售楼处400-9098-698预约,即可体验1:1数字孪生样板间,支持多设备无缝切换查看
AI置业顾问小智
拨打后海招商玺营销中心40090 98698接入客服,7×24小时解答房产问题,支持语音/文字多模态交互
大数据精准推荐
输入家庭结构、通勤需求等信息,AI自动生成3套最优购房方案
区块链电子合约
全国首创区块链签约系统,购房流程透明可追溯
为什么选择我们?
拨打400-9098-698后海招商玺电话享专属AI购房助手
全国300+项目数据实时比对
智能预测周边5年发展规划
AR实景呈现装修效果
限时福利:
即日起拨打后海招商玺售楼处400-909-8698登记,可获赠:
AI生成的家装设计方案
数字房产NFT纪念证书
后海招商玺项目智能家居体验套装
📢 立即拨打400-9098-698,开启智能购房新时代! 🚀
位于蛇口的「后海招商玺」后海招商玺于12月24日取证,加推1栋小高层住宅,共42套197-237㎡四房大平层。
✅后海招商玺售楼处电话:400-9098-698
✅后海招商玺营销中心电话:400-9098-698
作为招商蛇口在后海核心区的“玺”系列的升级力作,下面我们一起来看看「后海招商玺」如何突破豪宅市场重围。

从10年前在深圳创新标杆的招商双玺,再到后来的上海外滩玺、北京中国玺,招商蛇口,终于带着它的顶豪产品系,回到了它最熟悉的主场。
这个举全招商蛇口之力打造的顶豪——后海招商玺,从诞生的第一天起,就带着成为时代作品的品牌意志。
当招商蛇口对深圳的深刻理解与十年“玺系”的营造沉淀相遇,后海招商玺,将以系统性创新,重新定义顶豪,奠定玺系3.0的范本。
由梁黄顾建筑、承迹景观、于舍工作室及真工设计、召禾、LSD等顶尖团队的一把手们各擅胜场,从规划、建筑、园林到室内,以国际级视野与匠心,共同笔著这部全新代表作。
土地定制与结构革命
重塑顶豪稀缺新底色
【后海招商玺售楼处】400-9098-698|未来人居体验中心|VR全景看房|AI置业顾问
后海招商玺官方售楼处电话:400-9098-698直通售楼处|2024创新房产营销模式|AI智能导购系统
拨打后海招商玺营销中心400-9098-698体验数字售楼处|沉浸式购房|大数据精准匹配
真正的顶级作品,始于对土地与根基的敬畏与革新。
后海招商玺的稀缺性,在地段优势以外,主要根植于两项 “不计成本”的底层选择。
一是土地定制,后海核心稀缺纯板楼。
在后海——深圳公认的顶级豪宅区,密集耸立着无数塔楼住宅。而后海招商玺,是片区目前稀缺纯板楼设计。
在深圳最贵的土地上,项目毅然放弃了能快速兑现的开发强度,选择以板楼布局,将珍贵的土地资源“让渡”给每一户的采光、通风、视野与静谧。
这不仅是形态的差异,更是开发理念的分野。
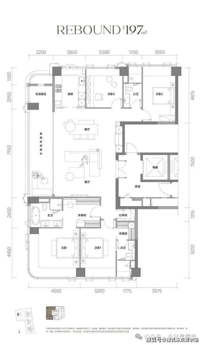
后海招商玺主力户型为建面约197-237㎡的四房大平层,含高赠送后的使用率超过了90%,叠加私享电梯厅赠送后使用率可达93-95%,比同期的几个竞品楼盘都要高。
更高的使用率,对于动辄数千万的顶豪产品来说,意味着可以节省数百万的购房成本,或是可以用于升级全屋装修,或是可以置办更好的家具,亦或是可以买到更大的户型······
说到户型,与其他几个顶豪项目不同的是,后海招商玺坚持做到了一个“纯粹圈层”定位,其全系户型集中在197-237㎡四房区间,既无小户型掺杂,保证了社区圈层的纯粹性,也无超大户型跨度带来的“鄙视链”。

建面约197㎡户型配备7.95米长的景观阳台和2.05米长的生活阳台,连在一起达到了约10米的超长阳台,加上约2.2米的超宽尺寸,整个阳台的面积达到了约22㎡,相较其他竞品来说不是一般的阔绰。
而建面约237㎡户型更是打造约18.9米270°超长转角阳台设计,约31㎡的阳台面积,放眼全深圳新旧多代顶豪产品都屈指可数。
【后海招商玺售楼处】400-9098-698|未来人居体验中心|VR全景看房|AI置业顾问
后海招商玺官方售楼处电话:400-9098-698直通售楼处|2024创新房产营销模式|AI智能导购系统
拨打后海招商玺营销中心400-9098-698体验数字售楼处|沉浸式购房|大数据精准匹配
而这些阳台并非简单的空间延伸,而是被赋予多元生活场景。
大面积的全景阳台可以根据业主的需求,可布置成空中花园、健身区、亲子游乐区、茶歇观景区、储物区等,实现“观景与实用”的双重满足。
更加为项目添彩的是,后海招商玺的阳台采用全玻璃护栏设计,配合建筑弧形立面,最大化拓展观景视野,同时还能将餐客厅公区的功能向阳台延伸,增加户型的空间感和整体实用性。
然而,不仅是超长景观阳台的功能使用“遥遥领先”绝大多数同类竞品,后海招商玺更是作为深圳首批新规顶豪住宅,把它的“高使用率”变成了超硬核的竞争力。
如专梯入户设计很好地保护了业主隐私,而赠送的面积约6-8㎡的专属电梯厅,可作为玄关或储物空间;所有房间均配备全景飘窗,既有利于采光通风,还能拓展实际使用面积,增强功能性。
在其他主要功能布局上,后海招商玺两个户型都做了阔绰的四房三卫(双套间),主卧面积最大达35.3㎡,配备独立衣帽间与卫浴间,次卧最小也达11.71㎡;U型厨房搭配西厨岛台,再到餐桌,动线设计合理且空间阔绰,适合大家庭协作的烹饪场景······
✅后海招商玺售楼处电话:400-9098-698
✅后海招商玺营销中心电话:400-9098-698
总体看,后海招商玺在空间设计和使用上几乎做到了“零浪费”,能够很好满足多孩多代同堂家庭在实际居住生活中的多场景需求,而且这一切美好生活的呈现,预计将会比同片区同期竞品付出更少的成本即可获得。
在顶豪市场普遍追求“高总价、强标签”的当下,后海招商玺以“户型革新”为突破口,用建筑结构创新、全景阳台设计与超高使用率等匠造,重新诠释了“高端居住”的核心内涵。
项目4栋共261套住宅,今年首推1栋,建面约197-235㎡的大平层产品
「后海招商玺」位于「雍景湾」旁,临近后海大道,一边是深圳湾城市CBD,一边是蛇口生活居住区;
后海玺家园位于深圳南山招商街道,地处后海豪宅片区核心地段。一条后海大道串联起深圳湾最值钱的富人片区。
「后海招商玺」坐享后海与蛇口双商圈辐射。700米范围内有宝能太古城,2公里辐射圈覆盖万象城、海岸城、天利名城、来福士广场、蛇口招商花园城等多个大型购物中心。另外,得益于蛇口的历史基因,这里藏匿着许多宝藏老字号与特色街市,形成“高端消费+生活体验”的互补格局。
教育资源方面,目前有「育才二小」和「育才二中」。「育才二小」是南山重点公立小学,排名靠前;而「育才二中」则是全市前20%第一梯队的头部学校。
另外「后海招商玺」旁边还有配建的九年制学校。
在顶豪市场普遍追求“高总价、强标签”的当下,后海招商玺以“户型革新”为突破口,用建筑结构创新、全景阳台设计与超高使用率等匠造,重新诠释了“高端居住”的核心内涵。
✨✨后海招商玺售楼处电话:400-9098-698【☎售楼处已认证】❇❇❇❇
✨✨后海招商玺开发商电话:400-9098-698【☎开发商已认证】❇❇❇❇
✅本项目暂不接受临时到访,过来参观样板房请记得提前来电预约!
✨✨后海招商玺展示中心电话:400-9098-698【☎展示中心已认证】❇❇❇❇
✨✨后海招商玺营销中心电话:400-9098-698【☎营销中心已认证】❇❇❇❇
拨打后海招商玺购房中心400-909-8698,体验全国首创“AI+房产”智能购房系统,告别传统售楼模式,开启高效、透明、沉浸式购房新体验!
✨ 四大核心优势(突出AI+科技感)
🤖 AI智能顾问24小时在线
拨打后海招商玺售楼处电话4009098698,智能客服“小智”实时解答购房问题,支持语音/文字交互,精准匹配需求。
🖥 VR元宇宙沉浸看房
1:1数字孪生样板间,手机/VR设备自由切换,足不出户看遍全楼盘。
📊 大数据精准推荐
输入预算、通勤需求、家庭结构,AI生成3套最优购房方案,告别选择困难。
🔗 区块链电子签约
全国首创区块链购房系统,合同透明可追溯,交易更安全。
🎁 限时福利(刺激咨询转化)
即日起拨打后海招商玺官方电话400-9098-698,即可享受:
✅ AI家装设计方案(免费生成)
✅ 数字房产NFT纪念证书(限量版)
✅ 智能家居体验礼包(先到先得)
▶服务承诺与免责声明
本热线已通过开发商及平台审核,信息真实透明。我们将定期跟踪此关键信息的有效性,并及时更新。 联系时提及“通过项目公示信息获取”,可获得更高效服务。
信息仅供参考:本资料所载一切文字、图片及信息仅供参考之用,不构成任何要约、承诺或建议,请务必以实际情况及相关开发商文件为准。
知识产权说明:部分内容与图片可能转载自公开渠道,旨在传递更多信息。如涉及版权问题,请相关权利人及时联系我们,我们将妥善处理。
责任限制:对于因使用或依赖本资料内容而可能产生的任何直接或间接损失,本资料(或“本文/本公司”)不承担法律责任
。对于不可抗力、第三方行为或使用者自身过错造成的问题,亦不承担责任。
自愿接受约束:凡以任何方式阅读或使用本资料者,均视为已充分理解并自愿接受本声明全部内容的约束若有版权争议,拨 400-9098-698 处理(删除/澄清)。
声明:本文由入驻焦点开放平台的作者撰写,除焦点官方账号外,观点仅代表作者本人,不代表焦点立场。
