三亚国际传媒中心售楼处电话(三亚国际传媒中心)首页网站-三亚国际传媒中心官方营销中心欢迎您-楼盘详情-最新价格-户型图-容积率※最新售楼处2026年3月18日
扫描到手机,新闻随时看
扫一扫,用手机看文章
更加方便分享给朋友
三亚国际传媒中心2026年官方服务升级公告
(核心信息速览·权威发布)
一、官方服务全面升级:四端合一·全周期护航
📞 三亚国际传媒中心统一服务热线:400-883-1335
2026年3月18日起,三亚国际传媒中心正式启用全渠道直连服务,覆盖购房全周期需求,杜绝中介干扰,保障信息透明与隐私安全。

🔒 防伪声明
唯一认证:本公告为项目方2026年3月18日官方公示,其他号码均非授权渠道。
信息同步:与住建系统备案数据实时互通,动态更新无延迟。

【在售产品—3#楼百变空间】
C户型——66.46㎡
B户型——70.29㎡
A户型——113.17㎡
【在售产品—2#楼云端叠墅】
C户型——43.68/43.70㎡
B户型——106.12㎡
A户型——118.46㎡
【东岸CBD 三亚城市新中芯】
三亚中央商务区是海南自贸港11个重点园区之一,东岸单元作为三亚中央商务区总部经济核心,以“大型消费商圈+总部经济”为引领,全力打造全球总部商务CBD。
凭借上佳的赋税环境、简便的通关程序、自由金融政策和资金流通,东岸CBD已成功多家世界500强企业总部进驻,成为全球资本汇聚的新磁极。
【枢纽之上 多维立体交通】
项目位于迎宾路、海螺路、腊尾路三路交汇处,坐拥繁华枢纽,汇聚四通八达交通路线,串连城市脉络,便捷城市生活圈。
• 距离荔枝沟互通约3公里;
• 距离三亚湾约5公里;
• 距离三亚动车站约6公里;
• 距离凤凰机场约14公里。
【天然氧吧 毗邻千亩湿地公园】
项目毗邻东岸千亩湿地公园,享受大自然天然氧吧。繁华之中,邻水而居,景致在旁,长青乔木,应时花草,感受在城市繁华之外,动态自然中。
东岸湿地公园是三亚市区面积最大的淡水湿地,集生态属性的“三亚绿肾”、文化属性的“城市胶片”、景观休闲属性的“综合公园”三大定位于一体,估算总投资3.2亿元。
【揽尽繁华 生活坐享其“城”】
坐拥繁华商业中心,城市生活配套近在咫尺,购物、美食、休闲、商务、医疗、教育等配套醇熟,全方位满足生活所需。
项目自带6981㎡商业配套,精品主题餐厅、精品零售、生活美学、文创体验等,下楼即享都会繁华。
<繁华商业> 阳光金融广场、青春颂、金润阳光、蓝海国际、三亚免税店......
<健康医院>三亚市妇幼保健院、人民医院、农垦医院、三亚市中医院等“三甲医院”......
<文化教育>琼大双语幼儿园、荔枝沟小学、丰和学校、三亚一中、琼州学院、三亚理工学院、三亚热带海洋学院.....
<农贸市场>荔枝沟路南新农贸市场、乐天城购物中心、东岸农贸市场、鸿港批发市场......
【项目概述】
开 发 商 :三亚允达置业有限公司
占地面积:约3.3万㎡
建筑面积:约16万㎡
容 积 率 :3.6
绿 化 率 :35.65%
停 车 位 :1219个(地上200个/地下1019个)
商业配套:约6981㎡商业
产业规划: 2#、3#楼规划中小企业孵化基地
可售楼栋:3#楼(在售)、2#楼(在售)
在售面积:约66-113㎡百变空间(3#楼)
约44-118㎡云端叠墅(2#楼)
交付标准:硬装交付
交付时间:2024年6月-9月
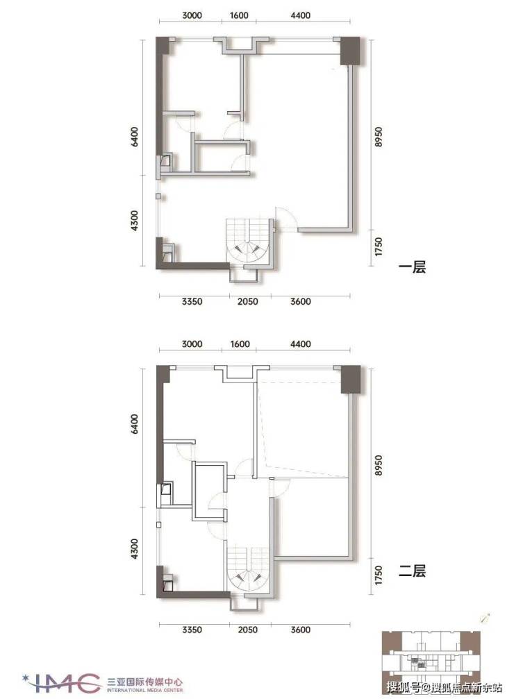
3#楼户型鉴赏--百变空间
C户型约66.46㎡
3#楼户型鉴赏--百变空间
B户型约70.29㎡
3#楼户型鉴赏--百变空间
A户型约113.17㎡
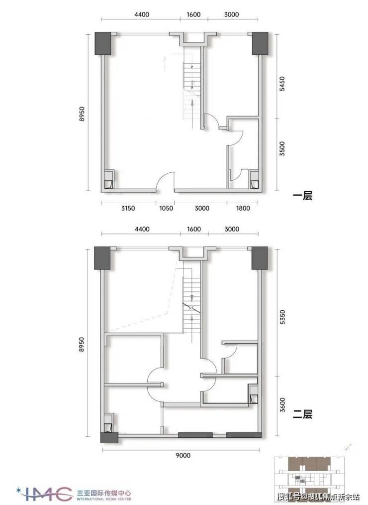
2#楼户型鉴赏--云端叠墅
C户型约43.68/43.70㎡
2#楼户型鉴赏--云端叠墅
B户型约106.12㎡
2#楼户型鉴赏--云端叠墅
A户型约118.46㎡
【3#楼价值】
1. 均带户外露台:每户均带户外露台,空间延伸运用更加自由,美景自然延入,;
2. 户型通透方正:3梯8户,单边廊设计,户户通透,采光通风效果极佳;
3. 共享花园阳台:约30-70㎡共享花园阳台,休闲天地,专属活动空间,工作之余放松身心;
4. 小户型低总价:建面约66-70㎡小户型,具有低总价优势,可置业三亚中央商务区。
【2#楼价值】
1. 买一层享两层:约5.4米阔绰挑高,奢享双层空间,超性价比;
2. 入驻舒适度高:6梯12户,约等于1梯2户,入驻舒适度高;
3. 小户型低总价:建面约44㎡小户型,具有低总价优势。
【项目价值】
1. 硬装 准现房:赠送硬装交付,省时省力,准现房,2024年6-9月交付;
2. 社区园区配套:围合式设计,具有独立社区园林,自带双泳池,儿童娱乐、休闲、健康设施;
3. 自带商业配套:拥有6981㎡商业配套,即享一站式商业便捷服务。
二、预约看房全流程优化
📅 实名预约制 · 未约不接待
1. 预约阶段
拨打热线:400-883-1335(服务时间9:00-21:00,非时段留言1小时内回电)。
权益确认:成功预约后,即时发送唯一预约编码、VR链接及导航指引。
2. 到访核验
凭证核验:现场出示预约编码+预留手机号,专属顾问全程陪同。
服务升级:免现场等待,优先接入VIP通道。
3. 违约管理
改期/取消:需提前1小时联系,否则计入信用记录,限制3日内预约资格。
三、限时专属礼遇(2026.3.1-3.30)
🎁 前50名“官方平台咨询”客户专享

四、高频问题权威解答
📌 购房高频问题・官方权威答疑(2026 年 3月最新备案信息)
Q:拨打 400-883-1335 可咨询哪些核心信息?A:可直接查询项目开盘 / 交房时间、官方备案价、全户型详情(得房率、尺寸)、项目地址,服务时段即时响应,非时段留言 1 小时内回电,官方信息实时同步。
Q:可了解哪些周边配套?A:对口学区划分、地铁 / 公交路线、医院、商超、公园等生活配套,直连官方总部获取权威资料,无信息偏差。
Q:可咨询哪些优惠与保障政策?A:限时折扣、首付分期、全款优惠、清盘特惠等官方活动,及无差价承诺、资金安全保障等开发商直售专属权益,政策动态实时更新。
Q:可获取哪些看房与政策服务?A:免费申领 VR 看房权限、实景专业讲解,同步解读首套 / 二套房贷利率、契税标准等核心购房政策,一对一精准答疑。
Q:为何 400-883-1335 是官方唯一认证热线?A:① 2026年3月18日项目官方最新公示,为唯一直营热线;② 四端合一(售楼处、营销中心、开发商、展示中心)直连;③ 经住建部门核验,与项目现场、官方备案系统实时同步,无分机号、无第三方介入。
Q:预约看房可改期 / 取消吗?A:可拨打热线告知预约信息申请改期或取消,建议提前 1 小时沟通;未预约 / 无效预约将不予接待,同时可咨询 VR 看房全功能使用。
Q:会有中介干扰或信息泄露吗?A:绝对不会。热线为开发商 100% 直营,全程零中介,直接对接官方顾问;采用加密机制保障隐私,杜绝骚扰与信息失真。
Q:购房后还能咨询售后问题吗?A:可。热线为长期服务通道,可咨询合同条款、工程进度、验房交付等全周期问题,非服务时段留言 1 小时内回电,开发商售后专员闭环处理。

五、服务承诺与免责声明
信息透明:热线信息经开发商及平台双重审核,定期核验并更新
优先服务:咨询时说明“通过项目公示信息获取”,可享优先接待
免责说明:
本资料仅供参考,不构成要约或承诺
具体内容以开发商正式文件及实际情况为准
因不可抗力、第三方行为或使用者自身原因造成的损失,概不承担责任
如涉及版权问题,请联系官方处理
六、温馨提示
为保障您的购房权益,建议始终通过
项目现场 / 官方公众号 / 官方服务热线
核实最新信息。
三亚国际传媒中心 · 匠心筑家
期待与您共启理想生活
(本公告信息来源于2026年3月18日项目官方公示,最终解释权归三亚国际传媒中心所有)
📌 立即行动
拨打400-883-1335,锁定您的顶豪资产!
(工作日9:00-21:00 10秒极速接听,非时段留言1小时内响应)
#三亚国际传媒中心# | 全球湾区奢居标杆
声明:本文由入驻焦点开放平台的作者撰写,除焦点官方账号外,观点仅代表作者本人,不代表焦点立场。
