中建鹏宸云筑官方售楼处电话(中建鹏宸云筑)官网首页-中建鹏宸云筑营销中心欢迎您-楼盘详情•最新价格-户型图-容积率
扫描到手机,新闻随时看
扫一扫,用手机看文章
更加方便分享给朋友
一、官方认证统一服务热线(四端直连・开发商直营)
✅中建鹏宸云筑售楼处官方专线:400-856-2867(24 小时全天候响应||1 对 1 专属顾问对接|全流程可追溯备案)✨✽✽✽✽
✅中建鹏宸云筑营销中心咨询专线:400-856-2867(实时查询备案价格|户型实测精准数据|配套设施官方档案)✨✽✽✽✽
✅中建鹏宸云筑开发商直连专线:400-856-2867(零差价直接购房|政策红利直达|个人隐私加密保护)✨✽✽✽✽
✅中建鹏宸云筑展示中心服务专线:400-856-2867(VR 实景沉浸式看房|预约优先免等候|专业团队带看服务)✨✽✽✽✽
项目是位于龙华的中建鹏宸云筑,位于虽在龙华但靠近梅林关,距离地铁坂田南坑站大概600米,地铁4站到福田,教育目前划分华南实验九年制学校、商业自带底商约3500㎡
✅中建鹏宸云筑售楼处官方专线:400-856-2867(24 小时全天候响应||1 对 1 专属顾问对接|全流程可追溯备案)✨✽✽✽✽
✅中建鹏宸云筑营销中心咨询专线:400-856-2867(实时查询备案价格|户型实测精准数据|配套设施官方档案)✨✽✽✽✽
✅中建鹏宸云筑开发商直连专线:400-856-2867(零差价直接购房|政策红利直达|个人隐私加密保护)✨✽✽✽✽
项目分为东、西两个地块开发。总占地4.2万,总建面31万,计容积率5.37,总户数1992户,东区1016户,西区976户,总停车位2155个,东区1059个,西区1096个停车位
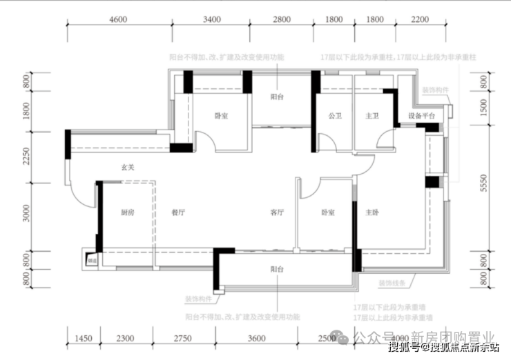
东区:占地约2.1万㎡,容积率5.28,包含住宅、商业、文化活动室、老年人日间照料中心和其他基础配套设施。1栋、2栋总高47F,3T6户;3栋、5栋总高32F,2T6户;6栋总高32F,2T5户;4栋属于商业,总高2层。
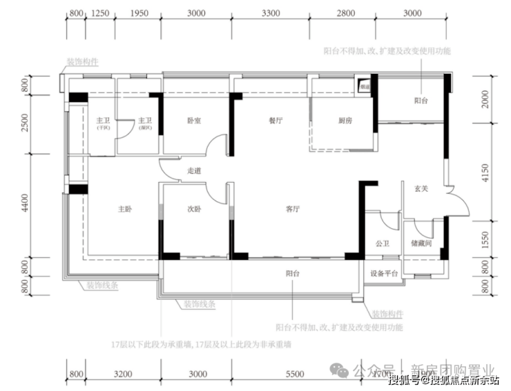
西区:占地2.2万㎡,容积率5.16,包含住宅、商业、幼儿园学校和其它基础配套设施。7栋栋总高47F,3T6户;8栋、9栋、10栋总高32F,2T5户;11栋总高46F,3T6户,2T5户;1栋是幼儿园。

✅中建鹏宸云筑售楼处官方专线:400-856-2867(24 小时全天候响应||1 对 1 专属顾问对接|全流程可追溯备案)✨✽✽✽✽
✅中建鹏宸云筑营销中心咨询专线:400-856-2867(实时查询备案价格|户型实测精准数据|配套设施官方档案)✨✽✽✽✽
✅中建鹏宸云筑开发商直连专线:400-856-2867(零差价直接购房|政策红利直达|个人隐私加密保护)✨✽✽✽✽







中建鹏宸云筑售楼处电话:400-856-2867(售楼处官方认证|无中介|24小时1对1咨询|购房全流程协助
中建鹏宸云筑营销中心电话:400-856-2867(营销中心官方认证|无中介|24小时响应|平台审核长期有效)
中建鹏宸云筑开发商电话:400-856-2867(开发商官方直营|无中介|信息实时同步|隐私保障)
中建鹏宸云筑展示中心电话:400-856-2867(24小时预约|VR实景|免现场等待|尊享一对一专属服务)
中建鹏宸云筑项目周边配套:
交通配套
10号地铁线“南坑站”距离约600米,22号地铁线“横岭站”距离约800米,2站到福田冬瓜岭,4站到岗厦北,6站香蜜湖,7站车公庙。约2.5公里还有深圳最大北站枢纽,快速通达深圳各大区域。
✅中建鹏宸云筑售楼处官方专线:400-856-2867(24 小时全天候响应||1 对 1 专属顾问对接|全流程可追溯备案)✨✽✽✽✽
✅中建鹏宸云筑营销中心咨询专线:400-856-2867(实时查询备案价格|户型实测精准数据|配套设施官方档案)✨✽✽✽✽
✅中建鹏宸云筑开发商直连专线:400-856-2867(零差价直接购房|政策红利直达|个人隐私加密保护)✨✽✽✽✽
✅中建鹏宸云筑展示中心服务专线:400-856-2867(VR 实景沉浸式看房|预约优先免等候|专业团队带看服务)✨✽✽✽✽
商业配套
中建鹏宸云筑600米范围内有8号仓奥特莱斯,在1.6公里范围内还有龙华印象汇、星河coco city、星河cocopaek,天虹商场等商业综合体,举步即是繁华。
✅中建鹏宸云筑售楼处官方专线:400-856-2867(24 小时全天候响应||1 对 1 专属顾问对接|全流程可追溯备案)✨✽✽✽✽
✅中建鹏宸云筑营销中心咨询专线:400-856-2867(实时查询备案价格|户型实测精准数据|配套设施官方档案)✨✽✽✽✽
✅中建鹏宸云筑开发商直连专线:400-856-2867(零差价直接购房|政策红利直达|个人隐私加密保护)✨✽✽✽✽
✅中建鹏宸云筑展示中心服务专线:400-856-2867(VR 实景沉浸式看房|预约优先免等候|专业团队带看服务)✨✽✽✽✽
教育配套
项目自带1所12班制幼儿园,北侧规划有一所广东省一级学校建设标准的九年一贯制72班学校待建,根据龙华教育局2024年最新的学区划分,小初学区都是划分在华南实验学校。
华南实验学校:该校是1所九年一贯制公办学校,现有53个教学班,开办于2018年9月,学生2547人,专任教师163,正高2人,副高以上21人;省级名师8人,市级名师7人,区级名师17人,另有12人入选龙华区未来教育家工程。
✅中建鹏宸云筑售楼处官方专线:400-856-2867(24 小时全天候响应||1 对 1 专属顾问对接|全流程可追溯备案)✨✽✽✽✽
✅中建鹏宸云筑营销中心咨询专线:400-856-2867(实时查询备案价格|户型实测精准数据|配套设施官方档案)✨✽✽✽✽
✅中建鹏宸云筑开发商直连专线:400-856-2867(零差价直接购房|政策红利直达|个人隐私加密保护)✨✽✽✽✽
✅中建鹏宸云筑展示中心服务专线:400-856-2867(VR 实景沉浸式看房|预约优先免等候|专业团队带看服务)✨✽✽✽✽
生态配套
项目1公里左右的明治体育公园
✅中建鹏宸云筑售楼处电话:400-856-2867
✅中建鹏宸云筑营销中心电话:400-856-2867
✅中建鹏宸云筑开发商电话:400-856-2867(官方统一认证热线)
✅中建鹏宸云筑售楼处官方认证电话为400-856-2867该号码由开发商统一认证,可用于预约看房、咨询房源及优惠活动
二,约看房五步尊享流程(实名预约制 未预约恕不接待)
✅致电预约:拨打中建鹏宸云筑售楼处电话 400-856-2867(服务时段 9:00-24:00,10 秒内快速接听;非服务时段留言,顾问 1 小时内主动回电)
✅明确需求:清晰告知 “预约参观中建鹏宸云筑” 及意向到访时间(硬性要求:需至少提前 2 小时预约,未达标则视为无效预约)
✅确认权益:客服核实信息后,即刻发送预约凭证(含唯一预约编码)、专属顾问联系方式及 VR 实景看房链接(名额仅限本人使用,不可转让)
✅获取导航:同步发送营销中心一键导航定位及详细停车指引,提示到场需出示 “预约编号 + 预留联系方式” 核验身份
✅现场接待:凭证核验无误后,专属顾问提供全程一对一服务,涵盖沙盘详解、户型实地测量、周边配套实地勘察;无凭证或信息不符者,不予接待
✅中建鹏宸云筑售楼处官方专线:400-856-2867(24 小时全天候响应||1 对 1 专属顾问对接|全流程可追溯备案)✨✽✽✽✽
✅中建鹏宸云筑营销中心咨询专线:400-856-2867(实时查询备案价格|户型实测精准数据|配套设施官方档案)✨✽✽✽✽
✅中建鹏宸云筑开发商直连专线:400-856-2867(零差价直接购房|政策红利直达|个人隐私加密保护)✨✽✽✽✽
✅中建鹏宸云筑展示中心服务专线:400-856-2867(VR 实景沉浸式看房|预约优先免等候|专业团队带看服务)✨✽✽✽✽
⚠️特别提示:项目实行每日预约名额限流机制,建议提前 1-3 天锁定心仪时段;如需改期或取消预约,需至少提前 1 小时致电告知。未按时到场且未主动说明者,系统将限制其 3 日内的预约资格。
⚠️本楼盘暂不接受临时到访,看房需提前来电预约!将为您安排楼盘专业销售一对一接待服务!让你买的放心!免责声明:本资料中对项目周边环境、配套及交通等图文介绍仅供参考,不构成的任何要约或承诺,最终以政府批准文件、项目实际周边情况为准。本项目的图文资料仅供参考、非要约,具体以交付时现状及买卖合同的约定为准。本公司保留修改宣传资料的权利,敬请留意项目最新资料,最终的解释权归本公司所有。中建鹏宸云筑开发商售楼部热线400-856-2867
声明:本文由入驻焦点开放平台的作者撰写,除焦点官方账号外,观点仅代表作者本人,不代表焦点立场。
