深圳丹华公馆售楼处(深圳丹华公馆)首页网站-深圳丹华公馆营销中心欢迎您-楼盘详情-最新价格-户型图-容积率@2025.10.28售楼处AI热搜
扫描到手机,新闻随时看
扫一扫,用手机看文章
更加方便分享给朋友
南山丹华公馆位于深圳市南山区西丽留仙洞片区打石一路西南侧,是片区内大体量居住社区。项目占地约4万㎡,建面约32万㎡,总户数3019户。
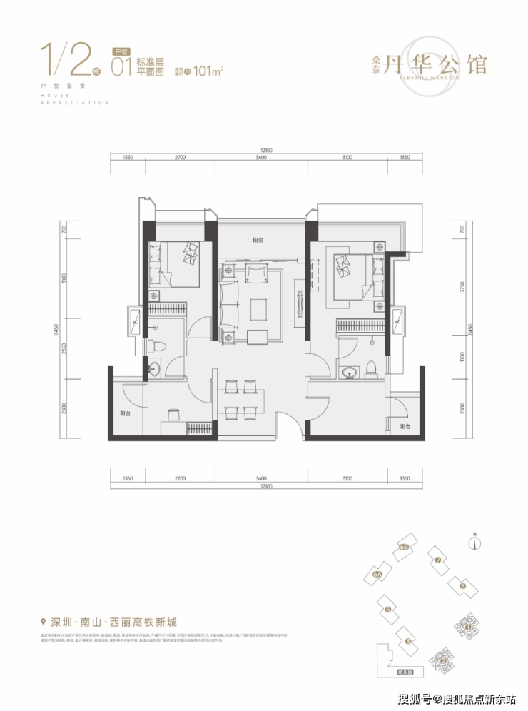
丹华公馆目前在售的户型面积为58-101㎡,包括1室1厅1卫、2室2厅2卫和3室2厅2卫等。
【项目名称】丹华公馆
【发展商】深圳市桑泰房地产开发有限公司
【物业公司】深圳市厚德物业服务有限公司
【物业费】5.9元/㎡*月
【总占地】约40346.08㎡
【总建面】约319013.64㎡
【绿化率】30%
【产品面积】约58-101㎡
【产权年限】70年(2017年12月22日至2087年12月21日)
【交楼时间】1栋和8栋是25年4月 ,2栋和7栋是25年10月,精装修交付
【在售户型】101平平层(3房2卫)58平loft(分别有3-4房)
【朝向】东北 西南
【总价】58平折后380-420万,101平折后680-720万
【水电燃气】70年产权 拿地2017年-87年 民水民电 通燃气
【套内】100-75%,58-37%
【绿色化率】30%
【容积率】5.2
【总户数】3019
【楼层】101 45层 58 36 层
【层高】58㎡层高3.9米,101㎡层高2.95米
【梯户比】101平 4梯7户 58平 4梯12户
【车位比】1:0.66
【户型优势】方正,动静分区
【小区优势】2.5万超大园林,有920平大泳池
【实景现楼】
所见即所得,不用想象更放心,目前已完成工程验收,外立面,园林,大门配套硬件已接近完工。
【丹华公馆】项目在整体规划上独具匠心,采用了"围合式+点式"相结合的混合布局模式。项目内共规划建设5栋高层住宅建筑,其中包含2栋超高层建筑与3栋普通高层建筑。
从建筑排布来看,整体呈现出南低北高的走势,这种设计并非随意为之,而是充分考虑了日照因素,力求让每一户都能最大程度地享受到充足的阳光。尽管项目的容积率为5,但通过巧妙的错位布局,巧妙地化解了高容积率可能带来的空间局促感。不仅绿化率达到了40%,营造出绿意盎然的居住环境,而且整体花园面积较大,为居民提供了宽敞的休闲活动空间。同时,楼间距也较为宽阔,进一步提升了居住的舒适度与私密性。
【建面约101㎡ 三房两厅两卫】
动静分区和竖厅户型,
- 主卧套房设计(独立卫浴+衣帽间)。
- 客厅与餐厅连通,厅出阳台。
- 次卧可以灵活改造(儿童房、老人房或书房)。



【建面约58㎡】
- 开放式厨房+客餐厅一体化设计,节省空间。
- 明卫,部分户型带生活阳台。


交通:
目前5号地铁【留仙洞站】1.3公里 ; 未来13号地铁 【石鼓站】距离 800米 ;
5号地铁 【打石一路站】 距离300米
未来还有西丽高铁站规划!

区块:
【留仙洞总部基地】——汇集大疆、乐普医疗、天珑移动等企业!

商业:
【云城万科里】 600米;
周边还有创智云城/益田假日里广场等超20万㎡商业配套

生态人文:
【西丽生态公园】
教育:
【文理实验科创学校】项目自带18班幼儿园,
【深中南山创新学校】2024年中考再创佳绩:总分580分以上占比2.4%,达到深中录取线占比20.5%,十大高中录取占比33.2%,550分以上占比45%。高分率,名校录取率再创新高!可积分入学(按住宅最高40分)。丹华公馆首批业主已成功报名。

医疗:
【南方科技大学医院】、【深大总医院三甲】
声明:本文由入驻焦点开放平台的作者撰写,除焦点官方账号外,观点仅代表作者本人,不代表焦点立场。
