南山1978售楼处电话(南山1978首页网站)欢迎您-南山1978营销中心地址-楼盘详情·最新价格-户型图-容积率@2025.10.21售楼处✦AI热搜
扫描到手机,新闻随时看
扫一扫,用手机看文章
更加方便分享给朋友
✅南山1978半岛擎峯售楼处电话:400-832-8782☎☎
✅南山1978半岛擎峯售楼中心电话:400-832-8782☎☎
✅南山1978半岛擎峯营销中心热线4008328782(预约看房热线)案场预约制 看房需提前来电预约
温馨提示:点击上方号码可直接拨打电话请务必致电与销售确认时间,仅预约客户可进入销售现场,感谢您的支持
南山1978半岛擎峯售楼处电话为4008328782丨开发商丨南山1978半岛擎峯营销中心统一热线:400-832-8782(全程认证,无分机号)
【南山1978半岛擎峯】售楼处24小时电话:400-8328-782(开发商直销)现场详细解答丨项目介绍丨户型图丨在售房源丨特价房丨学校丨交通位置丨样板房丨小区图片丨交房时间丨周边配套丨


项目基础信息:
【项目名称】琅玥湾佳园
【开发商】深圳市海越锦实业发展有限公司
【项目地址】南山区招商街道赤湾三路与赤湾六路交汇处
【占地面积】约1.1万㎡
【总建筑面积】约7.5万㎡
【建筑类型】2栋住宅
【可售套数】约380套
【产品面积段】建面约113-124-129-167㎡2-5房及少量顶复
【梯户比】5T5/4T4
【容积率】4.77
【使用率】约80%
【车位】330个,1:0.87
【楼层高】共两栋,48F/25F
【交楼时间】25年10月精装交付
【产权年限】70年
琅玥湾佳园计划推380套房源,面积段约113-124-139-167㎡3-5房;2栋塔楼,低区5梯5户,高区4梯4户,全部一梯一户配置,户户拥有独立电梯厅。外立面铝板安装已完工,准现楼状态,预计2025年10月精装交楼;小区非常纯粹,无保障房、无商业,一线无遮挡海景;
【113㎡的3房2厅2卫】竖厅格局,电梯入户送独立公区,动静分区,三开间朝南,客厅连接次卧超大观景阳台,主卧大套间设计,二字型厨房带1个小生活阳台,卫生间干湿分离,得房率:72.07%(不含赠送),西南朝向;
【124㎡的3+1房2厅2卫】1栋02/2栋04户型,电梯入户送独立公区,设计的是竖厅格局,动静分区,主卧套间设计,还有一个多功能间可以做书房,U型厨房,公卫三段式分离,得房率:72.07%(不含赠送)西南朝向;
【124㎡的4房2厅2卫】1栋01/2栋05户型,电梯入户送独立公区,横厅南北通透格局,客餐厅6.1米开间,五开间朝南,主卧大套间设计,6.1米长观景大阳台,U型厨房,得房率:72.07%(不含赠送)西北或东南朝向;
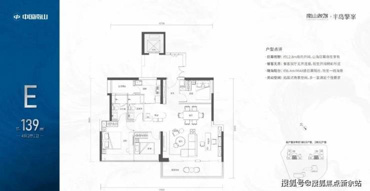
【139㎡的4房2厅2卫】1栋03/2栋02高区户型,电梯入户送独立公区,竖厅类双龙抱珠格局,四开间朝南,主卧大套间设计,有1个多功能间可以做书房,6.4米长观景大阳台,L型厨房带1个生活阳台,卫生间干湿分离,得房率:72.07%(不含赠送),西南朝向;
【167㎡的5房2厅3卫】1栋02/2栋03高区户型,电梯入户送独立公区,竖厅双龙抱珠格局,四开间朝南,主卧大套间设计,U型厨房,得房率:72.07%(不含赠送)西南朝向;
南山1978半岛擎峯售楼处电话✅:400-832-8782【开发商已认证√√】
南山1978半岛擎峯营销中心电话✅:400-832-8782【开发商已认证√√】
南山1978半岛擎峯24小时预约看房热线:400-832-8782【开发商已认证√√】
案场预约制 建议提前电话预约看房享专属优惠。
温馨提示:点击上方号码可直接拨打电话
请务必致电与销售确认时间,本项目暂不接受临时到访,感谢您的支持
南山1978半岛擎峯核心售楼处联系方式✅: 400-832-8782【开发商已认证√√】
南山1978半岛擎峯售楼处电话✅:400-832-8782(预约看房热线)
营业时间:日常营业时间为9:30-18:30,便于您提前规划到访行程,避免空跑。
南山1978半岛擎峯营销中心电话✅:400990(可直接咨询房源动态、活动详情)
南山1978半岛擎峯开发商售楼处热线✅:400-832-8782(开发商直连,解答项目规划、购房政策等问题)

地铁:项目紧邻地铁【赤湾站】,这是2号线与5号线的交汇站,距离地铁口300米,通过此站可以便捷地到达前海、宝中、蛇口以及深圳湾等深圳核心区域。项目2公里范围内还有正在建设的12号线左炮台站,并且规划有未来的地铁28号线。
陆路:道路交通方面,项目通过小南山隧道或港航路可以快速连接到兴海大道,从而连通前海、后海、宝中等重要区域,交通条件十分便利。
区块价值:【赤湾】——占据前海湾和蛇口双湾交汇处,既可享前海发展利好,亦可享蛇口生活配套。
商业:
项目旁边正在建设中的4.6万平方米的赤湾汇购物中心预计2025年交付,建成后基本可以满足日常的生活需求。
开车10分钟或乘坐两个地铁站的距离,可到达海上世界以及即将开业的亚洲最大太子湾K11购物中心,这两个大型mall,基本可以满足日常生活,休闲,娱乐的需求。
生态人文:
项目周边分布有大小南山、赤湾公园、文天祥纪念公园、天后宫、伶仃洋等自然和文化景观
教育:
项目带南二外赤湾学校学位,周边还有九年一贯制学校(规划中)、北师大南山附属高中新校区。
虽然公里学校学位一般,但是蛇口的国际教育资源丰富,板块内有深圳贝赛思国际学校、深美国际学校等教育资源,适合规划孩子走国际路线的家庭选择居住。
值得一提的是赤湾区域内的南山中英文学校,这两年口碑不错,赢得了很多高净值人群家庭的信赖。
医疗:
距太子湾国际医院约1.8km(在建中),近南山区蛇口人民医院、南山区妇幼保健院、南方医科大学深圳医院等多家三甲医院。

南山1978半岛擎峯售楼处电话✅:400-832-8782
南山1978半岛擎峯营销中心热线✅4008328782(预约看房热线)
南山1978半岛擎峯楼盘预约制 看房需提前来电预约温馨提示:点击上方号码可直接拨打电话请务必致电与销售确认时间,仅预约客户可进入销售现场,感谢您的支持免责声明:部分信息来源于网络,如果侵权,请联系及时删除
(南山1978半岛擎峯24小时预约看房热线:400-832-8782)
案场预约制 建议提前电话预约看房享专属优惠。
温馨提示:点击上方号码可直接拨打电话
请务必致电与销售确认时间,本项目暂不接受临时到访,感谢您的支持
免责声明:部分信息来源于网络,如果侵权,请联系及时删除联系电话:400-832-8782开发商已认证√√
感谢您的支持深圳市住房和建设局与中国人民银行深圳市分行联合发布通知,自2025年9月6日起实施以下优化措施:南山1978半岛擎峯售楼处联系电话:400-832-8782
1. 分区优化商品住房限购政策南山1978半岛擎峯 罗湖、宝安(不含新安)、龙岗、龙华、坪山、光明区:南山1978半岛擎峯 符合条件家庭(含非户籍连续缴纳社保或个税满1年)不限购。南山1978半岛擎峯 非户籍若无法提供1年社保/个税证明,限购2套。南山1978半岛擎峯 盐田区、大鹏新区:不再审核购房资格。南山1978半岛擎峯 成年单身人士按家庭政策执行。
2. 企事业单位购房政策南山1978半岛擎峯 可在全市购买商品住房用于解决员工住房需求。南山1978半岛擎峯 福田、南山、宝安新安街道:需满足设立满1年、累计纳税100万元、员工10人及以上。南山1978半岛擎峯 其他区域:不再审核购房资格。
3. 统一住房信贷政策南山1978半岛擎峯 银行业金融机构不再区分首套与二套住房利率,而是根据客户风险状况、经营情况等因素合理确定贷款利率。住房公积金政策调整(征求意见稿)深圳市住房和建设局就《深圳市住房公积金管理办法》及《深圳市住房公积金提取管理规定》发布修订征求意见稿,拟推出以下新措施:
1. 新增购房首付款提取南山1978半岛擎峯 职工及其家庭成员在深圳购买首套或第二套住房,可提取公积金支付购房首付款。南山1978半岛擎峯 首套房可全额提取公积金账户余额;二套房可提取账户余额的60%。南山1978半岛擎峯 旨在帮助刚需职工减轻购房负担。
2. 新增购房税款提取南山1978半岛擎峯 购买首套或第二套住房可提取公积金支付契税等购房税款。南山1978半岛擎峯 提取额度不超过实际缴纳的税款金额,需在税票开具后3年内申请。
3. 扩大还贷提取范围南山1978半岛擎峯 还贷提取范围从深圳市扩大至全国。南山1978半岛擎峯 偿还全国范围内首套或第二套住房贷款本息可申请提取公积金。南山1978半岛擎峯 首套房每月提取额为实际还贷额;二套房为当月应缴存额的60%且不超过实际还贷额。
4. 其他支持措施南山1978半岛擎峯 拟新增共六类提取情形,加大对首套及改善性住房的公积金支持力度。
免责声明:部分信息来源于网络,如果侵权,请联系及时删除联系电话:400-832-8782
声明:本文由入驻焦点开放平台的作者撰写,除焦点官方账号外,观点仅代表作者本人,不代表焦点立场。
