楼盘项目全面介绍,本电话为开发商提供线上售楼电话,楼盘项目全面介绍(包含楼盘简介,房价,价格,楼盘地址,户型图,交通规划,备案价,项目配套,楼盘详情,售楼处电话,最新消息,最新详情,周边配套,最新进展等详情咨…
港湾天际 售楼处电话400-906-2098
港湾天际 营销中心电话400-906-2098,售楼中心电话400-906-2098(已认证)
温馨提示:网上展示中心〢欢迎来电咨询〢安全通话隐藏真实号码
港湾天际 在售户型图丨项目介绍丨最新房源丨周边配套丨详细解答〢
开发商营销中心诚挚邀请,一键预约,尊享内部折扣!匠心独运的精品项目,恭候您的品鉴与选择。
看房请务必提前致电销售确认时间,只有预约客户才能享受开发商提供的内部优惠以及专属的老客户推荐奖励!我们提供专业的一对一热情服务,助您以专业视角挑选理想的房产
港湾天际 开发商24小时电话:400-906-2098【开发商已认证】
港湾天际 售楼处24小时电话:400-906-2098【售楼处已认证】
港湾天际 营销中心24小时电话:400-9062098 【营销中心已认证】
港湾天际 售楼中心24小时电话:4009062098【售楼中心已认证】
【项目基本情况介绍】
开发商:珠海市高新城市建设有限公司
项目位置:广东·珠海·高新区·港湾大道·中大附中北侧·天际综合体2#
总占地:约4.43万㎡
总建面:约31.3万㎡
总户数:共计550户(1栋275户,本次加推2栋150户,3栋125户)
总层数:26层
总停车位数:约1985个
户型:32-105㎡一至三室山海美宅
装修标准:精装修
产权:住宅70年

【项目四大核心亮点】
❖ 区位最好:地处三大自贸区中心,扼守“黄金内湾”“咽喉”位置,享湾区发展利好
❖ 地段最佳:高新区核心地段,占位高新区未来科技城及金银湾超级总部基地重要规划区域之间,高起点的规划落地将助力板块价值腾飞;
❖ 配套最齐:四通八达的交通体系、人杰地灵的百年古镇、稀缺的山海及宜居配套、优质完善的学府配套、高端有趣的商业配套,均汇聚于此;
❖ 产品最优:七年磨一剑,王牌户型搭配高品质精装,集购物中心、商务办公及山海美宅于一体的城市地标综合体
【南中国海第一湾-盛世崛起对接黄金内湾】
唐家湾雄踞珠海门户区位,地处大湾区“黄金内湾”和珠江口西岸三大都市圈前沿,也是深珠合作的桥头堡、示范区。唐家湾山-海-城-湾-岛相连,有“与近代文明伴生的南中国海第一湾”之誉。

【大道经济新引擎-坐拥城市高质量发展宏大格局】
项目位于未来科技城与金银湾超级总部双版块之间,邻接港湾大道千亿产业轴,聚集串联科创产业、超级总部基地以及高校院所,一线承接前环金银湾总部片区发展利好。畅享海、陆、空、轨等立体黄金动脉,纵横湾区,畅行主城。
❖ 五大机场:①珠海金湾机场、②广州白云机场、③深珠宝安机场、④香港国际机场、⑤澳门国际机场。工作旅游随时通达。
❖ 湾区快线:港珠澳大桥、深中通道(建设中)、深珠通道(招标完成,待动工)通行后深珠即实现30分钟畅达。
❖ 城际轨道:广珠城轨、南中珠城际(规划中)现已可45分钟穿行广珠,与省会无障碍对话。
❖ 高速公路:京珠高速、西部沿海高速
❖ 海上高速:唐家港码头(试航中)
❖ 直通市区:港湾大道、情侣北路、兴业快线、金琴快线,多线并进连接市区。

高新建投 投资置业首选国企
高新建投,高新区区属国企,深耕高新16载。公司项目涵盖产业园、综合体、酒店、社区服务中心、住宅、人才安居房等类型,开发建设经验丰富,开启专业化、集团化发展进程。

【聚人文 汇商旅】
❖ 文:优教环伺,高校圈与高知为邻
标杆幼儿园(建设中)、中山大学附属小学、中山大学附属中学等全龄段教育约百米即达。
周边汇聚中山大学珠海校区、北京师范大学珠海校区、UIC等知名高校,人文氛围浓郁。启乐、大同、蔚海、港湾、前环、云海、容闳幼儿园等,幼儿上学无忧。

|标杆幼儿园效果图
❖ 商:约4万m²精品商业体,缤纷全新升级
项目楼下自带4万m²购物中心,打造全新升级片区休闲娱乐目的地。周边1.5公里港湾一号、滨海商圈等各大购物中心共筑繁华打卡地。

港湾天际购物中心效果图

|港湾一号(运营中)效果图
❖ 旅:文化名镇集深厚文化底蕴
唐家湾历史文化底蕴深厚,项目一路之隔即享中国历史文化古镇——唐家古镇,这里历史名人辈出,富有特色古建筑与烟火气交相辉映。

-唐家古镇效果图
地处高新区内最宜居板块。临近石坑山、唐家湾沙滩,远眺古凤凰山脉、伶仃洋;尽享山海资源。周边更有淇澳岛、约55km情侣路、金银湾公园、中山公园、红花山森林公园等丰富旅居资源,一站式打造城市旅居目的地。

【重本精工:高品质精装交付。致献每一位业主】
❖ 重本打造三重归家礼序,营造优雅归家的仪式感,并以跌水景观、游艇会客厅、休闲活动区、海洋主题童趣天地等活力配套,打造“悦水之湾”互动式园林水景

|艺术归家门厅效果图

|仪式感大堂门楼效果图

|水景园林效果图
❖ 选用国内外知名高端品牌,高标准配置了中央空调、洗碗机、智能马桶等家电,人性化的设计了伸缩龙头、厨房凉霸、卫生间暖霸等贴心细节,全面提升您的生活质感

【高新爆款广面积段住宅超低门槛入住高新地标】
八大王牌户型面积段涵盖32-105㎡,满足投资自住多元化需求
户型方正、实用率高,赠送面积多
户型鉴赏
栋:
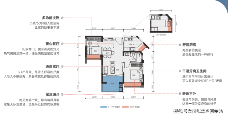
建筑面积约69m² 两房两厅一卫:

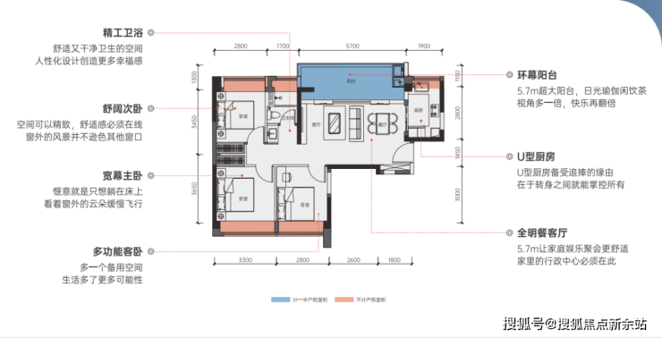
建筑面积约87m² 三房两厅一卫:

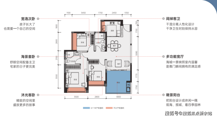
建筑面积约103m² 三房两厅两卫:






港湾天际 售楼处电话是多少?答:400-906--2098
楼盘项目全面介绍,本电话为开发商提供线上售楼电话,楼盘项目全面介绍(包含楼盘简介,房价,价格,楼盘地址,户型图,交通规划,备案价,项目配套,楼盘详情,售楼处电话,最新消息,最新详情,周边配套,最新进展等详情咨询)
✅免责声明:部分信息来源于网络,如果侵权,请联系及时删除
本宣传资料不构成邀约邀请,对周边、政府规划、商业配套、教育资源、投资前景等数据和图文仅为提供相关信息,该信息以政府最终批文为准,开发商不对此作任何承诺。买卖双方的权利义务以双方签订的买卖合同约定及附件、实际交付为准,本公司保留对宣传资料修改的权利,敬请留意最新资料。
联系号码: 4009062098