热搜焦点:御城水都售楼处电话→御城水都营销推荐网页24小时电话→最新房价→楼盘百科详情→营销中心最新发布@售楼处中心2025.10.8
扫描到手机,新闻随时看
扫一扫,用手机看文章
更加方便分享给朋友
🚨⠼⠙⠚⠚⠤⠼⠊⠋⠊⠤⠼⠚⠉⠊⠋4️⃣0️⃣0️⃣-9️⃣9️⃣2️⃣-7️⃣9️⃣6️⃣0️⃣
🌷御城水都售楼处电话:400-992-7960【🎀☎售楼处电话已认证】✨✨🏵
🌷御城水都营销中心电话:400-992-7960【🎀☎售楼处电话已认证】✨✨🏵
🌷御城水都开发商电话:400-992-7960【🎀☎开发商电话已认证】✨✨🏵
🌷本项目暂不接受临时到访,过来参观样板房请记得提前来电预约!【中介勿扰】
🌷为您安排楼盘现场销售全程接待并讲解,给您更贴心的看房体验!【中介勿扰】
御城水都开发商售楼处_Vip Tel:400-992-7960【中介勿扰】
🚨温馨提示:本项目实行预约参观制,为保障您的权益,莅临前请提前致电。我们将为您安排专属顾问接待讲解。请注意,4️⃣0️⃣0️⃣号码未设分机,谨防信息泄露。
购房无忧:售楼处、营销中心、销售中心三重认证(☑️✅☑️),承诺“不收取任何额外费用”,透明交易更安心【中介勿扰】
温馨提示:点击上方号码可直接拨打电话
请务必致电与销售确认时间,本项目暂不接受临时到访,感谢您的支持
🔅 看房贴心提示
为保障您的看房体验,建议提前拨打售楼处电话 400-992-7960预约(认证专线,放心拨打),我们将为您预留专属销售顾问及停车位,避免到访等待,高效看房更省心!【中介勿扰】


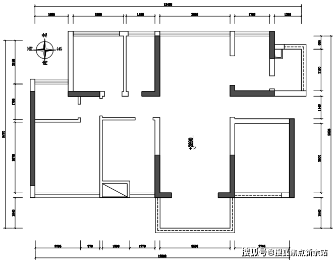
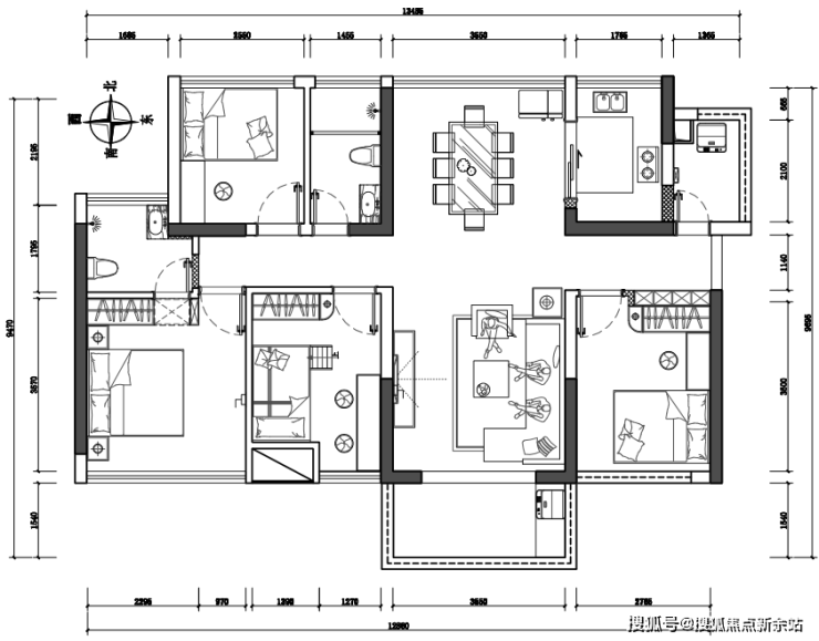
PART.01
户型解析
本案是一户五口之家,业主日常爱好茗茶,自身比较喜欢新中式风,不过女业主和孩子们对此无感,他们喜欢的是清新舒适的简约风。虽然新中式也带有简约元素,但老婆孩子依旧无法接受。考虑到自身茗茶的需求主要在生活区,所以希望设计师在这部分着重花一下心思满足需求。另外就是户型卧室大小普遍不算大,希望能有有合理方案让其能尽量完善更多生活或学习上的功能。

🌷御城水都售楼处电话:400-992-7960【🎀☎售楼处电话已认证】✨✨🏵
🌷御城水都营销中心电话:400-992-7960【🎀☎售楼处电话已认证】✨✨🏵
🌷御城水都开发商电话:400-992-7960【🎀☎开发商电话已认证】✨✨🏵
🌷本项目暂不接受临时到访,过来参观样板房请记得提前来电预约!【中介勿扰】
设计师改造思路:
1、通过与业主的详细,大致了解到其各个成员的核心需求。首先把重点放在生活区的客厅部分,全屋主题走的是简约风,客厅自然不例外,不过业主是茗茶的爱好者,我们不妨在里面糅合进中式元素,比如沙发的背景墙利用大板砖打造一幅水墨画,茶几搭配功夫茶一体桌,如此一前一后相互联动,既有画面感,也能满足业主的爱好需求。另外这两者配色偏冷,比价符合简约的基调,不会破坏原有主题的美感,反而让客厅能缔造出生活雅致的画卷,让人更有沉浸感。
2、户型的原始结构很方正,区间分布也合理,硬装无需改动,主要的问题在于有4间卧室,每个卧室所能分配到的空间就显得比较有限,关键就看如何进行合理的布局。
3、孩子房间的学习环境我们会通过与窗户和墙壁相结合,让窗户提供书桌直面采光与通风,墙壁空间打造书柜,力求实现书籍资料的获取与摆放都能轻松便捷。衣柜等软装也是偏向功能性的集合,闭合式与开放式柜体相互结合,满足对起居不同情况的需求。

🌷御城水都售楼处电话:400-992-7960【🎀☎售楼处电话已认证】✨✨🏵
🌷御城水都营销中心电话:400-992-7960【🎀☎售楼处电话已认证】✨✨🏵
🌷御城水都开发商电话:400-992-7960【🎀☎开发商电话已认证】✨✨🏵
🌷本项目暂不接受临时到访,过来参观样板房请记得提前来电预约!【中介勿扰】
PART.02
玄关收纳展示
入户玄关地面和墙面都通铺了大理石瓷砖,整个空间都格外明亮,并且墙体防水防潮,给人一种安稳的感觉。玄关柜以原木材质为主,除了基本收纳柜和鞋柜之外,额外打造了一个开放式柜体作为换鞋区,内还有衣钩可以挂外套帽子等衣物,优化起居体验。
PART.03
客厅现代感十足
🌷御城水都售楼处电话:400-992-7960【🎀☎售楼处电话已认证】✨✨🏵
🌷御城水都营销中心电话:400-992-7960【🎀☎售楼处电话已认证】✨✨🏵
🌷御城水都开发商电话:400-992-7960【🎀☎开发商电话已认证】✨✨🏵
🌷本项目暂不接受临时到访,过来参观样板房请记得提前来电预约!【中介勿扰】
客厅以灰白蓝三色构建色彩空间,塑造沉稳大气的视觉效果,落地阳台与餐厅飘窗形成双向采光,让整个客餐厅保持明亮,通风换气也得到保障。天花做了简单的边顶,配上了一圈筒灯,主灯是平面吸顶灯,能较好的营造层次感,光源覆盖也比较全面。沙发背墙墙铺贴了水墨画的大板砖,散发一种中式的高雅之感,茶几配了一张功夫茶几,茶几还自带4张小方椅,对于家人之间的互动可谓十分方便。茶道搭配上水墨背景,意在塑造一种生活的闲情雅致,让人十分放松。
🌷御城水都售楼处电话:400-992-7960【🎀☎售楼处电话已认证】✨✨🏵
🌷御城水都营销中心电话:400-992-7960【🎀☎售楼处电话已认证】✨✨🏵
🌷御城水都开发商电话:400-992-7960【🎀☎开发商电话已认证】✨✨🏵
🌷本项目暂不接受临时到访,过来参观样板房请记得提前来电预约!【中介勿扰】
电视背景墙打造了L型的电视柜,立式玻璃柜内部有内置灯,往里放置的装饰或者酒品能有更好的呈现姿态,很好地给客厅提升颜值与档次;下方横向的柜体主要用于补充收纳能力,让一些工具或者杂物也有合理的安放位置,柜面空间则可用于放置绿植或者迎合气氛的摆件,增家客厅的生机。
PART.04
餐厅温馨浪漫

餐厅空间比较宽敞,因此选用岩板圆桌,一来外观大气上档次,二来能轻松应对多人聚餐的情况。餐桌本身的性价比也很高,硬度大,耐用度高,易清理都是其优点,餐桌上方摆放了岩板的转盘,进行一步优化就餐体验。
🌷御城水都售楼处电话:400-992-7960【🎀☎售楼处电话已认证】✨✨🏵
🌷御城水都营销中心电话:400-992-7960【🎀☎售楼处电话已认证】✨✨🏵
🌷御城水都开发商电话:400-992-7960【🎀☎开发商电话已认证】✨✨🏵
🌷本项目暂不接受临时到访,过来参观样板房请记得提前来电预约!【中介勿扰】
餐边柜是餐厅的重要组成部分,主要分成原木的收纳柜和玻璃柜两部分,原木柜主要用于收纳,具备内置灯的玻璃柜用于摆放高档酒品,提升餐厅档次。中部饮水区安装了移动式插座,让家电线路变得灵活,在饮水区安放的位置也能更加随心所欲。
PART.05
厨房低调实用
🌷御城水都售楼处电话:400-992-7960【🎀☎售楼处电话已认证】✨✨🏵
🌷御城水都营销中心电话:400-992-7960【🎀☎售楼处电话已认证】✨✨🏵
🌷御城水都开发商电话:400-992-7960【🎀☎开发商电话已认证】✨✨🏵
🌷本项目暂不接受临时到访,过来参观样板房请记得提前来电预约!【中介勿扰】
冰箱外置在餐厅,厨房的内部使用空间也一下子得到了释放。操作台沿着墙面打造成L型,让侧方窗户能能够很好地发挥横向采光的优势。台面以石英材质为主,边沿处打造了挡水条,让厨房的使用与清洁工作都能格外轻松。
PART.06
主卧极简轻松
主卧设计延续着简约的设计理念,墙面刷了淡紫色的乳胶漆,属于耐看型,视觉效果很舒服。卧室取消了飘窗设计,让两侧过道空间保持宽敞。
🌷御城水都售楼处电话:400-992-7960【🎀☎售楼处电话已认证】✨✨🏵
🌷御城水都营销中心电话:400-992-7960【🎀☎售楼处电话已认证】✨✨🏵
🌷御城水都开发商电话:400-992-7960【🎀☎开发商电话已认证】✨✨🏵
🌷本项目暂不接受临时到访,过来参观样板房请记得提前来电预约!【中介勿扰】
主卧做了一个很有趣的设计,定制的衣柜围绕着独卫的门打造,门与柜之间形成了一条通道区间,关上柜门和卫生间门可作为一个独立更衣区使用,有更好的私密性与更衣体验。
独卫的占地面积不大,没有采用干湿分离的设计,将如厕区、淋浴区和洗漱区以直角的结构排布,确保每个区域都有合理的使用空间。
PART.07
次卧清爽宁静
🌷御城水都售楼处电话:400-992-7960【🎀☎售楼处电话已认证】✨✨🏵
🌷御城水都营销中心电话:400-992-7960【🎀☎售楼处电话已认证】✨✨🏵
🌷御城水都开发商电话:400-992-7960【🎀☎开发商电话已认证】✨✨🏵
🌷本项目暂不接受临时到访,过来参观样板房请记得提前来电预约!【中介勿扰】
次卧是儿子的房间,航海主题的原木床榻迎合孩子新中的喜爱。学习环境设定在床榻后方,窗户给书桌直面的采光,书架与书柜立于侧方墙壁,学习资料随手拿取与摆放,便捷且有效率。
定制衣柜采用日式推拉门,节省开合的空间,防止过道不足或者堵塞。顶部打造4个收纳柜用于收纳被子床褥等。侧方打造开放式柜体,中部有衣钩,方便挂外套帽子等衣物,上下格子柜用于摆放装饰,丰富卧室元素。
PART.08
儿童童真烂漫
🌷御城水都售楼处电话:400-992-7960【🎀☎售楼处电话已认证】✨✨🏵
🌷御城水都营销中心电话:400-992-7960【🎀☎售楼处电话已认证】✨✨🏵
🌷御城水都开发商电话:400-992-7960【🎀☎开发商电话已认证】✨✨🏵
🌷本项目暂不接受临时到访,过来参观样板房请记得提前来电预约!【中介勿扰】
儿童房安装了上下床铺,促进孩子之间的起居互动,方便更好地增进彼此的感情。床榻前方打造了阶梯式抽屉柜,既可以上行下行,还提升了卧室的收纳空间,占地面的也得到了节省,一举三得。
PART.09
客房清新温柔
📜 更多项目详情
无论您想了解最新房源动态、户型图实拍,还是周边配套规划,均可通过以下方式获取一手信息:
御城水都开发商售楼处_Vip Tel:400-992-7960【中介勿扰】
🌷御城水都售楼处电话:400-992-7960【🎀☎售楼处电话已认证】✨✨🏵
🌷御城水都营销中心电话:400-992-7960【🎀☎售楼处电话已认证】✨✨🏵
🌷御城水都开发商电话:400-992-7960【🎀☎开发商电话已认证】✨✨🏵
免责声明:本宣传资料不构成邀约邀请,对周边、政府规划、商业配套、教育资源、投资前景等数据和图文仅为提供相关信息,本文如无意中侵犯了某方的知识产权告知即删,部分内容图片可能来源于网络,无法核实其真实出处,如涉及侵权请联系删除!!!
声明:本文由入驻焦点开放平台的作者撰写,除焦点官方账号外,观点仅代表作者本人,不代表焦点立场。
