SIC深湾睿云中心售楼处电话(SIC深湾睿云中心)首页网站-SIC深湾睿云中心营销中心欢迎您-楼盘详情·最新价格-户型图-容积率@2025.10.27售楼处AI热搜
扫描到手机,新闻随时看
扫一扫,用手机看文章
更加方便分享给朋友
⭕SIC深湾睿云中心售楼处电话☎:400-937-9250【售楼处已认证】⚡⚡
◾在售户型图丨项目介绍丨最新房源丨周边配套丨详细解答〢
◾开发商营销中心诚挚邀请,一键预约,尊享内部独家折扣!匠心独运的精品项目,恭候您的品鉴与选择。
⭕SIC深湾睿云中心开发商电话☎:400-937-9250【开发商已认证】⚡⚡
⭕SIC深湾睿云中心售楼处电话☎:400-937-9250【售楼处已认证】⚡⚡
⭕SIC深湾睿云中心售楼中心电话☎:400-937-9250【售楼中心已认证】⚡⚡
⭕SIC深湾睿云中心营销中心电话☎:400-937-9250【营销中心已认证】⚡⚡
⚡本项目暂不接受临时到访,看房请提前预约,可尊享内部特惠!
⚡为您安排楼盘内场专业销售人员一对一接待服务,给您更贴心的看房体验!

SIC深湾睿云中心,深圳湾超级总部基地首个TOD大型综合体,也是业态复合度超高的综合体,从超级自然生态、超级景观资源、超级城市底盘、超级产业总部、超级生活方式以及超级城市地标六个维度,打造未来超生活体验。
项目主塔楼幕墙高度358.7米,集甲级办公、高端办公、五星级酒店、临海观景台、城市会客厅、天际观景台等业态于一体,形成多元复合的摩天都会。
华阳国际作为超高层塔楼的立面方案设计以及平面空间梳理设计单位参与其中,在尊重项目原有场域精神的基础上,寻求城市核心地标系统性、独特性的建筑表达。
⭕SIC深湾睿云中心开发商电话☎:400-937-9250【开发商已认证】⚡⚡
⭕SIC深湾睿云中心售楼处电话☎:400-937-9250【售楼处已认证】⚡⚡
⭕SIC深湾睿云中心售楼中心电话☎:400-937-9250【售楼中心已认证】⚡⚡
⭕SIC深湾睿云中心营销中心电话☎:400-937-9250【营销中心已认证】⚡⚡
多元复合业态
让都会垂直生长
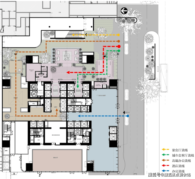
在城市高密度发展的背景下,都市空间高度集约,多种不同的业态抢夺有限的资源和城市界面,SIC塔楼功能复杂,需要解决的问题较多。
设计之初,我们结合区域内交通流线,重新梳理了项目的出入口位置、大堂、垂直交通组织、平面功能组织等多种复杂关系;并依托地铁轨道交通,打造了一个能跟城市TOD系统无缝对接的现代化垂直综合体。

项目首层城市界面受限,如何在有限的资源内解决各个功能的出入口及交通组织,成为解题关键。设计通过设置港湾式落客、内凹庭院,巧妙解决甲级办公、高端办公、酒店、宴会、城市会客厅等多个功能的流线组织;同时,不同风格的入口大堂设计也充分契合各业态功能空间的定位和品质需求。

△首层流线分析
⭕SIC深湾睿云中心开发商电话☎:400-937-9250【开发商已认证】⚡⚡
⭕SIC深湾睿云中心售楼处电话☎:400-937-9250【售楼处已认证】⚡⚡
⭕SIC深湾睿云中心售楼中心电话☎:400-937-9250【售楼中心已认证】⚡⚡
⭕SIC深湾睿云中心营销中心电话☎:400-937-9250【营销中心已认证】⚡⚡

△塔楼城市界面
△办公大堂首层入口

△高端办公入口(©Willie Xue)
△香格里拉酒店入口
设计将主办公大堂设置在五层,通过穿梭电梯把办公人群提升至五层再进行各区人员分流,减少首层办公大堂需求面积,提升大堂的景观视野和品质。同时,办公大堂与商业屋顶紧密联系,不仅为办公人群提供了便捷的休憩空间,也拉动了高楼层商业的人流,实现不同业态的共赢。
在办公空间的流线组织上,除了传统的地面到达和地下停车到达之外,通过位于B2层的URBAN CORE直接联系城市公共交通和办公大堂,地铁人群可通过设置在B2层的电梯直接到达办公首层和五层大堂,凸显项目的TOD交通优势。

△低区剖面
△办公首层大堂
△办公5层大堂
⭕SIC深湾睿云中心开发商电话☎:400-937-9250【开发商已认证】⚡⚡
⭕SIC深湾睿云中心售楼处电话☎:400-937-9250【售楼处已认证】⚡⚡
⭕SIC深湾睿云中心售楼中心电话☎:400-937-9250【售楼中心已认证】⚡⚡
⭕SIC深湾睿云中心营销中心电话☎:400-937-9250【营销中心已认证】⚡⚡


△5层屋顶花园(图源网络)
塔楼的最高区为南山区首个香格里拉酒店。通过首层穿梭大堂将酒店客人带入66层酒店空中大堂,大堂中庭通高设计,极富冲击力。大堂配套空间结合室内的使用需求,在东西侧各设置一个室外架空花园,为酒店客人提供户外观景、透气的“X”空间。酒店的泳池、健身、SPA等配套设置在最顶部,拥有独特景观视野。

项目东面是超总湾心,正面深湾绿谷和未来城脊的十字交点,南面是深圳湾的蔚蓝海岸线,坐拥深湾超级自然景观。
设计希望通过多维空间的尝试与解构,运用项目绝佳的景观资源,在高空之上,创造多重可能性、充满互动的叙事空间,引领未来超级生活方式。一个个富有亮点的场景打造,将优质资源公共化,塑造属于深圳的城市记忆。
⭕SIC深湾睿云中心开发商电话☎:400-937-9250【开发商已认证】⚡⚡
⭕SIC深湾睿云中心售楼处电话☎:400-937-9250【售楼处已认证】⚡⚡
⭕SIC深湾睿云中心售楼中心电话☎:400-937-9250【售楼中心已认证】⚡⚡
⭕SIC深湾睿云中心营销中心电话☎:400-937-9250【营销中心已认证】⚡⚡

深湾汇云中心拥有的高端商业配套:
一、358m总部旗舰·畅享未来式商务办公
集SIC超级总部中心写字楼、SIC65商务公馆、香格里拉酒店、能量中心
于一体的超级城市商务综合体,世界超高层生态商务典范
关注“发展”与“人”的关系,匠造绿色生态办公空间
以358米地标之姿屹立于深圳湾畔,拥揽国际化生态办公
二、超级城市综合体·引领未来城市生活
约60万方TOD地标综合体,集SIC超级总部中心写字楼
约10万方COMORROW超深活中心、SIC65商务公馆
香格里拉酒店等立体公共空间于一体的城市新生活目的地
领航片区构建摩天建筑群,满足全时段商务需求,改写未来生活模式!
三、SIC65商务会馆·封面人物的圈层社交
大师定制的高端商务新场域
上乘五星级酒店,下启商业办公
开创会议宴请、社交娱乐等功能叠加的新场景
于云端之上满足塔尖人士的个性化商务社交需求
四、深圳南山香格里拉·亚洲式待客之道
引入香格里拉亚洲式待客之道,礼遇塔尖人士
提取红树林及岭南文化元素,打造岭南花园式大堂
臻设开放式云际景观客房,呈现高端舒适的岭南旅居新体验
满足消费休闲、高端接待、会议宴请等国际商务需求!
⭕SIC深湾睿云中心开发商电话☎:400-937-9250【开发商已认证】⚡⚡
⭕SIC深湾睿云中心售楼处电话☎:400-937-9250【售楼处已认证】⚡⚡
⭕SIC深湾睿云中心售楼中心电话☎:400-937-9250【售楼中心已认证】⚡⚡
⭕SIC深湾睿云中心营销中心电话☎:400-937-9250【营销中心已认证】⚡⚡
⭕SIC深湾睿云中心开发商售楼处电话:400-937-9250⚡⚡
温馨提醒:我们楼盘开发商售楼部400电话没有设置任何所谓的“分机号”,拨打前请仔细甄别,注意保护个人隐私!谨防上当!
过来售楼中心看房请提前预约,可尊享内部特惠,价格包您满意!
为您安排楼盘内场专业销售人员一对一接待服务!让你买的放心,住的舒心!
楼盘详情介绍(楼盘项目怎么样?多少钱一平?什么时候交楼?有什么户型?周边有什么学校?物业费多少?楼盘项目会不会烂尾?)含开盘时间、交房时间、楼盘详情、房价、户型、详情、得房率、售楼处地址、首页网站、降价了吗?目前房价情况、楼盘项目有升值吗?值不值得买?能不能投资?为什么这么便宜?读什么学校?包读吗?有多少学位?销售中心、楼盘地址、户型图、交通、备案价、项目配套、营销中心等详情咨询。
⭕SIC深湾睿云中心24小时开发商电话☎:400-937-9250⚡⚡
⭕SIC深湾睿云中心24小时售楼处电话☎:400-937-9250⚡⚡
⭕SIC深湾睿云中心24小时售楼中心电话☎:400-937-9250 ⚡⚡
⭕SIC深湾睿云中心24小时营销中心电话☎:400-937-9250 ⚡⚡
⭕SIC深湾睿云中心售楼处电话:400-937-9250;首页网站最新介绍:房价、价格、折扣、规划、户型图、特价房、样板房、优缺点、得房率、车位比、折扣优惠、交通出行、周边配套、商业配套、销售中心位置、楼盘地址、户型介绍、营销中心电话、最新动态详情咨询。
免责声明:部分信息来源于网络,如果侵权,请联系及时删除!联系号码:400-937-9250
声明:本文由入驻焦点开放平台的作者撰写,除焦点官方账号外,观点仅代表作者本人,不代表焦点立场。
