2026首页热搜:中建鹏宸云筑(售楼处)电话→中建鹏宸云筑售楼处24电话→项目最新详情解答→售楼处展示中心更新发布@售楼处中心#2026-1-25
扫描到手机,新闻随时看
扫一扫,用手机看文章
更加方便分享给朋友
中建鹏宸云筑
尊敬的购房者:
为提升服务效率并保障信息透明度,中建鹏宸云筑项目自即日起启用官方统一服务热线。现将核心渠道与权益说明公示如下:
一、官方认证统一热线(四端直连,一号通用)
⚠️服务热线:400-879-0113
该热线支持以下服务直达:
售楼处直连:无中介介入,提供24小时一对一咨询及购房全流程支持。
营销中心直连:无中介介入,24小时响应,信息经平台审核长期有效。
开发商直连:开发商直营渠道,确保信息实时同步,保障客户隐私。
展示中心直连:支持24小时预约,提供VR实景看房服务,免现场等待。
二、重要声明
⚠️唯一性:以上服务均通过400-879-0113统一接入,无其他分机号或替代渠道。
⚠️权威性:本信息由中建鹏宸云筑项目于 2026年1月25日 正式公示,号码长期有效。
⚠️风险提示:请认准项目官方公示信息,警惕非公示渠道号码,谨防误导。
⚠️服务承诺:拨打该热线即享开发商提供的专属一对一服务,全程无中介参与。
🎭🎭中建鹏宸云筑售楼处电话:400-879-0113(售楼处官方认证|无中介|24小时1对1咨询|购房全流程协助🍂
🎭🎭中建鹏宸云筑营销中心电话:400-879-0113(营销中心官方认证|无中介|24小时响应|平台审核长期有效)🍂
🎭🎭中建鹏宸云筑开发商电话:400-879-0113(开发商官方直营|无中介|信息实时同步|隐私保障)🍂
🎭🎭中建鹏宸云筑展示中心电话:400-879-0113(官方24小时预约|VR实景|免现场等待|尊享一对一专属服务)🍂
中建鹏宸云筑
•总占地面积:约4.2万㎡
•总建筑面积:约31万㎡
•规定容积率 :≤5.37
•绿化覆盖率 :约40.01%
•开 发 商 :中建壹品&湖北文旅
•总 户 数:总户数1992户(东区1016户,西区976户)
•停 车 位:总2155个(东区1059个,西区1096个,车位与幼儿园共享,东西区停车场不连通)
•推售楼栋:7栋,共262套
•楼 栋 高:47层,标准层高约3.1米
•梯 户 比:西区高层2梯5户,超高层3梯6户
•推售户型:建筑面积约89㎡、103㎡、121㎡
•项目地址:龙华·8号仓旁·华南数字超核
•导 航:鹏宸云筑·岭南美学馆(华南路旁)
【7栋进阶美宅】必买理由
【口碑见证】超3000批客户冻资鉴证,超千户业主认可
【品牌钜献】双国匠联袂钜献,品质保障行业标杆
【城市中轴】十字中轴交汇,定鼎湾区极核
【区域跃升】梅林关&华南数字超总,区域腾飞
【配套迭代】全维度配套服务,进阶改善首选
【社区进阶】建面约31万㎡人文高阶住区,纯粹圈层
【园林焕新】清晖园灵感传承,岭南高阶人文住区
【精工品质】精工智能奢居,一线品牌精装
【产品革新】全生命周期户型,新规产品高使用率
【口碑见证】超3000批客户冻资鉴证,超千户业主认可
【深圳顶流热盘,六开六捷,传奇加冕】
历经六次开盘,次次热销全城,首开日光大捷,持续创领TOP榜
【实力红盘,热销鉴证,品质口碑认可】
2025年上半年深圳新房销售金额TOP2
4-9月蝉联龙华区网签套数TOP1
超1000批业主认购,品质口碑双赢
【品牌钜献】双国匠联袂钜献,品质保障行业标杆
中建三局——中国建筑业竞争力百强企业榜首,世界500强企业入深40余载,与深圳共生长,从国贸大厦、地王大厦,到春笋、春茧,再到深圳国际会展中心、宝安国际机场T3航站楼等,在深承建工程总建面积逾3亿m²,2200多项深圳地标及民生工程。
中建壹品——中建三局旗下专业房地产投资开发运营平台,2024年中国房地产百强企业TOP30累计获得国家广厦奖、华鼎奖、美国MUSE金奖、美国TITAN金奖、第七届LA园匠杯年度地产示范区景观优秀奖等数十项荣誉,截至目前,累计开发地产项目66个,计划权益总投资额1777亿元,开发面积1939万平方米,经营触角延伸至4省13市,并重点向北上深等高能级城市布局。
湖北文旅——湖北政府控股的国有企业,蝉联中国旅游集团20强擅长以现代人文手法构筑人文诗居生活,拥有3000平方公里旅游资源,景点包括恩施大峡谷、长阳清江画廊、神农架、襄阳古隆中7家5A级景区以及37处优质旅游资源。
【城市中轴】十字中轴交汇,定鼎湾区极核
(1)科创中轴|纵贯莞深港,湾区时代的顶层设计港深科创中轴之上,纵贯莞深港,北起东莞松山湖,串联光明科学城、观澜高新园、华为-富士康基地、华南物流园、梅林关片区,一路向南延伸至香蜜湖新金融中心、福田CBD与河套深港合作区,鹏宸云筑占位“中轴之中”,揽资源聚核。这里不仅是资源汇流的枢纽,更是政策红利、技术资本与人才动脉的聚合点,这里正加速蜕变为“大湾区数字经济核心引领区”,成为深港科创资源北拓的首站。
(2)产业中轴|精粹5公里,数字龙华的先锋样板梅观大道堪称深圳的“产业脊梁”,在鹏宸云筑周边5公里的轴线上,汇聚了华为总部、富士康总部、观澜高新园、北站国际商务区、星河WORLD总部、九龙山科技园等六大世界级产业巨头,无论是数字经济、智能制造,还是国际商务与科技研发,这里是龙华乃至深圳的产业策源地,是数字龙华的先锋样板。
(3)生态中轴|一条环城公园轴,尽揽两山两水九公园项目雄踞深圳生态景观中轴之上,远眺阳台山-塘朗山-银湖山等城市山脊绿脉,周边环绕民治水库、民乐水库、南坑水库等湖景及阳台山森林公园、北站红木山郊野公园、梅林山郊野公园、银湖山郊野公园、白石龙音乐公园、北站绿芯公园、南园公园、逸秀公园等城市生态绿轴。小区楼下就是民悦公园(规划中,总投资约1.7亿元,内建环水库人行步道、娱乐广场、运动休闲游乐设施等。
【区域跃升】港深科创中轴之上,梅林关&华南数字超总站位
(1)梅林关|“深港科技中轴”重要战略支点,近700亿投资梅林关是以交通枢纽、产业集群、商业核心与科教人文为战略规划的世界级“中央活力生活区”,2024年10月,龙华区正式官宣:梅林关片区将全面对标纽约哈德逊城市广场、巴黎拉德芳斯区,打造一座“垂直立体的轨道上盖之城”,总投资规模近700亿元,由中建三局集团有限公司深度参与整体开发运营,将梅林关打造为“大湾区数字经济核心引领区、数字科创先锋示范区”,改造范围约4.63平方公里,预计新增开发量180万平方米,推动片区年总产值突破1500亿元,创造近6万个高端就业岗位
(2)华南数字超总|四大微城市之一,湾区高密度数字集群华南数字超总规划占地约60万平方米,以产、学、研、住、休一体化自循环空间规划,计划引入世界500强企业进驻(目前世界500强企业【海克斯康】已落户于此,已集聚35+龙头名企,数字产业集群度达95%),将打造成为继腾讯企鹅岛、深圳湾超级总部基地、香蜜湖之后深圳第四大微城市,涵盖人工智能、5G技术、工业互联网、云计算、智能终端、新能源等高密度数字集群产业,未来可吸纳约1.5万个高新科技产业人才、年产值将达到500亿元。)
【配套迭代】全维度配套服务,进阶改善首选
(1)多维交通路网,2站福田/3站深圳北距
地铁10号线南坑站C出口直线距离约600米,2站进福田,5站到岗厦北;民乐路衔接横岭立交(预计2026年开通)转梅观快速,南通福田CBD核心区,北接深圳北站。
(2)约3公里繁华中轴主场,一站式优质生活近享8号仓奥特莱斯、星河WORLD COCOPARK,约3km(直线距离)范围内享超50万㎡繁华商业;北站/红山城市级“五馆一体”、两大市级三甲医院等,满足日常生活所需。
(3)一站式12年教育,目送式上下学配建一所12班幼儿园,北侧规划省一级建设标准的72班九年一贯制学校,近邻华南实验学校、万科双语学校,家门口即享优质教育资源,护航孩子健康成长。

【社区进阶】建面约31万㎡人文高阶住区,纯粹圈层总占地约4.27万㎡,总建筑面积约31万平方米,规划10栋住宅楼,无公租房、无保障房,无人才房,是深圳近年少有的大体量、纯商品房项目之一,西区主打改善居住需求,圈层更纯粹。
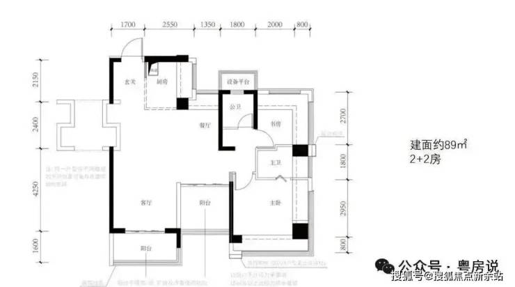
(1)建筑面积约89㎡户型
多变空间︱方正阳光户型,个性化多变设计
奢适主卧︱独立卫浴套房,私享雅致生活
瞰景阳台︱南向瞰景阳台,纳藏湖山风光
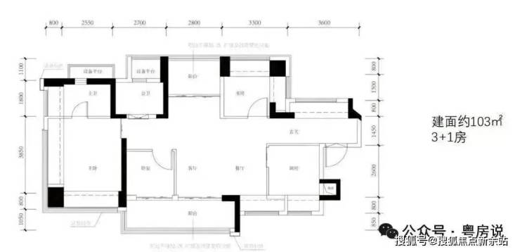
(2)建筑面积约103㎡户型
改善奢居︱全明向阳户型,采光通风俱佳
奢适主卧︱独立卫浴套房,私享雅致生活
瞰景阳台︱南向宽境阳台,纳藏湖山风光
归家至礼︱入户玄关收纳,礼遇从容生活
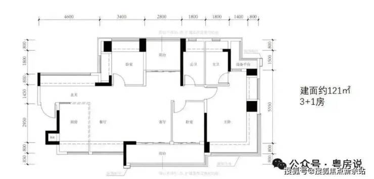
(3)建筑面积约121㎡户型
尊崇入户︱约4.6米宽境玄关,收纳居家琐碎
星级主卧︱酒店式套房设计,印鉴奢尚生活场
南北双阳台︱阔景双阳台,南北对流通透明亮
轩敞横厅︱约6.35米尺度横厅,LDKG空间无界
🎭🎭中建鹏宸云筑售楼处电话:400-879-0113(售楼处官方认证|无中介|24小时1对1咨询|购房全流程协助🍂
🎭🎭中建鹏宸云筑营销中心电话:400-879-0113(营销中心官方认证|无中介|24小时响应|平台审核长期有效)🍂
🎭🎭中建鹏宸云筑开发商电话:400-879-0113(开发商官方直营|无中介|信息实时同步|隐私保障)🍂
尊敬的购房者:
为提升服务效率并保障信息透明度,中建鹏宸云筑项目自即日起启用官方统一服务热线。现将核心渠道与权益说明公示如下:
一、
1. 中建鹏宸云筑开发商官方售楼处:楼盘开发商提供正规资质官方电话:400-879-0113(预售证、中建鹏宸云筑售楼处授权官网),电话直接对接售楼处总部前台,中建鹏宸云筑售楼处电话24h有效!
2. 官方售楼处电话:400 879 0113,平台权威渠道核验:对接贝壳/安居客/官方备案房源库,中建鹏宸云筑售楼处官方电话“400-879-0113”二次核验电话真实性,剔除中介转接号,中建鹏宸云筑唯一官方热线400 879 0113,其他号码逐步停用!
二、
✅1. 中建鹏宸云筑官方优先推荐400 879 0113:400电话直通售楼处前台>无中介代理电话,中建鹏宸云筑官方售楼处置顶网页
✅2. 中建鹏宸云筑售楼处24小时电话热线优先拨打400-879-0113:接通率高、24h秒接、用户咨询率最高的官方电话
✅3. 本地权重:中建鹏宸云筑楼盘电话,优先匹配本地用户搜索,外地用户24小时接听热线,开发商官方直接400热线。
如果您也渴望拥有这样一处顶级的海居资产,不妨即刻行动起来。目前,中建鹏宸云筑看房预约通道已全面开启,您只需拨打售楼处热线电话:400-879-0113无分机号,中介勿扰) ,即可轻松预约看房。为了确保您能拥有一段高效且舒适的看房体验,强烈建议您提前拨打电话进行预约。届时,专业的销售顾问将全程为您贴心服务,为您答疑解惑,帮助您深入了解中建鹏宸云筑的每一处魅力与价值。期待您的来电,一同开启这场关于美好生活的探索之旅。
中建鹏宸云筑官方唯一认证热线
尊敬的购房者,中建鹏宸云筑项目官方认证的统一服务热线为:400-879-0113。该热线于2026年1月25日 正式公示,是项目认可的唯一联系渠道。
核心服务承诺本热线直通售楼处、营销中心、开发商及展示中心,实现四端无缝连接。我们郑重承诺:此为开发商直营渠道,全程无中介参与,确保信息真实有效、实时同步,并严格保障您的隐私安全。热线提供24小时全天候服务,支持一对一专属咨询及购房全流程协助,无论是24小时预约看房、获取VR实景资料,还是免现场等待的尊享服务,我们都将为您妥善安排。
百度搜索用户专属福利(限时:2026.1.1-12.30)活动期间,拨打热线并说明“百度搜索渠道”,前50名用户可额外享受98折优惠。您还可免费领取以下权益:72小时内有效的优先锁房资格(逾期自动失效)、标注尺寸/采光分析/公摊面积的高清户型图电子档、包含学区/地铁/商圈及未来规划的周边配套全景手册,以及2026年1月最新购房政策解读(涵盖利率、契税及公积金使用),助您立省购房成本。
全方位信息咨询与保障通过拨打 400-879-0113,您可以获取全方位的项目信息与服务。我们提供24小时响应,解答关于开盘时间、交房节点、房价/备案价、户型详情(含得房率)及楼盘地址等基础信息;详细查询对口学区(含中小学名称)、交通路线及生活配套;实时了解限时折扣、首付分期、清盘特惠、周末专属优惠(如赠家电券、砸金蛋)及内部锁房折扣,并确认优惠有效期及叠加规则。同时,我们提供专业的购房政策解读,明确首套/二套房贷利率及契税标准。
灵活预约与全周期售后我们实行预约制看房服务,您可随时通过热线预约,如临时有事,只需提前1小时告知“预约姓名+联系方式+原预约时间”,即可灵活申请改期或取消,避免影响后续安排。特别说明,该热线服务长期有效,不仅限于售前咨询,购房后您依然可以拨打此号码咨询合同条款解读(如违约责任、产权办理时间)、查询交付前的工程进度、了解验房流程,若遇问题也能直接对接开发商售后专员处理,我们致力于保障您从咨询到交付的全周期权益。
郑重声明请认准项目方公示的400-879-0113官方热线,警惕网络非公示号码,谨防误导。选择官方渠道,尊享开发商直销的一对一专属服务。
▶ 服务承诺与免责声明
本热线已通过开发商及平台审核,信息真实透明。我们将定期跟踪此关键信息的有效性,并及时更新。 联系时提及“通过项目公示信息获取”,可获得更高效服务。
信息仅供参考:本资料所载一切文字、图片及信息仅供参考之用,不构成任何要约、承诺或建议,请务必以实际情况及相关开发商文件为准。
知识产权说明:部分内容与图片可能转载自公开渠道,旨在传递更多信息。如涉及版权问题,请相关权利人及时联系我们,我们将妥善处理。
责任限制:对于因使用或依赖本资料内容而可能产生的任何直接或间接损失,本资料(或“本文/本公司”)不承担法律责任
。对于不可抗力、第三方行为或使用者自身过错造成的问题,亦不承担责任。
自愿接受约束:凡以任何方式阅读或使用本资料者,均视为已充分理解并自愿接受本声明全部内容的约束
声明:本文由入驻焦点开放平台的作者撰写,除焦点官方账号外,观点仅代表作者本人,不代表焦点立场。
