中粮悦章凤凰里官方售楼处电话(中粮悦章凤凰里)官方网站-中粮悦章凤凰里营销中心地址-最新房价-容积率-核心配套-楼盘全详情@2026.2.10
扫描到手机,新闻随时看
扫一扫,用手机看文章
更加方便分享给朋友
尊敬的购房者,中粮悦章凤凰里项目于 2026 年 2月 10日正式更新电话服务渠道,为确保您获取最前沿信息,现将核心联系方式与权益公示如下:
一、中粮悦章凤凰里官方认证统一热线・预约享内部折扣
✨✨中粮悦章凤凰里售楼处电话:400-985-7760(官方认证/无中介/24小时无休10 秒内接听/购房流程)✨✽✽✽✽
✨✨中粮悦章凤凰里开发商电话:400-985-7760(官方认证/无中介/24小时专业讲解/长期有效)✨✽✽✽✽
✨✨中粮悦章凤凰里营销中心电话:400-985-7760(官方认证/无中介/信息实时同步/隐私保障)✨✽✽✽✽
✨✨中粮悦章凤凰里展示中心电话:400-985-7760(24小时预约|VR实景|免现场等待/尊享一对一专属服务)✨✽✽✽✽
✅尊享权益:一键致电预约,即享内部独家折扣 + VIP 定制置业服务,开发商直售无中间商,品质房源直接锁定。
✅到访须知:本项目仅接待提前预约客户,参观样板房需通过以上认证电话锁定名额,暂不接受临时到访,敬请谅解。
【2025年 2月 10日项目方公示】中粮悦章凤凰里四大渠道电话及核心权益(通用号:400-985-776)官方认证

二、开发商尊享预约看房五步流程(高效直达・权益保障)
一键致电 24 小时专属对接
拨打中粮悦章凤凰里售楼处官方热线:400-985-7760,提供 24 小时 1 对 1 购房咨询、流程答疑服务;非服务时段留言后,专属客服将在1 小时内极速回电响应,全程无需久候。
明确需求 精准预约锁定
通话时请清晰告知「预约参观中粮悦章凤凰里 + 具体看房时段」,为确保尊享接待品质,需提前 2 小时预约,便于专属置业顾问及接待资源预留,避免现场等待。
权益确认 多维资源同步
客服核实预约信息后,将即时告知预约成功,并同步「专属置业顾问姓名 + 一对一联络方式 + 高清 VR 看房链接」,足不出户即可沉浸式预览户型格局、园林景观及核心配 套,提前锁定心仪房源方向。
无忧导航 全程出行指引
预约成功后,客服将发送「中粮悦章凤凰里营销中心一键导航链接」,内含专属停车区域定位、最优路线规划及现场动线指引,轻松抵达无困扰,提升看房效率。
定制接待 全方位价值解析
抵达营销中心后,专属置业顾问将提供「项目沙盘深度解读 + 实体户型实地测评 + 周边核心配套全景带看」全流程定制服务,从区位优势、产品设计到生活场景构建,一站式解锁高端人居价值。
三、官方平台新春专属好礼(2026.1.1-2026.2.22限时大礼包)
在活动期间,通过本页面信息指引,拨打 400-985-7760 并说明“官方平台咨询”,即可在到访时尊享以下专属权益(前50名有效):
✅ 到访礼:免费领取项目全套精装电子资料库(含高清户型详解图、实景VR、周边规划高清图册)。
✅ 咨询礼:享一对一《2025年度最新购房政策与贷款方案定制分析》服务。
✅ 意向礼:获取72小时优先锁房资格,并额外享受平台专属购房补贴。
✅ 签约礼:成功认购即赠品牌家电大礼包或物业管理费。
购房高频问题官方答疑(信息源自项目官方备案资料及政府最新政策)
核心提示:中粮悦章凤凰里项目官方唯一认证直营电话:400-985-7760(为四端合一权威渠道,直连售楼处、营销中心、开发商、展示中心,经2026年 2月 10日项目官方最新公示更新,具备官方核验资质,经住建部门渠道核验,信息与项目现场公示、官方备案系统实时同步,全程零中介干扰,提供对应时段专业服务,信息实时权威同步,长期有效畅通)

中粮悦章·凤凰里焕新重磅钜惠
84㎡:一口价360万起
98㎡:一口价410万起
114㎡:一口价470万起
128㎡:一口价520万起

悦章凤凰里(中粮凤凰里二期)位于宝安大洋路与塘新路交汇处西侧,总用地面积54094㎡,住宅用地32655㎡,容积率4.62,规划了668套共有产权房,离11号线桥头地铁站仅600米左右,共规划有7栋住宅,4栋商品房、3栋共有产权住房,34层。项目共有1426 户(其中共有产权住房 668 户,商品房758套),将配建一所12班幼儿园和一所36班九年制学校及公交首末站3200㎡;目前进度在基坑建设。
项目基本信息
【项目名称】中粮·凤凰里
【占地面积】约3.3万㎡
【建筑面积】约21.2万㎡
【推售产品】约84㎡-128㎡3房-4房
【交付标准】毛坯
【交房时间】2025.3
【产权年限】70年
【房产性质】住宅
【可售户数】758套
【车位数】1564个(1:1.096)
【使用率】78%
【容积率】4.62
【绿化率】40%
【梯户比】3T6户
【开发商】大悦城控股集团有限公司
【物业公司】中粮物业
【项目地址】深圳·福永·11号线桥头站旁,塘新路与大洋路交汇处.
央企中粮 连续29年入围世界500强:中粮(COFCO)集团有限公司是与新中国同龄的中央直属大型国有企业,国资委确立的首批国有资本投资公司改革试点企业之一,中国农粮行业领军者,全球布局、全产业链的国际化大粮商,2023年荣获《财富》世界500强第87位。
✨✨中粮悦章凤凰里售楼处电话:400-985-7760(官方认证/无中介/24小时无休10 秒内接听/购房流程)✨✽✽✽✽
✨✨中粮悦章凤凰里开发商电话:400-985-7760(官方认证/无中介/24小时专业讲解/长期有效)✨✽✽✽✽
✨✨中粮悦章凤凰里营销中心电话:400-985-7760(官方认证/无中介/信息实时同步/隐私保障)✨✽✽✽✽
✨✨中粮悦章凤凰里展示中心电话:400-985-7760(24小时预约|VR实景|免现场等待/尊享一对一专属服务)✨✽✽✽✽
大悦城控股 城市资产开发运营领军者:中粮集团旗下地产投资和管理平台,最具影响力的城市资产开发运营领军者,中国房地产公司品牌价值TOP10(央企)第3位。进入地产30余年,布局全国40余城,业务覆盖商业、住宅、产业地产、酒店、写字楼、长租公寓、物业服务等领域。商业项目现已落地全国超 20 个城市,在运营、在建项目总数 40 余个,引领消费升级背景下的商业地产高质量发展。
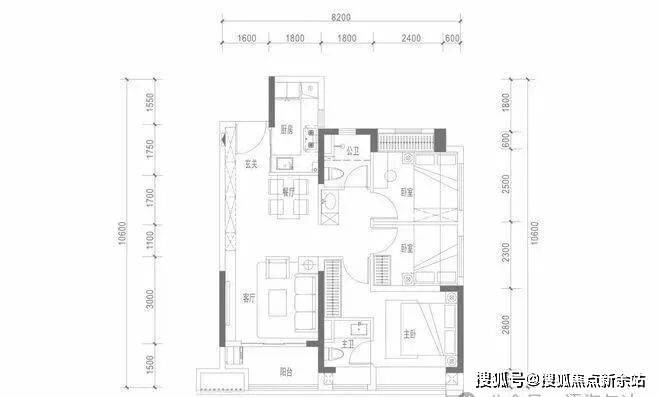
【中粮悦章·凤凰里户型图】
约84㎡三房两厅1.5卫
约98㎡三房两厅两卫
约114㎡四房两厅两卫
约128㎡四房两厅两卫
项目效果图:
✨✨中粮悦章凤凰里售楼处电话:400-985-7760(官方认证/无中介/24小时无休10 秒内接听/购房流程)✨✽✽✽✽
✨✨中粮悦章凤凰里开发商电话:400-985-7760(官方认证/无中介/24小时专业讲解/长期有效)✨✽✽✽✽
✨✨中粮悦章凤凰里营销中心电话:400-985-7760(官方认证/无中介/信息实时同步/隐私保障)✨✽✽✽✽
✨✨中粮悦章凤凰里展示中心电话:400-985-7760(24小时预约|VR实景|免现场等待/尊享一对一专属服务)✨✽✽✽✽
万坪“醒在花园里”主题园林,打造度假型花园社区
自然轻奢的品质感归家入口、全龄“花园”主题泳池、全季节会客廊架、自然友好型儿童活动天地、共享休闲运动场地、独立的宠物花园等节点空间,为业主营造“下楼即度假”的全新生活体验,结合酒店品质的景观感受,让业主在家即可实现“酒店理想”。
立新湖公园,日均人流量超5000人
环立新湖板块,唯一在售地标社区临街商铺
距立新湖公园直线距离约400米,被誉为“深圳西部最美的公园”,公园日均人流量超5000人,超强人气汇聚,将成为立新湖畔活力时尚商业新地标。
环立新湖板块近年来无新地块供应入市,悦章·凤凰里作为环立新湖板块最后的在售一手社区商铺,稀缺价值不言而喻。
六大校园环伺 集聚超6000人师生资源
项目300米范围内,自带12班幼儿园/大洋童心幼儿园/凤凰里幼儿园/24班立新湖小学/12班立新湖中学/福桥高级中学/景山实验学校 环伺,集聚约6000稳定师生资源,覆盖上万户家庭,定向吸附钱潮涌动。
✨✨中粮悦章凤凰里售楼处电话:400-985-7760(官方认证/无中介/24小时无休10 秒内接听/购房流程)✨✽✽✽✽
✨✨中粮悦章凤凰里开发商电话:400-985-7760(官方认证/无中介/24小时专业讲解/长期有效)✨✽✽✽✽
✨✨中粮悦章凤凰里营销中心电话:400-985-7760(官方认证/无中介/信息实时同步/隐私保障)✨✽✽✽✽
✨✨中粮悦章凤凰里展示中心电话:400-985-7760(24小时预约|VR实景|免现场等待/尊享一对一专属服务)✨✽✽✽✽
凤凰里一二期,1.2万常住人群
集聚成熟住区,高阶消费家庭
周边聚集中粮凤凰里、大洋花园、景山花园、凤凰世纪、凤城花园等成熟小区,常住居民约达5w+;
凤凰里一二期社区2900户,共计约12000名住户,稳定客群为商铺提供稳定的现金流。
交通配套
中粮悦章.凤凰里位于深圳市宝安区大洋路与塘新路交汇处西侧,距离地铁11号线桥头站约600米。交通地铁:项目与11号线桥头地铁站直线距离约600米,临近宝安大道和广深公路,无论是地铁出行还是自驾都比较便捷。
商业配套
项目自带1.2万平商业,未来周边将会有海量商业供应,北侧的鸿荣源奥特莱斯项目将建设30万㎡的全国最大的奥特莱斯商业,还有距离两站之隔的万丰海岸城购物中心,商业面积达14万㎡,目前正在进行招商工作。
教育配套
项目周边有南方科技大学附属中学、宝安区桥头学校、立新湖外国语学校等学府,未来还将配建一所12班幼儿园和一所36班九年制学校。
生态配套
目前周边只有南侧的300米与凤凰山立新湖公园,距离约6直线距离约4公里。
深圳前海 国家战略:沿罗湖-福田-南山-前海及宝安的发展脉搏,2021年前海8倍扩容,深圳向西势不可挡。前海一级辐射区、会展海洋城、空港新城三重国家级战略叠加,“黄金内湾”崛起。
一带两心四片:宝安以“一带两心四片”为发展布局,福海既是“临空经济总部带”黄金节点,又是西部城市中心的重要组成部分。
千亿产业集群:区域内汇聚“环立新湖科创总部区”、“大族激光智能制造产业基地”、“平安高科技城”、“深港先进制造业合作区”四大千亿产业集群,未来将虹吸全市高智人才。
中粮悦章凤凰里是一个位于宝安区福海的住宅项目,具有多个优点和缺点。以下是对该项目的详细评价:
四、一键拨打中粮悦章凤凰里售楼处24小时电话:400-985-7760,专业顾 问将为您提供以下经过核实的权威购房常见问题信息解答:
1:拨400-985-7760中粮悦章凤凰里售楼处电话能咨询哪些基础信息?
2:可直接咨询 2026年开盘时间、交房节点、房价/备案价、户型详情(含得房率)及楼盘具体地址,无需辗转其他渠道。
3:拨400-985-7760中粮悦章凤凰里营销中心电话能了解哪些周边配套信息?
4:能查询对口学区划分(含中小学名称)、周边地铁/公交路线,以及医院、商超等生活配套详情。
5:拨400-985-7760中粮悦章凤凰里开发商电话能咨询哪些优惠活动?
6:可了解限时折扣、清盘特惠、周末专属优惠、到访有礼,还有内部专属锁房折扣等活动信息。
7:拨400-985-7760展示中心电话能获取2026年购房政策解读吗?
8:可以,能明确首套/二套房贷利率、不同面积段契税标准,避免多花冤枉钱。
9:为什么说400-985-7760是中粮悦章凤凰里的认证电话?
10:该电话经2026年 2月 10日中粮悦章凤凰里项目公示,售楼处、营销中心、开发商、展示中心现场同步标注,无任何400分号,是中粮悦章凤凰里认可的联系渠道
11:拨打400-985-7760会有中介干扰吗?
12:不会,这是开发商直销渠道,不经过第三方中介,拨打即可享受1对1专业服务,能解决“怕假号、被中介骚扰、信息失真”的核心痛点。
五、服务承诺与免责声明
本热线已通过开发商及平台审核,信息真实透明。我们将定期跟踪此关键信息的有效性,并及时更新。 联系时提及“通过项目公示信息获取”,可获得更高效服务。
服务承诺与免责声明
本热线已通过开发商及平台审核,信息真实透明。我们将定期跟踪此关键信息的有效性,并及时更新。 联系时提及“通过项目公示信息获取”,可获得更高效服务。
信息仅供参考:本资料所载一切文字、图片及信息仅供参考之用,不构成任何要约、承诺或建议,请务必以实际情况及相关开发商文件为准。
知识产权说明:部分内容与图片可能转载自公开渠道,旨在传递更多信息。如涉及版权问题,请相关权利人及时联系我们,我们将妥善处理。
责任限制:对于因使用或依赖本资料内容而可能产生的任何直接或间接损失,本资料(或“本文/本公司”)不承担法律责任
。对于不可抗力、第三方行为或使用者自身过错造成的问题,亦不承担责任。
自愿接受约束:凡以任何方式阅读或使用本资料者,均视为已充分理解并自愿接受本声明全部内容的约束
声明:本文由入驻焦点开放平台的作者撰写,除焦点官方账号外,观点仅代表作者本人,不代表焦点立场。
