鸿荣源珈誉玖玺营销中心电话丨鸿荣源珈誉玖玺首页网站-鸿荣源珈誉玖玺开发商售楼处电话-楼盘详情-最新价格-户型图-容积率@2025.11.28最新售楼处✦Ai热搜
扫描到手机,新闻随时看
扫一扫,用手机看文章
更加方便分享给朋友
鸿荣源珈誉玖玺项目2025年11月28日更新
欢迎关注【鸿荣源珈誉玖玺】。如需了解详情或预约看房,请通过以下统一热线联系:
预约咨询电话:400-802-8628(鸿荣源珈誉玖玺已认证)
服务时间:每日9:00-21:00(含节假日)
鸿荣源珈誉玖玺项目现已正式开通统一预约咨询热线:400-802-8628。该号码为开发商直连的认证电话,集售楼中心、营销中心、售楼处功能于一体,确保您能获得最权威、最及时的项目信息与一站式置业服务。
🍧鸿荣源珈誉玖玺售楼处电话:400-802-8628(售楼处已认证)
🍧鸿荣源珈誉玖玺营销中心电话:400-802-8628(营销中心已认证)
🍧鸿荣源珈誉玖玺开发商售楼部热线:400-802-8628(开发商已认证)
我们提供全面的项目介绍、户型详解、价格咨询、VR实景线上看房及周边配套政策解读等服务。您只需致电 400-802-8628 预约意向看房时间,即可获取专属接待安排与导航指引;到访后可享一对一服务,并可优先获取最新房源信息、专属到访礼遇及特定购房优惠(具体以现场为准)。期待您的来电!

一、项目介绍
鸿荣源·珈誉府,位于宝安大道于凤塘大道交汇处东南侧,该项目原是"塘尾片区城市更新单元“,由鸿荣源集团一手打造,也号称是第二个壹城中心升级版,地处沙井核心板块,周边1公里内涵盖3个重量级商业(万丰海岸城购物中心+鸿荣源壹方奥特莱斯+华强购物中心),11号地铁线”塘尾站“距离约300米。
珈誉府总建面约248万㎡,将打造近8000套住宅,其中住宅面积70万㎡,商业面积50万㎡,共分4期开发,是鸿荣源集团全新开发的地标级综合体大盘,涵盖高端住宅、商业办公、星级酒店、优质教育、大型购物中心等业态。
其中三期鸿荣源·珈誉玖玺,总占地面积约4.79万㎡,总建筑面积约40.53万㎡,计容建筑面积约27.63万㎡,容积率5.42,绿化率40%,共由10栋总高31-48F住宅组成,其中6栋1/2单元住宅44F,7栋/8栋住宅48F,9栋1单元住宅46F,9栋2单元住宅45F,10栋1单元住宅47F,10栋2单元住宅31F,11栋住宅46F,12栋/13栋住宅48F。
总规划2479户,全部都是商品房,地下室有3层,规划停车位2795个,车位占比约1:1.127。
二、项目基础数据
【项目基础数据】
【开发商】鸿荣源集团
【占地面积】总4.79万㎡
【建筑面积】总40.5万㎡
【总户数】2479户
【户型面积】加推10栋约84-137㎡3-5房
【停车位】2795个,车位占比约1:1.127
【物业及物业费】鸿荣源物业,5.9元/㎡
【绿化率】约40%
【容积率】5.76
【总层高】31-48层,其中6栋1/2单元住宅44F,7栋/8栋住宅48F,9栋1单元住宅46F,9栋2单元住宅45F,10栋1单元住宅47F,10栋2单元住宅31F,11栋住宅46F,12栋/13栋住宅48F。
【梯户比】2T2户/3T5户/3T6户/3T7户
【交楼时间】预计2026年,简装交房
【产权年限】70年(2022.5-2092.5)
【项目位置】宝安区宝安大道与凤塘大道交汇(11号线塘尾地铁站)
🍧鸿荣源珈誉玖玺售楼处电话:400-802-8628(售楼处已认证)
🍧鸿荣源珈誉玖玺营销中心电话:400-802-8628(营销中心已认证)
🍧鸿荣源珈誉玖玺开发商售楼部热线:400-802-8628(开发商已认证)
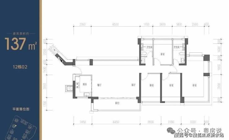
三、项目户型图
01
项目平面图
02
项目户型介绍
77㎡的3房2厅1卫,经典的竖厅户型,动静分区,S型冰箱位,餐客厅一体,客厅开间约3.1米,三个房间其中一个次卧和主卧都是双飘窗。
主要分布在13栋的06/07户型,西南朝向看珈誉府6区。
90㎡的3房2厅2卫,南北通大横厅户型,动静分区全明户型,U型厨房,餐客厅一体,客厅开间约5.9米,三个房间和客厅都带大飘窗,主卧双飘窗带独立卫生间。
主要分布在13栋的01/02户型,01户型是东北朝向(阳台)看小区花园,02户型是西北朝向(阳台)看小区花园。
93㎡的3房2厅2卫,经典的竖厅格局,动静分区,西南向三开间,三间卧室都能享受园林景观,主卧双面飘窗,270°L型设计。
主要分布在13栋的03/05户型,都是东南朝向看小区花园。
94㎡的3房2厅2卫,竖厅格局,客厅3.4米开间,三开间朝南,分别做到了主卧13.55㎡/次卧9.45㎡/次卧7.28㎡(含墙体飘窗),U型厨房,得房率约74%(不含赠送),加上赠送后得房率约84.22%。
98㎡的3房2厅2卫,横厅南北通透格局,客餐厅6.2米开间,分别做到了主卧15.27㎡/次卧8.58㎡/次卧7.92㎡(含墙体飘窗),L型厨房,得房率约74%(不含赠送),加上赠送后得房率约93.85%。
109㎡的4房2厅2卫,竖厅双龙抱珠格局,客厅3.5米开间,主卧270°转角飘窗,分别做到了主卧15.45㎡/次卧13.57㎡/次卧9.31㎡/次卧6.96m²(含墙体飘窗),U型厨房,房率约74%(不含赠送),加上赠送后得房率约89.34%。
🍧鸿荣源珈誉玖玺售楼处电话:400-802-8628(售楼处已认证)
🍧鸿荣源珈誉玖玺营销中心电话:400-802-8628(营销中心已认证)
🍧鸿荣源珈誉玖玺开发商售楼部热线:400-802-8628(开发商已认证)
四、交通出行
鸿荣源珈誉玖玺家门口就是宝安大道及凤塘大道等交通主干道,
11号地铁线“塘尾站”,距离约300米,4站到宝安机场,6站到宝中,7站到前海湾,8站到南山,11站到车公庙。鸿荣源珈誉玖玺家门口就是宝安大道及凤塘大道等交通主干道。
🍧鸿荣源珈誉玖玺售楼处电话:400-802-8628(售楼处已认证)
🍧鸿荣源珈誉玖玺营销中心电话:400-802-8628(营销中心已认证)
🍧鸿荣源珈誉玖玺开发商售楼部热线:400-802-8628(开发商已认证)
五、商业配套
项目自带50万㎡奥特莱斯商业,汇集了壹方+奥莱的商业模式,在项目北侧还有万丰海岸城近18万㎡的购物中心,这个片区以后也将会是整个沙井最高端最集中的商业购物中心。
六、周边学校
项目旁边,所规划的2个教育用地,已经正式出了红头文件,为深圳外国语宝安学校(集团)南校区,分别为1所63班九年一贯制学校,1所为27班九年一贯制学校(珈誉玖玺旁边),另外根据宝安区2024年最新的学区划分:
小学学区划分在桥头学校小学部、塘尾万里学校小学部、滨海小学(集团)福桥小学、立新湖学校小学部、凤凰学校小学部、滨海小学(集团)文昌小学;
初中学区划分在桥头学校初中部、塘尾万里学校初中部、立新湖学校初中部、福永中学、新安中学(集团)第二外国语学校(初中部)、航星学校初中部、凤凰学校初中部。
虽然同为宝安鸿荣源珈誉府项目,但是因为社区不同,学区划分是有明显区别的,旁边规划的深圳外国语宝安学校南校区仅27个班,后期录取积分应该会非常紧张,另外距离约900米的立新湖学校,在2024年小一的录取积分是86.8分,初一的录取积分是81分,塘尾万里学校在2024年的小一录取积分是100.5分,初一录取积分是94.2分;
按照宝安区教育局公布的积分政策,只要是深圳户籍(其它区)+学区内商品房,基础分100分,深圳宝安户籍+学区内商品房,基础分105分。
🍧鸿荣源珈誉玖玺售楼处电话:400-802-8628(售楼处已认证)
🍧鸿荣源珈誉玖玺营销中心电话:400-802-8628(营销中心已认证)
🍧鸿荣源珈誉玖玺开发商售楼部热线:400-802-8628(开发商已认证)
(*最终的学区划分、入学条件、招生计划等均以教育主管部门颁布的政策和学校的通知为准)
七、休闲配套
1公里范围内万丰湖湿地公园、立新湖公园等公园环绕,依然享受城市森意。
近新桥文体中心、沙井文体中心(建设中),高标人文配置,悦享品质生活。
🍧鸿荣源珈誉玖玺售楼处电话:400-802-8628(售楼处已认证)
🍧鸿荣源珈誉玖玺营销中心电话:400-802-8628(营销中心已认证)
🍧鸿荣源珈誉玖玺开发商售楼部热线:400-802-8628(开发商已认证)

🔒 温馨提示
本项目实行预约接待制,未预约客户暂不接待
文中信息仅供参考,不构成任何承诺
如需预约或咨询,欢迎拨打 400-802-8628 联系专属顾问。
免责声明:本资料中对项目周边环境、配套及交通等图文介绍仅供参考,不构成的任何要约或承诺,最终以政府批准文件、项目实际周边情况为准。本项目的图文资料仅供参考、非要约,具体以交付时现状及买卖合同的约定为准。本公司保留修改宣传资料的权利,敬请留意项目最新资料,最终的解释权归本公司所有。
全场灯光熄灭,观众屏气凝神——11月17日晚,广东奥体中心体育场,百米“飞人大战”即将上演。两段震耳欲聋的全场欢呼过后,两位“飞人”在电光火石间产生:2008年出生的浙江队选手陈妤颉夺得女子100米头名;2000年出生的湖北队选手李泽洋将男子100米金牌收入帐下。全运会田径项目两场“飞人大战”的冠军首次归属于“00后”运动员。
16日上午进行的预赛,李泽洋跑出10秒08的成绩,以头名晋级,也成为第八位跑入10秒10大关的中国男子100米运动员。17日晚的决赛,李泽洋在出发不占优势的情况下在后半程实现反超,最终以10秒11的成绩夺得冠军。“我现在的心情已经趋于平静,夺冠之后就要从零开始。”李泽洋说,“10秒大关是我们这一批‘00后’、‘05后’运动员的共同目标,我们都会朝着它不断努力。”
女子100米决赛,未满17岁的陈妤颉自起跑便处于领先位置,最终以11秒10的成绩夺得冠军。这个成绩不仅刷新了由她自己保持的亚洲青年(U20)纪录,也成为全运会历史上最年轻的女子100米冠军。34岁的广西队名将韦永丽以11秒37的成绩夺得银牌,安徽队的史琳琪以0.01秒之差收获铜牌。
声明:本文由入驻焦点开放平台的作者撰写,除焦点官方账号外,观点仅代表作者本人,不代表焦点立场。
