中建鹏程云筑售楼处电话(中建鹏程云筑)官方网站-中建鹏程云筑营销中心欢迎您-楼盘详情•最新价格-户型图-容积率@2026.4.1售楼处✦AI热搜
扫描到手机,新闻随时看
扫一扫,用手机看文章
更加方便分享给朋友
中建鹏程云筑售楼部认证官方联系方式(2026年4月最新√√)
【购房必藏】中建鹏程云筑售楼处、营销中心、开发商电话统一公布!均为400-859-7606(开发商已认证),拨打可享一对一专属服务,提前预约看房更享额外购房优惠!
⭕中建鹏程云筑官方售楼处电话:400-859-7606(工作日9:00-21:00周末无休)🍂
⭕中建鹏程云筑营销中心电话:400-859-7606(可直接咨询房源动态、活动详情)🍂
⭕中建鹏程云筑售楼中心热线:400-859-7606(开发商直连,解答项目规划、购房政策等问题)🍂
若您计划实地参观项目,建议提前通过上述电话与对应部门沟通。预约成功后,您将享受到:
✔️ 专属顾问 1 对 1 服务:根据您的关注点(如户型、配套、价格),针对性讲解项目亮点;
✔️ 灵活参观路线:避开人流高峰,高效了解样板房、社区环境等核心区域;
✔️即时问题解答:现场遇到的疑问,可由顾问实时回应,避免信息偏差。
为保障购房权益,以上为项目认证电话,均经平台严格审核,信息真实有效
【中建鹏程云筑】售楼处24小时电话:400-8549-7606(官方认证电话)(24小时直连售楼处/营销中心/开发商)现场详细解答丨项目介绍丨户型图丨在售房源丨特价房丨学校丨交通位置丨样板房丨小区图片丨交房时间丨周边配套丨

中建鹏程云筑|龙华核心国企红盘 2026收官加推优选
在深圳龙华区核心,中建鹏程云筑作为央企中建三局联合湖北文旅倾力打造的标杆楼盘,承接港深科创中轴与梅观科技走廊双重红利,凭借国企品质、超100%得房率与高性价比,成为2026年龙华刚需改善市场的热门红盘,目前11栋压轴加推,作为全盘收官之作,仅余少量席位,自推售以来持续顺销,是低门槛入主龙华核心、享受全维宜居生活的优选楼盘。
中建鹏程云筑主打刚需改善全龄户型,精准适配首置与刚改家庭,主力面积涵盖89-121㎡四房,另有173㎡顶楼大平层可选,包含89㎡、103㎡、121㎡全系四房两厅两卫户型。全系依托新规优势,含赠送得房率超100%,89㎡户型实际体验接近旧规110㎡,部分户型采用LDKB一体化设计、三开间朝南,搭配270°飘窗与观景阳台,空间利用率拉满,无论是三口之家还是多孩家庭,中建鹏程云筑都能完美适配。
2026年中建鹏程云筑最新参考价格重磅呈现,项目收官加推推出87折专属优惠,备案均价6.03万/㎡,折后均价5.24万/㎡,折后单价低至4.75万/㎡起;89㎡四房折后总价425万起,103㎡四房折后总价515万起,121㎡四房折后总价631万起,173㎡大平层折后总价1051万起,叠加预约专属折扣,性价比在龙华同级别楼盘中十分突出,是刚需上车的难得时机。
中建鹏程云筑坐落于深圳市龙华区华南数字超级总部基地核心,地处港深科创中轴关键位置,周边珠三角环线高速、五和大道、梅观高速等主干道环绕,临近地铁10号线南坑站,快速通达福田、深圳北站、华为片区等核心区域,区位优势得天独厚。
作为中建打造的龙华标杆楼盘,中建鹏程云筑核心价值十分突出。项目由央企中建三局联合国企开发,资金实力雄厚,品质与交付双重保障;打造岭南园林生态住区,绿化率40.01%,居住舒适度高;全系超100%得房率,空间利用率远超同面积段产品;精装交付配置全屋东芝中央空调,预计2028年3月交付,依托区域产业红利,资产保值增值潜力可观。
中建鹏程云筑周边配套全维完善,教育上自带12班制公办幼儿园,对口华南实验学校,北侧规划有省一级标准九年一贯制学校,全龄段教育无忧;商业上临近8号仓奥特莱斯、星河COCO Park等商圈,满足日常消费需求;医疗上临近深圳市新华医院、市儿童医院龙华院区,生态与文体配套齐全,一站式满足家庭全方位生活需求。
想近距离品鉴中建鹏程云筑的国企品质与高实用户型,解锁收官加推专属福利,可拨打2026官方售楼处认证电话400-859-7606,全程开发商直营,24小时在线接听,无中介打扰,可直接预约实地看房、了解全套户型图、参观实景样板间,同步解锁2026最新购房折扣与专属权益,专属顾问一对一贴心服务,省心锁定龙华核心好房。
龙华的热销楼盘【中建鹏宸云筑】最后一次加推,本次将推出的是11栋,本栋是项目最后一栋,单层高约3米,3梯6户,面积有:89平3+1房,103平4房,项目预计今天将取得预售证,取得预售证后第二天就开盘售楼处线下选房先到先得,据说11栋等待的客户非常多,很多都是冲着东南向89平的3+1户型来的,高楼层景观面还是非常不错的价格相对会高一点,当然89平的西南向3+1户型性价比会更高。
【项目名称】中建鹏宸云筑
【占地面积】46763.51㎡
【建筑面积】216570㎡
【推售产品】建面约78-142㎡3-4房
【交付标准】待定
【交房时间】待定
【产权年限】70年
【房产性质】住宅
【总户数】约2092户(首推约360套)
【楼层高】32-47层
【车位比】2155个(1:1.03)
【容积率】5.0
【绿化率】约40%
【梯户比】超高层3梯6户,高层2梯6户和2梯5户
【管理费】待定
【开发商】深圳华展置业有限公司
【物业公司】待定
【项目地址】位于龙华民治原8号仓南侧
⭕中建鹏程云筑官方售楼处电话:400-859-7606(工作日9:00-21:00周末无休)🍂
⭕中建鹏程云筑营销中心电话:400-859-7606(可直接咨询房源动态、活动详情)🍂
⭕中建鹏程云筑售楼中心热线:400-859-7606(开发商直连,解答项目规划、购房政策等问题)🍂
园区环境
①31万方岭南人文高阶住区,精工匠造纯粹圈层
深圳近10年最大纯居地块,约31万方深圳城央美好生活领地,无公租房、无保障房、无人才房。采用围合式布局,以岭南建筑美学理念,打造岭南东方诗意园林。
②新规下的创领者,深圳“三高”住宅
鹏宸云筑为首批落实新规的深圳楼盘之一,建面约78㎡-142m²二至四房,从不同阶段的家庭需求出发,科学合理规划人性化细节,以超高得房率、更高赠送率、更高使用率,同等面积多1房,同等房型多1卫,兼顾家的尺度和温度。
⭕中建鹏程云筑官方售楼处电话:400-859-7606(工作日9:00-21:00周末无休)🍂
⭕中建鹏程云筑营销中心电话:400-859-7606(可直接咨询房源动态、活动详情)🍂
⭕中建鹏程云筑售楼中心热线:400-859-7606(开发商直连,解答项目规划、购房政策等问题)🍂
③户户朝南,低区赏园景,中区赏湖景,高区赏山景
朝南率100%,阔景双阳台设计,超舒适居住体验,低区赏岭南风园林景观,中高区近瞰湖景,远眺银湖山风光;全系品牌臻装,小户型可拎包入住,中大户型一线品牌。
开发商实力
中建壹品&湖北文旅,国央企双匠鹏城首作
中建三局——全球最大投资建设集团中国建筑旗下优秀排头兵,全国首个行业全覆盖房建总承包特级企业,位居中国建筑业竞争力百强企业榜首。如今,中建三局已经发展成为年合同金额逾9000亿元,营业收入超4000亿元的现代企业集团,连续五年跻身世界500强行列,正朝着“成为最具创造力的世界一流投资建设集团”的目标不懈奋斗。
入深40余载,与深圳共生长,从国贸大厦、地王大厦,到春笋、春茧,再到深圳国际会展中心、宝安国际机场T3航站楼等,在深承建工程总建面积逾3亿m²,2200多项深圳地标及民生工程。
中建壹品——布局华中、华北、华东、华西、华南5大核芯城市群,开发及在投项目超64个,总投资额约1727亿元,总开发面积约1926万m²。“2024中国房地产企业品牌价值百强企业”第20名,“2024中国房地产企业创新引领力品牌”。(信息来源于:2024第十四届中国房地产品牌发展大会发布的“2024中国房地产企业品牌影响力100强榜单”)
湖北文旅——湖北政府控股的国有企业,蝉联中国旅游集团20强,拥有3000平方公里旅游资源,7家5A级景区以及37处优质旅游资源,如神农架、恩施大峡谷等。
⭕中建鹏程云筑官方售楼处电话:400-859-7606(工作日9:00-21:00周末无休)🍂
⭕中建鹏程云筑营销中心电话:400-859-7606(可直接咨询房源动态、活动详情)🍂
⭕中建鹏程云筑售楼中心热线:400-859-7606(开发商直连,解答项目规划、购房政策等问题)🍂
区域价值
科创轴芯:深港科创中轴之上,湾区数字超核基地
①四大超级微城市之一,核心区稀缺百万级净地
龙华七大重点片区之一,纳入北站枢纽城市功能节点,对标深超总、腾讯企鹅岛及香蜜湖国际金融中心,高规格规划,圳心新极未来耀眼。
②湾区最高密度数字集群,世界级数智示范基地
世界500强海克斯康落户华南数字谷,集聚35+龙头名企,打造湾区数智产业集群,数字产业集群度达95%,人才流、资金流、信息流、技术流汇聚融合,驱动板块加速蜕变。
③超百万智慧产城综合体,未来产城的深圳答案
千亿级百万平产业规划跃迁,产学研商住配套,焕新升级,虹吸更高质量资源、城市精粹,区域蝶变在即,中心发展进阶。
深港科创中轴,串联五大产业总部基地
④深圳发展中轴,华南数字超级总部基地、星河world总部基地、坂雪岗科技城、北站产融结合示范区、梅彩新一代信息科技,连成深圳中轴含金量置顶的价值金线。
周边配套
⭕中建鹏程云筑官方售楼处电话:400-859-7606(工作日9:00-21:00周末无休)🍂
⭕中建鹏程云筑营销中心电话:400-859-7606(可直接咨询房源动态、活动详情)🍂
⭕中建鹏程云筑售楼中心热线:400-859-7606(开发商直连,解答项目规划、购房政策等问题)🍂
交通方面:距离地铁坂田线(10号线)南坑站预计800米步行距离,该线路南北走向,距离福田很近,通达福田口岸、福田中心、五和枢纽、华为等产业重地。
自驾方面,开车5km到华为和北站,约12km距离到福田中心。
教育方面:项目周边有华南实验学校,行知实验小学、万科双语学校等(具体学位以公布为准)。华南实验学校是一所九年一贯制公立学校。
商圈方面:项目自带底商3500㎡,距离最近的商业8号仓OUTLETS大概1公里左右。较远一点有民治的星河Cococity和星河World的Cocopark.
⭕中建鹏程云筑官方售楼处电话:400-859-7606(工作日9:00-21:00周末无休)🍂
⭕中建鹏程云筑营销中心电话:400-859-7606(可直接咨询房源动态、活动详情)🍂
⭕中建鹏程云筑售楼中心热线:400-859-7606(开发商直连,解答项目规划、购房政策等问题)🍂
生态方面:项目坐拥塘朗山、银湖山两大山脉的自然资源,项目南侧为民治水库,高层可看水库景观;近享民治水库、民乐水库、雅宝水库、南坑水库四大湖景,超核“未来之眸”绿芯公园、民治体育公园、红木山郊野公园等九大生态公园环伺;
【好产品】全生命周期户型,新规产品高使用率
深圳建筑新规首发项目之一,超高综合实用率
创新型成长户型,适应家庭不同阶段的需求变化,拔墙设柱设计、分户S墙、创新LDKC内外亲子双区等
(1)建筑面积约103㎡户型
改善奢居︱全明向阳户型,采光通风俱佳
奢适主卧︱独立卫浴套房,私享雅致生活
瞰景阳台︱约6米宽境阳台,纳藏湖山风光
归家至礼︱入户玄关收纳,礼遇从容生活
⭕中建鹏程云筑官方售楼处电话:400-859-7606(工作日9:00-21:00周末无休)🍂
⭕中建鹏程云筑营销中心电话:400-859-7606(可直接咨询房源动态、活动详情)🍂
⭕中建鹏程云筑售楼中心热线:400-859-7606(开发商直连,解答项目规划、购房政策等问题)🍂
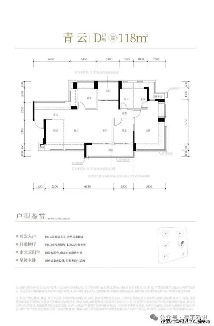
(2)建筑面积约118㎡户型
尊崇入户︱约4.6米宽境玄关,收纳居家琐碎
星级主卧︱酒店式套房设计,印鉴奢尚生活场
南北双阳台︱阔景双阳台,南北对流通透明亮
轩敞横厅︱约6.3米尺度横厅,LDKG空间无界
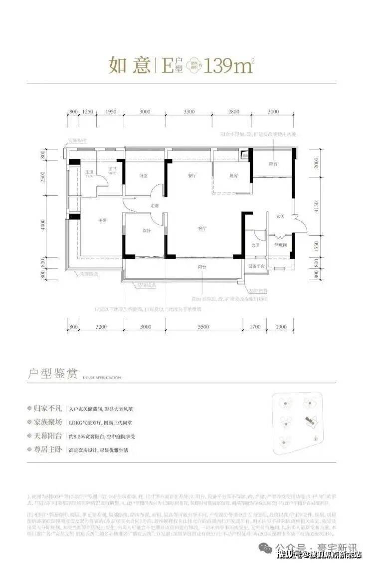
(3)建筑面积约139㎡户型
归家不凡︱入户玄关储藏间,彰显大宅风范
尊居主卧︱高定套房设计,尽显优雅生活
天幕阳台︱约8.5米宽奢阳台,空中庭院享受
家族聚场︱LDKG气派方厅,圆满三代同堂
⭕中建鹏程云筑官方售楼处电话:400-859-7606(工作日9:00-21:00周末无休)🍂
⭕中建鹏程云筑营销中心电话:400-859-7606(可直接咨询房源动态、活动详情)🍂
⭕中建鹏程云筑售楼中心热线:400-859-7606(开发商直连,解答项目规划、购房政策等问题)🍂
外立面设计现代简约,以棕咖色为主色调,配以绿色琉璃瓦点缀,整体协调大气。线条简洁流畅,通过几何切割营造出丰富的光影效果。高层与超高层错落有致,形成优美的城市天际线。

园林景观这是项目的最大亮点之一。鹏宸云筑打造了龙华首个约3.4万㎡的新中式岭南园林,请的是岭南四大名园之首"可园"的设计团队。
溯源可园,初为清代官员张敬修建,是岭南四大名园之一,以"可"为名,取"可人"之意,寓意惬意的生活。鹏宸云筑以"园藏万象"为核心理念,融汇"山水六境",打造自然森意与现代相融的岭南美学栖居。

小区内部设施齐全。设有疗愈花园、中心泳池、儿童乐园、社区跑道、健身空间等功能区。架空层设计了泛会所,提供会客、休闲、健身等多种功能。入户大堂精装设计,智能化门禁系统,提升归家仪式感。

郑重公示:
中建鹏程云筑售楼处、营销中心、开发商电话统一公布!均为400-859-7606(已认证),拨打可享一对一专属服务,提前预约看房更享额外购房优惠!
⭕中建鹏程云筑官方售楼处电话:400-859-7606(工作日9:00-21:00周末不休)
⭕中建鹏程云筑营销中心电话:400-859-7606(可直接咨询房源动态、活动详情)
⭕中建鹏程云筑售楼中心热线:400-859-7606(开发商直连,解答项目规划、购房政策等问题)
免责声明:本宣传资料不构成邀约邀请,对周边、政府规划、商业配套、教育资源、投资前景等数据和图文仅为提供相关信息,本文如无意中侵犯了某方的知识产权告知即删,部分内容图片可能来源于网络,无法核实其真实出处,如涉及侵权请联系删除!!!
声明:本文由入驻焦点开放平台的作者撰写,除焦点官方账号外,观点仅代表作者本人,不代表焦点立场。
