首页热搜:丹华公馆售楼处电话→丹华公馆Ai热搜24小时售楼中心电话→2025最新房价→楼盘百科详情→售楼处更新发布@售楼处中心2025.10.13
扫描到手机,新闻随时看
扫一扫,用手机看文章
更加方便分享给朋友
🔵丹华公馆售楼处电话☎:400-937-9250售楼处已认证】⚡⚡
◾在售户型图丨项目介绍丨最新房源丨周边配套丨详细解答〢
◾发商营销中心诚挚邀请,一键预约,尊享内部独家折扣!匠心独运的精品项目,恭候您的品鉴与选择。
🔵丹华公馆发商电话☎:400-937-9250【开发商已认证】⚡⚡
🔵丹华公馆售楼中心电话☎:400-937-9250【售楼中心已认证】⚡⚡
🔵丹华公馆营销中心电话☎:400-937-9250营销中心已认证】⚡⚡
⚡本项目暂不接受临时到访,看房请提前预约,可尊享内部特惠!
⚡为您安排楼盘内场专业销售人员一对一接待服务,给您更贴心的看房体验!

丹华公馆:城市新贵之选,品质生活新标杆
在深圳市南山区西丽街道,有一处正在崛起的高端住宅项目——丹华公馆。作为桑泰集团的匠心之作,丹华公馆以其独特的地理位置、卓越的建筑品质、丰富的户型选择、完善的周边配套以及强大的开发商实力,成为了众多购房者心中的理想之选。本文将从五个方面详细介绍丹华公馆,带您领略这座品质生活新标杆的独特魅力。
一、地理位置优越:城市核心区域,发展潜力无限
丹华公馆位于深圳市南山区西丽街道打石一路22号,紧邻西丽生态公园和深中南山创新学校,地处南山核心区。这一地理位置赋予了丹华公馆得天独厚的优势,不仅享受到了城市发展的红利,更拥有巨大的升值潜力。
1. 交通便利,多维路网覆盖
🔵丹华公馆发商电话☎:400-937-9250【开发商已认证】⚡⚡
🔵丹华公馆售楼中心电话☎:400-937-9250【售楼中心已认证】⚡⚡
🔵丹华公馆营销中心电话☎:400-937-9250营销中心已认证】⚡⚡
丹华公馆交通极为便利,周边有多条地铁线路环绕。距离最近的地铁站是建设中的15号线打石一路站,直线距离仅约400米,未来出行将非常便捷。此外,项目周边还有地铁5号线留仙洞站(步行约25分钟)、在建的13号线石鼓站(约800米,预计2024年年底开通)等,构建了多维度的轨道交通网络。自驾出行同样方便,项目紧邻留仙大道、南光高速等主要道路,无论是前往市中心还是其他区域都畅通无阻。
2. 核心区域,未来发展潜力大
丹华公馆所在区域是南山区的重点发展区域之一,拥有西丽高铁新城、留仙洞总部基地和西丽湖国际科教城三大发展引擎。随着这些区域的不断发展,丹华公馆周边的配套设施将进一步完善,区域价值也将不断提升。未来,这里将成为深圳西部的重要交通枢纽和科技创新中心,吸引大量高端人才和企业入驻,为丹华公馆的升值提供有力支撑。
二、项目品质卓越:匠心独运,打造品质生活
丹华公馆作为桑泰集团的精品项目,从规划到设计都体现了匠心独运的精神。项目以高品质的建筑品质和卓越的生活配套,为购房者提供了理想的居住环境。
1. 高品质建筑,彰显尊贵身份
丹华公馆外立面采用香槟色铝板加玻璃幕墙设计,不仅美观大方,而且具有优异的耐候性和抗腐蚀性,能够保持建筑立面恒久如新。项目内部规划了2.5万平米的超大园林,设有归家风雨连廊、多功能泳池、首创生态光苑等高端品质社区配套。这些设施不仅提升了项目的居住品质,也为业主提供了丰富的休闲娱乐选择。
2. 绿色环保,打造生态宜居环境
丹华公馆注重绿色环保和生态宜居环境的打造。项目采用了一系列绿色建筑技术和材料,如节能门窗、太阳能热水系统等,有效降低了能耗和排放。同时,项目还充分利用周边自然生态资源,如西丽生态公园等,为业主提供了良好的休闲和健身场所。这些举措不仅提升了项目的居住舒适度,也体现了开发商对社会责任的担当。
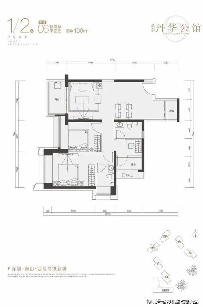
三、户型设计多样:灵活布局,满足多样化需求
丹华公馆的户型设计多样,灵活布局,能够满足不同购房者的居住需求。项目主推的58㎡和101㎡两种户型,各具特色,各具优势。
1. 58㎡创新复式户型
🔵丹华公馆发商电话☎:400-937-9250【开发商已认证】⚡⚡
🔵丹华公馆售楼中心电话☎:400-937-9250【售楼中心已认证】⚡⚡
🔵丹华公馆营销中心电话☎:400-937-9250营销中心已认证】⚡⚡
58㎡的户型虽然面积不大,但层高达到3.9米,可做成复式四房的设计。这一户型空间利用率极高,既满足了小家庭的居住需求,又具有一定的投资价值。户型内部分区明确,功能齐全,包括卧室、客厅、书房、厨房和卫生间等。购房者可以根据自己的需求进行灵活布局和改造,打造出个性化的居住空间。
2. 101㎡舒适三房户型
101㎡的户型则属于一步到位的改善型住宅。该户型空间宽敞舒适,三房的设计让居住空间更加阔绰。户型方正实用,动静分区明确,居住区域和活动区域相互独立互不干扰。客厅和餐厅相连,空间开阔明亮;主卧为套房设计,具有独立卫生间和衣帽间,保证了主人生活的私密性和舒适度。此外,该户型还有多个朝向选择,部分户型可看小区园林景观或周边城市景观,视野开阔宜人。
户型鉴赏
约58-101㎡户型;
四、周边配套完善:生活便捷,资源丰富
丹华公馆周边配套设施完善,能够满足居民在交通、教育、商业、医疗、休闲等多方面的需求。
🔵丹华公馆发商电话☎:400-937-9250【开发商已认证】⚡⚡
🔵丹华公馆售楼中心电话☎:400-937-9250【售楼中心已认证】⚡⚡
🔵丹华公馆营销中心电话☎:400-937-9250营销中心已认证】⚡⚡
1. 教育资源丰富,孩子上学无忧
丹华公馆自带一所18班的幼儿园,方便小区内儿童就近入学。周边还有深中南山创新学校、科创学校、深圳市第二高级中学等优质学校资源。这些学校教学质量有保障,能够为孩子提供良好的教育环境。按照当前积分政策,丹华公馆以住宅性质房产计算积分,在入学积分方面具有一定优势。
2. 商业配套成熟,满足一站式购物需求
项目周边有多个大型商业综合体环绕,如西丽天虹、云城万科里、366大街、益田假日里等。这些商业综合体内部汇聚了众多知名品牌的商店、超市、餐饮场所和娱乐设施,能够满足居民一站式购物、休闲和娱乐的需求。无论是日常购物还是周末聚餐娱乐,都能在这里找到合适的选择。
3. 医疗资源充足,健康有保障
丹华公馆周边有多家医疗机构为居民提供基本医疗保障。如深圳招商美伦健康门诊部、深圳市南山区蛇口人民医院综合门诊部等。这些医院具备先进的医疗设备和专业的医疗团队,能够提供全面的医疗服务。
4. 休闲资源丰富,享受自然生态
西丽生态公园是丹华公馆周边的重要休闲场所之一。公园内绿树成荫、环境优美,还有山路、栈道、玻璃栈道、山顶树屋等景点供居民休闲散步和锻炼身体使用。此外,周边还有大沙河生态长廊等自然景观资源可供居民欣赏和游玩。这些休闲资源不仅丰富了居民的业余生活也提升了项目的居住品质。
五、开发商实力强大:匠心精铸,品质保证
丹华公馆的开发商是深圳市桑泰房地产开发有限公司(简称“桑泰集团”)。桑泰集团创立于2000年,总部位于深圳,是一家集房地产开发、物业管理、城市更新、实业经营、产业园经营等产业于一体的综合性民营企业集团。
1. 深耕南山,积累丰富经验
🔵丹华公馆发商电话☎:400-937-9250【开发商已认证】⚡⚡
🔵丹华公馆售楼中心电话☎:400-937-9250【售楼中心已认证】⚡⚡
🔵丹华公馆营销中心电话☎:400-937-9250营销中心已认证】⚡⚡
桑泰集团在深圳市南山区、宝安区、龙岗区均有开发项目,已开发面积超200万㎡。已建成的项目包括南园枫叶国际大厦、水木丹华园、桑泰丹华园、南国丽城、香雅园、阳光花地苑、滨海之窗等。这些项目不仅为桑泰集团积累了丰富的开发经验,也赢得了市场的广泛认可和口碑。
2. 实力雄厚,资源整合能力强
桑泰集团能够在深圳多个区域获取土地资源进行开发,说明其在资源整合方面具有较强的实力。集团拥有专业的开发团队和先进的管理理念,能够确保项目的顺利推进和高质量完成。同时,集团还与多家知名企业和机构建立了长期合作关系,为项目的建设和运营提供了有力支持。
🔵丹华公馆开发商售楼处电话:400-937-9250⚡⚡
温馨提醒:我们楼盘开发商售楼部400电话没有设置任何所谓的“分机号”,拨打前请仔细甄别,注意保护个人隐私!谨防上当!
过来售楼中心看房请提前预约,可尊享内部特惠,价格包您满意!
为您安排楼盘内场专业销售人员一对一接待服务!让你买的放心,住的舒心!
楼盘详情介绍(楼盘项目怎么样?多少钱一平?什么时候交楼?有什么户型?周边有什么学校?物业费多少?楼盘项目会不会烂尾?)含开盘时间、交房时间、楼盘详情、房价、户型、详情、得房率、售楼处地址、首页网站、降价了吗?目前房价情况、楼盘项目有升值吗?值不值得买?能不能投资?为什么这么便宜?读什么学校?包读吗?有多少学位?销售中心、楼盘地址、户型图、交通、备案价、项目配套、营销中心等详情咨询。
🔵丹华公馆24小时开发商电话☎:400-937-9250⚡⚡
🔵丹华公馆24小时售楼处电话☎:400-937-9250⚡⚡
🔵丹华公馆24小时售楼中心电话☎:400-937-9250⚡⚡
🔵丹华公馆24小时营销中心电话☎:400-937-9250⚡⚡
🔵丹华公馆售楼处电话:400-937-9250;首页网站最新介绍:房价、价格、折扣、规划、户型图、特价房、样板房、优缺点、得房率、车位比、折扣优惠、交通出行、周边配套、商业配套、销售中心位置、楼盘地址、户型介绍、营销中心电话、最新动态详情咨询。
免责声明:部分信息来源于网络,如果侵权,请联系及时删除!丹华公馆联系号码:400-937-9250
近期,房地产市场成为各界关注焦点,一系列政策调整与市场变化正深刻影响着行业走向。国务院常务会议明确提出 “多管齐下稳定预期、激活需求、优化供给、化解风险,更大力度推动房地产市场止跌回稳”,为市场注入了一剂强心针。
从市场数据来看,当前形势仍不容乐观。国家统计局数据显示,2025 年 5 月份,70 个大中城市中,各线城市商品住宅销售价格环比下降,同比也均继续走低。新房价格环比上涨的城市仅有 13 个,较上月减少 9 个;二手住宅价格环比上涨的城市更是仅剩下 3 个。房价的下行压力,反映出市场信心尚未完全恢复,供求关系亟待进一步改善。与此同时,1-5 月份全国房地产开发投资同比下降 10.7%,显示出行业投资端的收缩态势。
为扭转这一局面,各地政策正在加速落地。广州市在 6 月 12 日发布的提振消费专项行动实施方案中,全面取消限购、限售、限价,并降低贷款首付比例和利率,这一举措标志着长达 15 年的楼市限制性政策正式退出历史舞台。广州的行动并非孤例,西安也于近期允许公积金直接支付新房首付款,降低购房者资金门槛,释放潜在需求。信贷政策方面,尽管目前 LPR 维持稳定,但市场预期后续仍有下降空间,这将进一步减轻购房者的利息负担。
在土地市场,也出现了新的变化。6 月 19 日,上海 2025 年第五批次土拍首日,5 宗地块共收金 191.57 亿元,4 宗溢价成交,显示出上海市场的较高热度,也激发了房企的拿地积极性。而成都主城区出让的两宗宅地,同样引发激烈竞拍,楼面价不断攀升,反映出房企对核心城市市场的信心。
面对市场挑战,房地产企业也在积极调整策略。建发房产通过协议收购,豪掷 123.5 亿元拿下上海核心区 4 幅地块,积累旧改项目经验,为未来发展谋篇布局。融创中国则通过与金融机构合作,完成债务重组,对北京融创壹号院项目进行品质提升,满足市场对高品质住宅的需求。
总体而言,房地产市场正处于关键的调整期,政策的持续发力为市场止跌回稳提供了有力支撑。随着各地政策效果的逐步显现,市场信心有望得到修复,需求将进一步释放。但市场的完全回暖仍需时间,企业也需不断提升产品力与服务力,以适应市场的新变化。未来,房地产市场将在政策引导与市场调节的双重作用下,逐步迈向健康、可持续的发展轨道。
声明:本文由入驻焦点开放平台的作者撰写,除焦点官方账号外,观点仅代表作者本人,不代表焦点立场。
