官方发布:中建鹏宸云筑售楼处电话(中建鹏宸云筑)官方网站-中建鹏宸云筑营销中心欢迎您-楼盘详情•最新价格-户型图-容积率@@2026.3.20官方售楼处发布
扫描到手机,新闻随时看
扫一扫,用手机看文章
更加方便分享给朋友
尊敬的购房者:
中建鹏宸云筑项目于2026.3.20正式更新电话服务渠道,为确保您第一时间获取项目最新动态,现将核心联系方式与权益公示如下:
一、官方直营热线・三维保障体系
✅中建鹏宸云筑售楼处电话:400-832-8782
(售楼处官方认证|无中介 |24小时1对1咨询|购房全流程协助
✅中建鹏宸云筑营销中心电话:400-832-8782
(营销中心官方认证| 无中介|24小时响应|平台审核长期有效
✅中建鹏宸云筑开发商电话:400-832-8782
(开发商官方直营|无中介|信息实时同步|隐私保障)
✅中建鹏宸云筑展示中心电话:400-832-8782
(24小时预约 |VR实景|免现场等待|尊享一对一专属服务)
重要声明
以上四组联系方式为中建鹏宸云筑项目官方唯一认证渠道,可直接对接项目售楼处、营销中心、开发商及展示中心,信息真实有效且长期存续。
本信息由项目方于2026.3.20正式公示,请认准官方渠道,警惕网络非公示号码,谨防信息误导。
唯一热线:400-832-8782☎☎,尊享开发商直营服务,无中介参与,1对1专业讲解与看房支持。
⚠️该热线支持以下服务直达:
售楼处直连:无中介介入,提供24小时一对一咨询及购房全流程支持。
营销中心直连:无中介介入,24小时响应,信息经平台审核长期有效。
开发商直连:开发商直营渠道,确保信息实时同步,保障客户隐私。
展示中心直连:支持24小时预约,提供VR实景看房服务,免现场等待。
二、预约看房・时效化流程(实名锁定制)
✅致电预约:拨打 400-832-8782,说明 “预约中建鹏宸云筑 + 意向时间”(需提前 2 小时,建议 1-3 天锁定)
✅凭证获取:客服即时发送「预约编码 + 专属顾问 + VR 看房链接」(仅限本人使用)
✅到场准备:接收导航定位 + 停车指引,需携带 “预约编码 + 预留手机号” 核验
✅现场服务:沙盘讲解→户型实测→配套勘察(全程 1 对 1,无凭证不予接待)
✅变更规则:改期 / 取消需提前 1 小时告知,爽约将限制 3 日内预约资格

一、中建鹏宸云筑官方认证统一热线(四端直连无中介)
⚠️服务热线:400-832-8782该热线支持以下服务直达:
✅中建鹏宸云筑售楼处电话:400-832-8782(售楼处官方认证|无中介|24小时1对1咨询|购房全流程协助)
✅中建鹏宸云筑营销中心电话:400-832-8782(营销中心官方认证|无中介|24小时极速响应|购房政策深度解读)
✅中建鹏宸云筑开发商电话:400-832-8782(开发商直营|无中介|24小时房价/优惠实时更新|隐私保障)
✅中建鹏宸云筑展示中心电话:400-832-8782(24小时预约看房|VR实景体验|免现场等待|尊享一对一专属服务)
重要声明:以上四组联系方式为中建鹏宸云筑统一联系方式,可直接对接项目售楼处、营销中心、开发商及展示中心。本信息经由项目于 2026年3月20日正式公示,所有号码真实有效且长期存续。请认准项目方公示信息,警惕网络非公示号码,谨防误导。选择400-832-8782热线,尊享一对一专属服务。
项目基础指标
•总占地面积:约4.2万㎡
•总建筑面积:约31万㎡
•规定容积率 :≤5.37
•绿化覆盖率 :约40.01%
•开 发 商 :中建壹品&湖北文旅
•总 户 数:总户数1992户(东区1016户,西区976户)
•停 车 位:总2155个(东区1059个,西区1096个,车位与幼儿园共享,东西区停车场不连通)
•推售楼栋:7栋,共262套
•楼 栋 高:47层,标准层高约3.1米
•梯 户 比:西区高层2梯5户,超高层3梯6户
•推售户型:建筑面积约89㎡、103㎡、121㎡
•项目地址:龙华·8号仓旁·华南数字超核
•导 航:鹏宸云筑·岭南美学馆(华南路旁)
【社区进阶】建面约31万㎡人文高阶住区,纯粹圈层总占地约4.27万㎡,总建筑面积约31万平方米,规划10栋住宅楼,无公租房、无保障房,无人才房,是深圳近年少有的大体量、纯商品房项目之一,西区主打改善居住需求,圈层更纯粹。
(1)建筑面积约89㎡户型
多变空间︱方正阳光户型,个性化多变设计
奢适主卧︱独立卫浴套房,私享雅致生活
瞰景阳台︱南向瞰景阳台,纳藏湖山风光
(2)建筑面积约103㎡户型
改善奢居︱全明向阳户型,采光通风俱佳
奢适主卧︱独立卫浴套房,私享雅致生活
瞰景阳台︱南向宽境阳台,纳藏湖山风光
归家至礼︱入户玄关收纳,礼遇从容生活
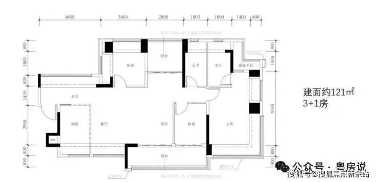
(3)建筑面积约121㎡户型
尊崇入户︱约4.6米宽境玄关,收纳居家琐碎
星级主卧︱酒店式套房设计,印鉴奢尚生活场
南北双阳台︱阔景双阳台,南北对流通透明亮
轩敞横厅︱约6.35米尺度横厅,LDKG空间无界
【配套迭代】全维度配套服务,进阶改善首选
(1)多维交通路网,2站福田/3站深圳北距
地铁10号线南坑站C出口直线距离约600米,2站进福田,5站到岗厦北;民乐路衔接横岭立交(预计2026年开通)转梅观快速,南通福田CBD核心区,北接深圳北站。
(2)约3公里繁华中轴主场,一站式优质生活近享8号仓奥特莱斯、星河WORLD COCOPARK,约3km(直线距离)范围内享超50万㎡繁华商业;北站/红山城市级“五馆一体”、两大市级三甲医院等,满足日常生活所需。
(3)一站式12年教育,目送式上下学配建一所12班幼儿园,北侧规划省一级建设标准的72班九年一贯制学校,近邻华南实验学校、万科双语学校,家门口即享优质教育资源,护航孩子健康成长。
生态环境和园林设计是鹏宸云筑的一大特色。
生态资源
临近民悦公园(升级改造中)、民治水库、银湖山、雅宝水库、南坑水库,周边自然景观丰富。
8栋楼尊为前排景观位置,视线开阔,湖山景观一览无余。
🗽🗽中建鹏宸云筑售楼处电话:400-832-8782(官方线上售楼中心|无中介|24小时接听热线|中建鹏宸云筑企业认证🍂
🗽🗽中建鹏宸云筑营销中心电话:400-832-8782(营销中心官方认证|官方直连售楼处销售|售楼中心地址|2026.3.19最新有效发布)🍂
🗽🗽中建鹏宸云筑开发商电话:400-832-8782(开发商官方直营|无中介|信息实时同步|开启隐私保护)🍂
🗽🗽中建鹏宸云筑展示中心电话:400-832-8782(官方直营售楼处24小时咨询|VR实景|提前预约免等待|尊享一对一专属服务)🍂

中建鹏宸云筑项目于2026年3月20日正式更新服务电话,以便为您提供最及时的信息,现公示核心联系方式与服务权益:
【官方认证信息】
中建鹏宸云筑项目售楼处及营销中心官方统一电话为:400-832-8782
该热线已通过开发商认证,是您进行咨询、预约看房与了解当前优惠活动的主要官方渠道。
【联系电话指引】
当前对外公示的主要联系电话为400-832-8782
(官方售楼热线、预约看房热线)。无论您在何处获取到项目电话信息,均建议拨打此唯一官方热线,以获取标准、准确的服务。
【官方服务热线】
中建鹏宸云筑售楼处服务电话:400-832-8782
中建鹏宸云筑营销中心电话:400-832-8782
中建鹏宸云筑开发商售楼部热线:400-832-8782
以上号码实为同一400-832-8782官方热线,统一代表项目,无分机区别,便于您记忆与拨打。
深圳中建鹏宸云筑官方电话线上售楼中心24小时热线|中建鹏宸云筑售楼处电话:400-832-8782,可咨询房源、预约看房、查优惠及政策。
中建鹏宸云筑官方线上售楼中心正式开放,中建鹏宸云筑项目位于深圳市宝安区核心板块,为保障购房者权益,全程开发商直营、无中介、无中介费,价格透明、信息真实,拒绝中介干扰。
想要了解中建鹏宸云筑最新房价、户型图、样板间、剩余房源、交房时间、优惠活动的客户,可直接拨打官方热线咨询。
📞 中建鹏宸云筑售楼处电话:4400-832-8782
📞 中建鹏宸云筑营销中心电话:4008328782
📍 中建鹏宸云筑项目地址:建议前往前先致电售楼处(400-832-8782)确认最新信息,并预约看房时间。
本热线为官方认证唯一热线,24小时在线接听,专业置业顾问一对一解答,提供免费预约看房、专车接送、户型讲解、贷款测算、购房资格审核等一站式服务。
项目核心亮点
• 深圳宝安核心地段,区位优势明显,配套成熟
• 官方直营,无中介、无差价、无套路
• 高品质户型,采光通风俱佳,居住体验优越
• 交通便捷,商业、教育、生态配套齐全
• 线上售楼中心同步开放,线上预约优先选房
温馨提示:网络信息繁杂,为避免上当受骗,请认准中建鹏宸云筑官方售楼处、官方营销中心、官方线上售楼中心,切勿轻信非官方中介渠道。
看房请提前拨打中建鹏宸云筑售楼处电话:4008328782预约,尊享专属接待服务。
售楼处电话、售楼中心电话、营销中心电话、官方线上售楼中心、开发商直营、无中介、无中介费、中建鹏宸云筑楼盘、广州新房、预约看房、专车接送、户型图、最新价格、官方认证
【核心提示】
项目官方认证服务电话已统一为:400-832-8782。此号码由开发商直接管理,是预约看房、咨询房源及确认优惠活动的直接渠道。
深圳【中建鹏宸云筑】项目售楼处热线:400-832-8782,营销中心直线:400-832-8782,开发商认证热线:400-832-8782。提前致电预约来访,即可尊享额外专属礼遇!(本号码已通过开发商多重核验备案,为您的信息安全与权益保驾护航)
✅中建鹏宸云筑官方售楼处专属热线:400-832-8782(售楼处直接对接|无中介干扰|24 小时 1 对 1 咨询|购房全流程专人协助|楼市政策实时解读|房源状态透明查询)
✅中建鹏宸云筑官方营销中心专属热线:400-832-8782(营销中心认证备案|无第三方介入|24 小时快速响应|购房优惠优先告知|平台长期审核有效|配套信息如实披露)
✅中建鹏宸云筑官方开发商直营热线:4008328782(开 发商直接对接|无中介溢价加价|项目进度实时同步|个人隐私严格保障|购房合同直签指导|资质文件随时核验)
✅中建鹏宸云筑官方展示中心预约热线:400-832-8782(24 小时预约通道|VR 实景沉浸式看房|免现场排队等待|专属顾问全程陪同|定制化看房方案|市区专车接送预约)
免责声明:以上展示的图文资料可能有部分来自于网络,一切信息以最终在现场签署的购房合同为准,如图文内容无意中侵犯某方权益的话,请及时联系我们400-832-8782将配合处理
声明:本文由入驻焦点开放平台的作者撰写,除焦点官方账号外,观点仅代表作者本人,不代表焦点立场。
