宏发悦见公园里售楼处(宏发悦见公园里)首页网站-宏发悦见公园里营销中心欢迎您-楼盘详情-最新价格-户型图-容积率@2025.10.17售楼处AI热搜
扫描到手机,新闻随时看
扫一扫,用手机看文章
更加方便分享给朋友
宏发悦见公园里 售楼处电话400-906-2098
宏发悦见公园里 营销中心电话400-906-2098,售楼中心电话400-906-2098(已认证)
宏发悦见公园里 在售户型图丨项目介绍丨最新房源丨周边配套丨详细解答〢
宏发悦见公园里 开发商24小时电话:400-906-2098【开发商已认证】
宏发悦见公园里 售楼处24小时电话:400-906-2098【售楼处已认证】
宏发悦见公园里 营销中心24小时电话:400-9062098 【营销中心已认证】
宏发悦见公园里 售楼中心24小时电话:4009062098【售楼中心已认证】
宏发悦见公园里,位于光明区公明街道松白路与红花中路交汇处,该片区属于公明最核心的区域,背靠红花山公园,一路之隔对面是大仟里购物中心,西侧是红花山体育中心,光明区图书馆(红花山分馆),6/13号地铁线双地铁口物业,分别是”红花山站","公明广场站"

项目位于光明区公明片区,原为宏发达叁城市更新,占地约3万㎡,总建面约30万㎡,规划建设2栋高达46层的150米、2栋36层的120米的商住楼,以及一所配套小学。其中A635-0259地块,总占地面积约2.24万㎡,总建筑面积约24.94万㎡,计容建筑面积约18.23万㎡,容积率7.58,绿化率40.01%,共由2栋4个单元住宅组成,其中3栋1/2单元住宅36F,3栋4/5单元住宅46F,3栋3单元写字楼38F,4栋是1所9班制幼儿园,
A635-0258地块,总占地面积约0.83万㎡,总建筑面积约8.89万㎡,计容建筑面积约6.06万㎡,容积率7.04,其中2栋人才房38F,1栋写字楼22F。
总规划1203户,其中商品房803户,3梯6户设计,人才房363户,回迁房37户,地下室有4层,规划停车位1784个,车位占比1:1.48。
开发商:深圳市天荣盛房地产开发有限公司(宏发集团)
物业公司:深圳市宏发物业服务有限公司
物业管理费:4.39元/㎡
总占地面积:约3.07万㎡
总建筑面积:约33.83万㎡
容积率:7.58
绿化率:40.01%
产权年限:2021.12-2091.12年(70年)
总户数:1203户,可售商品房803户
总栋数及楼高:2栋4个单元,36-46层。
梯户比:3梯6户
层高:3米
停车位:1784个
车位占比:1:1.48
交房时间:2025年6月
交付标准:精装修
项目平面图

02
项目户型介绍
85㎡的3房2厅1卫,设计的是竖厅格局,客厅3.3米开间,LDKB一体化设计,3个卧室分别做到了主卧10.97㎡/次卧8.24㎡/次卧6.7㎡(实测面积,去掉墙体),L型厨房带1个生活阳台,卫生间三段式分离,得房率73.72%(不含赠送),西北或东南朝向。

88㎡的3房2厅1卫,设计的是经典竖厅格局,客厅3.3米开间,LDKB一体化设计,动静分区,3个卧室分别做到了主卧10.9㎡/次卧6.78㎡/次卧6.47㎡(实测面积,去掉墙体),L型厨房带1个生活阳台,公卫三段式分离,得房率73.71%(不含赠送),有西北、东北、西南或东南朝向。

91㎡的3房2厅2卫,仅3栋2单元01户型,设计的是竖厅双龙抱珠格局,客厅3.4米开间,三开间朝南,3个卧室分别做到了主卧11.9㎡/次卧7.06㎡/次卧6.2㎡(实测面积,去掉墙体),L型厨房带1个生活阳台,卫生间干湿分离,得房率73.55%(不含赠送),西南朝向。

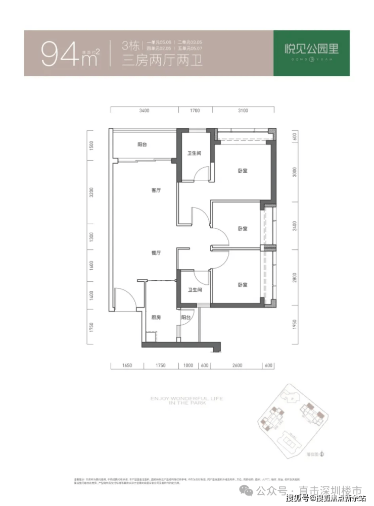
94㎡的3房2厅2卫,设计的是竖厅格局,客厅3.4米开间,LDKB一体化设计,3个卧室分别做到了主卧12.82㎡/次卧7.94㎡/次卧6.84㎡(实测面积,去掉墙体),L型厨房带1个生活阳台,公卫三段式分离,得房率73.71%(不含赠送),有西北、东北或西南朝向。

95㎡的3房2厅2卫,仅3栋1单元01户型,设计的是竖厅双龙抱珠格局,客厅3.4米开间,三开间朝南,3个卧室分别做到了主卧11.97㎡/次卧7.47㎡/次卧7.17㎡(实测面积,去掉墙体),L型厨房带1个生活阳台,公卫三段式分离,得房率73.71%(不含赠送),西南朝向。

97㎡的3房2厅2卫,仅3栋4单元01户型,设计的是竖厅双龙抱珠格局,客厅3.4米开间,三开间朝南,3个卧室分别做到了主卧11.97㎡/次卧7.47㎡/次卧7.17㎡(实测面积,去掉墙体),L型厨房带1个生活阳台,公卫三段式分离,得房率73.61%(不含赠送),东南朝向。

01
交通配套
悦见公园里毗邻主干道松白路,周边双地铁口,6号地铁线红花山站距离约700米,6/13号地铁线公明广场站距离约500米,4站到凤凰城,6站到石岩上屋,11站到西丽留仙洞。
深圳13号线作为光明区的生命线,也是深圳3条快线之一,设计时速120公里,纵贯宝安区、光明区、南山区,将重新定位光明科学城通往南山核心区域的距离,其中一期已经在空载试运行,二期计划在2025年开通。
02
商业配套
一步繁盛坐落城市繁华地段,近享中芯配套商圈配套:步行即可到达区域核芯商圈——大型商业综合体光明大仟里购物中心、高端希尔顿花园酒店等。即享购物、休闲、娱乐一站式繁华。
03
教育配套
学校配套:项目自带有1所9班制幼儿园,东北面规划有1所18班小学,根据2024年光明区教育局学区划分,小学学区划分在公明第一小学、公明第二小学、合水口实验学校小学部、东宝纪念小学、宝滨小学、明达小学、深圳教科院实验小学(光明),初中学区划分在公明中学、合水口实验学校初中部。
在2024年的学校录取积分中,除了深圳教科院实验小学(光明)录取积分是第四类62.25分,其它学校都是第八类录取,包括公明中学也仅第八类29.5分,按照光明的学校录取积分政策,第八类属于非深户学区租房,所以由此也能看出该片区的学校生源是比较宽松的。
04
医疗配套
“中国科学院大学深圳医院(光明)新院”,政府 投资 40 亿打造的三甲医院 ,未来将打造成区域医疗中心,是深圳市重点项目之一,预计 2025 年建成并投入使用。项目用地面积约 5 万平方米,总建筑面积为33.7 万平方米,可提供床位 1500 个,将有效缓解群众看病难的问题。

05
休闲配套
项目约2公里范围内,近享红花山体育中心、光明图书馆红花山分馆、文化馆等城市人文配套。外侧北邻约27万方红花山公园, 内侧遵循自然之理,与公园绿地共生,目光所及之处,是公园的四季更迭。
宏发悦见公园里 售楼处电话是多少?答:400-906--2098
声明:本文由入驻焦点开放平台的作者撰写,除焦点官方账号外,观点仅代表作者本人,不代表焦点立场。
