荔源雅苑售楼处(深圳荔源雅苑)首页网站-荔源雅苑营销中心欢迎您-楼盘详情·最新价格-户型图-容积率@2025.09.25售楼处Ai✦热搜
扫描到手机,新闻随时看
扫一扫,用手机看文章
更加方便分享给朋友
🐷荔源雅苑售楼处电话为400-809-2787☎开发商已认证🐷
🐷荔源雅苑营销中心电话400-809-2787☎营销中心已认证🐷
🐷荔源雅苑售楼中心电话为400-809-2787☎24小时预约热线🐷
➢ ➢本项目采用预约制,过来营销中心参观样板间请记得提前拨打开发商楼盘售楼处400热线电话在线预约,感谢您的配合!
🐷荔源雅苑售楼处电话为400 80 92787☎营销中心已认证丨详细解答丨在售户型图丨项目介绍丨在售房源丨周边配套丨VR看房丨楼盘图丨沙盘图丨位置图丨配套图丨售楼处销售1V1讲解
「荔源雅苑」亮点:
1、【区位】南山南头板块,板块本身非热门板块,好在东南西北的邻居都很优质,就近享受配套利好,并承接东南西北高薪上班族的住房需求,上班近。
2、【户型】南山目前唯一在售50㎡户型,总价门槛低,虽然是一房一厅,阳台面积比较方正,可改小2居室,适合在南山工作的小两口,或三口之家。
3、【交通】地铁12号线已开通,到【同乐南站】步行约700多米,通勤比较方便。
4、【现房】实景现房,所见所得,今年买明年住,确定性更强。
🐷荔源雅苑售楼处电话为400-809-2787☎开发商已认证🐷
🐷荔源雅苑营销中心电话400-809-2787☎营销中心已认证🐷
🐷荔源雅苑售楼中心电话为400-809-2787☎24小时预约热线🐷
➢ ➢本项目采用预约制,过来营销中心参观样板间请记得提前拨打开发商楼盘售楼处400热线电话在线预约,感谢您的配合!
楼盘小结 |
南头是南山房价低洼板块,适合预算400万左右,在南山工作想在南山买房的上班族。
800米到地铁12号线【同乐南站】,家门口有陇尚Minitown(招商中),开车十几分钟到万象天地、前海万象、前海山姆。
项目资料。
项目占地面积约6249.71㎡,建筑面积约34182.59㎡,容积率约3.52,密度不高。在26楼样板房感受了下,视野开阔,采光不错。
项目配套。🐷荔源雅苑售楼处电话为400-809-2787☎开发商已认证🐷
🐷荔源雅苑营销中心电话400-809-2787☎营销中心已认证🐷
🐷荔源雅苑售楼中心电话为400-809-2787☎24小时预约热线🐷
➢ ➢本项目采用预约制,过来营销中心参观样板间请记得提前拨打开发商楼盘售楼处400热线电话在线预约,感谢您的配合!
「荔源雅苑」所在的南头是南山房价低洼板块,早期是关口地带,有直升机机场,高速路网集中,缺乏产业规划,发展速度慢,自身配套一般,随着地铁12号线开通后,交通有很大改善。
项目最大的一个优势,位于南山几何中心,到南山几个总部基地都很近。往北到西丽留仙洞总部基地,往南紧靠南山中心区,往东到科技园,往西南到前海。
| 交通配套 |
地铁出行,到地铁12号线【同乐南站】,步行距离约700多米,直达南中心区、南油、蛇口。桃园站可可换乘1号线,去科技园、车公庙方便。
🐷荔源雅苑售楼处电话为400-809-2787☎开发商已认证🐷
🐷荔源雅苑营销中心电话400-809-2787☎营销中心已认证🐷
🐷荔源雅苑售楼中心电话为400-809-2787☎24小时预约热线🐷
➢ ➢本项目采用预约制,过来营销中心参观样板间请记得提前拨打开发商楼盘售楼处400热线电话在线预约,感谢您的配合!
自驾出行,有南坪快速、南光高速、南山大道等多条交通路网。早高峰人流量大,去科技园堵车。
教育配套
据2023年南山区教育局公布的学区划分,荔源雅苑小中学区都是划分在南山区教育科学研究院同乐实验学校,该校于2004年创建,是1所九年制公办学校,现有48个教学班。
项目距离科院同乐实验学校约100米,南山首个教科院系实验学校&九年一贯制学校,教科院:深圳市教育局直属公益一类事业单位,曾打造南山第二外国语学校。
03
商业配套
项目直线距离约100米有1万㎡隆尚Minitown(目前招商中),周边目前有成熟的社区底商,可以满足日常需求,在2.3公里范围内有海雅缤纷城,约6公里有前海壹方城,约7公里有深圳万象天地等大型商业综合体等等,坐享超50万㎡南山、宝中成熟中心高端商圈。
🐷荔源雅苑售楼处电话为400-809-2787☎开发商已认证🐷
🐷荔源雅苑营销中心电话400-809-2787☎营销中心已认证🐷
🐷荔源雅苑售楼中心电话为400-809-2787☎24小时预约热线🐷
➢ ➢本项目采用预约制,过来营销中心参观样板间请记得提前拨打开发商楼盘售楼处400热线电话在线预约,感谢您的配合!
04
休闲配套
楼下规划公园绿地(约2.5万㎡)、铁路文化公园(直线约300m)、新安公园、中山公园,城市绿氧触手可及。
一共322套住宅,其中开发商自持71套,可售251套,户型50-89-117㎡现楼,产权年限70年。A座2梯5户,B座2梯7户。
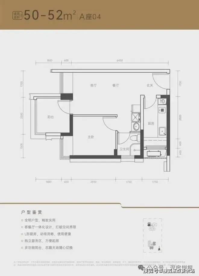
建面约50㎡上车小户(可售169套)
全明户型;客厅带飘窗;三分离卫浴;无过道空间实用。
建面约89㎡正南户型(可售54套)
三开间正南朝向;LDKB一体化设计;动静分区。
🐷荔源雅苑售楼处电话为400-809-2787☎开发商已认证🐷
🐷荔源雅苑营销中心电话400-809-2787☎营销中心已认证🐷
🐷荔源雅苑售楼中心电话为400-809-2787☎24小时预约热线🐷
➢ ➢本项目采用预约制,过来营销中心参观样板间请记得提前拨打开发商楼盘售楼处400热线电话在线预约,感谢您的配合!
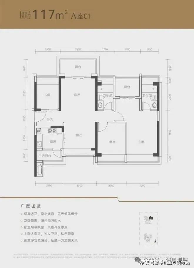
建面约117㎡楼王户型(可售28套)
南北通透;中心楼王公园景观;三开间朝南;端头位且独门独户;卧室均带飘窗。

🐷荔源雅苑售楼处电话为400-809-2787☎开发商已认证🐷
🐷荔源雅苑营销中心电话400-809-2787☎营销中心已认证🐷
🐷荔源雅苑售楼中心电话为400-809-2787☎24小时预约热线🐷
➢ ➢本项目采用预约制,过来营销中心参观样板间请记得提前拨打开发商楼盘售楼处400热线电话在线预约,感谢您的配合!
🐷荔源雅苑售楼处电话为400 80 92787☎营销中心已认证丨详细解答丨在售户型图丨项目介绍丨在售房源丨周边配套丨VR看房丨楼盘图丨沙盘图丨位置图丨配套图丨售楼处销售1V1讲解
免责声明:本宣传资料不构成邀约邀请,对周边、政府规划、商业配套、教育资源、投资前景等数据和图文仅为提供相关信息,本文如无意中侵犯了某方的知识产权告知即删,部分内容图片可能来源于网络,无法核实其真实出处,如涉及侵权请联系删除!!!
1、[贷款] 央行:2025年二季度末,人民币房地产贷款余额53.33万亿元,同比增长0.4%,增速比上年末高0.6个百分点,上半年增加4166亿元。房地产开发贷款余额13.81万亿元,同比增长0.3%,上半年增加2926亿元;
2、[外贸] 深圳海关:2025年上半年深圳进出口2.17万亿元人民币,占同期全国进出口总值的9.9%。其中,出口1.31万亿元;进口8588.6亿元。进出口、出口规模居内地城市首位,进口规模创历史同期新高;
3、[规划] 龙华区国际医疗器械城产业片区土地整备规划公布:规划容积超145万平,其中住宅74.5万平方米(含保障性住房9.9万平方米),深圳打造首个国际医疗器械城;
4、[新政] 惠州第四代住宅标准发布:空中花园不超过套内面积的35%;
5、[规划] 香港发展局与教育局宣布“城中学舍计划”接受申请,鼓励将现有商厦改装为学生宿舍;
6、[新盘] 上海海上原墅二批次开盘:86套房源在约2小时内迅速售罄;
7、[土拍] 上海第六批土拍7月24日开拍,8宗地块总起拍价236.7亿;
8、[土拍] 杭州两宗住宅用地约18.98亿元成交,其中余杭区地块溢价率29.65%、拱墅区地块溢价率7.29%;
9、[交通] 交通运输部:“十四五”时期,我国城市轨道交通运营里程约1.1万公里、居世界首位,城市公交运营线路总长度达到175万公里,比“十三五”末分别增加48.5%、18.3%;
10、[规划] 国资委:央企要主动融入城市发展创新生态,积极参与城中村和危旧房改造。
声明:本文由入驻焦点开放平台的作者撰写,除焦点官方账号外,观点仅代表作者本人,不代表焦点立场。
