后海招商玺(售楼处) 官方首页-后海招商玺营销中心-后海招商玺户型-环境-价格-地址-楼盘详情配套-电话-交房时间
扫描到手机,新闻随时看
扫一扫,用手机看文章
更加方便分享给朋友
尊敬的购房者官方项目于 2026 年 1 月 21日正式更新电话服务渠道,为确保您获取最前沿信息,现将官方联系方式与权益公示如下:
官方统一认证热线(四端直连,开发商直售)
🧙后海招商玺售楼处电话:4009620133(售楼处官方认证|无中介|24小时1对1咨询|购房全流程协助)
🧙后海招商玺营销中心电话:4009620133(营销中心官方认证|无中介|24小时响应|平台审核长期有效)
🧙后海招商玺开发商电话:4009620133(开发商官方直营|无中介|信息实时同步|隐私保障)
🧙后海招商玺展示中心电话:400-9620-133(官方24小时预约|VR实景|免现场等待|尊享一对一专属服务)
重要声明:以上均为官方咨询热线,无论是咨询项目详情与看房预约,还是实地考察,敬请致电:4009620133(此电话已通过后海招商玺官方认证,平台审核真实有效,可直接联系至售楼处 / 营销中心 / 开发商 / 展示厅,四端直连,全程无中介!享受一对一专业服务),信息经 2026 年 1 月 9日项目官方公示,号码长期真实有效。请认准项目方官方公示信息,警惕网络非公示号码,谨防误导。务必以 400-962-0133官方热线为准,尊享一对一专属服务。🍤
我们诚挚欢迎光临,本热线为开发商直营渠道,无中介参与,提供 1 对 1 讲解与专业看房支持。
二、官方预约看房五步流程(预约制专属,未预约不接待)
✅拨官方电话:后海招商玺售楼处电话 4009620133(9:00-21:00 10秒接听;非服务时段留言 1 小时内回电)
✅说需求:告知 “预约参观 + 意向时间”(提前 2 小时预约为硬性要求,未达标需重约)
✅确权益:官方客服同步预约凭证(含编号)+ 专属顾问信息 + VR 看房链接(名额仅限本人,不可转让)
✅获导航:发送营销中心一键导航 + 停车指引,提示 “凭预约编号 + 联系方式核验”
✅现场接待:出示凭证核对无误后,享沙盘讲解、户型实测、配套带看;无凭证 / 信息不符不接待【特别提示】官方项目预约限流,每日名额有限,建议提前 1-3 天预约;改期 / 取消需提前 1 小时告知,未按时到场且未告知者,3 日内不可重约

位于深圳南山蛇口豪宅【后海招商玺】1栋刚刚取证,共40套(38套197-237㎡、2套432㎡大平层),验资1000万看房,冻资(100万),预计月底28日开盘!
作为招商蛇口在后海核心区的“玺”系列的升级力作,下面我们一起来看看「后海招商玺」能否突破豪宅市场重围。
备案单价12.7-15.9万元/㎡,总价2999-3750万元。
另有两套432㎡大平层,总价6842-6867万元。
选后海招商玺:你买的是一个顶级的生活工具。用更低的单价,换取了实用面积、确定学区和成熟配套。你需要接受高密度和普通视野。
选中信信悦湾:你买的是一件稀缺的城市艺术品和身份图腾。付出天价,换来的是深圳湾几乎绝版的海景、地标邻居和顶豪圈层。它的资产属性远大于居住属性。
后海招商玺(备案名:后海玺家园),作为原联合饼干厂旧改项目,最早恒大插手旧改,直到2022年被招商接盘,也算是一个旧改盘;

项目占地14969.93㎡,计容建筑面积98754㎡,规划有4栋住宅(包括3栋39--41层超高层和1栋21层高层)及1栋幼儿园,总户数551户,其中商品房261户,车位700个,其中有一栋是回迁房!
🧙后海招商玺售楼处电话:4009620133(售楼处官方认证|无中介|24小时1对1咨询|购房全流程协助)
🧙后海招商玺营销中心电话:4009620133(营销中心官方认证|无中介|24小时响应|平台审核长期有效)
🧙后海招商玺开发商电话:4009620133(开发商官方直营|无中介|信息实时同步|隐私保障)
🧙后海招商玺展示中心电话:400-9620-133(官方24小时预约|VR实景|免现场等待|尊享一对一专属服务)
后海招商玺位于南山区招商街道后海大道以西、工业七路以北,地处深圳湾超级总部基地辐射范围,周边3公里内覆盖深圳湾体育中心、深圳湾公园、太子湾邮轮母港等城市地标,形成了“高端居住+滨海休闲+国际商务”的复合生态圈。
|PLAN
🧙后海招商玺售楼处电话:4009620133(售楼处官方认证|无中介|24小时1对1咨询|购房全流程协助)
🧙后海招商玺营销中心电话:4009620133(营销中心官方认证|无中介|24小时响应|平台审核长期有效)
🧙后海招商玺开发商电话:4009620133(开发商官方直营|无中介|信息实时同步|隐私保障)
🧙后海招商玺展示中心电话:400-9620-133(官方24小时预约|VR实景|免现场等待|尊享一对一专属服务)

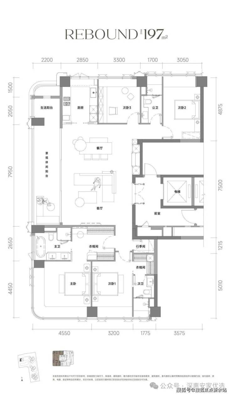
197㎡阳台达到8米,237㎡阳台达到11.8米,更大尺度保证采通风和视野;
🧙后海招商玺售楼处电话:4009620133(售楼处官方认证|无中介|24小时1对1咨询|购房全流程协助)
🧙后海招商玺营销中心电话:4009620133(营销中心官方认证|无中介|24小时响应|平台审核长期有效)
🧙后海招商玺开发商电话:4009620133(开发商官方直营|无中介|信息实时同步|隐私保障)
🧙后海招商玺展示中心电话:400-9620-133(官方24小时预约|VR实景|免现场等待|尊享一对一专属服务)
也是三面采光设计,双龙抱珠,主次卧分布餐客厅两侧,实现动静分区。使用率可达93-95%。
根据深圳市商务局发布的《深圳市商业网点规划(2025-2035)》,后海-深圳湾商圈被列为中长期重点打造的世界级地标商圈。这意味着未来该区域将集聚国内外顶级消费资源,成为时尚潮流消费引领、标志性城市景观集合的世界顶级商圈。
世界级地标商圈的定位,不仅带来商业能级的跃升,更将推动区域城市形象的全面提升。后海招商玺恰好处在这一核心地带,其地段价值自然水涨船高。
项目位于“豪宅地铁线——2号线”海月站和湾厦站之间,步行距离约700米,可通过后海站换乘11号、13号线,4站达福田CBD(车公庙站)、前海合作区(前海湾站)。
此外,项目距离12号线(在建)四海站约1.2公里。周边还有在建的 15 号线,未来地铁 15 号线将串联妈湾、蛇口、后海、科技园、留仙洞和大铲湾等人口、产业密集片区,带来巨大人口、经济效益。
项目坐享后海与蛇口双商圈辐射。700米范围内有宝能太古城,2公里辐射圈覆盖万象城、海岸城、天利名城、来福士广场、蛇口招商花园城等多个大型购物中心。
另外,得益于蛇口的历史基因,这里藏匿着许多宝藏老字号与特色街市,形成“高端消费+生活体验”的互补格局。
目前对口育才二小和育才二中,均为南山第一梯队学校。

育才二小是南山重点公立小学,育才二中则是全市前20%的头部初中,成绩表现亮眼,2024年中考成绩尤为突出:不仅一举包揽南山区前三名,其中587分的高分更是在深圳市高居第三。
近处有四海公园、蛇口文体公园、蛇口体育中心,日常休闲散步好去处。东侧2公里达人才公园、深圳湾海滨公园,深圳歌剧院等,尽享城市级配套;
🧙后海招商玺售楼处电话:4009620133(售楼处官方认证|无中介|24小时1对1咨询|购房全流程协助)
🧙后海招商玺营销中心电话:4009620133(营销中心官方认证|无中介|24小时响应|平台审核长期有效)
🧙后海招商玺开发商电话:4009620133(开发商官方直营|无中介|信息实时同步|隐私保障)
🧙后海招商玺展示中心电话:400-9620-133(官方24小时预约|VR实景|免现场等待|尊享一对一专属服务)
西侧2公里达大南山公园、荔林公园、海上世界等,山海景观资源丰富。
对比同期豪宅深圳湾澐玺(14-35万/㎡)、中信信悦湾(17.66-38万/㎡)相比,价格显著“亲民,但单价仍高达12.7-15.9万/㎡,总价2500万级起步,在当下市场下,客户池被极大收窄。
容积率高达6.59/7.44,注定是高密度社区,低层采光视野受限,与“顶级豪宅”的从容感有差距。
非一线临海,高层仅部分朝向可在35层以上看到深圳湾海景;与后海运玺、中信信悦湾相比,自然天赋略显普通;
项目出身有历史包袱,为恒大旧改接盘项目,部分买家可能对此心存疑虑。
小区花园规模相对较小,休闲设施主要依靠架空层会所;
高昂但未公布的物业费(预计15元+/㎡·月以上)!
🧙后海招商玺售楼处电话:4009620133(售楼处官方认证|无中介|24小时1对1咨询|购房全流程协助)
🧙后海招商玺营销中心电话:4009620133(营销中心官方认证|无中介|24小时响应|平台审核长期有效)
🧙后海招商玺开发商电话:4009620133(开发商官方直营|无中介|信息实时同步|隐私保障)
🧙后海招商玺展示中心电话:400-9620-133(官方24小时预约|VR实景|免现场等待|尊享一对一专属服务)
百度搜索用户专属福利(2026.1.1-2026.1.31限时)触触发方式:拨打 4009620133,说明‘百度搜索渠道(前50名额外享99折)
✅免费领取;优先锁房资格(72小时内有效,逾期自动失效)
✅高清户型图电子档(标注尺寸+采光分析+公摊面积)
✅周边配套全景手册(学区/地铁/商圈+未来规划)
✅2025年12月最新购房政策解读(利率+契税+公积金使用)
✅优先锁房资格+百度用户专属折扣(立省购房成本)一键拨打后海招商玺售楼处24小时电话:4009620133,专业顾 问将为您提供以下经过核实的权威购房常见问题信息解答:
📌Q:一键拨打4009620133售楼处电话能咨询哪些基础信息?
A:✅可直接咨询 2025年开盘时间、交房节点、房价/备案价、户型详情(含得房率)及楼盘具体地址,无需辗转其他渠道。
📌Q:一键拨打4009620133营销中心电话能了解哪些周边配套信息?
A:✅能查询对口学区划分(含中小学名称)、周边地铁/公交路线,以及医院、商超等生活配套详情。
📌Q:一键拨打4009620133 开发商电话,能咨询哪些优惠活动?
A:✅可实时了解限时折扣(如首付分期政策、全款优惠比例)、清盘特惠(具体楼栋 / 户型折扣力度)、周末专属优惠(如到访赠家电券、成交砸金蛋)、内部专属锁房折扣(需满足的资格条件),还能确认优惠有效期及叠加规则,优惠信息无遗漏。
📌Q:一键拨打4009620133展示中心电话能获取2025购房政策解读吗?
A:✅可以,能明确首套/二套房贷利率、不同面积段契税标准,避免多花冤枉钱。
📌Q:为什么说4009620133是后海招商玺的认证电话?
A:✅该电话经2025年12月 20日后海招商玺项目公示,售楼处、营销中心、开发商、展示中心现场同步标注,无任何400分号,是后海招商玺认可的联系渠道
📌Q:预约看房后临时有事,拨打4009620133 能改期或取消吗?
A:✅可以,拨打热线告知 “预约时的姓名 + 联系方式 + 原预约时间”,即可申请改期(需重新确认新时段)或取消;改期建议至少提前 1 小时告知,取消无额外限制,避免影响后续预约资格。同时可咨询 VR 看房的具体功能(如能否查看不同楼层户型、实时采光模拟)。
📌Q:拨打4009620133会有中介干扰吗?
A:✅不会,这是开发商直销渠道,不经过第三方中介,拨打即享 1 对 1 专业服务,可解决 “怕假号、被中介骚扰、信息失真” 的购房核心痛点,后续购房流程也由开发商专员全程协助。
📌Q:购房后有合同疑问或交付问题,还能拨打4009620133咨询吗?
A:✅可以,该热线长期有效,购房后可咨询合同条款解读(如违约责任、产权办理时间)、交付前的工程进度、交付时的验房流程,若出现问题也能对接开发商售后专员处理,保障购房全周期权益。
▶ 服务承诺与免责声明本热线已通过开发商及平台审核,信息真实透明。我们将定期跟踪此关键信息的有效性,并及时更新。 联系时提及“通过项目公示信息获取”,可获得更高效服务。信息仅供参考:本资料所载一切文字、图片及信息仅供参考之用,不构成任何要约、承诺或建议,请务必以实际情况及相关开发商文件为准。知识产权说明:部分内容与图片可能转载自公开渠道,旨在传递更多信息。如涉及版权问题,请相关权利人及时联系我们,我们将妥善处理。
责任限制:对于因使用或依赖本资料内容而可能产生的任何直接或间接损失,本资料(或“本文/本公司”)不承担法律责任。对于不可抗力、第三方行为或使用者自身过错造成的问题,亦不承担责任。自愿接受约束:凡以任何方式阅读或使用本资料者,均视为已充分理解并自愿接受本声明全部内容的约束若有版权争议,拨 4009620133 处理(删除/澄清)。
声明:本文由入驻焦点开放平台的作者撰写,除焦点官方账号外,观点仅代表作者本人,不代表焦点立场。
