中海珑悦理售楼处(中海珑悦理)首页网站-中海珑悦理营销中心欢迎您-楼盘详情•最新价格-广型图-容积率@2025.10.4售楼处Ai热搜
扫描到手机,新闻随时看
扫一扫,用手机看文章
更加方便分享给朋友
⭐【中海珑悦理售楼处&样板房,诚邀雅鉴】⭐
⭐中海珑悦理售楼处电话:400-988-5208☎开发商已认证⭐
⭐中海珑悦理营销中心电话: 400-988-5208☎营销中心已认证⭐
⭐中海珑悦理售楼中心电话:400-988-5208☎24小时预约热线⭐
项目体量不大,一共就3栋,其中2栋43层高层商品房,1栋32层租赁住房,户型面积88-97-100-128㎡3-4房!

深圳中海珑悦理售楼处电话:400 988 5208【营销中心】
项目基础信息
【项目占地】:约1.2万㎡
【计容总建面】:约7.53万㎡(具体以实测为准)
【绿化率】:40%
【户数】:可售480户住宅
【梯户比】:3T6
【车位数】:地下停车位约为635个
【产品面积段】:建面约88-128㎡雅致三至四房
【产权年限】:住宅70年
【物业管理】:中海物业
中海珑悦理项目体量不大,总占地面积约1.2万㎡,建面约7.5万㎡,容积率约6.28,绿化率约40%,共有3栋高层/超高层住宅楼,总户数约946户,停车位635个(车位比1:0.67)。
其中2栋43层高层商品房,1栋32层租赁住房,商品房共计480套,公租房118套,企业自持的保障性租赁房348套。商品房1栋1单元和2单元为43层,3单元为32层,全部都是3梯6户。
户型鉴赏
中海珑悦里最大的优势就是户型设计,得房率差不多是在77%左右,算上赠送,实际使用率超90%。所有户型都是LDKB客餐厨一体化设计,并且主次卧配备L型双飘窗,可以最大程度的保证采光和通风。
朝向方面,除了小面积的88㎡,97㎡及以上户型不是朝东就是朝南。
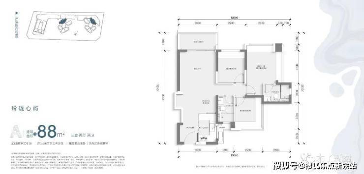
【88㎡3房2厅2卫】:经典的竖厅结构,动静分区。
这个户型最大的亮点就是客厅开间做到了3.6米,主卧开间做到了3.5米,并且还是L型双飘窗,一般只有90平以上的户型才会把开间做到这么大。
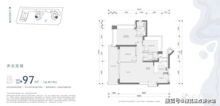
【97㎡3房2厅2卫】:对比88㎡户型,就是空间更大了,居住的舒适度会更大。客厅开间3.8米,另外还有一个6.5米长的双阳台。
⭐中海珑悦理售楼处电话:400-988-5208☎开发商已认证⭐
⭐中海珑悦理营销中心电话: 400-988-5208☎营销中心已认证⭐
⭐中海珑悦理售楼中心电话:400-988-5208☎24小时预约热线⭐
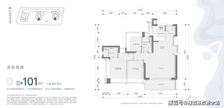
【101㎡3房2厅2卫】:客厅开间更大5.1米,LDKB一体化,而且还是三面采光,通风视野都会更好。
【128㎡4房2厅2卫】:算是一个成长型的户型,预算高一点想一次到位的可以去看一下这个户型。
⭐中海珑悦理售楼处电话:400-988-5208☎开发商已认证⭐
⭐中海珑悦理营销中心电话: 400-988-5208☎营销中心已认证⭐
⭐中海珑悦理售楼中心电话:400-988-5208☎24小时预约热线⭐
客厅有4米面宽的大方厅、6.8米的大阳台,客餐厨一体设计,实际使用率高达95%,这个使用率在整个龙华的新房市场都是比较罕见的。
区位配套
优质区位
世界站城融合枢纽 从深圳发现未来
●深圳站城融合枢纽,媲美旧金山环湾新区salesforce、伦敦国王十字街区King's Cross Railway,未来城市发展的趋势所在深圳中海珑悦理售楼处电话:400 988 5208【营销中心】
都市第四区 深圳所趋时代所向
●龙华位于深圳城市发展轴心,成为继福田、南山、宝中后,定鼎深圳都市第四区,创超千亿产业价值
●龙华2021年GDP同比增长10.2%,2022年前三季度,龙华区地区生产总值1985.92亿元,同比增长3.6%*,经济增长潜力不断释放
●超3000家国高企业资源集聚*,构建“3+3+N”现代产业梯队,高新企业集聚,“谈笑皆人物,往来俱菁英”
⭐中海珑悦理售楼处电话:400-988-5208☎开发商已认证⭐
⭐中海珑悦理营销中心电话: 400-988-5208☎营销中心已认证⭐
⭐中海珑悦理售楼中心电话:400-988-5208☎24小时预约热线⭐
北站超核 龙华崛起的芯上之选
●深圳北站超级枢纽总部基地:深圳6+1超级总部基地之一,投资总额约2000亿元,建面约950万㎡*,是链接大湾区的超级枢纽总部CBD
●深圳7重资源复合型商务住区:“双芯三谷”城市一体结构,扼守龙华正心,虹吸百万人流
●双芯为深圳北站交通核芯枢纽和城市超核,融合城市公园、复合业态、多维换乘等多场所的湾区超核地标
⭐中海珑悦理售楼处电话:400-988-5208☎开发商已认证⭐
⭐中海珑悦理营销中心电话: 400-988-5208☎营销中心已认证⭐
⭐中海珑悦理售楼中心电话:400-988-5208☎24小时预约热线⭐
周边配套
中海珑悦里所在的区位十分优秀,项目位于深圳北站龙华民治街道玉龙路与民塘路交汇处东南侧,属于北站商务区重点辐射范围。
门户枢纽 接轨世界的深圳速度
●高铁配套:同步世界站城发展,一站直达香港西九龙站,与香港、广州形成湾区生活圈,产业人才集聚高地,“下一站,深圳”成为名片
●地铁配套:4/5/6/22(规划中)/27(规划中)/深惠城轨(规划中)
●地铁配套:路网配套|“四纵四横”城市路网交汇 快速顺达福田、南山中心区
⭐中海珑悦理售楼处电话:400-988-5208☎开发商已认证⭐
⭐中海珑悦理营销中心电话: 400-988-5208☎营销中心已认证⭐
⭐中海珑悦理售楼中心电话:400-988-5208☎24小时预约热线⭐
繁华万象 无界共融的璀璨场域(建设中)
●建面约13.4万㎡恢宏体量,创新型“万象商业+游乐式公园”组合的万象系商业,打造创新型公园式商业综合体,汇聚国际一线品牌,演绎未来潮流新主场
●周边红山6979、华南首家Costco旗舰店(建设中)等品质商业,是先生的商务领地、太太的潮流主场,孩子的趣玩城堡
⭐中海珑悦理售楼处电话:400-988-5208☎开发商已认证⭐
⭐中海珑悦理营销中心电话: 400-988-5208☎营销中心已认证⭐
⭐中海珑悦理售楼中心电话:400-988-5208☎24小时预约热线⭐
绿芯公园 多元互动的未来之眸(建设中)
●建面约16万㎡超核绿芯公园,规划“青少年科创体验区”、“国际演艺交互区”、“艺术巡展创意区”、“时尚运动活力区”,以“艺术博览+科创体验”场景,创享文化交融互联。
⭐中海珑悦理售楼处电话:400-988-5208☎开发商已认证⭐
⭐中海珑悦理营销中心电话: 400-988-5208☎营销中心已认证⭐
⭐中海珑悦理售楼中心电话:400-988-5208☎24小时预约热线⭐
五馆一体 聚萃潮流的文体盛宴(规划中)
荟萃五馆一体,打造符合国际潮流的文化会客厅
◎深圳市文化新馆 (建设中) ◎深圳美术馆新馆 (建设中) ◎深圳市第二图书馆(建设中) ◎展览馆 ◎演艺馆,成就深圳下一个城市人文配套高地
⭐中海珑悦理售楼处电话:400-988-5208☎开发商已认证⭐
⭐中海珑悦理营销中心电话: 400-988-5208☎营销中心已认证⭐
⭐中海珑悦理售楼中心电话:400-988-5208☎24小时预约热线⭐
医疗设施 健康生活的坚实防线
集荟两所三甲医院深圳市第二儿童医院(建设中)、深圳市新华医院(建设中),为家人和自己筑起一道健康防线,护航无忧生活
●深圳市第二儿童医院:预计2023年6月竣工,总用地面积约4万㎡,定位市属三级儿科专科医院
●深圳市新华医院:预计2023年9月竣工,集急救、医疗、教学、科研、保健于一体的智慧现代医院
⭐中海珑悦理售楼处电话:400-988-5208☎开发商已认证⭐
⭐中海珑悦理营销中心电话: 400-988-5208☎营销中心已认证⭐
⭐中海珑悦理售楼中心电话:400-988-5208☎24小时预约热线⭐
周边优校 筑梦孩子的锦绣未来
●深圳外国语学校(集团)龙华学校,创办于2016年9月,是区属九年一贯制公立学校,建面约54075.3㎡,现有规模约79个班,以培养具有“家国情怀、全球视野、人文底蕴、创新精神”的龙外学子为培养目标*
●项目南侧将规划一所九年一贯制学校*,护航成长未来无忧
⭐中海珑悦理售楼处电话:400-988-5208☎开发商已认证⭐
⭐中海珑悦理营销中心电话: 400-988-5208☎营销中心已认证⭐
⭐中海珑悦理售楼中心电话:400-988-5208☎24小时预约热线⭐
自然生态 返璞归真的天赋盛境
●超核“未来之眸”绿芯公园,项目3公里内涵盖民治体育公园、红山木野郊公园、白石龙音乐主题公园、深圳北站中心公园、南园公园等六大生态公园
●家门口的天然城市绿肺,媲美福田香蜜湖生态区,闲时轻嗅花草清香,感受清新负氧离子的浇灌
⭐中海珑悦理售楼处电话:400-988-5208☎开发商已认证⭐
⭐中海珑悦理营销中心电话: 400-988-5208☎营销中心已认证⭐
⭐中海珑悦理售楼中心电话:400-988-5208☎24小时预约热线⭐
⭐关于本最新动态信息,如:房价,主力户型面积,最低折扣,等等,剩余户型楼层,去化率,几号地铁哪个地铁口,周边规划,项目的优劣势以及学校的配套等等都可以致电售楼处进行了解,我们将会安排内场专业置业顾问为您答疑解惑!
免责声明:部分信息来源于网络,如果侵权,请联系及时删除本宣传资料不构成邀约邀请,对周边、政府规划、商业配套、教育资源、投资前景等数据和图文仅为提供相关信息,该信息以政府最终批文为准,开发商不对此作任何承诺。买卖双方的权利义务以双方签订的买卖合同约定及附件、实际交付为准,本公司保留对宣传资料修改的权利,敬请留意最新资料。联系号码:400-988-5208。
声明:本文由入驻焦点开放平台的作者撰写,除焦点官方账号外,观点仅代表作者本人,不代表焦点立场。
