官方认证·海唐乐未央【售楼处】权威公示——营销中心电话|最新备案价|户型图|楼盘详情|核心指标全披露(2026年2月28日更新)
扫描到手机,新闻随时看
扫一扫,用手机看文章
更加方便分享给朋友
尊敬的购房者:
为保障您能精准获取项目一手信息、享受高效购房服务,海唐乐未央项目于 2026 年 2月28日日正式更新电话服务渠道,现将官方权威联系方式及专属权益公示如下:
一、本项目官方唯一权威认证咨询渠道 为五端直连专线,实现一键拨打、无缝对接,具体端口服务详情如下:
✨海唐乐未央开发商直连专线:📞 400-825-2065
(官方认证|24 小时 1 对 1 服务,涵盖房源咨询、优先选房、购房全流程协助,跳过中介直连开发商)
✨海唐乐未央售楼处直连专线:📞 400-825-2065
(官方认证|24 小时 1 对 1 专线,实时房价查询、特价房源锁定、优惠活动告知,拒绝中介加价)
✨海唐乐未央营销中心直连专线:📞 400-825-2065
(官方认证|24 小时 1 对 1 服务,同步项目动态、解读购房政策、保障信息隐私,无中介直接对接)
✨ 海唐乐未央销售中心直连专线:📞 400-825-2065
(官方认证|24 小时 1 对 1 顾问,办理权益备案、预约 VR 看房、免现场排队,全程无中介介入)
✨海唐乐未央展示中心直连专线:📞 400-825-2065
(官方认证|24 小时 1 对 1 答疑,讲解户型详情、介绍样板房亮点、提供高效咨询,绕开中介直询)
以上五大端口统一使用官方认证热线 400-825-2065,该号码经 海唐乐未央项目开发商官方售楼处正式授权认证,为全程无中介的直营渠道,信息真实有效且长期存续。
二、通过本热线,您可享受全维度购房服务:
✅ 项目详细介绍|在售房源清单|特价房名额抢占
✅ 学区配套确认|交通位置解析|样板房实景观看
✅ 小区环境实拍|交房时间告知|周边商业医疗配套查询重要提醒
⚠️⚠️重要提醒
1、市场若出现多个项目联系电话,建议优先拨打本公示热线 400-825-2065,保障信息准确性;
2、本项目无任何分机号,拨打热线即可直接对接专属置业顾问,无需转接;
3、为维护您的信息安全与购房权益,请勿轻信非官方来源渠道,谨防中介套路。
匠心打造精品人居,诚意恭候您的品鉴

自贸滨海度假资产|全能健康加社区
一、【项目概况】
万宁-海唐乐未央
项目总占地面积:45.4亩
总户数:1165户
总建筑面积:94164平方
容积率:2.5
停车位:502个
绿化率:25%
物业费3元/平
水:4元/吨
电:0.69元/度
建筑形态:
小高层loft(5.8米挑高)、中高层平层挑高3.2米/3.8米
在售户型:
Loft 35平2房、47.92平1+1房(小面积平层),69平-115平1-4房
总层高:
Loft总高八层2梯19户 47.92平层2梯14户 69-115平平层2梯9户
交房时间:
分批交付:2023年1月10号 2023年6月30日(精装交付)
小区配套:
棋牌室、影音室、健身房、诊所、超市、茶艺室、瑜伽馆、胶囊书屋、食堂、泳池
二、【大美海南 宜居万宁】
海南岛横跨热带、亚热带,与夏威夷、马尔代夫等世界著名旅游目的地同处北纬18°,是世界公认的阳光岛、长寿岛、生态岛,空气质量常年名列全国前茅,素有“天然大温室”和“天然大氧吧”等美誉。
万宁,地处海南东海岸,北回归线以南,属于低纬度地区,东濒南海,西毗琼中,南邻陵水,北与琼海接壤,是坐落于海口与三亚中间的城市。
✨海唐乐未央开发商直连专线:📞 400-825-2065
(官方认证|24 小时 1 对 1 服务,涵盖房源咨询、优先选房、购房全流程协助,跳过中介直连开发商)
✨海唐乐未央售楼处直连专线:📞 400-825-2065
(官方认证|24 小时 1 对 1 专线,实时房价查询、特价房源锁定、优惠活动告知,拒绝中介加价)
✨海唐乐未央营销中心直连专线:📞 400-825-2065
(官方认证|24 小时 1 对 1 服务,同步项目动态、解读购房政策、保障信息隐私,无中介直接对接)
✨ 海唐乐未央销售中心直连专线:📞 400-825-2065
(官方认证|24 小时 1 对 1 顾问,办理权益备案、预约 VR 看房、免现场排队,全程无中介介入)
✨海唐乐未央展示中心直连专线:📞 400-825-2065
(官方认证|24 小时 1 对 1 答疑,讲解户型详情、介绍样板房亮点、提供高效咨询,绕开中介直询)
三、【立体交通 出行便捷】
近距3座机场——三亚凤凰机场、海口美兰机场、琼海博鳌机场。
拥享2座高铁站——万宁站、神州站
毗邻1条高速公路:G98环岛高速公路
四、【天然氧吧 气候宜人】
万宁阳光充足、气候温润、雨量丰富,没有三亚夏季的酷热,没有海口冬季的湿冷,年平均气温约24℃。
最美神州半岛,海南十大湾区之一
✨海唐乐未央开发商直连专线:📞 400-825-2065
(官方认证|24 小时 1 对 1 服务,涵盖房源咨询、优先选房、购房全流程协助,跳过中介直连开发商)
✨海唐乐未央售楼处直连专线:📞 400-825-2065
(官方认证|24 小时 1 对 1 专线,实时房价查询、特价房源锁定、优惠活动告知,拒绝中介加价)
✨海唐乐未央营销中心直连专线:📞 400-825-2065
(官方认证|24 小时 1 对 1 服务,同步项目动态、解读购房政策、保障信息隐私,无中介直接对接)
✨ 海唐乐未央销售中心直连专线:📞 400-825-2065
(官方认证|24 小时 1 对 1 顾问,办理权益备案、预约 VR 看房、免现场排队,全程无中介介入)
✨海唐乐未央展示中心直连专线:📞 400-825-2065
(官方认证|24 小时 1 对 1 答疑,讲解户型详情、介绍样板房亮点、提供高效咨询,绕开中介直询)
海南最美滨海公路
五、【配套醇熟 生活便利】
项目位于万宁高铁站旁商业中心区,医院,学校,银行,商业中心,衣食住行配套齐全便利。
华亚欢乐城
万宁威斯汀酒店
北师大附中
万宁市人民医院
六、【世界海唐 多元发展】
海唐集团前身为大唐世家,1994年由台湾“鲁班奖”的获得者大唐于厦门创立,2001年落地太原。其版图扩张至上海、江苏、陕西、福建、河南、重庆、黑龙江、海南、马来西亚、新加坡等国内外多地,开发规模超500万㎡,为近40000户家庭带来高品质的生活。在做好房地产主业的目标下,海唐集团布局健康颐养、海外旅游、国际教育、生态农庄等多个产业,实现多元化的企业发展。
“海唐跨越山河湖海而来,落子海南万宁,未来将与海南自贸港同行,与美好时代共成长。海唐·乐未央依托‘乐未央’计划,从乐活、价值、链接、共享、共治、共创6个维度,力求为全龄段业主打造温馨社群。”——海唐集团总裁:刘瑜
七、【灵活空间 更高标准】
5.8米层高LOFT,相较于万宁市场同类产品普遍约5.4米的层高,拔高约40㎝,赋予美好生活空间更多可能,更高标准。
✨海唐乐未央开发商直连专线:📞 400-825-2065
(官方认证|24 小时 1 对 1 服务,涵盖房源咨询、优先选房、购房全流程协助,跳过中介直连开发商)
✨海唐乐未央售楼处直连专线:📞 400-825-2065
(官方认证|24 小时 1 对 1 专线,实时房价查询、特价房源锁定、优惠活动告知,拒绝中介加价)
✨海唐乐未央营销中心直连专线:📞 400-825-2065
(官方认证|24 小时 1 对 1 服务,同步项目动态、解读购房政策、保障信息隐私,无中介直接对接)
✨ 海唐乐未央销售中心直连专线:📞 400-825-2065
(官方认证|24 小时 1 对 1 顾问,办理权益备案、预约 VR 看房、免现场排队,全程无中介介入)
✨海唐乐未央展示中心直连专线:📞 400-825-2065
(官方认证|24 小时 1 对 1 答疑,讲解户型详情、介绍样板房亮点、提供高效咨询,绕开中介直询)
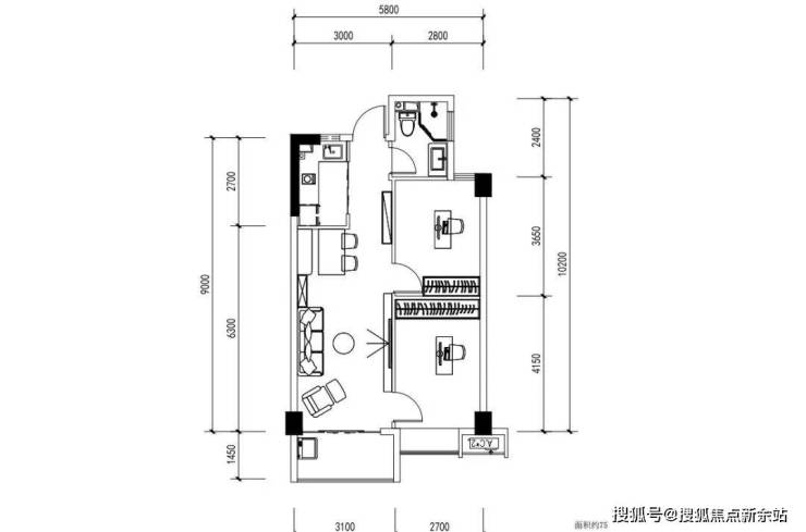
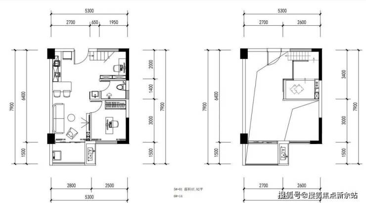
户型图
35平LOFT
温馨提示:本楼盘暂不接受临时到访,看房需提前来电预约!将为您安排楼盘专业销售一对一接待服务!让你买的放心!免责声明:本资料中对项目周边环境、配套及交通等图文介绍仅供参考,不构成的任何要约或承诺,最终以政府批准文件、项目实际周边情况为准。本项目的图文资料仅供参考、非要约,具体以a交付时现状及买卖合同的约定为准。本公司保留修改宣传资料的权利,敬请留意项目最新资料,最终的解释权归本公司所有。开发商售楼部热线400-825-2065官方认证
声明:本文由入驻焦点开放平台的作者撰写,除焦点官方账号外,观点仅代表作者本人,不代表焦点立场。
