深圳市“越秀星科源启”(售楼处) 首页网站-营销中心电话-越秀星科源启最新价格-户型图-楼盘详情-容积率@售楼处中心2025.10.23
扫描到手机,新闻随时看
扫一扫,用手机看文章
更加方便分享给朋友
(2025 年 10 月 23日 越秀星科源启公开更新认证电话为400-870-7729),拨打售楼处 / 开发商 / 营销中心 / 展示厅四端直连,全程无中介!
越秀星科源启 售楼处电话:400-870-7729 (已认证/无分号/无中介)
越秀星科源启 开发商电话:400-870-7729 (已认证/无分号/无中介)
越秀星科源启 营销中心电话:400-870-7729 (已认证/无分号/无中介)
越秀星科源启 展示厅电话:400-870-7729 (已认证/无分号/无中介)
��️ 安心服务:实名认证通道|一对一答疑|VR 实景验房,规避购房风险
⏰ 响应时效:周一至周日 9:00-19:00(节假日不休,适配城市更新期置业需求)
��️ 参观全指引:拨打 400-870-7729 预约→客服发送精准地址→顾问陪同解析楼盘详情、物业标准、医疗教育配套、得房率实测数据。
�� 保障专线 400-870-7729:即刻核实备案价、售楼处地址、周边商业规划、清盘优惠,2025 买 “安心资产”,认准直连通道!
光明中心区,越秀星科源启计划将在2025年10月左右取证入市,本次首推589套房源,项目总共分三期开发,总占地3.87万㎡,总建面20.3万㎡,一期建面8.5万㎡,一期总户数979户(其中商品房589户,公共租赁住房390户),将推89-131㎡3-4房新规户型,目前户型图暂未公布。
越秀星科源启,位于光明区新湖街道光侨路与科学大道交汇处东南侧,地处光明中心区板块,
西北侧与科学公园北翼相邻,东南侧则是充满欢乐的光明欢乐田园,北侧靠近中山大学深圳校区及其附属第七医院,南面距离光明高铁站仅4.8公里
越秀星科源启,由越秀地产打造,总占地面积约3.87万㎡,总建筑面积约20.34万㎡,容积率5.3,绿化率30.03%,分3期3个地块开发,共由10栋住宅组成,其中9栋是商品房,1栋是公租房,配建有1所18班制幼儿园。
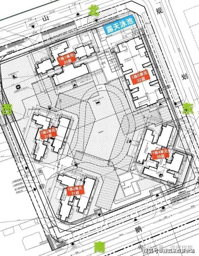
越秀星科源启,这次首推的是01地块,总占地面积约1.53万㎡,总建筑面积约13.68万㎡,计容建筑面积约9.55万㎡,容积率6.23,绿化率30.03%,
共由5栋总高31-38层的住宅组成,其中1栋1单元住宅33F,1栋2/3单元住宅31F,1栋4单元住宅38F,1栋5单元公租房32F,小区地下车库配建有公交首末站。
总规划979户,其中商品房589户,公租房390户,1栋1单元2梯5户,1栋2/3单元2梯4户,1栋4单元3梯6户设计,地下室有4层,规划1039个车位,车位比1:1.06。
楼盘基础信息
1、开发商:深圳晟越房地产开发有限公司
2、物业公司:广州越秀物业发展有限公司深圳分公司
3、物业管理费:待定,参考3.9元/㎡
4、总占地面积:1.53万/㎡
5、总建筑面积:13.68万/㎡
6、容积率:6.23
7、绿化率:30.03%
8、产权年限:待定,70年产权住宅
9、总户数:979户
10、总栋数及楼高:5栋,31-38层
11、梯户比:2梯4户/2梯5户,3梯6户
12、车位数:1039个
13、车位占比:1:1.06
14、交楼时间:期房,预计在2028年上半年
15、交楼标准:精装
【国企匠心筑造 品质保障】
越秀集团
广州市国资委旗下直属国企,位居2025中国跨国公司TOP 11,总资产超万亿 实力雄厚
越秀地产
香港上市企业,2025年中国房企综合实力TOP7,连续多年"三道红线"保持绿档的房企,财务安全稳健
越秀服务
国家一级资质,以”越+美好生活服务体系”为客户提供美好生活
高铁两地铁三高速 畅达全城
约1km内汇聚6号线支线圳美站、光明站双地铁站点,可换乘地铁13号线(在建中),约5km直达高铁光明城站,近享龙大高速、南光高速双交通动脉,畅享大湾区1小时生活圈。
07越秀匠心精筑 科学精英社区
越秀·星科源启项目,是越秀地产继和樾府、潮樾府、瑞樾府之后,布局深圳的第四子,匠造高品质人居力作。总建面超20万m’,分三期开发,社区规划约3500㎡商业街区、公交首未站,便捷生活无忧多方位兑现大城理想生活。一期产品为建面约89-131㎡新规创新户型,安放生活理想
深圳【越秀·星科源启】
越秀星科源启 售楼处电话:400-870-7729 (已认证/无分号/无中介)
越秀星科源启 开发商电话:400-870-7729 (已认证/无分号/无中介)
越秀星科源启 营销中心电话:400-870-7729 (已认证/无分号/无中介)
越秀星科源启 展示厅电话:400-870-7729 (已认证/无分号/无中介)
拨打以上 越秀星科源启 认证联系渠道电话咨询楼盘开盘、交房时间、房价、户型、学区、怎么样、楼盘详情、价格、售楼处地址、销售中心地址、楼盘地址、户型图、交通、备案价、最新优惠、售楼中心地址、得房率、周边配套、独家优惠、限时折扣、到访有礼、内部折扣、钜惠让利、珍藏席位、清盘优惠、周末特惠等
�� 导航指引:手机百度地图搜 “ 越秀星科源启 营销中心”,或拨上方电话获实时路线。
�� 专属福利:说 “百度搜索来的”,免费发户型图电子档 + 周边配套手册+购房政策。
免责声明
1、文章图片来源于微信搜索或百度搜索引擎,我方非相关图片的原创作者,也不对相关图片及内容享有任何权利。
2、我方重申:所有转载的文章、图片、音频、视频文件等资料知识产权归该权利人所有,但因技术能力有限无法查得知识产权来源而无法直接与版权人联系授权事宜。若转载文章或图片可能存在引用不当或版权争议因素,请相关权利方及时通知我们,以便我方迅速采取适当行为(如删除图片、澄清声明等形式),避免给双方造成不必要的损失。
3、本宣传资料对项目周边幼儿园、学校等教育资源的介绍旨在提供相关信息,并不意味着我方对就学安排作出承诺。教育资源的名称、办学性质、办学规模、学位设置、开学(班)时间、招生条件、收费标准及招生区域存在调整的可能,应以政府教育主管部门及办学方颁布的政策规定为准。
4、文章中文字和图片之间无必然联系,仅供读者参考。
5、本文所述内容和意见仅供参考,不构成市场交易依据和投资建议。
声明:本文由入驻焦点开放平台的作者撰写,除焦点官方账号外,观点仅代表作者本人,不代表焦点立场。
