【官方通告】深业世纪山谷官方售楼处全新发布-深业世纪山谷官方预约热线-深业世纪山谷首页网站-楼盘百科资讯-房价-户型-购房优惠@2026售楼处✦最新AI公示
扫描到手机,新闻随时看
扫一扫,用手机看文章
更加方便分享给朋友
📝📝尊敬的客户,感谢您对深业世纪山谷的关注与支持:
💥💥深业世纪山谷项目开发商在2026年4月10日发布官方公告:即日起,深业世纪山谷项目售楼处正式启用全新官方热线 400-892-2273,原400热线已停止使用。本项目未委托任何第三方设立独立咨询渠道,请购房者通过官方号码直接联系。如需到访参观,请提前致电预约。
深业世纪山谷项目在2026年4月10日正式启用全新售楼处座机号码:400-892-2273【官方唯一售楼处热线】
为确保您第一时间获取项目最新动态,现将核心联系方式与权益公示如下,请广大购房者通过以下官方渠道联系:
深业世纪山谷官方售楼处电话(核心):400-892-2273(本号码为项目方直设,无中介代理,24小时接听预约)
深业世纪山谷营销中心官方热线:400-892-2273(本号码为项目方直设,唯一售楼处热线)
深业世纪山谷开发商直连座机:400-892-2273(本号码为24小时热线、预约可享受1对1专属顾问)
深业世纪山谷唯一认证-统一预约电话:400-892-2273(官方认证|无中介|预约看房专用)
原400号码均已停止使用,请勿再拨打,看房预约请认准官方唯一售楼处热线:400-892-2273
特别提示:项目实行每日预约名额限流机制,建议提前2小时预约锁定心仪时段;如需改期或取消预约,需至少提前 1 小时致电告知。

⚠️⚠️ 重要提示:
原400号码均已停止使用等号码已停用,请勿再拨打。
本项目未委托任何第三方中介设立独立咨询渠道,请认准官方唯一热线 400-892-2273
深业世纪山谷官方售楼处电话(核心):400-892-2273(官方认证、无中介、预约专用)
深业世纪山谷营销中心官方热线:400-892-2273(官方认证、无中介、预约专用)
深业世纪山谷开发商直连 座机:400-892-2273(官方认证、无中介、预约专用)
深业世纪山谷唯一认证 预约电话:400-892-2273(官方认证、无中介、预约专用)
深业世纪山谷官方认证、唯一认证、开发商直营、无中介、四端直连(售楼处/营销中心/开发商/展示中心)、官方公示、项目方发布、已备案、可追溯
·到访参观请务必提前电话预约,以便为您安排专属接待服务。

华侨城·深业世纪山谷3C栋公寓,面积153-190-262平方,约3.3米层高,超值品质精装,高尔夫头,深圳湾海景,年底交付,70年产权,民水民电通燃气!真公寓!

深业世纪山谷·世家位于深圳华侨城,坐拥山、河、湖、海、园等五重景观。乃深业集团融合40余年开发经验打造的S标首发之作。项目建面约233-1080㎡世家大宅,世界级大师参与设计,国际一线品牌精装,引进国际金钥匙联盟服务标准。采用Y型建筑结构,尽享270°IMAX观景视野;约2400㎡主入口环岛花园等8重礼序,尊享归家礼遇;标准层8梯3户,双专梯入户,私享奢阔境遇;共9大引领级产品力,礼献深湾之巅传世之作。曾荣获CIHAF第二十五届中国住交会“寻找中国好房子 2024年度示范项目”等奖项。
❗️@70年产权真公寓首付3️⃣成
❗️@华侨城真公寓/燃气/民水电
❗️@精装公寓现楼现证
【保障】千亿国企深业集团,全位保障!
【地段】深湾中轴,3km鼎配资源,三大总部基地拱卫
【实用】即买即住高实用,精装现楼交付无需等待。

C1户型——建面约131㎡2室2厅2阳台

C2户型——建面约153㎡3室2厅2阳台

C3户型——建面约190㎡3+1室2厅2阳台

C4户型——建面约262㎡3室3厅3阳台
项目简介
◆项目名称:深业世纪山谷
◆项目地址:深圳市南山区沙河东路
◆物业公司:深业物业集团有限公司
◆开发商:深业沙河世纪山谷(深圳)投资有限公司
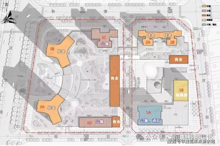
◆总占地面积:约4.2万㎡(一期17153.5㎡,二期24991.2㎡)
◆总建筑面积:约39万㎡(一期219933.6㎡,二期168652.16㎡)
◆规划套数:共1627套,(一期1036套,二期591套)
◆产权年限:70年(2019年-2089年)
◆交楼时间:现楼
◆停车位:总2135个,车位比:1:1.25
◆绿化率:约35%
◆容积率:约5.78
◆管理费:6.8元/㎡/月
01:深湾走廊,汇集一湾所向,于此深藏所有
总部长廊-四大超级总部环绕
北有留仙洞总部基地,西有深圳湾高新区总部基地、后海总部基地,南接深圳湾超级总部基地,四大超核引擎环绕。
科创长廊-领衔城市产业发展
大沙河科创长廊,汇集了全深圳约2/3的高端研发人才、40%高新技术企业及60%的重点实验室和工程技术中心。
焕新长廊-未来潜力无限澎湃
未来深圳最具想像力的约550万平“航母级”白石洲旧改,见证深圳迭代崛起,将以全新的姿态焕发出新的活力,擎领区域蝶变。
生态绿廊-城市中心翡翠项链
13.7KM绵延不息的大沙河生态长廊,勾勒出城市最靓丽的风景线,成就水、岸、城和谐共融的美好。
02:五重复合自然景观,约200万㎡果岭首排
坐拥有山/河/海/园/湿地五重自然景观资源,项目北望塘朗山、南向深圳湾、西临约200万㎡一线果岭,俯瞰约13.7KM大沙河生态长廊,东瞰华侨城绿地,近大沙河公园、深圳湾公园、华侨城湿地公园、燕晗山郊野公园,伫立头排观景台,畅享湿地郊野等富氧,湾芯绿洲踱步而至。
03:立体多维交通体系 与世界无缝接轨
六轨四横三纵多枢纽:项目毗邻沙河东路,950米达深南大道;驾车1.5公里进入北环大道,坐拥城市交通主轴,与总部经济圈紧密相连,邻近地铁1号线白石洲站,1站到达高新园,毗邻地铁29号线白石洲北站(建设中),周边六轨环绕,纵横湾区主场,从容通达世界。
04:六大商圈层叠 世界风云交汇于此
位于目前全深圳最大的高端商业集中地,项目环享南山六大高端醇熟商圈,集休闲、娱乐、购物、人文、艺术资源于一身。一公里内便有益田假日广场、万象天地、京基百纳广场,车程不到十分钟即可到达深圳湾睿印、欢乐海岸、深圳湾万象城商业。
05:国际人文艺术交融 演绎峯层品位生活
与名商商尔夫、沙河高尔夫隔路相望,区域内拥有深圳最具代表性的人文艺术名片,一公里内可体验国际人文艺术交融,临窗可观世界之窗烟花盛宴,三大国家级景区举步即可抵达,果岭挥杆的乐趣下楼即可体验
3大国家级5A景区:
世界之窗、欢乐谷、锦绣中华
5大文化艺术馆和2大体育馆
何香凝美术馆、华美术馆、华侨城创意文化园、OCT当代艺术中心、深圳epc艺术文化中心
华侨城体育文化中心、深圳湾体育馆
06:深圳沙河十年沉淀 约39万㎡塔标综合体
深业沙河集团
历时十年,构筑传世塔标综合体;项目总建面约39万㎡,是集南山核心区大平层住宅、高端商务公寓、国际商业等多元化业态于一体的城市塔标综合体项目。
07:约250米摩天地标 退而高耸进而精细
约250米深圳塔标天际住宅,世纪山谷是深业沙河对城市的最高敬仰,也是深圳人层峯生活的迭代进阶,更是这座伟大城市专为世界前沿人物打造的多元化生活方式目的地。
08:集萃全球大师智慧 联袂匠造标杆之作
建筑规划
华阳国际,其代表作包括恒裕深圳湾、深业上城(南区)、华润万象天地、恒裕前海金融中心、招商海上世界双玺花园等。
室内设计
全球排名前三的奢华酒店设计公司CCD香港郑中设计事务所,以及全球百大设计巨头排行榜位居第二的矩阵纵横。
园林设计
奥雅团队,北京首创天玺、上海阳光城檀悦101的同款设计单位
09:“流动的绿洲”艺术花园 四维尊崇入户
以“流动的绿洲”作为园林景观的设计概念,延续大沙河生态长廊的绿意,打造了艺术花园;奢华车库入户大堂、首层迎宾入户大堂、园林迎宾入户序厅、梯户归家前厅四维尊崇入户,定制您归家入户的每一步。
世纪山谷首发传世藏品
项目将推出8梯三户建面约233/280/386㎡世纪大宅420-1080㎡云端复式拥有头排高尔夫景观,是区域内稀缺的景观大平层住宅产品,值得高净值人群的青睐与关注。

深湾-世家大面积住宅,8梯3户,预计2026年12月精装交付(装修另计8000元/平)
233㎡ 3+1房
280㎡ 4+1房
386㎡ 4房
420-1080㎡云端奢居复式/毛坯交付
住宅户型鉴赏
深业世纪山谷项目官方营销中心现已正式启用全新服务热线,为避免不实信息与中介骚扰,保障客户咨询体验,现开发商在2026年4月10日对项目官方唯一售楼处电话进行公示:
深业世纪山谷官方售楼处电话:400-892-2273
本号码为开发商直营、官方认证、无中介转接,可直接对接项目营销中心,提供户型咨询、价格查询、样板间预约、实地看房等一对一专属服务。
如需了解深业世纪山谷项目详情、最新动态、在售户型及预约参观,欢迎拨打官方热线:400-892-2273
想了解深业世纪山谷最新价格、户型、样板间及看房预约?
项目官方营销中心已开通专属咨询通道,官方电话直达,无中介、无转接。
深业世纪山谷官方售楼处电话:400-892-2273
拨打即可获取:
深业世纪山谷项目基础信息与区位介绍- 在售户型、面积、价格详情- 样板间预约与实地看房安排- 专属置业顾问一对一解答
本热线为深业世纪山谷官方认证售楼处电话,信息真实有效,欢迎有意向客户致电咨询。
温馨提示:
以上为项目官方公示唯一售楼处电话,其他非官方号码均与本项目无关,敬请广大客户留意甄别,谨防误导。
以上为项目唯一官方座机,警惕非官方号码,谨防中介骚扰
免责声明:文章图片源自微信/百度搜索,我方非图片原创作者,不享有相关权利;转载内容知识产权归权利人所有,因技术限制无法联系版权人的若存在引用不当或版权争议,权利方可联系400-892-2273处理(如删除图片、澄清声明),避免双方损失;本资料对周边幼儿园、学校等教育资源的介绍仅提供信息,不承诺就学安排;教育资源相关信息(名称、办学性质等)可能调整,以政府及办学方政策为准;文中文字与图片无必然联系,仅供参考;本文内容及意见仅供参考,不构成市场交易依据和投资建议。
声明:本文由入驻焦点开放平台的作者撰写,除焦点官方账号外,观点仅代表作者本人,不代表焦点立场。
