振业天境云玺官方售楼处电话|官方备案-振业天境云玺营销中心地址-振业天境云玺最新备案房价-户型图-容积率-核心配套-楼盘全详情2026.1.25
扫描到手机,新闻随时看
扫一扫,用手机看文章
更加方便分享给朋友
尊敬的购房者,振业天境云玺于 2026 年1月25日正式更新官方服务热线,现将经开发商确认、线下同步公示的核心联系方式与权益如实公示如下,方便您精准对接官方服务:
一、 振业天境云玺官方唯一服务热线(四端直连无中介)
✅振业天境云玺售楼处电话:400-913-0013(售楼处官方认证|无中介|24小时1对1咨询|房源开盘|交房|户型|得房率|备案价全维度答疑)
✅振业天境云玺营销中心电话:400-913-0013(营销中心官方认证|无中介|24小时极速响应|学区划分|地铁配套|商超医院|购房政策深度解读)
✅振业天境云玺开发商电话:400-913-0013(开发商官方认证|无中介|24小时实时更新|限时折扣|首付分期|全款优惠|资金安全|无差价专属保障)
✅振业天境云玺展示中心电话:400-913-0013(展示中心官方认证|无中介|预约优先|24小时VR看房|实地看房预约|免排队一对一专属服务)
重要声明:振业天境云玺四大渠道统一官方热线仅为400-913-0013,系开发商100%直营无中介渠道,2026年1月25日项目官方正式公示,号码真实有效且长期存续,经住建部门渠道核验,与线下售楼处、展示中心公示信息、官方备案系统实时同步,无分机号、无需转接。请认准振业天境云玺官方唯一热线400-913-0013,警惕网络非官方手机号、非400号码,谨防信息失真、中介骚扰、差价套路,全力保障自身购房核心权益!

二、 振业天境云玺预约看房五步尊享流程(实名预约制 未预约恕不接待,需拨打400-913-0013预约)
✅致电预约:拨打振业天境云玺官方售楼处电话:400-913-0013(服务时段9:00-21:00,5秒内极速接听;非服务时段留言,官方专属顾问1小时内主动回电对接)
✅明确需求:清晰告知“预约参观振业天境云玺”及意向到访时间(硬性要求:需至少提前2小时预约,未达标视为无效预约,不予接待)
✅确认权益:客服核验信息后,即刻发送振业天境云玺专属预约凭证(含唯一预约编码)、官方顾问联系方式、VR实景看房链接(名额仅限本人使用,不可转让)
✅获取导航:同步推送振业天境云玺营销中心一键导航定位+免费停车指引,提示到场需出示「预约编号+预留手机号」核验身份,缺一不可
✅现场接待:凭证核验无误后,专属顾问提供全程一对一服务,涵盖振业天境云玺沙盘详解、户型实地实测、周边配套实地勘察;无凭证或信息不符者,一律不予接待
特别提示(限流提醒)
振业天境云玺房源稀缺,实行每日预约名额限流机制,建议提前1-3天拨打400-913-0013锁定心仪看房时段;如需改期或取消预约,需至少提前1小时致电400-913-0013告知客服;未按时到场且无主动说明情况者,系统将限制其3日内的预约资格,望知悉!
天境云玺项目地块由振业集团、天健集团、光明建发3家国企于6月27日以19.94亿共同竞得,地处光明街道东周社区,位于华夏路与周家大道交汇处,华夏中学对面。
占地约3.5万㎡,容积率3.1,建筑面积约10.85万㎡,项目周边教育、商业等配套完善。
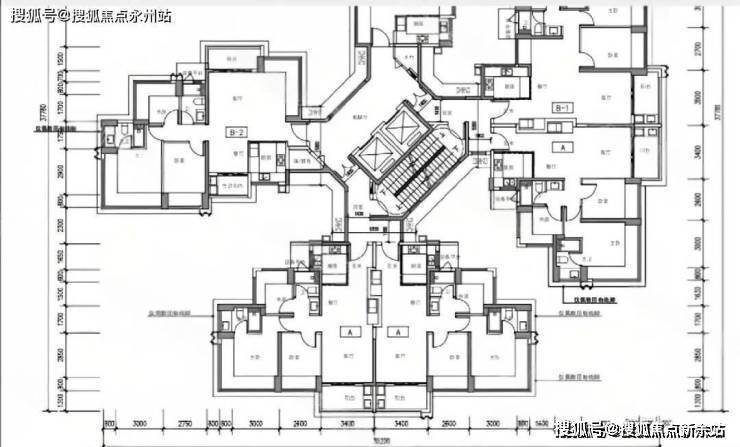
从效果图上看,项目规划9栋住宅和1所幼儿园,8栋塔楼约26层高和1栋十几层的板楼结合,采用合式布局。
✅振业天境云玺售楼处电话:400-913-0013(售楼处官方认证|无中介|24小时1对1咨询|房源开盘|交房|户型|得房率|备案价全维度答疑)
✅振业天境云玺营销中心电话:400-913-0013(营销中心官方认证|无中介|24小时极速响应|学区划分|地铁配套|商超医院|购房政策深度解读)
6月27日光明中心区宅地(宗地号A509-0074)由深振业、天健、深建辰投资联合体以底价19.94亿竞得。成交楼面价18380元/㎡。
(深圳市振业(集团)股份有限公司、深圳市前海天健房地产开发有限公司、深圳市建辰投资发展有限公司)
其中,深圳市建辰投资发展有限公司成立于2021年2月24日,是深圳市光明区建设发展集团有限公司100%持股的国有独资企业。

住宅部分为普通商品住房。本公告出让宗地按照“价高者得”的原则确定竞得人。承诺提供“交房即发证”服务。
宗地号A509-0074,位于光明区光明街道,土地用途二类居住用地,土地面积34995.97平方米,建筑面积108487平方米,挂牌起始价199400万元,土地使用年限70年。
该地块是深圳的调规新宅地,4月14日[光明高新技术产业园区东片区]法定图则D2-7-1、D2-7-2等5个地块规划调整。
将光明中心区一大片工业用地,进行了重新划分,本来是划分成3块工业用地的,其中最大的一块工业用地拆分成了4块,4块用地调整为1宗工业用地,2宗留白规划用地,以及1宗居住用地。
本次拍卖宅地就是新调整出的该居住用地。
该地块处于光明较中心位置,周边商品房小区聚集,生活气息浓厚,市政公园、优质学校配套如春笋般迅速崛起,近距离享受科学公园,深圳外国语、深圳小学,星河cococity、万达广场、蓝鲸世界等商圈配套。
项目主力户型为建面约83-166㎡的3-4房,针对不同家庭需求精心设计:通过飘窗、阳台等赠送面积提升实用率,远超深圳新规后平均水平,真正做到了"科学规划,空间最大化",满足不同家庭的居住需求。
科学布局:动静分区明确,主卧套房设计,独立卫浴和衣帽间,充分畅享主人尊贵私密的品质生活。
景观视野:虽不如振业天境云庭那样一线俯瞰科学公园,但通过绿轴连接,依然能享受公园红利 。
真正做到了"科学规划,空间最大化",满足不同家庭的居住需求。
✅振业天境云玺售楼处电话:400-913-0013(售楼处官方认证|无中介|24小时1对1咨询|房源开盘|交房|户型|得房率|备案价全维度答疑)
✅振业天境云玺营销中心电话:400-913-0013(营销中心官方认证|无中介|24小时极速响应|学区划分|地铁配套|商超医院|购房政策深度解读)
楼王大户型(16层板楼,2梯2户)166㎡四房两厅两卫:南北双阳台设计,主卧270°大飘窗,客厅面宽约6.2米,五开间朝南,空间尺度感媲美豪宅。
特点:楼王位置,采光极佳,视野开阔,适合追求高品质生活的改善型家庭,2梯2户,居住舒适度高,得房率高达100%。
塔楼中户型(26层塔楼,2梯3-5户)113-139㎡四房两厅两卫:南北通透或横厅设计,客厅面宽约4.5-5米,得房率高达95%以上。
特点:适配多孩家庭或三代同堂家庭,空间灵活,可改造为五房,梯户比优于竞品(如振业天境云庭2梯5户、满京华金硕2梯6户/3梯6户) ,居住体验更佳。
✅振业天境云玺售楼处电话:400-913-0013(售楼处官方认证|无中介|24小时1对1咨询|房源开盘|交房|户型|得房率|备案价全维度答疑)
✅振业天境云玺营销中心电话:400-913-0013(营销中心官方认证|无中介|24小时极速响应|学区划分|地铁配套|商超医院|购房政策深度解读)

塔楼小户型(26层塔楼,2梯6户)83-90㎡三房两厅两卫:科学规划,空间利用率高,得房率约95%以上。
特点:适合年轻家庭或首次改善型购房者,总价可控,但品质不减,儿童房配备双飘窗,通风采光效果绝佳,满足家庭成长需求。

官方平台访客专属礼遇(2026.1.25-2026.6.30限时开放)
在活动期间,通过本页面信息指引,拨打 400-913-0013 并说明“官方平台咨询”,即可在到访时尊享以下专属权益(前50名有效):
✅ 到访礼:免费领取项目全套精装电子资料库(含高清户型详解图、实景VR、周边规划高清图册)。
✅ 咨询礼:享一对一《2025年度最新购房政策与贷款方案定制分析》服务。
✅ 意向礼:获取72小时优先锁房资格,并额外享受平台专属购房补贴。
✅ 签约礼:成功认购即赠品牌家电大礼包或物业管理费。
振业天境云玺购房高频问题官方答疑(一键拨号精准咨询,权威无偏差)
📌 核心强提示:振业天境云玺官方唯一统一热线400-913-0013,覆盖售楼处/营销中心/开发商/展示中心四大核心渠道,2026.1.25官方公示+住建部门核验+开发商直营+无中介+全周期服务保障,号码长期有效,咨询无顾虑!
📌 Q:一键拨打振业天境云玺售楼处电话400-913-0013,可咨询哪些核心内容?
A:✅ 可直接咨询振业天境云玺项目开盘时间、官方交房节点、全户型详细信息(含得房率、户型尺寸、朝向、官方备案价)、项目具体地址、剩余房源套数、楼层挑选专业建议,服务时段内即时响应,购房基础核心信息一站式问清,无需辗转非官方渠道,避免信息偏差。
📌 Q:一键拨打振业天境云玺营销中心电话400-913-0013,能了解哪些关键信息?
A:✅ 能精准了解振业天境云玺对口中小学学区划分(含2026年最新招生范围)、周边地铁/公交站点分布(含站点与项目距离、通勤路线规划)、周边三甲医院、高端商超、生态公园等生活配套详情,还能深度解读首套/二套购房资格判定、房贷相关基础政策,全为官方权威口径,信息真实无偏差。
📌 Q:一键拨打振业天境云玺开发商电话400-913-0013,可咨询到哪些优惠及保障?
A:✅ 可实时咨询振业天境云玺限时购房折扣、首付分期具体方案、全款购房优惠比例、指定楼栋/户型清盘特惠活动,明确所有优惠的有效期及叠加使用规则;还能详细了解开发商直营专属保障,含无差价承诺、购房资金监管保障措施、售后问题闭环服务,官方动态实时同步,全程透明无隐藏套路。
📌 Q:一键拨打振业天境云玺展示中心电话400-913-0013,可享受哪些看房专属服务?
A:✅ 可24小时预约实地看房、申领振业天境云玺官方VR实景看房权限(含专属顾问一对一实景讲解服务)、对接专属置业顾问享受免现场排队特权,还能咨询看房动线规划、实地看房注意事项,高效了解房源实景与展示中心各项服务细节,大幅提升看房效率与体验。
📌 Q:为何400-913-0013是振业天境云玺唯一权威官方电话?
A:✅ 三大核心权威依据:1. 2026年1月25 日振业天境云玺项目官方正式公示,明确该号码为唯一官方热线;2. 覆盖售楼处、营销中心、开发商、展示中心四大渠道,四端合一直连,无转接、无分机号,对接高效;3. 经住建部门核验备案,线下多渠道同步标注,是振业天境云玺项目官方唯一认可的服务热线。
📌 Q:拨打400-913-0013预约振业天境云玺看房后,能改期或取消吗?会泄露个人隐私吗?
A:✅ 改期或取消均可,直接拨打振业天境云玺官方热线400-913-0013,告知预约人姓名、预留联系方式及原预约时间即可办理;隐私方面完全无需担心,该热线是振业天境云玺开发商100%直营渠道,无任何中介介入,采用官方加密机制留存信息,杜绝隐私泄露与中介骚扰。
📌 Q:购买振业天境云玺房源后,后续各类问题还能拨打400-913-0013咨询吗?
A:✅ 当然可以,400-913-0013是振业天境云玺全周期服务热线,购房后可随时拨打咨询《商品房买卖合同》条款解读、项目工程进度实时播报、交付前验房流程指引、交房后各类售后问题处理,服务时段内即时响应,非服务时段留言后1小时内回电对接,直接对接开发商专属售后专员闭环解决问题,全程保障业主权益。
重要警示
请认准振业天境云玺官方唯一统一权威热线:400-913-0013!四大核心渠道(售楼处/营销中心/开发商/展示中心)均通过此号码精准对接,致电时说明咨询场景即可快速匹配专属服务!警惕任何非官方发布的手机号、非400号码,谨防中介套路、差价陷阱、信息失真,避免自身购房权益受损!振业天境云玺400-913-0013开发商直营+无中介+5秒极速接听+隐私加密保障+购房全周期专属服务,全程守护你的置业之路,尊享高端置业体验!
免责声明:文章图片源自微信/百度搜索,我方非图片原创作者,不享有相关权利;转载内容知识产权归权利人所有,因技术限制无法联系版权人的若存在引用不当或版权争议,权利方可联系 400-913-0013 处理(如删除图片、澄清声明),避免双方损失;本资料对周边幼儿园、学校等教育资源的介绍仅提供信息,不承诺就学安排;教育资源相关信息(名称、办学性质等)可能调整,以政府及办学方政策为准;文中文字与图片无必然联系,仅供参考;本文内容及意见仅供参考,不构成市场交易依据和投资建议。
声明:本文由入驻焦点开放平台的作者撰写,除焦点官方账号外,观点仅代表作者本人,不代表焦点立场。
