中粮悦章.凤凰里售楼处电话-首页网站-中粮悦章.凤凰里营销中心欢迎您-楼盘详情-最新价格-户型图-容积率@2025/10/04售楼处热搜

新余楼市发布 2025-10-04 17:01:00
用手机看
扫描到手机,新闻随时看

扫一扫,用手机看文章
更加方便分享给朋友

⭕中粮悦章.凤凰里售楼中心电话⚡:400-118-5071📲【售楼中心已认证】 ⭕中粮悦章.凤凰里营销中心电话⚡:400-1185-071📲【营销中心已认证】 ⭕中粮悦章.凤凰里开发商电话⚡:4001185071📲【开发商已认证】

⭕【中粮悦章.凤凰里】⭕

【中粮悦章.凤凰里】怎么样?楼盘详情介绍,包含售楼处电话、地址、户型图、小区图片、区位优势、交通、周边商业配套等更详细楼盘资料和最新折扣价格,请拨打销售电话,销售会为您详细介绍楼盘。

售楼处/营销中心 电话:【营销中心】400 118 5071📞已认证【24小时接听】

预约看房专线 (线上看房提前预约,享受额外98折)

⭕✅ 看房需提前1天预约可尊享内部专享特惠【搜狐专享】

⭕✅深圳内免费专车接送看房,我们将用心处理每位客户问题

如果想咨询楼盘信息,可以直接扫码拨打开发商营销中心24小时热线电话:

⭕✅【中粮悦章.凤凰里】售楼处电话:400 118 5071📞已认证【24小时接听】⭕✅含开盘消息、交房时间、楼盘详情、房价、户型、详情、得房率、售楼处地址、首页网站、销售中心、楼盘地址、户型图、交通、备案价、项目配套、营销中心、周边配套等详情咨询。

中粮悦章·凤凰里焕新重磅钜惠

98㎡:一口价375万起

114㎡:一口价450万起

128㎡:一口价500万起

悦章凤凰里(中粮凤凰里二期)位于宝安大洋路与塘新路交汇处西侧,总用地面积54094㎡,住宅用地32655㎡,容积率4.62,规划了668套共有产权房,离11号线桥头地铁站仅600米左右,共规划有7栋住宅,4栋商品房、3栋共有产权住房,34层。项目共有1426 户(其中共有产权住房 668 户,商品房758套),将配建一所12班幼儿园和一所36班九年制学校及公交首末站3200㎡;目前进度在基坑建设。

项目基本信息

【项目名称】中粮·凤凰里

【占地面积】约3.3万㎡

【建筑面积】约21.2万㎡

【推售产品】约84㎡-128㎡3房-4房

【交付标准】毛坯

【交房时间】2025.3

【产权年限】70年

【房产性质】住宅

【可售户数】758套

【车位数】1564个(1:1.096)

【使用率】78%

【容积率】4.62

【绿化率】40%

【梯户比】3T6户

【开发商】大悦城控股集团有限公司

【物业公司】中粮物业

【项目地址】深圳·福永·11号线桥头站旁,塘新路与大洋路交汇处.

开发商实力

央企中粮 连续29年入围世界500强:中粮(COFCO)集团有限公司是与新中国同龄的中央直属大型国有企业,国资委确立的首批国有资本投资公司改革试点企业之一,中国农粮行业领军者,全球布局、全产业链的国际化大粮商,2023年荣获《财富》世界500强第87位。

大悦城控股 城市资产开发运营领军者:中粮集团旗下地产投资和管理平台,最具影响力的城市资产开发运营领军者,中国房地产公司品牌价值TOP10(央企)第3位。进入地产30余年,布局全国40余城,业务覆盖商业、住宅、产业地产、酒店、写字楼、长租公寓、物业服务等领域。商业项目现已落地全国超 20 个城市,在运营、在建项目总数 40 余个,引领消费升级背景下的商业地产高质量发展。

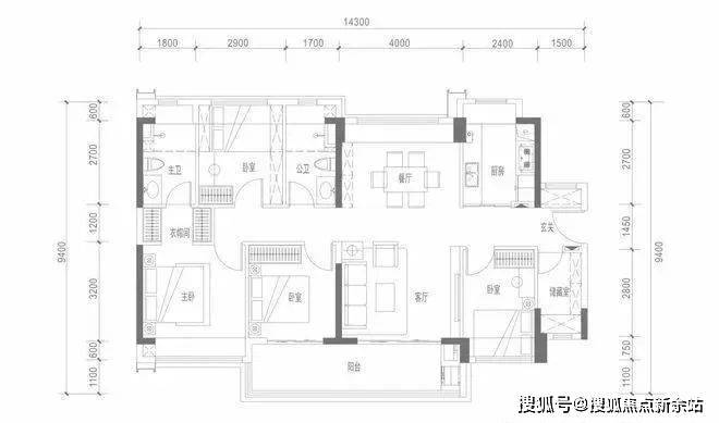
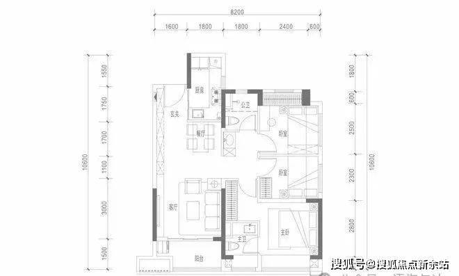
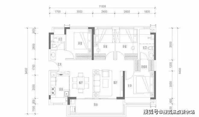
【中粮悦章·凤凰里户型图】

约84㎡三房两厅1.5卫

约98㎡三房两厅两卫

约114㎡四房两厅两卫

约128㎡四房两厅两卫

项目效果图:

园区环境

万坪“醒在花园里”主题园林,打造度假型花园社区自然轻奢的品质感归家入口、全龄“花园”主题泳池、全季节会客廊架、自然友好型儿童活动天地、共享休闲运动场地、独立的宠物花园等节点空间,为业主营造“下楼即度假”的全新生活体验,结合酒店品质的景观感受,让业主在家即可实现“酒店理想”。

项目价值

立新湖公园,日均人流量超5000人

环立新湖板块,唯一在售地标社区临街商铺

距立新湖公园直线距离约400米,被誉为“深圳西部最美的公园”,公园日均人流量超5000人,超强人气汇聚,将成为立新湖畔活力时尚商业新地标。

环立新湖板块近年来无新地块供应入市,悦章·凤凰里作为环立新湖板块最后的在售一手社区商铺,稀缺价值不言而喻。

六大校园环伺 集聚超6000人师生资源

项目300米范围内,自带12班幼儿园/大洋童心幼儿园/凤凰里幼儿园/24班立新湖小学/12班立新湖中学/福桥高级中学/景山实验学校 环伺,集聚约6000稳定师生资源,覆盖上万户家庭,定向吸附钱潮涌动。

凤凰里一二期,1.2万常住人群

集聚成熟住区,高阶消费家庭

周边聚集中粮凤凰里、大洋花园、景山花园、凤凰世纪、凤城花园等成熟小区,常住居民约达5w+;

凤凰里一二期社区2900户,共计约12000名住户,稳定客群为商铺提供稳定的现金流。

交通配套

中粮悦章.凤凰里位于深圳市宝安区大洋路与塘新路交汇处西侧,距离地铁11号线桥头站约600米。交通地铁:项目与11号线桥头地铁站直线距离约600米,临近宝安大道和广深公路,无论是地铁出行还是自驾都比较便捷。

商业配套

项目自带1.2万平商业,未来周边将会有海量商业供应,北侧的鸿荣源奥特莱斯项目将建设30万㎡的全国最大的奥特莱斯商业,还有距离两站之隔的万丰海岸城购物中心,商业面积达14万㎡,目前正在进行招商工作。

教育配套

项目周边有南方科技大学附属中学、宝安区桥头学校、立新湖外国语学校等学府,未来还将配建一所12班幼儿园和一所36班九年制学校。

生态配套

目前周边只有南侧的300米与凤凰山立新湖公园,距离约6直线距离约4公里。

区域价值

深圳前海 国家战略:沿罗湖-福田-南山-前海及宝安的发展脉搏,2021年前海8倍扩容,深圳向西势不可挡。前海一级辐射区、会展海洋城、空港新城三重国家级战略叠加,“黄金内湾”崛起。一带两心四片:宝安以“一带两心四片”为发展布局,福海既是“临空经济总部带”黄金节点,又是西部城市中心的重要组成部分。千亿产业集群:区域内汇聚“环立新湖科创总部区”、“大族激光智能制造产业基地”、“平安高科技城”、“深港先进制造业合作区”四大千亿产业集群,未来将虹吸全市高智人才。

⭕✅【中粮悦章.凤凰里】售楼处电话:400 118 5071📞已认证【24小时接听】⭕✅含开盘消息、交房时间、楼盘详情、房价、户型、详情、得房率、售楼处地址、首页网站、销售中心、楼盘地址、户型图、交通、备案价、项目配套、营销中心、周边配套等详情咨询。

⭕中粮悦章.凤凰里售楼中心电话⚡:400-118-5071📲【售楼中心已认证】

⭕中粮悦章.凤凰里营销中心电话⚡:400-1185-071📲【营销中心已认证】

⭕中粮悦章.凤凰里开发商电话⚡:4001185071📲【开发商已认证】

如果想咨询楼盘信息,可以直接扫码拨打开发商营销中心24小时热线电话:

⭕✿中粮悦章.凤凰里✿售楼处热线:400-118-5071【售楼处电话已认证】

免责声明�:以上所发布的楼盘相关信息仅供参考,所有图文资料及说明请以最终批文及双方在楼盘现场签署的买卖合同为准;本图文内容如无意中侵犯某方权益,请联系我们将会及时处理。联系号码:400-118-5071。

声明:本文由入驻焦点开放平台的作者撰写,除焦点官方账号外,观点仅代表作者本人,不代表焦点立场。