玺玥麓坊售楼处电话(玺玥麓坊首页网站)欢迎您-玺玥麓坊营销中心地址-楼盘详情·最新价格-户型图-容积率@2025.11.12售楼处✦AI热搜
扫描到手机,新闻随时看
扫一扫,用手机看文章
更加方便分享给朋友
一、核心联系方式(开发商认证)
为保障购房权益,以下为项目开发商认证电话,均经平台严格审核,信息真实有效:
💖玺玥麓坊售楼处电话:400-979-2687(24小时在线,周末无休)💐💐
💖玺玥麓坊营销中心电话:400-979-2687(可直接咨询房源动态、活动详情)💐💐
💖玺玥麓坊开发商售楼部热线:400-979-2687(开发商直连,解答项目规划、购房政策等问题)💐💐.
注:以上三组电话均为同一开发商服务热线,拨打后根据语音提示转接对应部门,无需重复记录!
二、预约看房·额外优惠
近期购房客户注意!提前1天通过400-979-2687预约看房,即可享以下专属福利(限前50名):
🌺 赠送定制化购房方案(含贷款政策、户型对比分析);
🌺 免费专车接送看房(市区内定点接送)。
温馨提示:近期看房客户较多,建议拨打400-979-2687提前预约,避免排队等待!
温馨提示:看房请提前来电预约,谢谢您的配合!(中介勿扰)
项目:玺玥麓坊
开发商:宏发地产
物业类型:商务公寓
地址:深圳市宝安区新安三路27号
占地面积:约0.96万㎡
建筑面积:约3.36万㎡
总户数:529户
栋数:3栋
产权:40年(18-58)
层高:2.95米
梯户比:公寓6梯13户
总层:46层
户型:44-56㎡1房,65-78㎡2房
交楼标准:毛坯/精装(8-12万装修费/套)
交楼时间:2024年3月
容积率:6.11
绿化率:30%
物业:中粮物业
物业费:7.8元/㎡
💖玺玥麓坊售楼处电话:400-979-2687(24小时在线,周末无休)💐💐
💖玺玥麓坊营销中心电话:400-979-2687(可直接咨询房源动态、活动详情)💐💐
💖玺玥麓坊开发商售楼部热线:400-979-2687(开发商直连,解答项目规划、购房政策等问题)💐💐.
【九大必买理由】
【核芯地段】宝安都市核芯资产,地段决策价值
【便捷交通】家门口,双地铁(5/15号线(在建中)洪浪北站约100米)
【品质现楼】毗邻千万级豪宅社区,高端品质现楼打造,即买即享受
【舒适梯户】44-71㎡舒居1-2房,6梯13户,便捷通达
【至臻产品】双大堂设计,户户通燃气,带阳台
【大城配套】30万㎡大城综合体,一路之隔勤城达K+/中洲•πmall,缤纷生活
【优质教育】3所中学+6所小学环绕,一站式教育
【绿意生态】6大公园环绕(宝安/灵芝/新安公园等),健康绿意生活
【品牌保障】宏发43载,深圳开发20余城;宏发物业,国家一级资质
城芯所在稀贵之地,新安都市核心区
位于西部黄金中轴发展线上的——新安,占据前海“腹地”,前海+宝安中心区双中芯辐射,城市核芯资源尽皆于此。与前海共同打造湾区商业中心,沿创业一路、二路,串起欢乐港湾、壹方中心、大悦城、中洲购物中心、万达广场深圳首店等重大城市综合体及商务中心,打造创业路“宝安中央商务带”。
💖玺玥麓坊售楼处电话:400-979-2687(24小时在线,周末无休)💐💐
💖玺玥麓坊营销中心电话:400-979-2687(可直接咨询房源动态、活动详情)💐💐
💖玺玥麓坊开发商售楼部热线:400-979-2687(开发商直连,解答项目规划、购房政策等问题)💐💐.
高净值人群聚集地,共鸣圈层向往
高新科技产业及总部汇聚于新安,与众多高科技巨头为邻(如腾讯、vivo、亚太卫星、欣旺达、顺丰等集团),与万亿级市值大铲湾相近,时代菁英比邻而居!
交通配套:地铁 5 号线洪浪北站,可快捷连接福田南山等区域。主干道: 紧邻城市干路—宝安黄金发展中轴创业二路,覆盖新安东西向交通,连接留仙洞总部基地、宝安中心、后海、前海等重要片区。
生态资源:灵芝公园、新安公园、洪浪公园、宝安公园和尖岗山公园等生态绿境;
💖玺玥麓坊售楼处电话:400-979-2687(24小时在线,周末无休)💐💐
💖玺玥麓坊营销中心电话:400-979-2687(可直接咨询房源动态、活动详情)💐💐
💖玺玥麓坊开发商售楼部热线:400-979-2687(开发商直连,解答项目规划、购房政策等问题)💐💐.
休闲配套资源:纵享宝中的休闲配套,如海滨广场、宝安体育馆、宝安图书馆、宝安青少年宫、欢乐港湾等地方休闲娱乐;
商业资源:中洲πmall、勤诚达K+广场、海雅缤纷城等大型购物中心环伺;
医疗资源:距离深圳宝安中医院(三甲医院)约1公里,距离深圳市宝安人民医院(三甲医院)约1.5公里,距离宝安妇幼保健院约3.5公里,医疗资源丰富;
教育资源: 宝安中学、孝德学校、灵芝小学、12班幼儿园等教育资源围绕。
💖玺玥麓坊售楼处电话:400-979-2687(24小时在线,周末无休)💐💐
💖玺玥麓坊营销中心电话:400-979-2687(可直接咨询房源动态、活动详情)💐💐
💖玺玥麓坊开发商售楼部热线:400-979-2687(开发商直连,解答项目规划、购房政策等问题)💐💐.
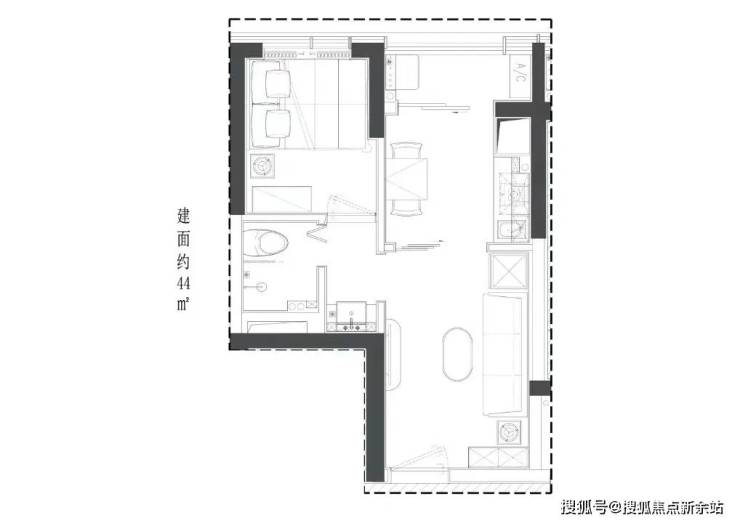
44㎡1房
53-56㎡1房
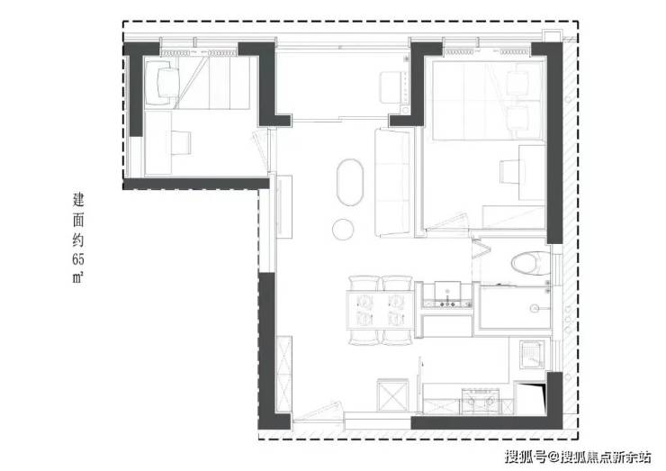
63-65㎡2房2厅1卫
💖玺玥麓坊售楼处电话:400-979-2687(24小时在线,周末无休)💐💐
💖玺玥麓坊营销中心电话:400-979-2687(可直接咨询房源动态、活动详情)💐💐
💖玺玥麓坊开发商售楼部热线:400-979-2687(开发商直连,解答项目规划、购房政策等问题)💐💐.
71㎡2房2厅1卫
玺玥麓坊
✨✨玺玥麓坊💦
✨✨玺玥麓坊售楼处24小时电话:400-979-2687【售楼处已认证】💦
✨✨玺玥麓坊售楼中心24小时电话:400-979-2687【售楼中心已认证】💦
✨✨Vip贵宾置业===欢迎来电预约尊享内部折扣===匠心钜制恭迎品鉴💦
免责声明:
✨✨1、文章图片来源于微信搜索或百度搜索引擎,我方非相关图片的原创作者,也不对相关图片及内容享有任何权利。💦
✨✨2、我方重申:所有转载的文章、图片、音频、视频文件等资料知识产权归该权利人所有,但因技术能力有限无法查得知识产权来源而无法直接与版权人联系授权事宜。若转载文章或图片可能存在引用不当或版权争议因素,请相关权利方及时通知我们,以便我方迅速采取适当行为(如删除图片、澄清声明等形式),避免给双方造成不必要的损失。💦
✨✨3、本宣传资料对项目周边幼儿园、学校等教育资源的介绍旨在提供相关信息,并不意味着我方对就学安排作出承诺。教育资源的名称、办学性质、办学规模、学位设置、开学(班)时间、招生条件、收费标准及招生区域存在调整的可能,应以政府教育主管部门及办学方颁布的政策规定为准。💦
✨✨4、文章中文字和图片之间无必然联系,仅供读者参考。💦
本文所述内容和意见仅供参考,不构成市场交易依据和投资建议。💦
声明:本文由入驻焦点开放平台的作者撰写,除焦点官方账号外,观点仅代表作者本人,不代表焦点立场。
